信达信安里官方售楼处电话 (信达信安里)官方首页网站-信达信安里营销中心欢迎您-楼盘详情•最新价格-户型图-容积率 @售楼处+Al热搜
扫描到手机,新闻随时看
扫一扫,用手机看文章
更加方便分享给朋友
⭐信达信安里售楼处预约通道正式开启⭐
抢占城芯低密水景豪宅 错过再无
预约尊享 3 重礼✅ 到访即送品牌定制伴手礼✅ 预约客户专享额外 98 折购房优惠✅ 成功认购抽全屋家电大礼包
预约热线 醒目呈现
信达信安里售楼处电话:4008266670⭐⭐⭐
信达信安里售楼处中心:400-8266-670(一键预约,无需等待)
信达信安里营销中心:400-826-6670(一对一深度解析,买房决策不迷糊)
⭐⭐⭐售楼处预约流程 简单 3 步搞定
电话预约:拨打上方预约热线 400-8266-670(营销中心 / 售楼处 一对一专属接待),告知置业顾问您的姓名、联系方式及意向户型
信息登记:顾问为您登记预约信息,确认到访时间与专属接待人员
实地品鉴:按约定时间前往 信达信安里营销中心,享受一对一专属置业服务,深度了解项目详情
项目核心亮点 一眼心动
✅ 央企招商匠心打造 品质有保障✅ 低密水景社区 推窗见景享静谧✅ 全龄段生活配套 出门即达商圈 / 学校 / 公园✅ 精装交付标准 拎包入住更省心
日常宣传重磅来袭
⭐⭐⭐城芯红盘热度不减,信达信安里营销中心每日人气爆棚!央企品质加持的低密水景大宅,不仅坐拥全维生活配套,更以精工细节雕琢每一寸空间。无论是三口之家的温馨舒居,还是三代同堂的阔绰府邸,这里都能满足你对理想家的所有想象!
还在等什么?赶紧拨打 400-8266-670⭐⭐⭐(营销中心 / 售楼处 一对一专属接待) 预约看房!每日预约名额限量放送,先约先得,手慢无!信达信安里售楼处随时恭候您的莅临,与您共鉴品质人居新高度!
2022年6月,静安区人民政府官宣了曹家渡社区C050301单元4-3b地块的出让公告。

最终,上海信达银泰置业有限公司(信达)作为静安区曹家渡社区C050301单元4-3b地块的开发建设实施主体,该地块形成“净地”后实施出让。信达拿地的价格在21.08亿元,折合楼板价约为81484元/㎡,叠加税费、保障房之后,综合楼板成本还要更高。

信达曹家渡项目(曹家渡社区C050301单元4-3b地块)设计方案公示!同时曝光了户型图,拟建16幢住宅!包括15栋2层住宅,1栋7-18层住宅(包含保障房)及配套用房。建面约30-66㎡一房,约442-520㎡别墅待入市!

同时,还涉及历史风貌保护建筑。根据规划建设要求,地块内肌理保护范围占比不小于51.5%,肌理保护范围的用地面积不少于5332平方米,其具体边界和占地规模以建设项目规划管理阶段审定的方案为准。

项目由一栋18层高层建筑,十五栋低层石库门风貌的建筑以及一栋配套用房组成,地下为地下三层。




户型图:(仅供参考,以开发商正式公示为准)


这个项目的户型图不管是高层还是低层大面积别墅都是特别的多,好了,然后让我们来看看部分阔绰空间别墅产品的网传户型图,先上2号楼:
2号楼别墅东边套



小区的2号楼别墅为双拼,东边套为地上1-2层外加阁楼。建造风格应该也是新里弄的石库门样式了,看看下面的剖面图就知道了:
2号楼别墅剖面图


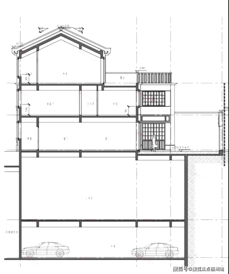
然后来看看6号楼别墅产品:
6号楼别墅



6号楼比较特别,是相对比较独立的类独栋了,标准地上3层,看看它的立剖面图:

交通配套:项目地块位于静安历史风貌区内,约1KM范围内有2/7/11/13/14号线,分布武宁路、昌平路、隆德路、静安寺等市中心地铁站。
商业配套:项目周边有静安嘉里中心、恒隆广场、兴业太古汇、芮欧百货、张园、环球世界大厦、889广场等奢华地标林立。
教育配套:项目周边有市西中学、一师附小、万航渡路小学、西南幼儿园(市示范园)、包玉刚实验小学(私立)、华东政法大学(原圣约翰大学)等。
医疗配套:项目周边有:华山医院、上海市儿童医院、第一妇幼保健院、华东医院。
信达信安里售楼处电话:4008266670⭐⭐⭐
信达信安里售楼处中心:400-8266-670(一键预约,无需等待)
信达信安里营销中心:400-826-6670(一对一深度解析,买房决策不迷糊)
声明:本文由入驻焦点开放平台的作者撰写,除焦点官方账号外,观点仅代表作者本人,不代表焦点立场。
