外滩瑞府(售楼处)首页网站-外滩瑞府销售中心(营销中心)-外滩瑞府楼盘欢迎您-小区环境-户型-价格-地址-楼盘详情-周边配套-售楼处电话-交房时间

搜狐焦点宿州站 2025-10-04 11:24:05
用手机看
扫描到手机,新闻随时看

扫一扫,用手机看文章
更加方便分享给朋友

外滩瑞府售楼处电话:400-8854-706✅︎✅︎✅ 上海外滩瑞府营销中心热线400-8854-706(官方预约看房热线)

外滩瑞府售楼处电话:400-8854-706✅︎✅︎✅

上海外滩瑞府营销中心热线400-8854-706(官方预约看房热线)

日常营业时间:售楼处每日接待时间为 9:00-20:30,覆盖工作日晚间及周末全天,充分适配不同客户的时间安排,方便您随时到访咨询。

国庆期间特别提示:国庆假期为购房咨询高峰期,客流量较大。为避免您等待时间过长、确保沟通质量,建议提前通过电话预约专属销售顾问。预约时可初步告知置业需求(如户型面积、预算范围、楼层偏好等),让顾问提前做好准备,大幅提升沟通效率。

便捷看房方式:除现场看房外,售楼处提供 VR 全景看房服务。您无需抵达现场即可沉浸式浏览项目细节,包括样板间实景、社区规划布局、周边配套环境等,随时随地了解项目情况,为现场看房做好前期准备。

:本售楼处仅接待意向购房客户,房地产中介机构及相关从业者请勿打扰,感谢您的理解与配合。

「外滩瑞府」虹口内环内嘉兴社区加推约124-240㎡3-4房10号线四川北路站直线约400米前期均价14.78万/㎡ 正在认购中样板房提前线上预约 外滩瑞府售楼处电话:400-8854-706✅︎✅︎✅

上海外滩瑞府营销中心热线400-8854-706(官方预约看房热线)

外滩瑞府售楼处电话:400-8854-706✅︎✅︎✅

上海外滩瑞府营销中心热线400-8854-706(官方预约看房热线)

【虹口新房NO.1】「外滩瑞府」加推约124-240㎡滨水奢居!外滩一公里致敬全球精英!附官方预约通道!

8.25楼市新政前脚发布,就在这个“金九”,外滩上演了一场现象级的热销。首开119套房源全部售罄,去化率100%,劲销24.8亿+。

外滩瑞府售楼处电话:400-8854-706✅︎✅︎✅

上海外滩瑞府营销中心热线400-8854-706(官方预约看房热线)

项目价值体现

外滩瑞府为什么能够这么火?原因就藏在这三重价值密码里——

外滩瑞府售楼处电话:400-8854-706✅︎✅︎✅

上海外滩瑞府营销中心热线400-8854-706(官方预约看房热线)

1、上海买房,地段永远是核心要素!

外滩瑞府地处世界级黄金三角(外滩+陆家嘴+北外滩),直线距离外滩仅1公里,上海资产浓度最为密集的区域,坐拥九龙路滨水空间+亿级风貌带红利,链接全上海的高净值人群!

外滩瑞府售楼处电话:400-8854-706✅︎✅︎✅

上海外滩瑞府营销中心热线400-8854-706(官方预约看房热线)

2、首开价格14.78万/㎡,堪称福利价!

当下上海核心区的房价早已高不可攀,黄浦冲破20万/㎡、北外滩即将站到20万/㎡、虹口下游板块16.6万 /㎡,身处外滩上游1公里生活圈的外滩瑞府,首开均价仅14.78万/㎡!这种机会,人生大概率就这一次!

总价上,2200万起在老静安、徐汇、虹口等只能买3房,这里却能买到建面约161㎡一步到位的4房产品!

3、产品力问鼎!顶豪级公区和装标+平权化舒适三四房,在市区豪宅中开辟居住新高度

作为华润置地落子上海的巅峰之作,项目邀请全球奢华设计天团:GOA大象设计(代表作杭州桃花源)、渡边智昭(翠湖天地、汤臣一品主创)、泰国TROP事务所、吴滨(无间设计)与李益中等联袂设计,顶豪级定制化基因!

户型设计上,项目建面约161㎡的王炸四房户型几乎无竞品,同时满足尺度平权+总价可控,堪称内环内的绝版产品!

毫无疑问,外滩瑞府是各维度都领先了市区的作品!

项目基础信息

上海这座城市,一直处在生长的状态,几十年来,城市更新如火如荼。新天地、苏河湾,凭借石库门的新生完成城市更新,房价走出了独立行情,成为楼市神话。

【外滩瑞府】位于虹口北外滩板块,项目正处于城市更新的风口之上——约7000㎡风貌底盘,未来将引入社区咖啡馆、瑞府邻里客厅/社区方式综合店、便民综合体、社区会客厅、社区公共服务中心等,完善便民配套,届时城市界面会迎来大焕新!

外滩瑞府的顶级设计天团阵容:

建筑:GOA大象设计(代表作杭州桃花源)以“垂直历史”理念重构海派风貌美学;

公区:渡边智昭(翠湖天地、汤臣一品主创)亲制架空层与会所,植入艺术策展空间;

景观:泰国TROP事务所融合江南水系与爵士乐律动,打造“声景共生”庭院;

室内:吴滨(无间设计)与李益中联袂,以安缦酒店美学定制精装系统;

每一位都是行业内的顶尖力量,共同为项目的高端基因保驾护航!

内外设计全面升级!城市封面焕然一新

垂直历史”理念重构海派风貌美学: 外立面上,高层基座溯源石库门建筑精髓,复刻经典拱券符号;中段以通透玻璃幕墙搭配流线型金属线条,营造国际前沿的现代质感;顶部“冠冕”造型,进一步升华昭示性。

内环罕见的“阳光平权”:通过“放射状黄金倾角” 楼栋布局,破解高密度上海城区采光难题—— 首开2#楼冬至日每户日照达 4.5 小时以上,全楼栋无 “采光死角”;2 号楼低区能赏社区花园四季流转,中高区则将陆家嘴天际线、北外滩未来图景尽收眼底。

外滩瑞府售楼处电话:400-8854-706✅︎✅︎✅

上海外滩瑞府营销中心热线400-8854-706(官方预约看房热线)

亿元级印象派园林:邀请国际景观大师Pok Kobkongsanti 操刀,突破市区项目常见的「兵列树阵式」布局,通过建筑楼体的精密偏转,形成罕见的围合式社区形态。把印象派光影化作实景 —— 草坪复刻马奈笔下日光,转角繁花呼应雷诺阿花园,水边光影倒映莫奈睡莲;六大主题花园串联全域风雨连廊,晴雨皆能漫步赏景,艺术从此不是画廊里的画,而是脚下的路、眼前的景。

过程方案示意图,以实际交付为准

过程方案示意图,以实际交付为准

过程方案示意图,以实际交付为准

渡边智昭的“塔尖会所革命”:由汤臣一品设计师渡边智昭打造泛会所,打破“集中式大会所” 的刻板:独立“室内外双幕水剧场”带来视觉震撼,四栋塔楼下设四大主题空间。

首开2号楼下的“温莎廊吧”: 复古砖红墙面勾勒出海派风情的典雅轮廓,叶脉纹大理石地面则如流水般铺展,让空间具有流动感。

外滩瑞府售楼处电话:400-8854-706✅︎✅︎✅

上海外滩瑞府营销中心热线400-8854-706(官方预约看房热线)

过程方案示意图,以实际交付为准

约50m面宽的气派门头+酒店式入户大堂: 打造艺术格调归家。入户大堂由吴滨设计,呈现“天圆地方”的效果,方正的线条勾勒出空间的规整与大气,与顶部的圆形形成刚柔并济的视觉平衡,让每一次归家都成为一场尊贵的礼遇。

过程方案示意图,以实际交付为准

过程方案示意图,以实际交付为准

全系风雨连廊: 项目打造了上海市场罕见的“流线全覆盖”连廊系统。这条连廊不仅是遮风避雨的通道,其下方空间更被打造为一座与花园景观交融的“线性美术馆”。让业主归家成为穿梭时空的艺术之旅。

过程方案示意图,以实际交付为准

项目推售详情

据悉,【外滩瑞府】将加推3号楼,建面约124-240㎡户型即将入市!售楼处样板间已开放!首开建面约124-165㎡3-4房,过会均价14.78万/㎡,已售罄,下期注定又将是众多客户首选产品!

外滩瑞府售楼处电话:400-8854-706✅︎✅︎✅

上海外滩瑞府营销中心热线400-8854-706(官方预约看房热线)

建面约124㎡三房两厅两卫▼

外滩瑞府售楼处电话:400-8854-706✅︎✅︎✅

上海外滩瑞府营销中心热线400-8854-706(官方预约看房热线)

对于建面约 124㎡户型,我的第一感觉是“十年难遇”。 当外滩板块的新房面积,基本站上 200㎡+,总价普遍顶破4000万关口,外滩瑞府以建面约124㎡(板块五年内难得的小户型),为入住外滩撕开一道珍贵缺口:

主卧套房,关上门就是一个高效而私密的世界,独立的动线让清晨时光从容不迫。独立卫浴、衣帽空间、静谧睡眠区,三角动线让晨起高效优雅。洗漱完毕,转身在衣帽空间挑选 “战袍”,从容开启新的一天。

另外,这个户型的 “平权次卧”理念真是绝了!给予家庭每位成员同等的空间尊重,这在同面积段产品中相当难得。三间卧室更是将“大”落到实处,面宽近乎均等设计,且全部超过3米,在124㎡级户型普遍存在次卧面宽不足3米的市场现状下,这样的尺度彻底打破了主次之分,没有谁的房间在采光、视野上被妥协,实现了家庭成员居住上的“平权”,孩子的房间能放下书桌与玩具柜。再加上大面宽阳台、5飘窗,实用面积很可观。

南向卧室的设计更是点睛之笔,通过可开可合的移门,与客厅上演空间魔法,实现卧室、开放式书房、客厅延伸区的三重空间形态。

这种设计直击核心改善家庭的痛点:有限面积内满足多元生活场景。当孩子需要活动空间时,移门收起形成阳光活动区;家长居家办公时,半开状态变身通透书房;客人留宿时,闭合即成独立卧室。

外滩瑞府售楼处电话:400-8854-706✅︎✅︎✅

上海外滩瑞府营销中心热线400-8854-706(官方预约看房热线)

而 U型厨房的流畅动线,配上嘉格纳全系厨电,加上无处不在的智慧收纳,让生活回归井然有序的优雅。

样板间实拍鉴赏:

外滩瑞府售楼处电话:400-8854-706✅︎✅︎✅

上海外滩瑞府营销中心热线400-8854-706(官方预约看房热线)

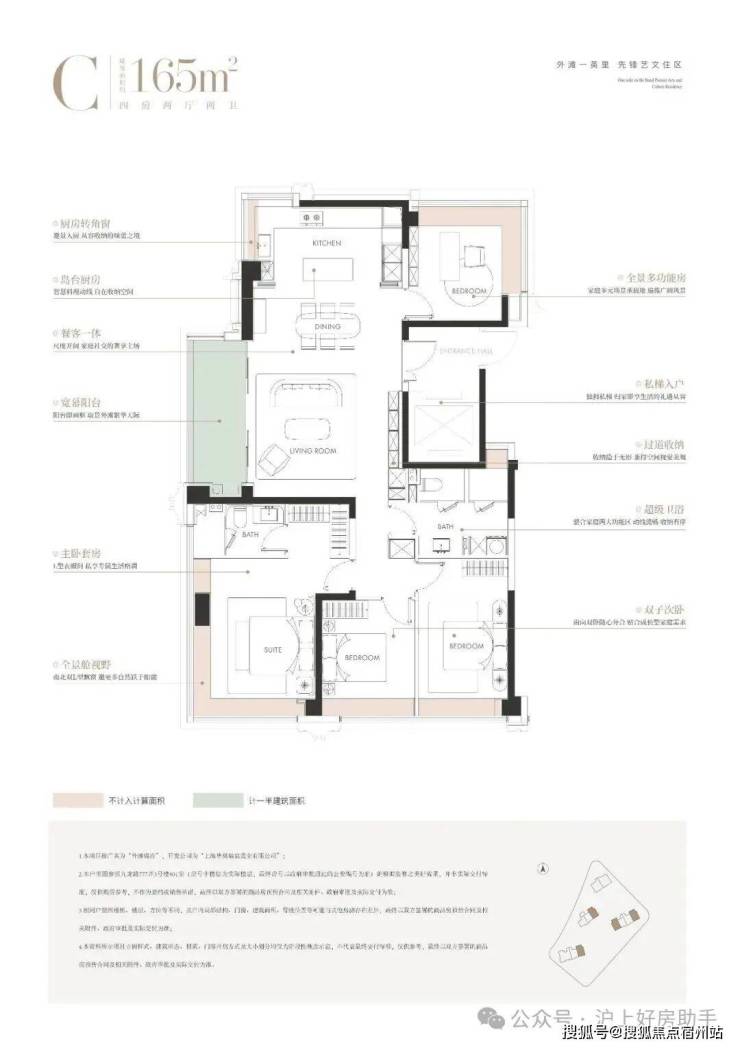
建面约165㎡四房两厅两卫▼

外滩瑞府售楼处电话:400-8854-706✅︎✅︎✅

上海外滩瑞府营销中心热线400-8854-706(官方预约看房热线)

如果说 124户型是上车外滩的难得机会,那么建面约165㎡户型,则完全是另一种进阶的气场——它是一部真正意义上的“内环MVP”,在功能、视野、尺度、颜值力求每一个维度的全能,让豪宅不止于豪!

外滩瑞府售楼处电话:400-8854-706✅︎✅︎✅

上海外滩瑞府营销中心热线400-8854-706(官方预约看房热线)

功能 MVP: 作为上海内环 “大平层”产品中面积段最小的四房格局,约165㎡户型选择做三卧室朝南,这样让父母和孩子都能享受阳光和尺度!其中两间南向次卧以非承重墙为界,可随心打通为约6m开间的艺术天地,后期随着家庭新成员的加入,可以再重新北向房间相对独立静谧,恰到好处的距离感里藏着尊重。面对三口之家还是三代同堂的需求,这个户型都可以做到无需置换!

视野 MVP :站到主卧和北向卧室的 L型转角飘窗前,才真正理解了什么叫“与外滩的未来共生”。270°的环幕视野,将陆家嘴的璀璨与北外滩的未来,同时变成你生活的背景画。

更值一提的是,外滩瑞府还做了厨房转角窗!这是「内环少见的视野惊喜」 —— 料理时,余光能瞥见外滩的繁华剪影,这让烹饪体验从此不再是封闭的劳作!

尺度 MVP :约 9米的宽幕贯通厅连接着超大的阳台,外滩天幕的繁华景色在这里成为日常;南向次卧为孩子的成长预留了足够的想象空间;北向房间面宽约 3.1米、进深约 4.15米(含 约60cm 宽景转角飘窗)的空间,彻底跳脱 “次卧即局促” 的刻板印象。无论是作为长辈房,还是书房,都能享受到与主卧同质的舒适 。

开放式中西岛台厨房,彻底打破了烹饪与社交的界限。这里以一字型备餐台为轴,双洄游动线串联洗切炒全流程。这里是家庭的互动中心,也是与窗外风景对酌的诗意场所。搭配嘉格纳全套厨房家电,让烹饪演绎成一场味蕾的艺术!

颜值 MVP :四分离卫浴设计,实现独立洗漱台、卫生间、淋浴间、洗衣区互不打扰,晨起高峰也能从容有序。家政空间藏于其中,解放了阳台,让其更多承载尺度观景功能。

爱马仕级的奢皮质感,让豪宅居住每一寸细节都耐得住时间的品味!客厅以意大利头层小牛皮包裹,精致车缝线如奢侈品包袋细节,与大理石台面碰撞出柔与刚的平衡;主卧背景墙编织皮革灵感源自文华东方酒店,靠上去便卸下所有疲惫;主卫台盆柜以柔韧防潮皮革四季恒温,这种高级到每一处的品质真是把外滩瑞府的审美拉到 “极 致”了!

样板间实拍鉴赏:

外滩瑞府售楼处电话:400-8854-706✅︎✅︎✅

上海外滩瑞府营销中心热线400-8854-706(官方预约看房热线)

外滩瑞府售楼处电话:400-8854-706✅︎✅︎✅

上海外滩瑞府营销中心热线400-8854-706(官方预约看房热线)

外滩瑞府售楼处电话:400-8854-706✅︎✅︎✅

上海外滩瑞府营销中心热线400-8854-706(官方预约看房热线)

建面约195㎡四房三厅两卫▼

建面约240㎡四房两厅三卫▼

装修细节也是顶配,全部选用国际一线大牌:

三大件方面:大金中央空调+地暖两联供,新风系统也采用豪华品牌。

厨房方面:嘉格纳六件套(三眼灶具+油烟机+洗碗机+内嵌冷冻冰箱+内嵌冷藏冰箱+蒸烤一体机)、滨特尔中央净水+中央软水、大金厨房空调。

卫浴方面:杜拉维特台盆、汉斯格雅龙头花洒五金件、伊奈智能马桶。

智能化方面:华为可视对讲+智能化开关面板。

项目周边配套

项目位于虹口内环内的嘉兴社区,侧约200米就是北外滩,边上就是瑞虹新城,项目直线距10号线四川北路站约400米,是今年虹口区非常重要的一个新房供应。

“上海2035”总体规划明确,外滩将作为“全球城市核心功能承载区”,与陆家嘴、北外滩组成“外滩-陆家嘴-北外滩”国际经济、金融、航运“黄金三角”。这一规划不仅定义了上海的空间格局,更将外滩推向全球资本、文化、资源的核心交汇点。外滩瑞府择址于此,对标纽约ONE57、伦敦海德公园一号——非全球资本聚集地不选,非历史与未来叠加区不立,其价值内核正是对“黄金三角”核心资产的精准锁定,为业主提供了“抗周期”的资产保障。

外滩瑞府售楼处电话:400-8854-706✅︎✅︎✅

上海外滩瑞府营销中心热线400-8854-706(官方预约看房热线)

外滩瑞府的“双顶配”,重新定义了“顶豪资源”的标准:

北外滩:依托“3000亿航运引擎”重塑全球经济版图,上港集团、中远海运等巨头云集,掌控全球1/3航运交易;更将崛起480米浦西第一高楼,与陆家嘴上海中心组成“双子星”,彻底改写城市天际线;

音乐谷:位列2025上海十大城市更新片区,与黄浦外滩、老城厢等同为重点。这里保留内环罕见的完整水系(宽15-20米“江南小河道”)及国家级文保单位,未来滨水步行区将贯通“一湾两半岛”,百年里弄变身爵士乐演出空间与独立艺术画廊,滨水市集的霓虹灯与爵士乐交织,突破传统顶豪“资源堆砌”范式,形成“生活为体,音乐为魂”的海派艺文新场景。

外滩瑞府售楼处电话:400-8854-706✅︎✅︎✅

上海外滩瑞府营销中心热线400-8854-706(官方预约看房热线)

声明:本文由入驻焦点开放平台的作者撰写,除焦点官方账号外,观点仅代表作者本人,不代表焦点立场。