徐汇海上·清和玺(海上·清和玺售楼处)2025海上·清和玺首页网站-楼盘最新详情-海上·清和玺营销中心欢迎您

搜狐焦点宿州站 2025-09-12 15:29:21
用手机看
扫描到手机,新闻随时看

扫一扫,用手机看文章
更加方便分享给朋友

海上清和玺售楼处预约电话:400-8824-198

海上清和玺

徐汇中环唯一新房供应

建面约112-143㎡3-4房

加推9-10号楼王 此次房源154套

均价约11.91万 精装修交付

另有少量112-177㎡3-4房

均价11.28万/㎡ 总价1200万起

售楼处线上提前预约

海上清和玺售楼处预约电话:400-8824-198

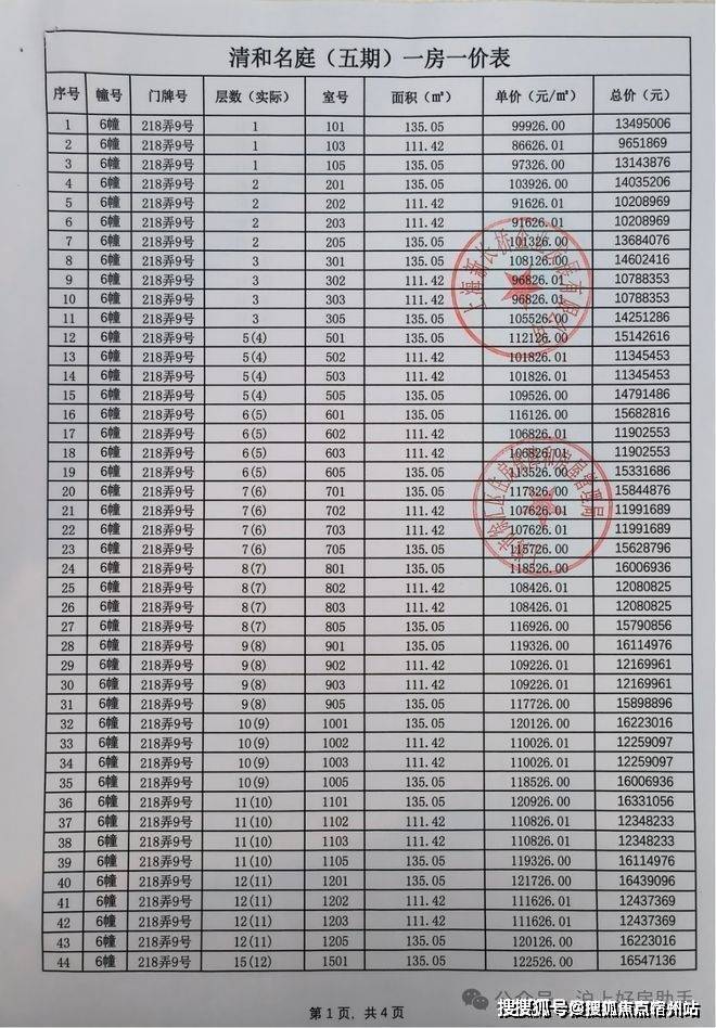
海上清和玺售楼处预约电话:400-8824-198一房一价表▼

项目区位介绍

海上清和玺售楼处预约电话:400-8824-198徐汇长桥,一段跨越860年的时代往事,由此娓娓道来。【海上·清和玺】源自百年「清和」的传承。长桥因桥而名,公元1163年南宋隆兴年间,长桥时名“清和桥”,迄今已有860多年历史,从历史到现在,一座桥见证历史的变迁,记录上海城市巨变的缩影。后因清和桥之南属于华亭县,桥之北属上海县,清和桥横跨两县,民间又称之为“长桥”。这也是长桥港、长桥镇得名的由来。海上清和玺售楼处预约电话:400-8824-198

海上清和玺售楼处预约电话:400-8824-198时间潮去,时代潮来,“清和”虽留驻于历史,但“清和”的美好期盼依旧流淌于老徐汇人的心田。楚辞《九思·伤时》中提到“声噭誂兮清和”,“清和”寓意着清静和平,社会升平。正如今天的长桥,岁月静好温润如初。当目光穿越时间,海上清和玺,正是一次百年长桥源址的续写,一次海派在地文化的薪火传承。海上清和玺售楼处预约电话:400-8824-198

【海上·清和玺】基于百年长桥在地文化的传承,以海派历史为底蕴,在过于与未来之间,奢享一座城市罕有的文脉资产。海上清和玺售楼处预约电话:400-8824-198

项目基本信息

海上清和玺售楼处预约电话:400-8824-198玺系,是招商蛇口的至高产品系,皆为“一玺一定制”。项目售楼处&实景展示区开放在即,在开放前夕,来看看其产品打造有哪些亮点。海上清和玺售楼处预约电话:400-8824-198

海上清和玺售楼处预约电话:400-8824-198作为招商十年新玺作品,海上·清和玺始终领衔迭代产品,思考人与空间的本质关系,秉持开创性的设计视角和思路,将产品定制主义运用在空间之中。海上清和玺售楼处预约电话:400-8824-198

海上清和玺售楼处预约电话:400-8824-198归家实景门庭亮相,结合十年新玺积累全国高阶住宅开发经验,每一处皆原创,营造徐汇崭新的贵雅生活。希望业主真正归家的时刻,能时刻保持心动感。海上清和玺售楼处预约电话:400-8824-198

归家奢境超50米非凡尺度

海上清和玺售楼处预约电话:400-8824-198在设计之初,海上·清和玺从传统场域出发,在标准中重新定制。归家门庭贵雅三景,从设计创意到用材细节从公区配置到产品打造,为徐汇呈现真正的“贵雅生活殿堂”。‘海上清和玺售楼处预约电话:400-8824-198

海上清和玺售楼处预约电话:400-8824-198大手笔!全域风雨连廊!海上清和玺售楼处预约电话:400-8824-198

海上清和玺售楼处预约电话:400-8824-198或许碍于成本,风雨连廊其实在豪宅中出现的频率也非常低。海上清和玺售楼处预约电话:400-8824-198

海上清和玺售楼处预约电话:400-8824-198而海上·清和玺将风雨连廊扩容为一个完整的归家体系,将整个社区以约 500米全域连廊体系贯通,真正做到全楼栋无风雨归家。海上清和玺售楼处预约电话:400-8824-198

金石玉彻奢材 波澜清泉水景

海上清和玺售楼处预约电话:400-8824-198空间采用奢材定制,将品质延续到每个细节中。门庭延街的外立面,以精工定制弧形贝金米黄大理石为主调,镶嵌典藏级老虎玉大理石,点缀古铜色现代海派艺术感灯器。整体呈现一种流转于百年海派的贵雅气质。海上清和玺售楼处预约电话:400-8824-198

海上清和玺售楼处预约电话:400-8824-198在门庭外,辅以两侧具有仪式感的跳泉水景,将建筑的圆弧美感与自然水景相合,共同构成海上·清和玺“贵雅清和”的城市界面。海上清和玺售楼处预约电话:400-8824-198

对称式环岛景墙奢石镶嵌

海上清和玺售楼处预约电话:400-8824-198步入到整个门庭环岛空间,整个景墙的设计同样考究墙面采用中轴对称的设计布局,定制了奢石镶嵌装饰将曲面艺术与经典石器之美圆融交融,形成独一份的视觉震撼。海上清和玺售楼处预约电话:400-8824-198

酒店式环岛落客 海派漩心

海上清和玺售楼处预约电话:400-8824-198酒店式归家环岛的中心,海上·清和玺原创设计了艺术装置,海派漩心。首创经典山茶花图腾设计,其装饰符号源于海派建筑中的山茶花图腾,设计师通过现代的手法将其以立体的方式重塑在环岛落客空间。海上清和玺售楼处预约电话:400-8824-198

海上清和玺售楼处预约电话:400-8824-198海派漩心装置采用了300余枚鳞片定制,超过2000次折叠锻造,营造出美轮美奂的冰裂纹视觉图样,让每一个金属片都有不同弯折角度和形态,从而呈现整体效果从平面到立体的变化,极具艺术品味。海上清和玺售楼处预约电话:400-8824-198

海上清和玺售楼处预约电话:400-8824-198其底部精心设计了流通的波澜水景,宛若一座曼妙的山茶花生长于泉水之上,熠熠生辉。海上清和玺售楼处预约电话:400-8824-198

海上清和玺售楼处预约电话:400-8824-198海派漩心的顶部,是由室内灯光设计大师“关永权团队倾力设计打造,柔和的光景效果及恰到好处的色温处理,让整个空间营造出奢华优雅的美妙质感,通过环形透光设计,在穹顶形成独一份的贵雅感受。漫步灯光之下,如同走过时间的美妙殿堂。海上清和玺售楼处预约电话:400-8824-198

海上清和玺售楼处预约电话:400-8824-198【海上·清和玺】希望业主的每一次归家,都能有属于自己的社交空间。整个前厅的接待空间不是一个过渡空间,而是一个真正为归家营造惬意分享的生活场。海上清和玺售楼处预约电话:400-8824-198

海派设计 殿堂质感

海上清和玺售楼处预约电话:400-8824-198整个室内空间由G.ART集艾主创设计大师李阳先生倾力设计,将百年徐汇的经典文化融为建筑语言,生动地写入场景之中。海上清和玺售楼处预约电话:400-8824-198

海上清和玺售楼处预约电话:400-8824-198预接待厅门头源于招商局出资创办的原南洋公学(现在上海交大)三段式建筑造型。优美、经典的软装风格定制无不彰显着生活的品味,天花板定制了细腻入微的deco设计细节,地面瓷砖采用威尼斯白与爵士白石材拼花设计,纯人工铺装保证花纹的奢华质感,壁面装饰的水品灯,选用高规格的E9级进口水晶制作,真正将海派设计融入生活。海上清和玺售楼处预约电话:400-8824-198

艺术点缀 随手出圈

海上清和玺售楼处预约电话:400-8824-198【海上·清和玺】保持对徐汇滨江艺术生活的充分理解,整个接待厅堂处处可见出片打卡的贵雅瞬间,礼宾接待台与装饰圆满融合,角落美陈亦匠心独运,整体设计采用整石雕琢,于细微中领略建筑背后的艺术内在。在这里,空间让渡于品味,引领人们对生活有全新的理解和发现。海上清和玺售楼处预约电话:400-8824-198

奢感勾勒 海派光厅

海上清和玺售楼处预约电话:400-8824-198从室内走出室外,宛若一次穿梭百年海派艺术的旅行。甚至触碰的门面,都有源自徐汇历史深处的浓厚艺术中庭的大门设计为“海派光厅”,其玻璃镜面由匠人手工绘制经典海派线条,邬达克经典的纹路设计嵌于表面,同时墙面同样定制了优雅的奢石装饰,让整个空间的布局既有历史的风韵,也有现代的奢华。海上清和玺售楼处预约电话:400-8824-198

千里苛觅 福木紫薇

海上清和玺售楼处预约电话:400-8824-198景观造园,不只局限于对自然场景的铺陈,更应考虑自然能带给人的生活变化。真正的奢宅拥有的是文化内在。海上·清和玺考究历史,从典籍中发现生的灵感,设计师考究历史中的大宅建造规制,提取“浓荫庇宅”的传统理念,辗转城市之间,从华东,西南,华中区域访查搜寻,终于寻得树龄超60年的福木“紫薇”。海上清和玺售楼处预约电话:400-8824-198

海上清和玺售楼处预约电话:400-8824-198天上紫薇星,地上紫薇花。紫薇不仅寓意美好,更完美的呈现了红润、朝气的自然色彩,巧妙的点缀其中,形成盛夏如火的独有景观。海上清和玺售楼处预约电话:400-8824-198

造价近百万土耳其进口奢材 老虎玉庭院

海上清和玺售楼处预约电话:400-8824-198传统下沉庭院只为社区营造休憩场所,海上·清和玺真正将庭院从传统的定义中跳脱出来,试图将庭院打造成一件俊美的“工艺品”。海上清和玺售楼处预约电话:400-8824-198

海上清和玺售楼处预约电话:400-8824-198整个庭院材料选用土耳其进口老虎玉定制,选择交由匠人耗时60天,手工打磨定制,纯手工不仅极耗时间而且工艺复杂,深度考验匠人的技艺。海上·清和玺希望在产品的最终呈现上,能真正还原一个有温度的庭院将匠心融入场域之中,真正为每一位业主营造“休憩品书”的贵雅瞬间。仅仅这一方庭院价值就已近百万,可见海上·清和玺对业主归家仪式感设计的用心与苛求。海上清和玺售楼处预约电话:400-8824-198

垂直会所体系

海上清和玺售楼处预约电话:400-8824-198据沪上好房统计,近两年10万+/㎡新房中,配备会所的楼盘仅十之一二,会所面积约800-1500㎡,内容以会客厅和健身房为主,少数有泳池。(来源沪上好房手工统计)海上清和玺售楼处预约电话:400-8824-198

海上清和玺售楼处预约电话:400-8824-198而在海上·清和玺,招商蛇口首次提出“垂直会所体系”的空间布局设计,将原本扁平式的功能布局以立体的方式重新构建,实现了复合空间的多元利用。海上清和玺售楼处预约电话:400-8824-198

海上清和玺售楼处预约电话:400-8824-198其中会所及架空层总体量约3000㎡,如此大规模的定制,在整个上海高阶产品中同样也是超前列的存在。海上清和玺售楼处预约电话:400-8824-198

海上清和玺售楼处预约电话:400-8824-198约2000㎡地下会所内含璀璨星空顶泳池、私宴厅、室内高端健身器材(沃特罗伦或同等档次品牌)甚至高尔夫场所(高尔夫尊或同等档次品牌)。海上清和玺售楼处预约电话:400-8824-198

海上清和玺售楼处预约电话:400-8824-198还有七大泛会所,作为业主生活的延伸。海上清和玺售楼处预约电话:400-8824-198

项目效果图过程稿,以实际交付为准

海上清和玺售楼处预约电话:400-8824-198从实景归家到功能设计公区奢宅化 重新界定场域的价值所在海上清和玺售楼处预约电话:400-8824-198

海上清和玺售楼处预约电话:400-8824-198在产品颜值的高水准定制之外,在海上·清和玺的视角里,希望打破原有的空间定制思路,将传统高阶住宅的打造理念运用到公区,重新定义公区功能及体验感。海上清和玺售楼处预约电话:400-8824-198

项目推售详情

海上清和玺售楼处预约电话:400-8824-198【海上·清和玺】加推9-10幢,房源共154套,建面约112㎡-141㎡3-4房楼王,

其中9#楼112㎡-134㎡压轴加推 中轴C位收官!10#楼约143㎡四房最后抢藏机会!海上清和玺售楼处预约电话:400-8824-198

海上清和玺售楼处预约电话:400-8824-198均价11.91万/㎡。另前期少量建面约112-177㎡3-4房改善大宅可直接认购!总价1200万起!海上清和玺售楼处预约电话:400-8824-198

海上清和玺项目全套户型鉴赏:

徐汇2000万内稀缺四房,堪称孤品

海上清和玺售楼处预约电话:400-8824-198作为徐汇区当前唯一总价2000万内的四房新盘,在土地资源开发成本日渐高昂的徐汇,低密洋房堪称“绝版资产”,而兼具功能性与收藏属性的「四房真洋房」,更堪称时代孤品。可以说,这一次之后,很难再有!海上清和玺售楼处预约电话:400-8824-198

海上清和玺建面约143㎡ 样板间实拍▼

海上清和玺售楼处预约电话:400-8824-198除了本身稀缺性之外,这一次143㎡洋房的产品设计也有诸多亮点:

海上清和玺售楼处预约电话:400-8824-198

1、全生命周期产品,四房两卫满足家族式需求

2、类一梯一户,舒适独立入户空间

3、南向四开间,面宽约15.5m,独立餐客厅,南北通透

4、是徐汇唯一2000万左右能买到四房的新盘

海上清和玺售楼处预约电话:400-8824-198

海上清和玺售楼处预约电话:400-8824-198以「全生命周期住宅」为核心理念,海上·清和玺洋房以四房两卫的家族式空间布局,精准匹配多代共居的进阶需求,以「类一梯一户」的私密设计,重塑归家礼仪的尊崇感。海上清和玺售楼处预约电话:400-8824-198

海上清和玺售楼处预约电话:400-8824-198户型设计上约15.5米南向四开间,以大开大合的格局重构空间美学与功能的平衡。独立客厅南北贯通,舒适通透十足,同时6-7层低密真洋房形态,打破传统高层压抑感,将光照提升至极致。无论是三代同堂的欢声笑语,抑或私密静谧的独处时光,皆能在此找到理想载体。海上清和玺售楼处预约电话:400-8824-198

海上清和玺售楼处预约电话:400-8824-198据悉,143㎡大师样板现已开放,过会均价12.7万/㎡,臻稀席位仅25个!预约从速!海上清和玺售楼处预约电话:400-8824-198

样板间实景拍摄:

海上清和玺售楼处预约电话:400-8824-198

建面约177㎡4房2厅3卫

海上清和玺售楼处预约电话:400-8824-198建面约177㎡户型是本批次的重点户型,总价约2300-2500万级,改善一步到位,后续再无!阔朗的四开间朝南设计+双套房设计,保证不同家庭成员起居的私密性。海上清和玺售楼处预约电话:400-8824-198

海上清和玺售楼处预约电话:400-8824-198客餐厅尺度阔绰,方正大气,自带曲面流体的阳台。主卧带转角飘窗,主卫浴缸+双台盆设计,非常尊崇!海上清和玺售楼处预约电话:400-8824-198

建面约112㎡ 3房2厅2卫▼

海上清和玺售楼处预约电话:400-8824-198

海上清和玺建面约112㎡ 样板间实拍▼

海上清和玺售楼处预约电话:400-8824-198建面约112平三房为标准的三开间户型,设计上将传统的过道改为餐厅空间,将公共区域做大了,也减少了浪费;S墙设计将冰箱空间外移,厨房空间更宽裕。海上清和玺售楼处预约电话:400-8824-198

海上清和玺售楼处预约电话:400-8824-198入户这座铸铝门,质感厚重;通顶玄关柜,内置消毒精灵,奢石把手+奢石台面更显海派温润气质,玄关地面都铺上了海上·清和玺的logo拼花,小小玄关做到了既实用又美观。海上清和玺售楼处预约电话:400-8824-198

样板间实景拍摄:

海上清和玺售楼处预约电话:400-8824-198

海上清和玺售楼处预约电话:400-8824-198进门可以看到经典的S墙设计,L型厨房操作台面,也是暗藏不少细节——玻璃移门采用完美系列夹丝玻璃+金属造型边框,顶部配置线性凉霸+LED嵌入式回形灯带+筒灯,灶台后侧采用大面积岩板铺设,方便清洁的同时显得厨房更加大气。海上清和玺售楼处预约电话:400-8824-198

海上清和玺售楼处预约电话:400-8824-198厨电配置了德国厨房顶奢品牌博世(或同等档次)四件套抽烟机+燃气灶+洗碗机,带末端净水器,弗兰卡(或同等档次)大单槽+可抽拉龙头,冰箱也是交付的!海上清和玺售楼处预约电话:400-8824-198

柜海上清和玺售楼处预约电话:400-8824-198门白色烤漆面板,抽屉分区也都是帮大家细致划分,如多功能调味拉篮+谷物抽+碗碟拉篮等。岛台上配置可升降插座,铝合金抽屉,石材背景板的金属开放格实用性很强。海上清和玺售楼处预约电话:400-8824-198

海上清和玺售楼处预约电话:400-8824-198电视背景墙采用卡慕白的石材+皮革造型,弧形吊顶,相当讲究,连空调出风口的形状都打造为海上·清和玺logo山茶花的形状~~三大件为大金(或同等档次)中央空调和地暖,新风系统为百朗(或同等档次),南向阔景阳台,采光视野一级棒!海上清和玺售楼处预约电话:400-8824-198

海上清和玺售楼处预约电话:400-8824-198主卧套房设计,皮革造型的床背景墙也是交付标准,台盆为唯宝(或同等档次)、龙头则为科勒(或同等档次)复古龙头,马桶为高仪智能马桶(或同等档次)。海上清和玺售楼处预约电话:400-8824-198

海上清和玺售楼处预约电话:400-8824-198奢石台面,皮革饰面柜抽屉,侧端设置金属收纳开放格;定制镜柜,中间的透光玉石直接提升了高级感,镜柜内部配备了美妆冰箱+美妆灯条+轨道收纳!海上清和玺售楼处预约电话:400-8824-198

海上清和玺售楼处预约电话:400-8824-198

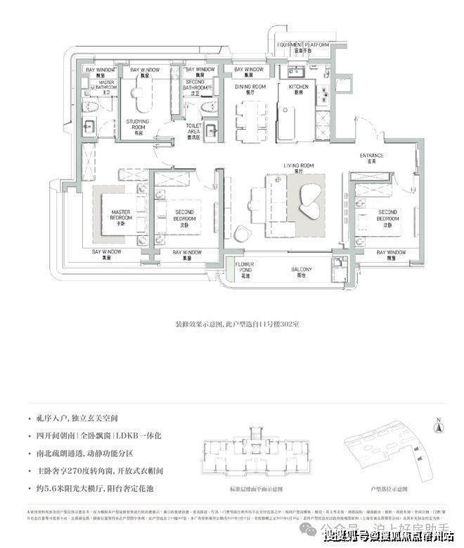
建面约120㎡ 3房2厅2卫▼

海上清和玺售楼处预约电话:400-8824-198建面约120㎡的户型,定制LDKB一体化宽厅,更舒适的功能定制,270°转角窗观景套房设计,实现了居住品质与观景的完美结合。海上清和玺售楼处预约电话:400-8824-198

建面约134㎡ 3房2厅2卫▼

海上清和玺售楼处预约电话:400-8824-198

海上清和玺建面约134㎡ 样板间实拍▼

海上清和玺售楼处预约电话:400-8824-198全屋动静分离设计,餐客一体化,预计客厅面宽超4.7米配以270度采光阳台,舒适度直接拉满;玄关设置S墙、厨房预留岛台位置,促使空间利用度更加合理;主卧面宽预计超3.6米,配以270度飘窗。海上清和玺售楼处预约电话:400-8824-198

实地拍摄

项目周边配套

海上清和玺售楼处预约电话:400-8824-198轨道交通方面:距离15号线罗秀路站约1.2公里,步行不算近,但是也能接受。海上清和玺售楼处预约电话:400-8824-198

海上清和玺售楼处预约电话:400-8824-198自驾方面,约800米即可上中环,距离龙吴路、上中路隧道、外环直线距离约1公里,距离虹梅南路、沪闵高架路也仅约2公里。海上清和玺售楼处预约电话:400-8824-198

海上清和玺售楼处预约电话:400-8824-198商业配套方面:项目2公里内有凌云壹街坊、百安居、东阔生活广场、规划了北杨人工智能小镇。海上清和玺售楼处预约电话:400-8824-198

海上清和玺售楼处预约电话:400-8824-198教育资源方面:项目北面一街之隔就是徐汇四大名校之一民办逸夫小学,上海中学距离项目也仅几百米。海上清和玺售楼处预约电话:400-8824-198

医疗资源方面:

海上清和玺售楼处预约电话:400-8824-198上海市第六人民医院(直线距离约2.7公里),全国骨科王牌top级三甲医院;上海市第八人民医院、上海仁爱医院、上海万众医院、上海虹桥医院等专业医院,护航家人健康。海上清和玺售楼处预约电话:400-8824-198

海上清和玺售楼处预约电话:400-8824-198生态资源方面:距离上海植物园直线距离约1.3公里。海上清和玺售楼处预约电话:400-8824-198

海上清和玺售楼处预约电话:400-8824-198

8月25日,上海市住房城乡建设管理委、市房屋管理局、市财政局、市税务局、人民银行上海市分行、市公积金管理中心等六部门联合印发《关于优化调整本市房地产政策措施的通知》(以下简称《通知》),包括调减住房限购、优化住房公积金、优化个人住房信贷以及完善个人住房房产税等政策。《通知》自2025年8月26日起施行。

一、调减住房限购政策

为更好满足居民改善性需求,促进宜居安居、职住平衡,《通知》明确进一步调减住房限购政策。一是符合条件居民家庭在外环外购房不限套数。对符合本市住房购买条件的居民家庭,包括本市户籍居民家庭、在本市连续缴纳社会保险或个人所得税满1年及以上的非本市户籍居民家庭,在外环外购买住房不限套数,包括新建商品住房和二手住房。二是成年单身人士按照居民家庭执行住房限购政策。

按照上述规定,沪籍居民家庭和沪籍成年单身人士,在外环外购买住房不限套数;在外环内限购2套住房。非沪籍居民家庭和非沪籍成年单身人士,自购房之日前在本市连续缴纳社会保险或个人所得税满1年及以上的,在外环外购买住房不限套数;自购房之日前在本市连续缴纳社会保险或个人所得税满3年及以上的,在外环内限购1套住房。

关于住房限购政策相关业务,可拨打房地产交易行业服务热线“962269”具体咨询。

二、优化住房公积金政策

为加大公积金支持住房消费力度,《通知》规定优化住房公积金政策。一是提高个人住房公积金贷款额度。对缴存人购买二星级及以上新建绿色建筑住房的,住房公积金(含补充公积金)最高贷款额度上浮15%。首套最高贷款额度从160万元提高至184万元,多子女家庭首套上浮比例可叠加计算,从192万元提高至216万元;二套最高贷款额度从130万元提高至149.5万元。二是支持提取住房公积金支付购房首付款。对缴存人购买我市新建预售商品住房的,可以按规定申请提取本人及配偶的住房公积金支付购房首付款。三是支持住房公积金“又提又贷”。对缴存人提取住房公积金支付购房首付款的,不影响其住房公积金贷款额度计算。

关于住房公积金贷款和提取业务的具体办理方式及材料,可查询上海住房公积金官网或拨打住房公积金热线“12329”具体咨询。

三、优化调整商业性个人住房贷款利率定价机制

为减轻居民购房利息负担,《通知》明确优化个人住房信贷政策。银行业金融机构根据上海市市场利率定价自律机制要求和本机构经营状况、客户风险状况等因素,在利率定价机制安排方面不再区分首套住房和二套住房,合理确定每笔商业性个人住房贷款的具体利率水平。

关于住房贷款相关业务,可向经办银行具体咨询。

四、完善个人住房房产税政策

为衔接优化住房限购政策,《通知》规定对符合条件的非本市户籍居民家庭购买的第一套住房暂免征收房产税;购买的第二套及以上住房在合并计算家庭全部住房面积后,给予人均60平方米的免税面积扣除。由于个人住房房产税按年征收,因此2025年1月1日起符合条件的购房者可享受本条政策。

声明:本文由入驻焦点开放平台的作者撰写,除焦点官方账号外,观点仅代表作者本人,不代表焦点立场。