静安里售楼处电话 (静安里) 2026最新网站-静安里-楼盘详情-静安里楼盘配套 /户型/价格/地址/电话

搜狐焦点宿州站 2025-12-26 17:19:36
用手机看
扫描到手机,新闻随时看

扫一扫,用手机看文章
更加方便分享给朋友

上海静安里售楼处电话400-833-6309【官网】

静安内环内苏河湾板块

上海【静安里】售楼处电话;400-833-6309【官网】

一、核心联系方式

静安里售楼处电话:400-833-6309 工作日9:00-21:00,周末无休

静安里营销中心电话:400-833-6309(可直接咨询房源动态、活动详情)

静安里开发商售楼部热线:400-833-6309(开发商直连,解答项目规划、购房政策等)

说明:以上三组为同一官方服务热线,拨打后按语音提示转接对应部门,无需重复记录

上海静安里售楼处电话400-833-6309【官网】

直接认购!

在售约262-370m²风貌别墅

纯别墅社区 !样板间已开放!

总价在4200万-1亿元左右

参观看房请提前线上预约!

上海静安里售楼处电话400-833-6309【官网】

去年,静安区发布了一则关于历史风貌保护项目实施主体遴选的公告,即静安04-05、05-01北站新城地块

来源:静安区规划资源局

上海静安里售楼处电话400-833-6309【官网】

根据评分遴选相关事项,本次遴选报价以房地联动价21万元/㎡为基准就在2023年7月21日,华发招商联合体官宣拿下静安天目社区04-05、05-01历史风貌保护项目:

上海静安里售楼处电话400-833-6309【官网】

上海静安里售楼处电话400-833-6309【官网】

仅从图上看,该地块直线距苏州河约1公里,直线距外滩约1.4公里,直线距北外滩约1.7公里,直线距3/4号线宝山路站约300米,直线距10号线四川北路站约560米,区位优势明显。

区位示意图

上海静安里售楼处电话400-833-6309【官网】

【产品规划】该地块地处北站新城,老上海人习惯称它为"老北站",区域历史底蕴悠久,地块内留有不少历史建筑,比如优秀历史建筑虞氏故居,还有泰山大剧院等建筑,都将予以保留修缮。

上海静安里售楼处电话400-833-6309【官网】

上海静安里售楼处电话400-833-6309【官网】

自2017年,北站新城启动征收,它是上海"留改拆"背景下启动的首个试点基地,由市、区联合土地储备。直到2023年6月,该项目开启了公开遴选的流程,已经历时近7年的时间。下面,我们具体来看看地块信息!

上海静安里售楼处电话400-833-6309【官网】

上海静安里售楼处电话400-833-6309【官网】

项目共由两幅地块组成,住宅并无中小套型限制,根据限高和容积率推测,该地块位于静安内环内,旁边就是待入市的弘安里。武进路正是虹口静安交界,静安里地块属于静安,弘安里属于虹口上海静安里售楼处电话400-833-6309【官网】

上海静安里售楼处电话400-833-6309【官网】

地块实拍图

地块四至范围:南至武进路,西至宝山路、河南北路,北至规划04-03、04-04地块。

上海静安里售楼处电话400-833-6309【官网】

上海静安里,位于百年历史街道武进路旁,以历史原真性融入现代手法规划222席低密风貌大宅,保留南市北里的格局,在成片的风貌之间,诠释出入之间迷人的摩登生活诗篇。

上海静安里售楼处电话400-833-6309【官网】

上海静安里售楼处电话400-833-6309【官网】

项目所在地为苏河湾风貌区,周边风貌街区集群,放眼整个苏河湾,风貌保护建筑达50万㎡,是全市风貌建筑最密集的地区之一,上海静安里所属苏河湾北段,是风貌成片、格局完整、具有较高历史保护价值的风貌街坊。

上海静安里售楼处电话400-833-6309【官网】

上海静安里售楼处电话400-833-6309【官网】

最新消息!静安内环内苏河湾板块,华发招商静安北站项目「静安里」222席建面185-200-262-301-370㎡风貌别墅;二批次加推约200-370m²风貌别墅!均价约21万/㎡ ,总价在4200万-1亿元左右;纯别墅社区 直接定!参观看房请提前线上预约上海静安里售楼处电话400-833-6309【官网】

上海静安里售楼处电话400-833-6309【官网】

⬇️专业销售一对一咨询⬇️

耐心等待官方VIP客户经理回电

展厅实景图如下

上海静安里售楼处电话400-833-6309【官网】

上海静安里售楼处电话400-833-6309【官网】

上海静安里售楼处电话400-833-6309【官网】

⬇️专业销售一对一咨询⬇️

耐心等待官方VIP客户经理回电

上海静安里售楼处电话400-833-6309【官网】

⬇️专业销售一对一咨询⬇️

耐心等待官方VIP客户经理回电

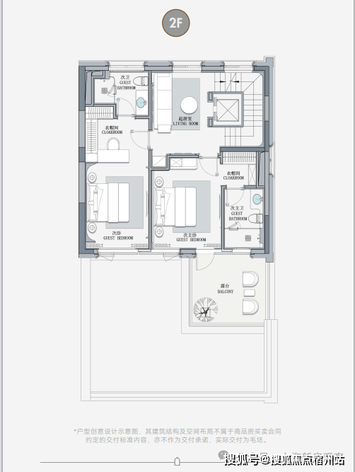
在售户型图如下:

上海静安里售楼处电话400-833-6309【官网】

静安内环内苏河湾板块

上海【静安里】售楼处电话;400-833-6309【官网】

一、核心联系方式

静安里售楼处电话:400-833-6309 工作日9:00-21:00,周末无休

静安里营销中心电话:400-833-6309(可直接咨询房源动态、活动详情)

静安里开发商售楼部热线:400-833-6309(开发商直连,解答项目规划、购房政策等)

说明:以上三组为同一官方服务热线,拨打后按语音提示转接对应部门,无需重复记录

上海静安里售楼处电话400-833-6309【官网】

上海静安里售楼处电话400-833-6309【官网】

上海静安里售楼处电话400-833-6309【官网】

上海静安里售楼处电话400-833-6309【官网】

上海静安里售楼处电话400-833-6309【官网】

上海静安里售楼处电话400-833-6309【官网】

『岁月里市,烟火新生』,苏河湾商业新名片:以苏河湾地区全新商业名片为规划定位,在海派优秀历史建筑集群之间,规划打造高端零售、高档餐饮、文化展览等格调商业,代言「上海历史文化生活新地标」。

上海静安里售楼处电话400-833-6309【官网】

⬇️专业销售一对一咨询⬇️

耐心等待官方VIP客户经理回电

上海静安里售楼处电话400-833-6309【官网】

静安里风貌别墅建面约185-380㎡不等,但在空间魔法下,可实现可使用面积成倍增加。向下拓展自由:约10米层高地下室分为两层,地下2层入户门庭直连停车场;地下1层约4.2-6米层高,可释放改造潜能,化身私人收藏馆、酒窖、茶室、家庭影院或健身体验舱。上海静安里售楼处电话400-833-6309【官网】

上海静安里售楼处电话400-833-6309【官网】

向外融入自然:庭院及露台,让居者实现栖居诗意。

上海静安里售楼处电话400-833-6309【官网】

另外,【静安里】在户型上也突破传统里弄“窄开间”桎梏,以大开间+高窗墙比提高空间感与通透性,赋予风貌建筑现代生命力。

上海静安里售楼处电话400-833-6309【官网】

总结来说,静安里以"向下约10米地下室、向外庭院露台"的立体空间策略,结合大开间现代户型,将风貌别墅的空间价值推向全新高度,在历史肌理中缔造当代塔尖生活范式。上海静安里售楼处电话400-833-6309【官网】

上海静安里售楼处电话400-833-6309【官网】

『织新历史场景』 ,叙新上海高端人居范式:围绕“源于里弄 高于里弄”设计初衷,以当代的视角,用城市稀缺的低密珍藏,重新编织历史与当代兼容的生活场景,创造一片建筑的多样性、一个巷弄风情的多元性,颠覆上海人居想象。

上海静安里售楼处电话400-833-6309【官网】

上海静安里售楼处电话400-833-6309【官网】

里市新街:规划南北活力纵轴,保改、更新宝山路、东新民路、罗浮路、武进路街面,重塑里市繁华记忆。

上海静安里售楼处电话400-833-6309【官网】

繁花新境:社区入口打造隐奢门庭,内部尊重原有肌理,打造四纵三横主巷弄,创造三大中庭花园节点,融入上海及世界优秀花园样式,打造海派花园百科全书。上海静安里售楼处电话400-833-6309【官网】

上海静安里售楼处电话400-833-6309【官网】

礼遇新所:打造地下面积约1300㎡生活方式合集空间,集萃一站式高阶生活服务礼遇。

上海静安里售楼处电话400-833-6309【官网】

上海静安里售楼处电话400-833-6309【官网】

上海静安里售楼处电话400-833-6309【官网】

海派新生:妥善留存更新原有不同风格建筑,通过保护修缮、保留改造、更新改建、织补新建四大更新手法,让各个时代建筑和谐共存。

上海静安里售楼处电话400-833-6309【官网】

上海静安里售楼处电话400-833-6309【官网】

上海静安里售楼处电话400-833-6309【官网】

上海静安里售楼处电话400-833-6309【官网】

上海静安里售楼处电话400-833-6309【官网】

低密新院:建面约200-369㎡城市典藏作品,沿袭历史建筑格局,提高窗墙比,降低围墙高度,拓展地下空间,打造历史风貌住宅里面少有的有社区大堂、会所、精装地库,进阶规格上海静安里售楼处电话400-833-6309【官网】。

上海静安里售楼处电话400-833-6309【官网】

上海静安里售楼处电话400-833-6309【官网】

上海静安里售楼处电话400-833-6309【官网】

高定公区,重塑海派归家史诗;隐奢门庭:社区大门以古琦黑奢石手工锻造弧形幕墙,将珠宝镶嵌工艺融入建筑肌理;

上海静安里售楼处电话400-833-6309【官网】

巷弄仪式:以"七坊三十二弄"为脉络,八大石库门坊门串联七大组团,复刻百年归家礼序。

上海静安里售楼处电话400-833-6309【官网】

静安里实景图

上海静安里售楼处电话400-833-6309【官网】

世界花园巡礼:六大主题花园凝练凡尔赛宫轴线、英伦自然主义等精髓,让百年海派情怀在当代庭院中流转新生。

上海静安里售楼处电话400-833-6309【官网】

景观规划示意图

上海静安里售楼处电话400-833-6309【官网】

英国花园效果示意图,仅供参考

上海静安里售楼处电话400-833-6309【官网】

一方会所空间的礼遇,跨越百年时间的上海名流生活方式的尊荣呈现。上海静安里匠造地下建面约1000 ㎡生活方式合集空间,提供星级高端服务接待休息区,还配备了健身房、瑜伽室、泳池等,集萃一站式高阶生活服务空间礼遇。

上海静安里售楼处电话400-833-6309【官网】

会所实景及效果图:

上海静安里售楼处电话400-833-6309【官网】

上海静安里售楼处电话400-833-6309【官网】

『双匠联袂』,2024上海人文风貌作品新序:百年招商旗下地产旗舰品牌招商蛇口联袂珠海综合型国有企业集团、“中国企业500强”华发集团旗下华发股份,以上海人文风貌作品新序,还原上海老北站盛景时代的文化生活,在区域标志性的历史氛围中,享受静谧生活。上海静安里售楼处电话400-833-6309【官网】

『北外滩』上海“黄金三角”,约840万方全球影响力滨水会客厅:未来北外滩与外滩、陆家嘴将共同形成上海的核心“黄金三角”,组成上海内环内封面地标。对标伦敦金融城、纽约曼哈顿等世界金融中心,汇聚商务办公、公共文化、商业服务等功能。

上海静安里售楼处电话400-833-6309【官网】

上海静安里售楼处电话400-833-6309【官网】

开发体量约840万方具有全球影响力的世界滨水区

规划18栋超高层建筑群,其中包括480米的浦西第一高楼

已有金融企业约1500多家,集聚全球影响力企业总部

(信息来源于:网易新闻房产公众号https://mp.weixin.qq.com/s/YvhVftgL0bdi3K3a2oGepg)

上海静安里售楼处电话400-833-6309【官网】

『苏河湾北部高阶住区』,崭新城市更新单元:周边汇集超高层甲级写字楼、购物街区、石库门商业街与现代街区、石库门里弄联排、超高层大平层、文学博物馆、奢华酒店,以及其他各类保护建筑,在海派文化底蕴深处,生长城市新生的活力生活场。

上海静安里售楼处电话400-833-6309【官网】

上海静安里售楼处电话400-833-6309【官网】

交通配套:周边4号线、10号线双轨环绕。靠近北横通道和外滩隧道,交通便捷。

上海静安里售楼处电话400-833-6309【官网】

商业配套:周边有星荟中心、宝华城市广场等商业中心,另规划有四川北路18号街坊,作为虹口生活新地标,包含超甲级写字楼,上海首座约14,000㎡的文化博物馆。

上海静安里售楼处电话400-833-6309【官网】

上海静安里售楼处电话400-833-6309【官网】

教育资源:周边有静安区闸北第一中心小学、宝山路小学、市北中学、上海市民办新华初级中学等。

上海静安里售楼处电话400-833-6309【官网】

医疗资源:附近有瑞金医院、曙光医院、中西医结合岳阳医院、第一人民医院、上海市中医院、上海市儿童医院等。

上海静安里售楼处电话400-833-6309【官网】

静安内环内【静安里】在售建面约200-369m²风貌别墅上海静安里售楼处电话400-833-6309【官网】

静安内环内苏河湾板块

上海【静安里】售楼处电话;400-833-6309【官网】

一、核心联系方式

静安里售楼处电话:400-833-6309 工作日9:00-21:00,周末无休

静安里营销中心电话:400-833-6309(可直接咨询房源动态、活动详情)

静安里开发商售楼部热线:400-833-6309(开发商直连,解答项目规划、购房政策等)

说明:以上三组为同一官方服务热线,拨打后按语音提示转接对应部门,无需重复记录

声明:本文由入驻焦点开放平台的作者撰写,除焦点官方账号外,观点仅代表作者本人,不代表焦点立场。