☑️☑️中鹰黑森林售楼处电话:400-8377-020☑️☑️✅一生只搬一家,上海的世外桃源
✅拥有12万原生态森林
✅始终走在低碳住宅的前沿
✅领先世界卫生组织定义的健康科技住宅
六恒环保健康科技住宅 100%绿化率
☑️☑️中鹰黑森林售楼处电话:400-8377-020☑️☑️

☑️☑️中鹰黑森林售楼处电话:400-8377-020☑️☑️
一、基本信息:
开发商:上海中鹰置业有限公司
物业公司:上海中鹰黑森林物业有限公司
占地面积:约9.5万㎡
建筑面积:约27万㎡
产权年限:70年
楼栋数:16幢(本次销售房源分布在二、三期高层住宅)
总户数:1264(本次保留房源20套左右)
得房率:本次销售房源得房率为76-80%
总车位配比:1:1.2
绿化率:40%
均价:16w/㎡
能源费:15.8元/㎡/月【含中央能源费(毛细管冷暖系统、新风系统、地源热泵),中央净水、热水系统(热水免费供应),物业费等】
梯户比:2T2H
交付标准:高定奢装
交房时间:现房交付
☑️☑️中鹰黑森林售楼处电话:400-8377-020☑️☑️
生活配套:
商业:乐购,家乐福,巴黎春天,虎城嘉年,华等商业中心
银行:工商银行,建设银行,光大银行,交通银行
医院:万里中医院,天佑医院,同济大学附属医院。
教育配套:
童的梦双语幼儿园、晋元高级中学附属小学、初中,晋元高级中学。
交通配套:
交通状况:5分钟上内环,3分钟上中环
轨道交通:7号线(新村路站),11号线(上海西站)

☑️☑️中鹰黑森林售楼处电话:400-8377-020☑️☑️
二、主推房:
1002 3房 250平 南北通透 4014万
https://wxa.wxs.qq.com/tmpl/ov/base_tmpl.html
1⃣️客厅面宽8.5米,全落地窗设计沪上少有;
2⃣️中区楼层:中区的视野越过树梢,千米无遮挡,采光和通风效果特别好,客厅直面中央景观绿地,视野开阔 媲美纽约中央公园;
3⃣️主卧面宽8.5米,全落地窗观视野无遮挡 观自然水域 视野开中鹰黑森林项目
☑️☑️中鹰黑森林售楼处电话:400-8377-020☑️☑️
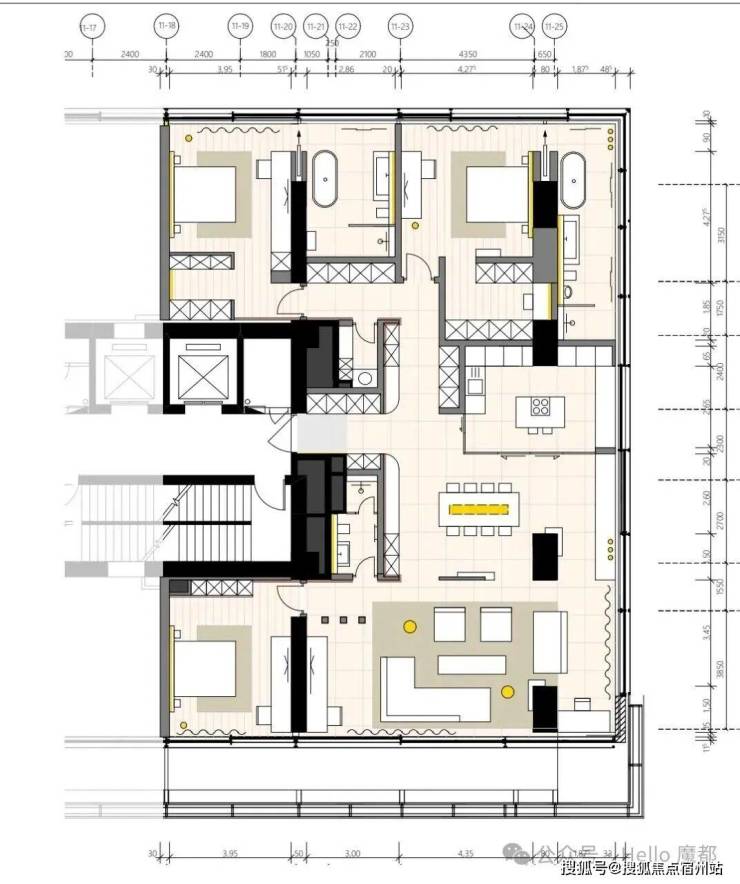
三、户型图和楼栋位置:
250平3房户型图

312平3房户型图:

☑️☑️中鹰黑森林售楼处电话:400-8377-020☑️☑️
实拍视野南向:

☑️☑️中鹰黑森林售楼处电话:400-8377-020☑️☑️
实拍视野北向:

四、室内视频(18层样板间带露台)



☑️☑️中鹰黑森林售楼处电话:400-8377-020☑️☑️



☑️☑️中鹰黑森林售楼处电话:400-8377-020☑️☑️
五、【中鹰黑森林项目价值】
一、【六恒健康科技住宅】
全新升级的六恒系统——恒温·恒湿·恒氧·恒洁·恒静·恒舒,缔造优质的室内空气环境。四管制毛细管冷暖辐射技术与置换式医用级新风系统,开创了住宅“无空调”的新时代;“藏”于地下的中央能源系统,中央化管理所有能源,高效、低碳、节能。
https://wxa.wxs.qq.com/tmpl/ov/base_tmpl.html
1.瑞士Willers(威乐斯)四管制毛细管辐射 (毛细管辐射系统是一种隐形的空调系统,做到了“无形、无声、无风”,让温暖和凉爽在屋内流淌,尤其适合小孩、老人和过敏体质人群)
2.在天花板与地面同时铺设毛细管的管道,夏季由吊顶辐射供冷,冬季由地面辐射供热,贴心满足中国人“暖脚头凉”的特质。
☑️☑️中鹰黑森林售楼处电话:400-8377-020☑️☑️
2.毛细管辐射冷暖,能确保室内温度全年维持在20~26℃(人体最健康适宜的温度)
3.置换式新风系统 :每户均由独立变风量新风机组和送风排管组成,每0.9小时置换一次空气,每天置换可达25次,超过五星级酒店的标准。
4.通过新风系统空气加湿/除湿,实现对室内恒湿环境的维系,是室内湿度基本保持在30%-70%
二、【100%绿化覆盖率 原生态森林】
移植11000棵成年乔木,培育12万方森林,连同万里板块10万中央绿地,形成一条长方形的“内外绿廊”,如今,树木高度已达到15米。在上海昂贵的土地上,在短短13年间,造出了这样一片茂密的森林。
通过“树木、河流、屋顶、楼底”的全方位绿色覆盖,形成了绝无仅有的森林生态,完成了100%的超高绿化覆盖率,活化土地,循环共生,让现代的璀璨建筑镶嵌于绝无仅有的森林“活”生态中。
☑️☑️中鹰黑森林售楼处电话:400-8377-020☑️☑️
三、【包豪斯现代极简风格,户型自由定制】
项目以德国包豪斯风格为建筑灵感,创新打造全落地玻璃墙高层住宅,由德国Obermeyer建筑设计事务所与德国Dibelius建筑事务所联袂设计。厚板框架建筑结构,开创了住宅自由定制户型的新模型(项目的科技系统都在地面或是顶棚,后期户型可以自己调整)
“沦陷”在森林里的住宅
德系科技住宅中鹰黑森林三期
屋顶花园系统 绿化率100%
约200-581㎡ 总价2500万
12万方森林+前无古人科技系统

☑️☑️中鹰黑森林售楼处电话:400-8377-020☑️☑️
不可再生的城市绿肺
说到如今的地产开发,大家都会说到一个词,那就是---高周转
从拿地到上市最快十个月就能完成,而中鹰用十多年,只是打造了上海一个内中环项目,在大家看来进度无疑是极其缓慢的。

☑️☑️中鹰黑森林售楼处电话:400-8377-020☑️☑️

而说到中鹰黑森林,大家都知道好,可到底好在哪里?都说细节体现用心,用心才出品质,那么一起来看看“魔鬼”细节。其实最初的黑森林并不是如此,开发初期整个设计为美式豪宅风格。
但在一次一次的颠覆中,最初小区内的硬地坪、喷泉、走廊全部敲掉,河流水景填实,全部种上11000棵成年香樟树,自造12万方森林海。
森林宽度达到130米,1公里长,体量足有4个半淮海公园大小,整个绿化率达到100%。整个社区都是绿色森林,树海环抱,连底层都挑空6~9米,种植绿色,让每户人家都能“开窗见树”,让房子生长在森林之上。

☑️☑️中鹰黑森林售楼处电话:400-8377-020☑️☑️

☑️☑️中鹰黑森林售楼处电话:400-8377-020☑️☑️
绿色森林能调节微气候,降低噪音(一条40米宽的森林带可降低噪音10~15分贝)、阻隔尘埃(每公顷森林每年能吸附50~80吨粉尘),调节温度与湿度,净化空气,使人平静、舒服,并能杀灭众多病菌,实现人与自然和谐相处。在夏天,小区内温度甚至可以比外部低8℃左右。
来自未来的黑科技
中鹰黑森林只关注 健康,节能、环保、健康、科技、舒适:
拥有 8大系统34项专利科技
102种 世界顶级建材
56个 欧洲TOP品牌团队
完美契合了 WHO 定义的健康住宅
打造真正的科技人居豪宅

☑️☑️中鹰黑森林售楼处电话:400-8377-020☑️☑️


☑️☑️中鹰黑森林售楼处电话:400-8377-020☑️☑️

你不曾见过的样板房
中鹰黑森林的所有样板房从来不需要穿鞋套参观,都按照实际拎包入住标准打造,网络水电全通;墙纸、地板、涂料等装修品牌及材料均与交付标准一样,选用进口环保品牌,确保绿色无污染无甲醛。
「中鹰黑森林」 的大平层都由欧洲顶级设计师执掌,并提供了北欧风范的奢华装修标准。全部个性化定制哦!你的房子户型你做主,前所未有的体验!

☑️☑️中鹰黑森林售楼处电话:400-8377-020☑️☑️


☑️☑️中鹰黑森林售楼处电话:400-8377-020☑️☑️


☑️☑️中鹰黑森林售楼处电话:400-8377-020☑️☑️



☑️☑️中鹰黑森林售楼处电话:400-8377-020☑️☑️


☑️☑️中鹰黑森林售楼处电话:400-8377-020☑️☑️

☑️☑️中鹰黑森林售楼处电话:400-8377-020☑️☑️
中鹰黑森林
位于普陀内中环 万里板块
提供近乎100%森林覆盖率
尊享全私人定制个性划分空间
建面约 200-581㎡大平层
均价14万/㎡ 总价约2500万起
德式精装科技系统 生态健康居所
样板房线上火热预约

☑️☑️中鹰黑森林售楼处电话:400-8377-020☑️☑️
【普陀TOP1新房】中鹰黑森林:约201-581㎡德系科技住宅,总价2500万享100%生态健康生活!附官方预约通道!
沪上好房通已关注
分享点赞在看
已同步到看一看写下你的评论
视频详情
中鹰黑森林在售房源列表▼

☑️☑️中鹰黑森林售楼处电话:400-8377-020☑️☑️

☑️☑️中鹰黑森林售楼处电话:400-8377-020☑️☑️
中鹰黑森林 项目信息
•项目名称: 中鹰黑森林
•项目地址: 上海市新村路
项目名称:
•开 发 商: 上海中鹰置业有限公司
•物业公司: 上海中鹰黑森林物业有限公司
•产 权: 70年【住宅】
•交房标准: 带装修【2梯2户】
• 能 源 费: 15.8元/㎡/月【含中央能源费(毛细管冷暖系统、新风系统、地源热泵),中央净水、热水系统(热水免费供应),物业费等】
• 面 积: 200.96㎡ -𝟐𝟓𝟎.𝟏𝟒㎡(交付三房两厅三卫)
𝟐𝟓𝟖.𝟎𝟑㎡-𝟑𝟏𝟐.𝟔𝟑㎡- 473.87㎡ -𝟓𝟖𝟏.𝟎𝟕㎡(可定制)
• 均 价: 14万/㎡
• 拿地时间: 𝟐𝟎𝟎𝟏年𝟔月𝟐𝟎号(首期开盘2006年)
• 交房时间: 现房交付

☑️☑️中鹰黑森林售楼处电话:400-8377-020☑️☑️
☑️☑️中鹰黑森林售楼处电话:400-8377-020☑️☑️
【普陀TOP1新房】中鹰黑森林:约201-581㎡德系科技住宅,总价2500万享100%生态健康生活!附官方预约通道!
沪上好房通已关注
分享点赞在看
已同步到看一看写下你的评论
视频详情

☑️☑️中鹰黑森林售楼处电话:400-8377-020☑️☑️
项目俯瞰图
中鹰黑森林名字
源自德国的黑森林
德国黑森林名来自德语的Schwarzwald,意思是“黑色的森林”,是德国西南部著名的自然风景区。在连绵起伏的群山间,漫山遍野树木林立,叶色绿得发黑,从高处远看这片层层叠叠的密林,犹如一片漫无边际的黑幕-黑森林。

☑️☑️中鹰黑森林售楼处电话:400-8377-020☑️☑️

项目实景图
【中鹰·黑森林】 项目总建筑面积 27 万平方米,由5栋叠加别墅和 11 栋 16 层高层、高层公寓构成 , 小区规划采用了原生态森林公园布局,11000棵成年香樟树,豪华订制健康生活理念,让业主体验到全方位景观感受。 所有房源均采用一梯一户设计,充分保障客户的私密性和尊贵感。

☑️☑️中鹰黑森林售楼处电话:400-8377-020☑️☑️
☑️☑️中鹰黑森林售楼处电话:400-8377-020☑️☑️
【普陀TOP1新房】中鹰黑森林:约201-581㎡德系科技住宅,总价2500万享100%生态健康生活!附官方预约通道!
沪上好房通已关注
分享点赞在看
已同步到看一看写下你的评论
视频详情

森林宽度达到130米,1公里长,体量足有4个半淮海公园大小,整个绿化率达到100%。

☑️☑️中鹰黑森林售楼处电话:400-8377-020☑️☑️
中鹰黑森林实景图
整个社区都是绿色森林,树海环抱, 连底层都挑空6~9米 ,种植绿色,让每户人家都能“开窗见树”,让房子生长在森林之上。

☑️☑️中鹰黑森林售楼处电话:400-8377-020☑️☑️
中鹰黑森林实景图
绿色森林能调节微气候, 降低噪音 (一条40米宽的森林带可降低噪音10~15分贝)、 阻隔尘埃 (每公顷森林每年能吸附50~80吨粉尘), 调节温度与湿度,净化空气,使人平静、舒服 ,而且可以降低人体的温度1-2℃,并能杀灭众多病菌,实现人与自然和谐相处。

项目实景图


☑️☑️中鹰黑森林售楼处电话:400-8377-020☑️☑️
【中鹰·黑森林】 的四面墙体, 全由瑞士Air-lux技术的Low-E四层玻璃打造 ,由于拥有两层氩气中空层, 橡皮条密闭技术达太空舱级 ,且最大尺寸达6×3米,使得这种超高强度、隔热隔音的大玻璃,有了“透明墙”的美称。全视野的地窗系统,更让窗外的森林景致随时映入眼帘,方才不辜负 成长10年的森林景色 。


☑️☑️中鹰黑森林售楼处电话:400-8377-020☑️☑️

☑️☑️中鹰黑森林售楼处电话:400-8377-020☑️☑️

☑️☑️中鹰黑森林售楼处电话:400-8377-020☑️☑️
☑️☑️中鹰黑森林售楼处电话:400-8377-020☑️☑️
项目采用先进的 屋顶花园系统,多达11层的屋顶生态科技,种植花草,形成屋顶生态 ,与森林环境共同形成中鹰私享的城市生态微气候,根除了水泥森林热岛效应,促进气候循环,提供动植物栖息地。

☑️☑️中鹰黑森林售楼处电话:400-8377-020☑️☑️
☑️☑️中鹰黑森林售楼处电话:400-8377-020☑️☑️
【中鹰·黑森林11号】 创新采用“厚板框架结构”,力邀德国顶尖的独立工程咨询公司——Obermeyer(欧博迈亚)打造了上海首个高层纯住宅自由分割大平层。
在框架结构的基础上,又增加了一层“厚板”,即“上翻梁楼面体系”,这一巧妙布局,为其他功能系统、设备管线提供了解决方案,上述的新风管道、同层排水等都能在厚板中完成。