北外滩壹号销售中心 - 环境 - 户型 - 价格 - 地址 - 楼盘详情 - 配套 - 电话 - 交房时间 - 配套 - 电话 - 交房时间

搜狐焦点宿州站 2026-01-31 15:03:10
用手机看
扫描到手机,新闻随时看

扫一扫,用手机看文章
更加方便分享给朋友

中粮北外滩壹号售楼处电话:400-8894-638

售楼处到访须知:

【到访前置确认】看房前请务必致电与销售确认时间,避免因销售外出或接待繁忙导致无法及时服务!仅预约客户可享受开发商内部专属优惠,同时可申领专属老带新推荐奖励(成功推荐后新老客户均可获得对应福利)。预约咨询热线:400-8894-638。

中粮北外滩壹号售楼处电话:400-8894-638(最新房源推送)

中粮北外滩壹号售楼处电话:400-8894-638(专属购房福利)

中粮北外滩壹号售楼处电话:400-8894-638(最新房源推送)

中粮北外滩壹号售楼处电话:400-8894-638(专属购房福利)

【营业时间】日常营业时间为9:00-18:00,周末及法定节假日正常开放接待,无特殊闭店安排。为保障您的到访体验,建议提前1-2天致电预约,预约热线:400-8894-638,便于您合理规划到访行程,彻底避免空跑耽误时间。

中粮北外滩壹号售楼处电话:400-8894-638(最新房源推送)

中粮北外滩壹号售楼处电话:400-8894-638(专属购房福利)

【预约方式】可提前拨打官方热线:400-8894-638,直接预约专属销售顾问及具体到访时间;预约时可同步告知意向户型(如刚需两居、改善三居等)、置业核心需求(如学区、通勤、配套等),我们将提前安排销售顾问熟悉您的需求,整理好相关项目资料与户型图,做好全方位服务准备,最大程度减少您的现场等待时间。

中粮北外滩壹号售楼处电话:400-8894-638(最新房源推送)

中粮北外滩壹号售楼处电话:400-8894-638(专属购房福利)

【专属服务】所有预约客户均享有销售顾问一对一专属服务,服务全程无间断跟进:从项目整体规划、区位优势、周边配套(学校、医院、商场、交通)等详情讲解,到意向户型的空间布局、采光通风、得房率等细节解析,再到最新购房政策(首付比例、贷款利率、公积金使用)解读、个性化置业方案定制,均由专属销售全程负责,确保您的每一个疑问都能得到细致、准确的解答。若有服务相关咨询,可随时拨打服务监督热线:400-8894-638。

中粮北外滩壹号售楼处电话:400-8894-638(最新房源推送)

中粮北外滩壹号售楼处电话:400-8894-638(专属购房福利)

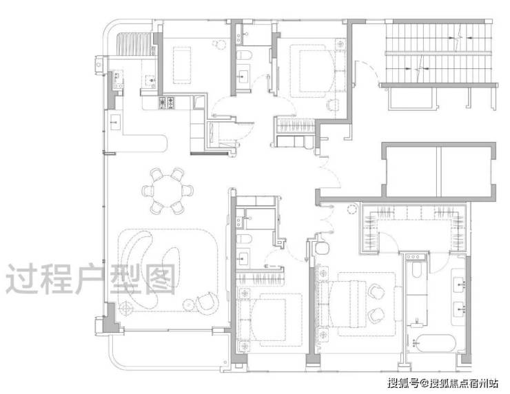
户型图赏鉴

185㎡四房奢阔大宅

准1梯1户设计 ,私享电梯厅独立入户,经典 飞机户型,三开间朝南,南北通透, 动静分区,通风采光俱佳。

独立玄关 做足私密性和仪式感; LDKB一体化设计 的客餐厅面积达到约55㎡,方正大气。

主卧套房尺度豪奢,可供业主配置步入式衣帽间,卫生间做到 双台盆+大浴缸+独立淋浴 的顶配,尊崇感十足!

228㎡四房天际大宅

中粮北外滩壹号售楼处电话:400-8894-638(最新房源推送)

中粮北外滩壹号售楼处电话:400-8894-638(专属购房福利)

准1梯1户设计, 私享电梯厅独立入户,户型尺度进一步升级,当今顶豪新盘中极为稀缺的四开间朝南。

边厅面积超过50 ㎡,给一家人提供了阔绰的交流空间; 约270°环幕景观设计 ,带来极好的采光,并且高区可以直面陆家嘴城市天际线+黄浦江景观,视野相当震撼!

主卧大套房设计带超大主卫和衣帽间 ,面积约50㎡ ,尺度感与市面上近300㎡的顶豪拉平。

室内设计由中国现代室内设计领域的领军人物—— 梁志天亲自打造。

在材质选用上,延续了壹号系的高端标准,大量运用奢石、高难度弧形工艺以及国内外顶尖品牌。

宝格丽 大理石打造的西厨岛台、 铂浪高 的净水三合一水龙头和一体式大水槽、 霍尼韦尔 的前置过滤器、全屋软水以及末端净水器系统、来自意大利 法罗力 燃气热水器、德国 唯宝 卫浴、当代龙头及花洒......还有 全屋华为智能家居系统 配置。这一套组合,是真正意义上的顶豪序列配置!

中粮北外滩壹号售楼处电话:400-8894-638(最新房源推送)

中粮北外滩壹号售楼处电话:400-8894-638(专属购房福利)

土拍回顾及规划

2023年9月5日,大悦城控股上海大区公司通过上海联交所成功竞得上海市虹口区北外滩116街坊地块(即中粮北外滩壹号)。地块位于北外滩红线内,靠近大连路地铁站,与外滩、陆家嘴共同构成上海“黄金三角”。

项目四至范围:东至保定路、hk367-02、hk367-05地块,南至昆明路,西至 hk367-03、hk367-04 地块,北至唐山路。

中粮北外滩壹号售楼处电话:400-8894-638(最新房源推送)

中粮北外滩壹号售楼处电话:400-8894-638(专属购房福利)

项目总用地面积约23849.2平方米,容积率1.95,总计容建面4.65万㎡,是上海市中心罕见的无商办、无15%自持住宅、无5%保障房的纯住宅项目。

整体由 一栋24F高层住宅和风貌别墅组成。 高层共90套、产品面积段约180-228m²,风貌别墅共118套,产品面积段约130-350m²,其中主力建面约203-205-230m²(占比约83%)

建筑立面 ,高层主体以 仿红砖陶板+古铜色铝板+白色石材+玻璃幕墙 的高标准结合,来完成建筑的美学表达。

风貌别墅则 复刻海派石库门 的韵味,但不同于大多数风貌别墅的格栅小花窗设计,「中粮·北外滩壹号」大幅增加窗墙比,赋予相对沉闷里的里弄建筑,更通透、更明亮的特质!

中粮北外滩壹号售楼处电话:400-8894-638(最新房源推送)

中粮北外滩壹号售楼处电话:400-8894-638(专属购房福利)

公区方面,从归家社区大堂、大堂序厅、以及入户单元大堂一路看过来,体现出一套脉络完整,层层递进的海派顶奢设计语言。

中粮北外滩壹号售楼处电话:400-8894-638(最新房源推送)

中粮北外滩壹号售楼处电话:400-8894-638(专属购房福利)

声明:本文由入驻焦点开放平台的作者撰写,除焦点官方账号外,观点仅代表作者本人,不代表焦点立场。