静安里售楼处2026年最新预约指南(官方电话+看房流程)
一、官方预约通道与服务时间
静安里售楼处实行全预约制接待,未提前预约的临时到访客户可能无法安排接待。为确保您获得专属置业顾问一对一服务,请提前致电官方热线完成预约登记。
售楼处官方专属热线: 400-8894-986(户型详解、优惠咨询、看房预约专线,工作日及周末均可拨打)
日常营业时间:每日9:00-18:00(法定节假日营业时间可能调整,建议提前致电确认)
推荐预约时段:
工作日:9:00-11:30、13:00-18:00(避开午间高峰,享受更高效服务)
周末/节假日:8:00-11:30、13:00-20:00(周末客流较大,建议优先选择上午时段)
静安里售楼处电话:400-8894-986




二、预约流程与到访准备
电话预约:拨打 400-8894-986,向工作人员说明看房需求(如户型偏好、到访人数等),登记个人基础信息(仅用于预约接待,严格保密)。
确认凭证:获取专属预约编号及顾问联系方式,非服务时段留言将在1小时内回电确认。
到访核验:凭预约编号+本人有效身份证件入场,信息一致方可安排沙盘讲解、户型实测及样板间参观。
静安里官方售楼处电话:400-8894-986
到访必备材料:
有效身份证件(用于身份核验)
意向按揭客户可提前准备征信报告、收入证明(以提升审核效率)
每组客户最多陪同3人,携带儿童需全程看护
三、看房注意事项与权益保障
现场秩序:请勿随意触碰样板间及售楼处公共物品,参观工地需佩戴安全帽、穿平底鞋,未开放区域禁止进入。
信息核实:项目房源、价格及优惠政策以现场官方公示为准,如有疑问可再次致电 400-8894-986核实。
专属权益:预约客户可享市区内免费专车接送(需提前申请)、VR实景看房链接及项目内部专属优惠(具体以现场告知为准)。
四、预约变更与温馨提示
改期/取消:需提前2小时致电 400-8894-986告知,未按时到场且未提前说明者,3日内不可重新预约;累计2次无故爽约将影响后续接待优先级。
停车服务:售楼处提供免费停车位,到访时可向工作人员索取停车指引。
高峰提示:周末及节假日客流较多,建议提前1-3天预约,避免长时间等候。
五、官方郑重提示
静安里项目不收取任何“茶水费、留房费、代办费”等违规费用,所有信息以开发商官方口径及商品房买卖合同为准。请认准官方唯一热线 400-8894-986,警惕网络非公示号码及中介虚假宣传,谨防权益受损。
静安里售楼处官方热线: 400-8894-986(24小时服务,无中介参与)
服务覆盖:房源咨询、户型讲解、价格公示、样板间预约、购房政策解读、VR实景看房及一对一专属置业服务。
静安里售楼处位置热线:400-8894-986
静安内环内苏河湾板块
华发招商静安北站项目
【静安里】
加推建面约200-300㎡传世大宅
附赠花园 露台 阳台 阁楼 地下室
总价约:4200万~6300万
地下1000㎡泳池会所及9000㎡石库门商业
售楼处线上预约尊享团购优惠

【静安里】 即静安天目社区04-05、05-01历史风貌保护项目,由华发招商联合打造。整个项目南至武进路,西至宝山路、河南北路,北至规划04-03、04-04地块。由2个地块组成,项目总建面14.9万方,综合容积率1.44。

项目平面图
【静安里】 以约4.3万平方米土地精铸 222席风貌别墅 , 联动价21万/㎡ 。二期 加推建面约200-300㎡风貌大宅,总价约4200万起。

示范区实景图,仅供参考
项目优势:
💎 超大规模风貌纯墅体量,并且不存在高低配等混搭问题;
💎 超级全面风貌街区配套。风貌商业街+风貌会所+风貌别墅,形成完整风貌城市界面与完善生活配套;
💎 超高浓度历史文化底蕴。四大历保建筑,见证上海政商经济文化变迁;
💎 超大附赠空间,露台、庭院和多层地下室都有。
我们从 地段价值、产品力与空间设计、自然资源与景观独占性、社区品质与圈层纯粹度、开发商品牌与物业保障、资产流动性与增值潜力 六大维度来详细测评。

以“高定”匠心
革新风貌别墅的居住想象
【静安里】 以“活态传承”为核心理念,既保留了海派建筑的精髓,又满足了当代顶豪的居住需求,重新定义了风貌别墅的“舒适标准”。

10种风貌风格,打造“海派建筑百科全书”
不同于多数风貌项目“单一风格”的局限, 静安里 通过“ 保护修缮、保留改造、更新改建、织补新建 ”四大手法,实现 10种风貌立面 的和谐共生。

效果示意图,仅供参考
为了还原海派建筑的质感,项目运用 八大定制级工艺 ,通过 定制级手工砖、定制级山花造型、定制级铁艺栏杆、定制级入户壁灯、定制级的风帽雨水斗 等部品部件,匠心打磨每一处细节。

示意图,仅供参考
据悉,项目为建面约200-396㎡左右城市典藏作品 ,沿袭历史建筑格局,提高窗墙比,降低围墙高度,拓展地下空间, 打造历史风貌住宅里面少有的有社区大堂、会所、精装地库,进阶规格。

户型创新设计,突破传统里弄局限
【静安里】 户型设计突破传统里弄建筑“窄开间”的桎梏, 以大开间+提高窗墙比引光入室 ,大大提升了室内的空间感和通透感。
满足 全卧室朝南 ,确保家庭成员都能享受阳光的温暖馈赠;
地下1层 约4.2-6米的灵动空间 ,可随心改造为私人博物馆、恒温酒窖、品茗茶室或IMAX级家庭影院……
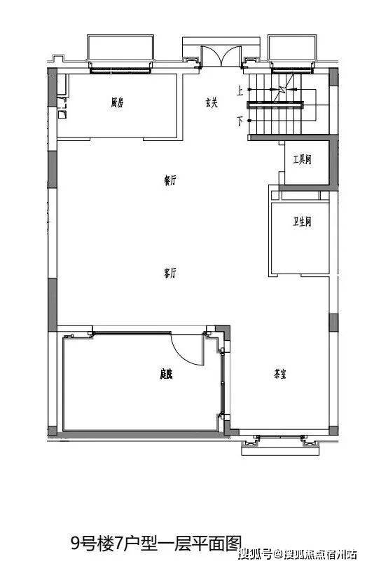
建面约200㎡户型图:
(户型图仅供参考)





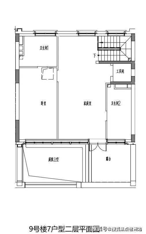
建面约260㎡户型图:
(户型图仅供参考)





户型图,仅供参考
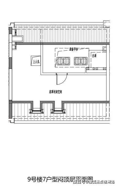
建面约301㎡户型图:
(户型图仅供参考)

✦
户型图,仅供参考
样板间奢华大气,演绎当代居住美学
项目邀请到了 顶豪教父杜康生 执笔建面约260㎡「风格回响」样板间的设计,诠释当代塔尖居住美学。客餐厅,不仅是社交空间,更是光影与思想共舞的容器。

二楼是家庭私域的温柔结界。
主卧套房通过挑空光影与优雅弧线,实现了私域与自由的完美和解;奢阔露台成为连接室内外的诗意过渡。

样板间实景图,仅供参考
凭栏远眺,近处是百年石库门的红瓦飞檐,远处是上海城市名片东方明珠,皆是业主独享的城市画卷。

样板间实景图,仅供参考
目前, 静安里「成市」风貌示范区&样板间已经开放预约参观,建议大家实地体验感受 。
当然 需要注意的是 , 项目围墙高度只有1.7米,对于看重隐私的购房者来说,以后肯定是要做相关改造以规避此类问题的 。

社区品质 私享六大景观话花园
成片风貌保护区,百年历史文脉传承
静安里所在的 武进路 ,长度不过千米,却串起了上海从开埠到国际化大都市的完整历史链条。



效果图,仅供参考
唐绍仪故居(唐宅) ,作为中华民国首任总理、外交官唐绍仪的故居,见证上海百年风云。

唐宅实景图,图源网络,仅供参考
泰山大剧院 则作为沪上越剧文化发源地,承载着鲁迅、郁达夫等文人的艺术记忆。

泰山大剧院实景图,图源网络,仅供参考
六大定制级主题花园,演绎世界园艺
七坊、三十二弄、七大石库门串联起7大组团,八个不同规制的坊门,散落于组团之间,营造出了归家动线上的连续仪式。

效果图,仅供参考
六大世界经典花园融入上海及世界优秀花园样式,汇成海派花园的园区巡礼,以每个独属于上海的百年场所记忆进行时空平移打造海派花园百科全书。




效果图,仅供参考
【静安里】 还是历史风貌住宅里面少有的有会所的项目, 约1000㎡的私属会所 ,为业主提供星级高端服务接待休息区。



会所示意图,仅供参考
其内打造 艺术水吧、泳池、VIP会客厅 等定制级会所体验,更配备包含 高配瑜伽室、高压氧舱、桑拿房 的活力场域,每一处空间都在重新定义顶豪生活方式。


泳池实景图,仅供参考
地下车库,也做到了艺术与功能的完美融合。
别墅地下二层直连停车场 ,精选米白色西伯利亚石材与拉丝镀黑钛不锈钢材质,营造出堪比五星级酒店的豪奢空间。

效果图,仅供参考
地库内还配置专属洗车服务,将尊崇体验延伸至每一个用车场景。
对于顶豪人群而言, 社区不仅是居住的场所,更是圈层社交的“私域空间” 。 静安里以“纯别墅社区+会所+风貌商业”的配置,实现了“圈层纯粹性”与“生活便利性”的双重满足 。




项目区位配套
【静安里】 雄踞北外滩-苏河湾-外滩“黄金三角”,直线距苏州河约1公里,直线距外滩约1.4公里,直线距北外滩约1.7公里,区位优势明显。
项目所在的苏河湾风貌区已连片成势 ,步行范围内,已集聚UCCA Edge尤伦斯当代艺术中心、苏富比空间等艺术地标,未来将成为“海派文化新客厅”。

对岸的 北外滩 ,正以2个陆家嘴核心规模的开发体量(超 840万方 )、 480米 新地标领衔的摩天建筑群,打造未来浦西新制高点。
静安里恰好处在这两大世纪规划的能量辐射交汇处,享受双核驱动带来的巨大红利。

北外滩实景图,图源网络,仅供参考
轨道交通方面: 项目周边有 4条地铁动脉(3/4/10/12号线)织就高效路网 ,3条越江隧道(外滩/新建路/大连路)瞬间切换浦江两岸,2条城市快速路(北横通道已通车/南北通道规划中),立体交通畅达全城。(数据来源:浦东发布)

区位图,仅供参考
商业配套方面: 静安里3公里范围内,汇聚了苏河湾万象天地、北外滩来福士、南京西路商圈、外滩商圈、陆家嘴商圈等,生活购物体验已是世界级。

除此之外, 静安里“南市北里” 商业新名片,也正 在静安里与弘安里连接处规划酝酿 ;

规划示意图,仅供参考
项目南地块规划 约9000㎡石库门风貌商业 ,将沿武进路打造历史风貌商业街区,未来将涵盖 高端零售、高档餐饮、文化展览、宠物配套 等丰富业态。

效果图,仅供参考
教育资源方面: 周边有静安区闸北第一中心小学、宝山路小学、市北中学、上海市民办新华初级中学等学校。

医疗资源资源: 附近有瑞金医院、曙光医院、中西医结合岳阳医院、第一人民医院、上海市中医院、上海市儿童医院等。

静安内环内苏河湾板块
华发招商静安北站项目
【静安里】
加推建面约200-300㎡传世大宅
附赠花园 露台 阳台 阁楼 地下室
总价约:4200万~6300万
地下1000㎡泳池会所及9000㎡石库门商业
售楼处线上预约尊享团购优惠
2026年上海购房新规则与实用须知(最新版)
为支持刚性和改善性住房需求,上海于2026年2月26日起正式实施新一轮房地产优化政策(俗称“沪七条”)。以下是购房者最需关注的核心变化及实操建议:
一、限购政策大幅放宽
非沪籍家庭/单身人士
购买外环内住房:社保或个税连续缴纳满1年及以上即可(原为3年);
购买外环外住房:不限购套数,只需满足1年社保/个税条件。
多子女家庭特殊支持
若家庭中有至少1名未成年子女,可在限购基础上额外增购1套外环内住房(非沪籍需同时持有《上海市居住证》且积分达120分)。
沪籍居民
家庭仍限购2套,单身限购1套(外环外不限套数)。
✅ 提示:学生集体户口、博士、港澳台及外籍人士,需连续缴纳1年社保/个税,限购1套。
二、贷款与公积金政策优化
商业贷款利率统一
首套、二套房贷利率不再区分,银行可根据客户资质合理定价,当前主流首套利率约LPR-45BP(约3.55%左右)。
公积金贷款额度提升
购买绿色建筑或高品质住宅,最高可上浮15%贷款额度;
公积金账户余额可用于支付新房首付(仅限新建商品住房)。
首套/二套房认定标准
首套房:家庭在本市无住房;
二套房:家庭在本市已有1套住房。
已结清公积金贷款且名下无房或仅1套房,可再次申请。
三、房产税政策调整
非沪籍家庭首套房:免征房产税;
二套房:按人均60㎡免征面积计算(如3口之家可免180㎡),超出部分按0.4‰–0.6‰征收;
产证变更需重审税:夫妻间增减名、赠与等操作后,房产税将重新核定。
⚠️ 注意:2026年3月1日起,房产证与车位产权必须分开登记,不可合并办理。
四、购房实操须知
资格自查
登录“随申办”APP → 搜索“住房状况查询”,可查家庭名下住房套数;
社保/个税缴纳记录可通过“上海人社”或“电子税务局”验证。
材料准备
身份证、户口本、婚姻证明;
非沪籍需提供:1年社保/个税证明 + 居住证(如有);
多子女家庭需提供出生医学证明或户口页。
交易流程
签约前务必确认项目是否取得《预售许可证》;
资金监管账户付款,切勿直接转账给开发商或中介;
网签后30日内完成缴税、过户。
五、特别提醒
动迁房限制:大产证未满3年的动迁安置房,夫妻间不得变更产权人;
企业购房受限:仅可购买2000年前竣工、面积≤70㎡的二手房,且用途限于员工租赁;
警惕“茶水费”:所有房源应公开销售,任何额外费用均属违规。
结语
2026年的上海楼市正从“严控”转向“精准支持”,政策红利集中释放。无论是刚需上车还是改善置换,都建议结合自身资格、资金和长期规划理性决策。购房前务必通过官方渠道核实政策细节,避免信息偏差造成损失。