中粮北外滩壹号官方售楼处电话→中粮北外滩壹号售楼中心电话→中粮北外滩壹号楼盘百科→楼盘网站→楼盘测评→售楼中心电话→楼盘百科→电话→楼盘详情

搜狐焦点宿州站 2026-01-04 10:10:25
用手机看
扫描到手机,新闻随时看

扫一扫,用手机看文章
更加方便分享给朋友

☑️☑️中粮·北外滩壹号售楼处电话:400-8377-020☑️☑️

☑️☑️中粮·北外滩壹号售楼处电话:400-8377-020☑️☑️ 所有伟大的城市板块,都经历着从地理存在到文明符号的升华。

而当散点式的地王与明星楼盘不断雕刻局部价格天花板时,其背后实则遵循着一套更为实际且统一的价值叙事—— 稀缺性。

顺着稀缺性这一罗盘,我们便能清晰地洞察,真正的价值灯塔始终锚定于那片不可再生的核心资源: 滨江住宅

而上海人又恰恰对滨江住宅的要求近乎极致,既要占位城市重要规划点,又要有超出一般豪宅调性的品质,所以滨江住宅一直都是贵奢的代表。

☑️☑️中粮·北外滩壹号售楼处电话:400-8377-020☑️☑️

☑️☑️中粮·北外滩壹号售楼处电话:400-8377-020☑️☑️

在上海一线滨江板块地图中,陆家嘴,黄浦滨江、徐汇滨江等地新房单价都已突破 19万/㎡ 。今年6批次,北外滩地块也紧随其上,溢价率46.3%,预计售价约 19万/㎡ 左右,成为今年最炙手可热的滨江板块之一。

凭心而论,北外滩新房单价卖到19万我一点也不奇怪。

答案显而易见:北外滩一直都是时代的佼佼者,它既是百年前海纳百川的港口,又是今日的世界会客厅,还是上海的未来发展引擎。

所以,当人们以为北外滩新房售价即将冲向19万/㎡、未来买入北外滩将付出巨大经济代价时,一个巨大的历史性机遇, 【中粮北外滩壹号】 出现了!

均价14.38万,总价约3000万起,这个价格无疑是北外滩错过再无的抄底机遇!

中粮大悦城上海第五座壹号系,“世界S湾壹号作品”——【中粮·北外滩壹号】开盘热卖中!

12月21日,项目正式开盘,当日去化7成!

☑️☑️中粮·北外滩壹号售楼处电话:400-8377-020☑️☑️

推售建面约185-228㎡天际大平层

过会均价143868元/m²

最低单价11.75万起,总价约2188万

顶层地段+顶层社区+稀缺天际大平层价值,仅90席,错过再无!

成功转定即赠价值80万产权车位1个

☑️☑️中粮·北外滩壹号售楼处电话:400-8377-020☑️☑️

☑️☑️中粮·北外滩壹号售楼处电话:400-8377-020☑️☑️

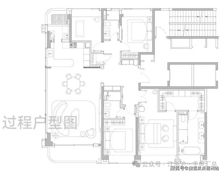
户型图赏鉴

185㎡四房奢阔大宅

准1梯1户设计 ,私享电梯厅独立入户,经典 飞机户型,三开间朝南,南北通透, 动静分区,通风采光俱佳。

独立玄关 做足私密性和仪式感; LDKB一体化设计 的客餐厅面积达到约55㎡,方正大气。

主卧套房尺度豪奢,可供业主配置步入式衣帽间,卫生间做到 双台盆+大浴缸+独立淋浴 的顶配,尊崇感十足!

228㎡四房天际大宅

☑️☑️中粮·北外滩壹号售楼处电话:400-8377-020☑️☑️

准1梯1户设计, 私享电梯厅独立入户,户型尺度进一步升级,当今顶豪新盘中极为稀缺的四开间朝南。

边厅面积超过50 ㎡,给一家人提供了阔绰的交流空间; 约270°环幕景观设计, 带来极好的采光,并且高区可以直面陆家嘴城市天际线+黄浦江景观,视野相当震撼!

主卧大套房设计带超大主卫和衣帽间 ,面积约50㎡ ,尺度感与市面上近300㎡的顶豪拉平。

室内设计由中国现代室内设计领域的领军人物—— 梁志天亲自打造。

在材质选用上,延续了壹号系的高端标准,大量运用奢石、高难度弧形工艺以及国内外顶尖品牌。

https://wxa.wxs.qq.com/tmpl/ov/base_tmpl.html

宝格丽 大理石打造的西厨岛台、 铂浪高 的净水三合一水龙头和一体式大水槽、 霍尼韦尔 的前置过滤器、全屋软水以及末端净水器系统、来自意大利 法罗力 燃气热水器、德国 唯宝 卫浴、当代龙头及花洒......还有 全屋华为智能家居系统配置 。这一套组合,是真正意义上的顶豪序列配置!

☑️☑️中粮·北外滩壹号售楼处电话:400-8377-020☑️☑️

☑️☑️中粮·北外滩壹号售楼处电话:400-8377-020☑️☑️

土拍回顾及规划

2023年9月5日,大悦城控股上海大区公司通过上海联交所成功竞得上海市虹口区北外滩116街坊地块(即中粮北外滩壹号)。地块位于北外滩红线内,靠近大连路地铁站,与外滩、陆家嘴共同构成上海“黄金三角”。

项目四至范围:东至保定路、hk367-02、hk367-05地块,南至昆明路,西至 hk367-03、hk367-04 地块,北至唐山路。

☑️☑️中粮·北外滩壹号售楼处电话:400-8377-020☑️☑️

项目总用地面积约23849.2平方米,容积率1.95,总计容建面4.65万㎡,是上海市中心罕见的无商办、无15%自持住宅、无5%保障房的纯住宅项目。

整体由 一栋24F高层住宅和风貌别墅组成。 高层共90套、产品面积段约180-228m²,风貌别墅共118套,产品面积段约130-350m²,其中主力建面约203-205-230m²(占比约83%)

建筑立面 ,高层主体以 仿红砖陶板+古铜色铝板+白色石材+玻璃幕墙 的高标准结合,来完成建筑的美学表达。

风貌别墅则 复刻海派石库门 的韵味,但不同于大多数风貌别墅的格栅小花窗设计,「中粮·北外滩壹号」大幅增加窗墙比,赋予相对沉闷里的里弄建筑,更通透、更明亮的特质!

☑️☑️中粮·北外滩壹号售楼处电话:400-8377-020☑️☑️

公区方面,从归家社区大堂、大堂序厅、以及入户单元大堂一路看过来,体现出一套脉络完整,层层递进的海派顶奢设计语言。

☑️☑️中粮·北外滩壹号售楼处电话:400-8377-020☑️☑️

虽然项目仅有208户,仍然通过深挖三层,满配了高达 约1800㎡的私享顶奢会所。按户均占有会所资源计来算,这在当今顶豪圈是顶尖的水平。

https://wxa.wxs.qq.com/tmpl/ov/base_tmpl.html

会所由全球顶奢酒店设计领域的 标杆——CCD香港郑中设计事务所执笔。 目前看到的效果图,体现出一股醇正的老钱世家风,设计品位远超市场同类豪宅。

☑️☑️中粮·北外滩壹号售楼处电话:400-8377-020☑️☑️

社交宴会区内,私宴、茶室与专属酒吧一应俱全,满足业主商务应酬到亲友小聚的各种场景需求。

瑜伽健身区,大幅落地窗引入自然光线,天花的格栅造型,地面的复古拼花木地板,都透出浓厚的海派风情。

恒温泳池更是融入超级垂直花园庭院体系,直接在泳池中做出美轮美奂的景观。

☑️☑️中粮·北外滩壹号售楼处电话:400-8377-020☑️☑️

雅集共聚区内,除了常规的阅读,棋牌等功能外,甚至设有一个舞蹈录音室,配置之高,沪上少见。

因为这是中粮大悦城的壹号系,珠玉在前,小编完全不担心会所未来兑现的效果,甚至已经很期待看到未来会所开放展示的那一刻。

景观方面,设计了 「八大主题场景」 ,从百年梧桐下的静谧巷道,到充满未来感的艺术庭院,共同构成一个鲜活立体的生活剧场。

生活配套

☑️☑️中粮·北外滩壹号售楼处电话:400-8377-020☑️☑️

交通方面: 项目周围环绕三条地铁,步行约360米到4、12号线大连路站,步行约560米到12、19号线(在建)提篮桥站。

地铁出行到人广和陆家嘴都只需要4站。未来,随着在建的南北大动脉19号线贯通,可以直达世博、前滩等多个核心滨江段。

自驾上,项目往北约300米就是北横通道,往南车行约1公里,就是新建路隧道和大连路隧道直达浦东。从项目到陆家嘴、北外滩和外滩都在10分钟左右。

☑️☑️中粮·北外滩壹号售楼处电话:400-8377-020☑️☑️

商业方面: 项目出门就是高浓度的国际生活主场,步行可达北外滩来福士(约600米)、瑞虹天地太阳宫(约350米)、白玉兰广场(约1公里),未来还将会兴建全球最火的时尚奢侈品商场之一的SKP。

半径3km内,还可以同时覆盖外滩、陆家嘴、苏河湾等“黄金三角”的繁华商业!

☑️☑️中粮·北外滩壹号售楼处电话:400-8377-020☑️☑️

教育方面: 周边学府众多,优质教育资源密集。北侧的长青学校是老牌的九年一贯制公办重点,南侧的上海中学国际部是知名民办名校,距离新华初级中学

(常年四校八大预录人数上百),新复兴初级中学,这两所虹口的顶尖民办学校也都在直线3KM内(新房不承诺对口学校,具体以实际为准)。

医疗方面: 周边有复旦大学红房子妇产科医院,守护着每一个家庭的人生重要时刻。、以及三甲新华医院、上海市第一人民医院为健康生活保驾护航。

生态休闲: 周边有22公顷无车漫步区、3.5万平方米航海公园与中央绿地相融,3.4公里滨江休闲岸线

☑️☑️中粮·北外滩壹号售楼处电话:400-8377-020☑️☑️

「中粮北外滩壹号」

虹口北外滩核心区

建面约185-228㎡高层

共计90套房源 均价143868元/㎡

中粮“壹号”系全新力作

售楼处提前线上预约

☑️☑️中粮·北外滩壹号售楼处电话:400-8377-020☑️☑️

☑️☑️中粮·北外滩壹号售楼处电话:400-8377-020☑️☑️

2188万起抢占上海黄金三角!中粮北外滩壹号,约185-228㎡天际大平层,逆市热销尊享黄浦江畔塔尖生活!附官方预约通道!

沪上好房已关注

分享点赞在看

已同步到看一看写下你的评论

视频详情

中粮北外滩壹号一房一价表:

☑️☑️中粮·北外滩壹号售楼处电话:400-8377-020☑️☑️

2025年12月,黄浦江S湾潮向之处,中粮·北外滩壹号的一房一价正式亮相了。

作为中粮“壹号系”在上海的第五部作品,整个项目由118套风貌别墅+90套高层房源组成 ,首开90套约185-228㎡的“天际大平层”均价 14.38万元/㎡ 。在豪宅产品极度内卷的时代,它提供了一个审视核心资产价值的新坐标。

这栋高层大平层楼栋是目前整个北外滩风貌核心区里唯一的一栋高层建筑, 享受完全无遮挡的视野与采光。

☑️☑️中粮·北外滩壹号售楼处电话:400-8377-020☑️☑️

高层楼栋南侧无遮挡, 视野近端是小区内部与北外滩风貌片区的成片低密风貌别墅,视野非常开阔;而中高区的视野就更加惊艳,享绝佳北外滩超高层办公集群天际线视野。

项目的定价体系,与不同楼层及方位所享有的稀缺景观资源形成了深度绑定,形成了一套基于视野价值的内在逻辑。但独栋的楼栋规划,让价值的均好性体现到产品上,景观视野价值普适到每一户内,不论高中低房源,均有很好的视野景观。匹配上价格,性价比优势更加明显。

高区最高限价16.6万/㎡,为顶级视野付费,而不为泡沫溢价买单。

自19层至24层,壮丽的北外滩天际线在眼前展开,更能与480米浦西新地标从容共语。在这样的景观价值面前,单价仅定格于14-16万/㎡。最高价格限定在16万/㎡,相较黄浦江两岸同类滨江项目动辄30万+的行情,中粮·北外滩壹号显露出清晰而克制的定价姿态:为顶级视野付费,而不为泡沫溢价买单。

☑️☑️中粮·北外滩壹号售楼处电话:400-8377-020☑️☑️

效果图仅做示意

14万/㎡左右的中区,对望480m的浦西第一高楼,城市视野不再是高区独享

中区房源,承接着低区的静谧与高区的壮阔,在此实现了北外滩天际视野与阳光舒居生活的完美平衡。即可与480米浦西新地标从容共语,也能俯瞰北外滩历史风貌区的连绵屋瓦与街巷脉络。享南向超150米无遮挡规划所带来的充沛日照,让阳光成为日常的慷慨馈赠。这一区域单价区间为13.5-15万/㎡,以从容的定价,同时兑现了稀缺的文化资源占有与明亮的舒居生活体验。

☑️☑️中粮·北外滩壹号售楼处电话:400-8377-020☑️☑️

效果图仅做示意

11.7万起,低区也能享受阳光视野平权

低楼层与城市历史街区及风貌别墅共生,静观梧桐叶影、红瓦流光,私享一方静谧园林。在此亲近自然的境地里,总价2188万元起即可入驻,单价仅以“11万+”为头。S湾滨江沿岸同级房源单价已普遍迈过20万,且空间往往更为局促,于此更可见项目的诚意与性价比。不同传统的低区房源,社区高层+风貌的规划,让低区也没有视野遮挡,采光、视野依旧很棒。

☑️☑️中粮·北外滩壹号售楼处电话:400-8377-020☑️☑️

示意图

中粮·北外滩壹号的定价体系,精准呼应了不同楼层所锚定的稀缺资源:高区承接天际地标,中区坐拥文史视野与无遮日照,低区浸润静谧园林。每一层价格都清晰对应其不可复制的景观与体验价值。尤其是低区“11万+”的入手门槛,在滨江区域同级别产品价格普遍高位的当下,构成了稀缺的价值洼地。

项目基础信息

☑️☑️中粮·北外滩壹号售楼处电话:400-8377-020☑️☑️

2023年9月5日,大悦城控股上海大区公司通过上海联交所成功竞得上海市虹口区北外滩116街坊地块。地块位于北外滩红线内,靠近大连路地铁站。

☑️☑️中粮·北外滩壹号售楼处电话:400-8377-020☑️☑️

116街坊地块地上计容面积46505.94㎡,用地性质为Rr1Rr3混合用地,其中混合地比例为Rr1≥60%、Rr3≤40%。(Rr1通常为低密住宅,Rr3通常为高层)

☑️☑️中粮·北外滩壹号售楼处电话:400-8377-020☑️☑️

过程稿效果示意图,仅供参考,最终以实际为准

该项目计容建面4.65万㎡,容积率1.95,是上海市中心罕见的无商办、无15%自持住宅、无5%保障房的纯住宅。

☑️☑️中粮·北外滩壹号售楼处电话:400-8377-020☑️☑️

大悦城控股在上海坚持城市共生,立足“一江一河”城市战略,从陆家嘴的海派复兴到苏河湾畔的人文共生, 从国际前滩探寻城市新生到和平公园的东方意境,中粮大悦城以全球高端人居理念,开启上海“壹号系”的“一江一河”生长之路。

2009-中粮·海景壹号

矗立陆家嘴云端,以摩天之姿定义东方天际

2015-中粮·天悦壹号

临水苏州河畔,以静谧美学重构都会张力

2018-中粮·前滩海景壹号

革新生态人居,以国际视野雕琢未来城脉

2021-中粮瑞虹·海景壹号

以新亚洲极简主义,让东方意境栖居时光

☑️☑️中粮·北外滩壹号售楼处电话:400-8377-020☑️☑️

当黄浦江的百年潮声叩响城市记忆,中粮大悦城上海第五座壹号系,以更厚重的迭代之势,深植海派文化根系,以谦恭之姿对话历史文脉,以全球格局焕新城市界面。

☑️☑️中粮·北外滩壹号售楼处电话:400-8377-020☑️☑️

这一次,不仅是「壹号」基因的传承,更是众多领域大师的匠心共著——从空间美学到细节工艺,从功能规划到精神共鸣,以跨界的智慧碰撞,雕琢大悦城控股上海又一封面力作。

90席天际大平层

俯揽黄浦江视野,执掌世界S湾的时代潮向。

☑️☑️中粮·北外滩壹号售楼处电话:400-8377-020☑️☑️

☑️☑️中粮·北外滩壹号售楼处电话:400-8377-020☑️☑️

118席海派风貌墅

重绎石库门风骨,唤醒海派生活的优雅基因。

☑️☑️中粮·北外滩壹号售楼处电话:400-8377-020☑️☑️

都会会所谧境

以空间重写时光叙事,隐于都市地下的社交谧境。

☑️☑️中粮·北外滩壹号售楼处电话:400-8377-020☑️☑️

☑️☑️中粮·北外滩壹号售楼处电话:400-8377-020☑️☑️

☑️☑️中粮·北外滩壹号售楼处电话:400-8377-020☑️☑️

声明:本文由入驻焦点开放平台的作者撰写,除焦点官方账号外,观点仅代表作者本人,不代表焦点立场。