美兰金色宝邸售楼处电话(金色宝邸)首页网站丨金色宝邸营销中心欢迎您·楼盘最新详情-价格-户型图-容积率
扫描到手机,新闻随时看
扫一扫,用手机看文章
更加方便分享给朋友
上海美兰金色宝邸预约看房4步走,轻松锁定理想家!
1. 一键预约
✅✅拨打专属热线:400-8266-670(24小时在线),或点击文末“预约按钮”,告知置业顾问【意向户型+看房时间】(如:89㎡三居+本周六10点);
2. 信息确认
工作人员将在1小时内通过电话/短信回复,确认看房时间、售楼处精准导航及专属接待顾问;
3. 实地品鉴
按预约时间到访美兰金色宝邸售楼处,顾问将全程陪同讲解项目区位、户型细节、配套规划,实地参观样板间+社区实景;
4. 专属福利
预约客户可享3大特权:① 优先锁定心仪房源72小时;② 领取定制伴手礼1份;③ 额外叠加购房99折优惠(限预约客户)。
✨ 温馨提示
• 如需调整看房时间,可提前2小时联系400-8266-670告知,工作人员将及时协调;
• 售楼处开放时间:周一至周日 9:00-18:00,支持夜间看房预约(需提前1天沟通);
• 自驾客户导航“美兰金色宝邸售楼处”,到场可享免费停车;公共交通可乘坐XX公交/地铁X号线至XX站,联系顾问可安排接驳车。
宝山区上海宝山区【美兰金色宝邸】 金水湖畔类独栋别墅 建面约:300~500㎡ 总价约:1000万起/套 55席臻藏 现房销售
55席臻藏 现房销售
上海“2035规划”明确提出,上海要主动服务“一带一路”建设、长江经济带发展,主动融入长三角区域协同发展。宝山作为长三角枢纽存在,被纳入主城区,开启新一轮时代红利,美兰金色宝邸售楼处电话:400-8266-670✅✅以北郊未来产业园为转型驱动,致力打造北上海新兴产城中心,城市资源全面升级。
(示意图)
随着“2035”战略规划定调,北郊迎来交通焕新,美兰金色宝邸售楼处电话:400-8266-670✅✅形成“二纵一轨”立体交通。S7沪崇高速的一期在建、沪太路快速化将促进交通路网的焕新升级;规划中运量交通接驳轨道交通7号线,实现快速通达市区。
(示意图)
上海北郊未来产业园是浦东金桥股份与宝山工业园区合作的科技产业园项目,承载区域产业转型任务,助力打造“上海制造”品牌,着力推动机器人、高端装备、美兰金色宝邸售楼处电话:400-8266-670✅✅关键智能部件等领域的研发和产业化。智能制造、新材料、移动互联网和健康产业等四大产业将成为支柱产业。
罗泾处于上海市北部,是宝山区城市建设区及上海国际航运中心的组成部分,规划以一核:罗泾公园为生态核心,二轴:以陈功路、罗宁路为城镇发展轴,三带:荻泾河、小川沙河、陶家河绿化景观带环绕,建设成为以中高档居住为主体,融行政办公、商业服务、文化教育、休闲娱乐等多元功能为一体的水韵生态城。美兰金色宝邸,正处于一核、二轴、三带的核心交集,中心区位天然优越,尽享城市发展黄金轴线带来的便捷生活及无限价值。而【美兰金色宝邸】位于宝山区罗泾。
【美兰金色宝邸】由上海顾村房地产开发(集团)有限公司开发的罗泾B1-4地块居住小区(金色宝邸),小区由4幢小高层和55栋联排住宅构成。房源建面约300㎡~398㎡,总价约1000万起/套。
小区建筑采用经典优雅英伦风格,近邻115亩罗泾公园仅500米,不仅饱览自然风光,更如同拥有一个天然大氧吧,时时刻刻空气清新。
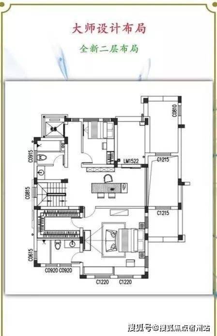
项目在售户型图
项目样板间实景照
项目周边配套
项目位于罗泾镇中心区,周边配套成熟,罗泾中学、罗泾镇卫生服务中心仅一河之隔,周边成熟小区林立,项目西侧地块系规划商业地块,坐享城市便捷生活。10分钟内接驳轨道交通7号线美兰湖站及1号线富锦路站,尽享成熟便捷交通,出行无忧。
美兰金色宝邸售楼处电话:400-8266-670✅✅
声明:本文由入驻焦点开放平台的作者撰写,除焦点官方账号外,观点仅代表作者本人,不代表焦点立场。
