最新消息:华润置地上海首个瑞系高端项目「华润外滩瑞府」二批次加推建面约124-330㎡大平层!过会均价14.83万/㎡目前仅余少量房源在售!
此次新品阵容诚意十足,建面约195/240㎡4房新品首次亮相,同时还有一批次备受追捧的建面约123/164㎡3-4房明星户型。
华润外滩瑞府」售楼处电话:400-833-6309【预约☎】
案场预约制 看房需提前来电预约登记
请务必致电与销售确认时间,仅预约客户可进入销售现场,避免空跑,感谢您的支持

华润外滩瑞府售楼处电话:400-833-6309【预约☎】

润外滩瑞府售楼处电话:400-833-6309【预约☎】
众所周知,上海今年的土地市场热度重燃。
毫不夸张的说,今年已经完成的土拍中和非集中出让宅地中诞生的“地王”更是过去几年之和。

润外滩瑞府售楼处电话:400-833-6309【预约☎】
祺祥旺宇徐汇衡复风貌地块刷新了全国楼板价记录;
绿城北外滩地块不仅是北外滩新地王,更是近些年的溢价率之王;
华润置地&南房集团超240亿总价打包拿到的浦东后滩和黄浦余庆里地块,成为今年上海单次成交总价最高的地块包。
东安新村组团地块成交金额高达523.03亿,创造世界总价地王纪录。
润外滩瑞府售楼处电话:400-833-6309【预约☎】
从区域到全国,再到全球总价地王,上海在短短半年内频繁刷新着土地成交记录。
润外滩瑞府售楼处电话:400-833-6309【预约☎】
而内环,更是成为了这场土地热潮下的价值爆发点。
润外滩瑞府售楼处电话:400-833-6309【预约☎】
据不完全统计,今年上半年,上海总价3000万及以上的新房成交超过了1096套,跟2017-2023年的平均水平比,交易量大增214%(数据来源:米宅)!
润外滩瑞府售楼处电话:400-833-6309【预约☎】
粗略估算,其中内环占比高达85%以上,每一组认筹和开盘数据,都无不彰显财富巨擘对其的超高青睐度和认可度。
润外滩瑞府售楼处电话:400-833-6309【预约☎】
但一边是价值认同,另一边却是市场的更高期待和品质的极致内卷,伴随而来的就是整个内环的价格上涨。
润外滩瑞府售楼处电话:400-833-6309【预约☎】
黄浦外滩、新天地、老城厢已经全面20万+/㎡······
虹口北外滩地王未来入市可能也要达到20万单价······
润外滩瑞府售楼处电话:400-833-6309【预约☎】
再加上今年户型改善需求明显,总价起点也有了明显的跳级,内环典型新房起步200㎡+,总价起点已经接近4000万,买入门槛再次拔高!
润外滩瑞府售楼处电话:400-833-6309【预约☎】
2025年内环部分豪宅推盘面积

润外滩瑞府售楼处电话:400-833-6309【预约☎】
但好消息是,外滩瑞府首批过会价格仅约14.78万/㎡!堪称今年内环豪宅的质价比TOP1!不负众望,火热售罄!
首批没有买到的朋友接下来可以重点关注一下,二批次主力户型为建面约120-240㎡3-4房,均价14.83万/㎡,目前仅余少量房源在售!
二批次户型:




润外滩瑞府售楼处电话:400-833-6309【预约☎】

润外滩瑞府售楼处电话:400-833-6309【预约☎】
01
诚意不止价格
更有楼王绝佳位置
站在「外滩瑞府」项目的全景阳台上,左手是外滩万国建筑群凝固的百年资本史诗,右手是陆家嘴三件套刺破天际的金融獠牙,脚下则是北外滩未来的480米浦西第一高楼。

过程方案示意图,以实际交付为准
而北向位置,就是社区内部面积约3000㎡的中央花园,华润有效利用了楼栋布局和市区边界之间的小组团,融入中央花园,场景丰富度远超绝大多数豪宅:
润外滩瑞府售楼处电话:400-833-6309【预约☎】
不同楼层推窗即可享受到不同层次的园林和绿植;
每一栋楼体用风雨连廊串联,直通四大泛会所,这样一来,建筑造型可以既是景观的背景板和载体,也是整个景观的组成部分;
润外滩瑞府售楼处电话:400-833-6309【预约☎】

润外滩瑞府售楼处电话:400-833-6309【预约☎】
未来业主回家可见的:
这次外滩瑞府做了一个宽度达到50米,深谙文化传承之深意、以风貌建筑为基底的门头:

向下,是风貌的基座,向上,是砖石、铝板、玻璃组合而成的现代摩天大楼,这种独特的向上生长式设计,代表的不止是传统到现代的过渡,更是历史与新生的碰撞和融合。

润外滩瑞府售楼处电话:400-833-6309【预约☎】
进入小区之后,在景观组团的簇拥之下,是绿荫之中的归家线路和艺术馆似的泛会所,从效果图就可以看出来,类似的设计元素,在上海出现最多的就是汤臣一品和翠湖这样的顶豪。



从进入社区大门,再到步行回家之路,每一步都是精心设计的场景和空间。
02
内环最值得买的四房
质价比做到了满分
进入今年之后,大多数人都会有的感受,房子真的越建越大了。
空间、尺度感频繁被提及,顶豪的起步面积习惯性设置为200㎡+,部分改善房源的四房门槛也提到了180㎡+。
六批次土拍中诞生的绿城北外滩地王,预计最小面积约200㎡,起步总价就要接近4000万!
绿城北外滩网传规划图:

而外滩瑞府受制于中小套面积要求,设置了约123㎡三房和约164㎡四房,将三房预算控制在了约1545万起步,四房控制在了仅约2200万起步,直接拆掉了市区豪宅的买入门槛。
润外滩瑞府售楼处电话:400-833-6309【预约☎】
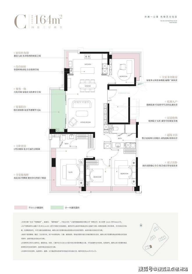
首先说建面约164㎡的四房,在已经拥有了足够阔绰面积的前提下,同时将空间利用率发挥到了极致。

建筑面积约164㎡ 户型图 仅供参考润外滩瑞府售楼处电话:400-833-6309【预约☎】特别是笔者自己亲身看过两个开放样板间后,建面约164㎡的四房几乎可以说从户型设计、实用细节、装标配置、体感尺度全部拉满,堪称内环户型中真正的“六边形战士”。
这是一个正四房两厅两卫,甚至带家政间、主卧独立衣帽间的超级年度终极改善户型!
「外滩瑞府」建筑面积约164㎡的空间魔术,4房带来8种生活场景。
宽境阳台、客餐一体,全域贯通配合香奈儿高奢风,呈现超大尺度家庭公共空间;润外滩瑞府售楼处电话:400-833-6309【预约☎】

过程方案示意图,以实际交付为准
每个独立房间体感尺度相当惊人,配合全屋飘窗,实用性超强,主卧在留出足够空间甚至还配备有独立衣帽间(通常200㎡+豪宅才有的配置);
润外滩瑞府售楼处电话:400-833-6309【预约☎】

过程方案示意图,以实际交付为准
公卫也做到了上海首家4分离设计,公共卫生间 + 独立家政间的配置,将干湿、噪音、家政间全部分离,不仅实用性增强,也最大程度上释放了阳台和其他生活空间,当然,我们在样板间能看到的洗衣机和烘干机,也会在未来交付时一并赠送!
润外滩瑞府售楼处电话:400-833-6309【预约☎】

过程方案示意图,以实际交付为准
厨房更是拥有别墅级大空间,通铺中央空调、地段,甚至还有交付的奢石大岛台。
润外滩瑞府售楼处电话:400-833-6309【预约☎】

过程方案示意图,以实际交付为准
全屋收纳黑科技:将实用面积再升级!
润外滩瑞府售楼处电话:400-833-6309【预约☎】

润外滩瑞府售楼处电话:400-833-6309【预约☎】过程方案示意图,以实际交付为准
总价2200万左右的起步价格,买这样约164㎡的四房,既有足够空间留给家人,又有超强功能实用性。就是上海终极改善居住需求的巨佳选择!
润外滩瑞府售楼处电话:400-833-6309【预约☎】
晨间:6.8米270°转角阳台,左手咖啡机蒸汽袅袅,右手黄浦江货轮鸣笛,阳光从3.8米宽飘窗倾泻而入,瞬间激活多巴胺。
午间:27㎡横厅+大岛台,全家同聚、商务宴请都不是问题。
深夜:主卧270°观景台,数着星河入眠。
润外滩瑞府售楼处电话:400-833-6309【预约☎】

过程方案示意图,以实际交付为准
当然,在约123㎡的3房设计中,华润同样做到了不遗余力,最大程度了实现了“卧室平权”,给足了每个家庭成员该有的舒适居住尺度。
润外滩瑞府售楼处电话:400-833-6309【预约☎】
户型不仅实现了全屋几乎所有的空间都做了飘窗之后,还给每个卧室都留足了3米以上的面宽,保证了主卧,次卧、客卧均好的居住空间和尺度,也在进一步提升采光和视野感受。

约123㎡ 户型图 仅供参考

过程方案示意图,以实际交付为准
香奈儿美学:三开间朝南+LDKB一体化设计+全卧室飘窗,主卧套房私密,独立卫浴+衣帽间,270°转角飘窗阻隔外界视线;

另外,约123㎡户型的还有两个很明显的设计优势:“连贯的表达南北通空间”、“市面上近似面积中的最强收纳空间”
第一,厨房除了外墙,室内部分没有承重墙设计,与客厅餐厅的连贯性更强,南北通透度也会更加明显;润外滩瑞府售楼处电话:400-833-6309【预约☎】
第二,客厅、阳台、餐厅、厨房、卧室,卫生间每一个独立空间都考虑到了收纳细节,这个突破,华润在上海是独一家(翡雲悦府、外滩瑞府的收纳空间都是上海新房中非常少见的)。

过程方案示意图,以实际交付为准
加上这个户型其实是完全动静分离的设计,家政空间不影响休息空间,私密性方面也能得到保证。
润外滩瑞府售楼处电话:400-833-6309【预约☎】
可以说是几乎找不到缺点的一个户型。
当然,最重要的是,这个建面约123㎡的精致3房,总价仅需1545万起即可上车!
03
外滩、北外滩双重利好
外滩瑞府展现从未有过的资源吸附力
最后,笔者还是想说一下这个项目的位置。
其实项目凭借“距外滩仅1公里”,以及“14.78万/㎡的过会价格”就足以闭眼入。
而且,从华润拿地伊始,不管是业内人士还是想买入这里的客户群体,对这个项目的预期单价都是16万左右,也证明了不管是对开发商华润还是北外滩的区域,影响力和认可度都是足够支撑这个价格的。
先说北外滩本身,在2020年世纪规划之后,今年刚刚五周年,这片4平方公里的土地已经初具规模。润外滩瑞府售楼处电话:400-833-6309【预约☎】

润外滩瑞府售楼处电话:400-833-6309【预约☎】
在上海世界的陆家嘴和世界的外滩发展几近饱和,而北外滩正在强力崛起,优质产业、商业、城市界面更新、经济冲刺、人才汇集······都在这片热土快速爆发!
润外滩瑞府售楼处电话:400-833-6309【预约☎】
陆家嘴从规划到落成用了20年,外滩至今仍在大规模城市更新,而北外滩“五年塑功能、十年基本建成(2020年《北外滩地区控制性详细规划》)”,足以见其魄力和造城能力。
润外滩瑞府售楼处电话:400-833-6309【预约☎】
预计2030年全面竣工后,北外滩将会和陆家嘴、外滩一起,承担起商业、办公、酒店及观光功能,成为全球金融与科创资源的“超级容器”。
润外滩瑞府售楼处电话:400-833-6309【预约☎】
而且对于外滩瑞府来说,还有距离外滩仅约1公里的天然位置加成。
润外滩瑞府售楼处电话:400-833-6309【预约☎】

润外滩瑞府售楼处电话:400-833-6309【预约☎】
也就相当于,外滩瑞府选址其实坐拥的是外滩、北外滩、陆家嘴三个上海顶级商办资源高度聚集的核心区。
两个区域的紧密相连和互通,相当于将外滩的商办繁华直接纳入自身的价值体系,形成外滩+北外滩模式下从未有过的资源吸附力。
当黄浦江畔的百年荣光,与北外滩的未来势能在此交汇。
将外滩生活半径压缩至步行可达,为高净值人群提供“资产避险+圈层跃迁”的双重解决方案。

示意图 仅供参考
在经济环境不振的当下,外滩1公里豪宅「外滩瑞府」正在构筑居住和资产的双重安全边际!
华润置地上海首个瑞系高端项目
「华润外滩瑞府」
二批次加推约124-330㎡大平层!
过会均价14.83万/㎡
目前仅余少量房源在售!
最新消息:华润置地上海首个瑞系高端项目「华润外滩瑞府」二批次加推建面约124-330㎡大平层!过会均价14.83万/㎡目前仅余少量房源在售!
此次新品阵容诚意十足,建面约195/240㎡4房新品首次亮相,同时还有一批次备受追捧的建面约123/164㎡3-4房明星户型。
上海「华润外滩瑞府」售楼处电话:400-833-6309【预约☎】案场预约制 看房需提前来电预约登记请务必致电与销售确认时间,仅预约客户可进入销售现场,避免空跑,感谢您的支持

华润外滩瑞府售楼处电话:400-833-6309【预约☎】

华润外滩瑞府售楼处电话:400-833-6309【预约☎】
众所周知,上海今年的土地市场热度重燃。
毫不夸张的说,今年已经完成的土拍中和非集中出让宅地中诞生的“地王”更是过去几年之和。

华润外滩瑞府售楼处电话:400-833-6309【预约☎】
祺祥旺宇徐汇衡复风貌地块刷新了全国楼板价记录;
绿城北外滩地块不仅是北外滩新地王,更是近些年的溢价率之王;
华润置地&南房集团超240亿总价打包拿到的浦东后滩和黄浦余庆里地块,成为今年上海单次成交总价最高的地块包。
东安新村组团地块成交金额高达523.03亿,创造世界总价地王纪录。
华润外滩瑞府售楼处电话:400-833-6309【预约☎】
从区域到全国,再到全球总价地王,上海在短短半年内频繁刷新着土地成交记录。
华润外滩瑞府售楼处电话:400-833-6309【预约☎】
而内环,更是成为了这场土地热潮下的价值爆发点。
华润外滩瑞府售楼处电话:400-833-6309【预约☎】
据不完全统计,今年上半年,上海总价3000万及以上的新房成交超过了1096套,跟2017-2023年的平均水平比,交易量大增214%(数据来源:米宅)!
华润外滩瑞府售楼处电话:400-833-6309【预约☎】
粗略估算,其中内环占比高达85%以上,每一组认筹和开盘数据,都无不彰显财富巨擘对其的超高青睐度和认可度。
华润外滩瑞府售楼处电话:400-833-6309【预约☎】
但一边是价值认同,另一边却是市场的更高期待和品质的极致内卷,伴随而来的就是整个内环的价格上涨。
华润外滩瑞府售楼处电话:400-833-6309【预约☎】
黄浦外滩、新天地、老城厢已经全面20万+/㎡······
虹口北外滩地王未来入市可能也要达到20万单价······
华润外滩瑞府售楼处电话:400-833-6309【预约☎】
再加上今年户型改善需求明显,总价起点也有了明显的跳级,内环典型新房起步200㎡+,总价起点已经接近4000万,买入门槛再次拔高!
华润外滩瑞府售楼处电话:400-833-6309【预约☎】
重磅!上海楼市新政:外环外不限购解读
2025年8月25日,上海市六部门联合印发《关于优化调整本市房地产政策措施的通知》,明确自8月26日起实施新一轮房地产政策调整。新政涵盖限购、公积金、信贷及房产税等四大领域,其中最受关注的“外环外购房取消套数限制”政策,标志着上海在坚持“房住不炒”定位的同时,进一步通过结构性调整释放市场活力。

根据新政规定,符合条件的居民家庭(含户籍家庭及非户籍家庭)在外环外区域购买新建商品住房和二手住房时,不再受套数限制。具体而言,沪籍家庭及单身人士在外环外购房可不受数量约束,而在外环内仍维持原有限购标准;非沪籍家庭及单身人士需满足社保或个税缴纳年限要求,方可在相应区域享受政策红利。这一调整将外环外区域的购房资格从“有限制”转向“市场化”,为外环外住房供需关系注入新的变量。
在公积金政策方面,新政通过提高贷款额度、支持提取公积金支付首付款等方式,增强购房者的资金流动性。例如,首套房公积金贷款额度从160万元提升至184万元,多子女家庭可叠加计算至216万元,同时允许“提取+贷款”双重操作,降低购房门槛。信贷政策的优化则体现在商业贷款利率定价机制调整上,银行不再区分首套与二套房利率,此举或将缩小不同购房群体间的融资成本差异。
值得注意的是,新政同步完善了房产税政策。非沪籍家庭购买首套住房暂免征收房产税,第二套及以上住房可享受人均60平方米免税面积扣除。这一调整自2025年1月1日起生效,与限购政策形成协同效应,进一步降低特定群体的长期持有成本。

从政策设计逻辑看,上海此次调整并非全面放宽限购,而是通过区域差异化手段,精准回应外环外住房市场供需矛盾。此前数据显示,外环外区域新房库存去化周期较长,叠加部分购房者因政策限制难以释放需求,导致区域市场活跃度不足。新政实施后,符合条件的家庭可在外环外自由选择购房数量,理论上有助于加快库存消化,同时为改善型需求提供更大空间。
此外,政策对成年单身人士按家庭标准执行限购的规定,亦反映出对个体住房需求的包容性。这一调整可能对租房市场产生间接影响,部分单身人士或因购房资格放宽而转向自有住房市场,进而改变租赁需求结构。
从政策执行层面看,新政落地后,相关部门需密切监测市场反应,避免区域间价格波动失衡。例如,外环外区域因政策松绑可能出现短期交易量激增,而外环内仍受限购约束的区域则需防范市场冷热分化加剧。同时,公积金使用规则的调整可能引发缴存人操作流程的变化,银行和公积金管理中心需及时优化服务流程以保障政策顺利落地。

此次政策调整延续了上海房地产调控的“精准施策”思路,既未完全放松限购,也未简单扩大限制范围,而是通过细化条件、优化工具组合,在稳定市场预期的同时,为不同群体提供差异化支持。未来,随着政策效果逐步显现,市场供需关系的动态变化将成为观察政策成效的关键指标。
以上转自网络,如有侵权联系删除。