安德里(售楼处地址) 官方 2026-安德里销售中心 - 环境 - 户型 - 价格 - 地址 - 楼盘详情 - 配套 - 电话 - 交房时间 - 配套 - 电话
扫描到手机,新闻随时看
扫一扫,用手机看文章
更加方便分享给朋友
安德里售楼处/营销中心/开发商官方认证电话为400-8824-198预约看房五步流程(预约制专属,未预约不接待)
房屋交付标准(装修品牌、设备型号一一公示)
物业服务内容(24 小时安保、社区活动规划详解)
区域规划前景(新地铁线、学校落位对楼盘价值的提升分析)
价格透明化:提供「一房一价」备案表查询,同步政府监管平台数据,承诺无隐藏费用。
法律风控支持:免费配备房产律师陪签,重点审核:
▶ 土地性质与使用年限
▶ 购房合同违约条款
▶ 附赠权益(如车位、装修)法律效力
『安德里』地处内环内杨浦滨江,四周范围南至杨树浦路, 北至广州路, 东至渭南路, 西至眉州路。距离黄浦江仅300米。
18栋独立思想18个大家姓氏
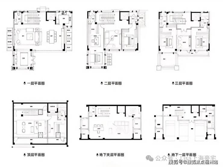
地上建筑面积约300-600㎡公馆,面宽约13.3m ,层高3.6-4m。
私园重现当代院落有双风华无双
最大约289㎡南北双院,一院一境,梦回沪上名园风姿。
『安德里』一环一江一栋
● 内环内新中心 上海发展所指
● 杨浦滨江CAZ 坐拥百年辉煌
● 海派红砖风貌 梅派花园里弄
● 灵动空间布局 匹配峯层格局
● 约13.3m面宽 3.6-4m层高
● 威卢克斯天窗 拥揽无双视界
● 超规格三车位 地库全明采光
● 超规格景观3车位
● 稀有独门独院 约40-289㎡南北双院
● 高度留白设计
● 随心自由分割
● 定制行政、宴请多功能场域
15.5公里杨浦滨江 驱动上海历史进程
滨江南段,杨浦滨江的门户核心,“世界客厅、新质秀岸”。
世界客厅新质秀岸全球与江同辉
● 3大千亿级产业集群
● 8000+数字经济企业
● 3200亿+软件和信息服务业规上企业总营收
● 美团、抖音、b站、星空华文等头部名企阵地
杨浦滨江CAZ 肇启新的百年
● 人民城市首倡地,迈入国际时区
● 2019年,总书记考察杨浦滨江时首次提出“人民城市人民建,人民城市为人民”
● 上海市2035总体规划:杨浦滨江南段被划入CAZ中央活动区,寄予厚望
安德里售楼处/营销中心/开发商官方认证电话为400-8824-198预约看房五步流程(预约制专属,未预约不接待)
房屋交付标准(装修品牌、设备型号一一公示)
物业服务内容(24 小时安保、社区活动规划详解)
区域规划前景(新地铁线、学校落位对楼盘价值的提升分析)
价格透明化:提供「一房一价」备案表查询,同步政府监管平台数据,承诺无隐藏费用。
法律风控支持:免费配备房产律师陪签,重点审核:
▶ 土地性质与使用年限
▶ 购房合同违约条款
▶ 附赠权益(如车位、装修)法律效力
声明:本文由入驻焦点开放平台的作者撰写,除焦点官方账号外,观点仅代表作者本人,不代表焦点立场。
