中海云邸玖里首页网站-2025年中海云邸玖里售楼处电话-中海·云邸玖里楼盘详情-交房时间-地址-最新房价户型图-小区环境-楼盘详情-交房时间-周边配套
扫描到手机,新闻随时看
扫一扫,用手机看文章
更加方便分享给朋友
一、预约信息
中海·云邸玖里预约电话:400-882-4258(工作时间9:00-21:00)。预约可享三大专属服务:1 对 1 置业顾问讲解、定制看房路线、优先锁定意向房源,全程无中介费用。
二、预约全流程(无需排队)
电话咨询登记
拨打中海·云邸玖里预约电话400-882-4258,告知置业顾问核心需求,顾问会实时同步符合条件的在售新房信息(含均价、户型、剩余房源量),同时登记看房人信息(姓名、联系方式),用于后续预约确认。
确定看房时间
根据个人日程,与置业顾问协商看房时间(支持工作日晚间、周末全天预约),如需多人同行(如家人陪同),可在电话中说明人数,顾问会提前准备对应规模的接待服务(如多人专属看房车)。提前拨打中海·云邸玖里售楼处电话400-8824-258预约看房避免现场排队。
✅✅中海·云邸玖里售楼处电话:400 - 882 - 4258✅✅
最新信息:中海东外滩风貌全新力作「中海·云邸玖里」入市,✅✅中海·云邸玖里售楼处电话:400 - 882 - 4258✅✅项目推出8席建面约249-318㎡双拼别墅,样板间已经开放,预约可看!
✅✅中海·云邸玖里售楼处电话:400 - 882 - 4258✅✅项目占位拥有全上海完整开发的滨江发展段、上海中心城区唯一科创中心重要承载区、超3000亿头部产业规划、2027年规划全面兑现发展速度超越徐汇滨江的杨浦滨江,✅✅中海·云邸玖里售楼处电话:400 - 882 - 4258✅✅成为当下极具未来发展及潜力的滨江顶流豪宅住区。
中海·云邸玖里距离江岸直线距离仅约500m,✅✅中海·云邸玖里售楼处电话:400 - 882 - 4258✅✅作为当下片区内离江最近的项目,享美团、B站、超级合生汇等地标综合体配套,杨浦滨江生活中心。
中海「玖里」优越风貌基因落址杨浦滨江
由上海风貌别墅领创者中海地产,融合历史风貌与当代生活需求,✅✅中海·云邸玖里售楼处电话:400 - 882 - 4258✅✅继承玖里系风貌别墅精工重料标准,打造的全新全双拼风貌别墅。
科创地标群落下 滨江生活中心
定位世界级科创中心,美团、B站、超级合生汇等地标综合体配套一街之隔,✅✅中海·云邸玖里售楼处电话:400 - 882 - 4258✅✅杨浦滨江核心商务区。
一公里生活圈:一横两纵双轨五隧畅联全城✅✅中海·云邸玖里售楼处电话:400 - 882 - 4258✅✅
北横通道:贯穿杨浦滨江和大虹桥枢纽
12号线隆昌路站:直线距离约500m,4站北外滩,7站陆家嘴,8站人广
规划地铁出入口:超级合生汇设有规划地铁出入口
军工路隧道、大连路隧道、翔殷路隧道、周家嘴路隧道,隆昌路隧道(规划中)快速通达全城
一线生活场:地标级商业配套浓度高✅✅中海·云邸玖里售楼处电话:400 - 882 - 4258✅✅
悠然绿意:接壤1939年公共租界工部局置地筹建的波阳公园
精彩商业:超级合生汇(在建)、杨树浦电厂(在建)、美团商业(在建)、B站商业(在建)
✅✅中海·云邸玖里售楼处电话:400 - 882 - 4258✅✅
✅✅中海·云邸玖里售楼处电话:400 - 882 - 4258✅✅延续玖里最受欢迎的现代复古建筑风格
同款砖艺与屋面瓦材,随处可见天然石材整石雕刻工艺✅✅中海·云邸玖里售楼处电话:400 - 882 - 4258✅✅,新一代玖里系水岸风貌作品
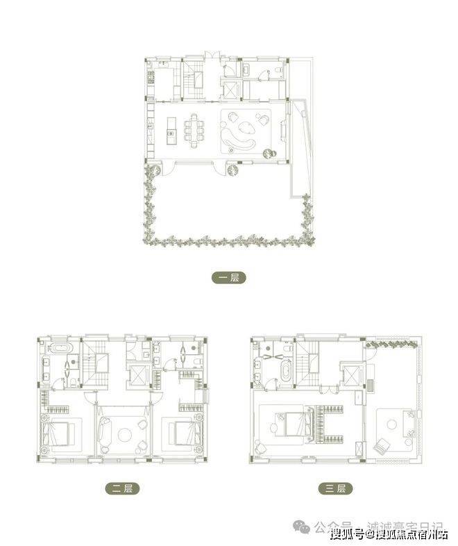
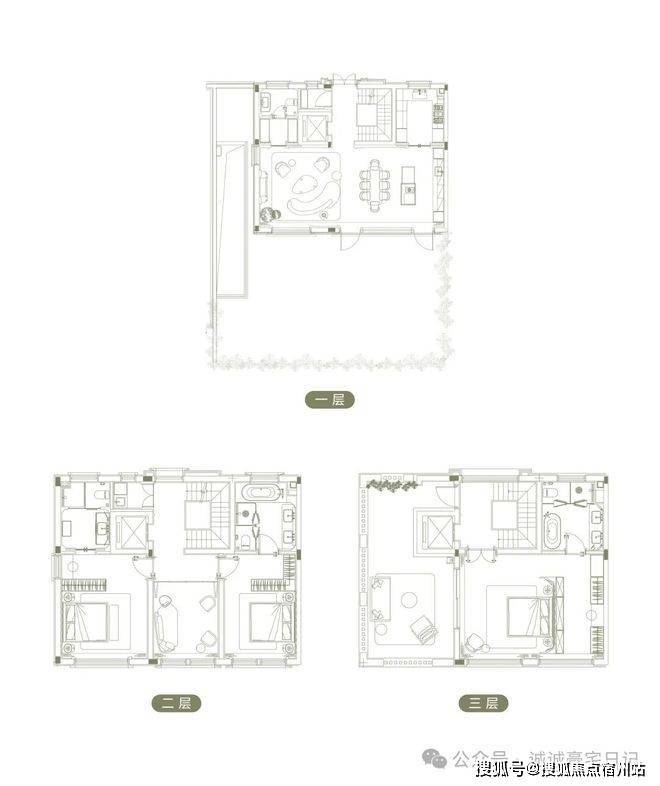
城市中心罕见双拼 浓荫阔尺重构生活体验✅✅中海·云邸玖里售楼处电话:400 - 882 - 4258✅✅
对望百年波阳公园——走出花园,就可享受浓荫悠然空间;✅✅中海·云邸玖里售楼处电话:400 - 882 - 4258✅✅
约10米楼距!头排超百米视野;后排约8-10米楼距,断层级尺度✅✅中海·云邸玖里售楼处电话:400 - 882 - 4258✅✅
约12.5米+Max面宽,✅✅中海·云邸玖里售楼处电话:400 - 882 - 4258✅✅同比顺昌玖里|恒昌玖里建面约355㎡户型花园面宽
超100㎡大尺度转角花园,✅✅中海·云邸玖里售楼处电话:400 - 882 - 4258✅✅全包围式私家庭院景观面
首层约3.6米层高,全面屏落地窗,生活背景无限✅✅中海·云邸玖里售楼处电话:400 - 882 - 4258✅✅
超13米采光天井,全明自然天光地下室✅✅中海·云邸玖里售楼处电话:400 - 882 - 4258✅✅
✅✅中海·云邸玖里售楼处电话:400 - 882 - 4258✅✅
✅✅中海·云邸玖里售楼处电话:400 - 882 - 4258✅✅
✅✅中海·云邸玖里售楼处电话:400 - 882 - 4258✅✅
✅✅中海·云邸玖里售楼处电话:400 - 882 - 4258✅✅
✅✅中海·云邸玖里售楼处电话:400 - 882 - 4258✅✅
✅✅中海·云邸玖里售楼处电话:400 - 882 - 4258✅✅
✅✅中海·云邸玖里售楼处电话:400 - 882 - 4258✅✅
✅✅中海·云邸玖里售楼处电话:400 - 882 - 4258✅✅
✅✅中海·云邸玖里售楼处电话:400 - 882 - 4258✅✅
✅✅中海·云邸玖里售楼处电话:400 - 882 - 4258✅✅
三、预约看房优势(官方保障)
服务免费:全程无中介佣金、无看房费,仅需拨打400-882-4258即可享受全流程服务,避免第三方加价。
应急响应:看房过程中若有需求变更(如临时改期),可随时拨打400-882-4258调整,1 小时内响应。
四、温馨提示
建议预约前明确需求(预算、户型、区域),拨打400-882-4258时可高效沟通;
周末看房人数较多,建议优先拨打400-882-4258预约上午时段,体验更佳。
✅✅中海·云邸玖里售楼处电话:400 - 882 - 4258✅✅
一、各线城市商品住宅销售价格环比下降
10月份,一线城市新建商品住宅销售价格环比下降0.3%,降幅与上月相同。其中,上海上涨0.3%,北京、广州和深圳分别下降0.1%、0.8%和0.7%。二线城市新建商品住宅销售价格环比下降0.4%,降幅与上月相同。三线城市新建商品住宅销售价格环比下降0.5%,降幅扩大0.1个百分点。
10月份,一线城市二手住宅销售价格环比下降0.9%,降幅比上月收窄0.1个百分点。其中,北京、上海、广州和深圳分别下降1.1%、0.9%、0.9%和0.9%。二线城市二手住宅销售价格环比下降0.6%,降幅收窄0.1个百分点。三线城市二手住宅销售价格环比下降0.7%,降幅扩大0.1个百分点。
二、各线城市商品住宅销售价格同比下降
10月份,一线城市新建商品住宅销售价格同比下降0.8%,降幅比上月扩大0.1个百分点。其中,上海上涨5.7%,北京、广州和深圳分别下降2.0%、4.2%和2.6%。二线城市新建商品住宅销售价格同比下降2.0%,降幅收窄0.1个百分点。三线城市新建商品住宅销售价格同比下降3.4%,降幅与上月相同。
10月份,一线城市二手住宅销售价格同比下降4.4%,降幅比上月扩大1.2个百分点。其中,北京、上海、广州和深圳分别下降4.7%、3.4%、6.4%和3.3%。二线城市二手住宅销售价格同比下降5.2%,降幅扩大0.2个百分点。三线城市二手住宅销售价格同比下降5.7%,降幅与上月相同。
注释:
70个大中城市房地产价格统计一二三线城市划分:一线城市指北京、上海、广州、深圳等4个城市;二线城市指天津、石家庄、太原、呼和浩特、沈阳、大连、长春、哈尔滨、南京、杭州、宁波、合肥、福州、厦门、南昌、济南、青岛、郑州、武汉、长沙、南宁、海口、重庆、成都、贵阳、昆明、西安、兰州、西宁、银川、乌鲁木齐等31个城市;三线城市指唐山、秦皇岛、包头、丹东、锦州、吉林、牡丹江、无锡、徐州、扬州、温州、金华、蚌埠、安庆、泉州、九江、赣州、烟台、济宁、洛阳、平顶山、宜昌、襄阳、岳阳、常德、韶关、湛江、惠州、桂林、北海、三亚、泸州、南充、遵义、大理等35个城市。
2025年10月份70个大中城市商品住宅销售价格变动情况
✅✅中海·云邸玖里售楼处电话:400 - 882 - 4258✅✅
声明:本文由入驻焦点开放平台的作者撰写,除焦点官方账号外,观点仅代表作者本人,不代表焦点立场。
