1时代终章——浦东内中环
联动价“末班车”鸣笛启程
杆。
☑️☑️西派海上售楼处电话:400-8377-020☑️☑️
当上海土地市场的热浪持续翻涌,北蔡绿地最新楼板价飙升至71412元/㎡,新杨思板块地价突破7.4万/㎡,浦东内中环正经历一场价值重构的深刻变革。
在这个土地稀缺性与资产价值齐飞的时代,一个兼具“政府限价红利+产品力+日光级市场热度” 的传奇项目,迎来了它最后的珍藏时刻——国贸中国铁建·西派海上,以五开五捷的热度,正式启动第五批次最后172套建面约88-110㎡压轴加推!☑️☑️西派海上售楼处电话:400-8377-020☑️☑️
这不仅是一次房源的释放,更是一次浦东核心资产配置的终极机遇,错过即是永恒!
◼ 联动价红利:时代赠礼的倒计时沙漏
政策窗口闭合在即:2025年被称为上海“联动价红利爆发年”,但政策红利具有明显的时效性与稀缺性。随着北蔡、新杨思等板块地价直逼甚至超越新房售价,未来新盘价格体系重构已成定局。同板块新宅地楼板价71412元/㎡,而西派海上坚守的9.2万/㎡联动价,与周边地价形成近2万/㎡价差,堪称政策给予精明购房者的最后馈赠。
☑️☑️西派海上售楼处电话:400-8377-020☑️☑️

☑️☑️西派海上售楼处电话:400-8377-020☑️☑️
浦东内中环“绝版价”:项目所在的北蔡板块,作为内中环仅存的大规模成片开发区域,其地段价值早已被资本用真金白银投票认证。当同环线新房售价普遍站上12万+,西派海上以“9万+单价”实现“12万级品质” 的质价比奇迹,已成浦东改善市场的孤本。
◼ 收官战役:日光红盘的终极献礼
热销传奇续写终章:此前四次开盘,西派海上创下100%去化率浦东现象级战绩。每一次推售都是对市场信心的强力注脚,每一次售罄都是对产品价值的无声证言。
最后172席的稀缺分解:本次压轴加推的7#、9#、15#楼,蕴藏两大“绝版彩蛋”——
✅ 环线内最后32套建面约88㎡三房:浦东内中环500万级入场券终极释放,低总价锁定核心资产。(88平米整体700-800万,少量非标户型500-600万捡漏)
☑️☑️西派海上售楼处电话:400-8377-020☑️☑️
✅ 建面约110㎡边套最后18席:社区景观C位楼王,南向约13米开间+约6米巨幕横厅,终极改善的封箱之作。

☑️☑️西派海上售楼处电话:400-8377-020☑️☑️
28000㎡超级示范区
一场沉浸式的未来生活预展
【西派海上】不只是房子,而是献给上海的城市艺术品。作为国贸地产与中国铁建地产双世界500强联袂打造的“西派中国里程碑作品”,项目以示范级产品投入、全球顶序资源,重新定义浦东内中环品质天际线。

☑️☑️西派海上售楼处电话:400-8377-020☑️☑️
【温馨提示:按照项目规划,南北大门存在差异,南大门高度略低于北大门,敬请留意。】
全国大师天团联袂群著,跨界共塑海派新美学。
【西派海上】集结全国实力派设计力量,形成“大师天团”跨界共创——空间设计大师李益中以“LDKB+X”一体化厅打破传统住宅格局,营造灵动生活聚场,让功能与美学完美融合;景观由笛东操刀,以“公园里的华尔道夫”为核心理念,多重治愈场景串联起约450㎡无边水景、紫薇花廊与跨越多省精选的珍稀树王,漫步示范区宛若置身国际度假区;雕塑艺术家胡栋民则定制汉白玉门庭雕塑,灵感源自上海黄金年代的石库门与武康大楼,以现代手法复刻海派经典,让归家仪式成为一场穿越时空的艺术巡礼。
☑️☑️西派海上售楼处电话:400-8377-020☑️☑️
超级示范区实景兑现,国际海派生活无需想象。
【西派海上】以“所见即所得”的实景力碾压市场:约8000㎡超级示范区中,马赛克铺就的无边水景倒映艺术景墙,下沉茶室隐于斜飘铁冬青树王之下,紫薇花廊光影斑驳,每一处细节皆对标国际酒店品位。
约2000㎡高端会所更将海派奢华推向新的高度:

☑️☑️西派海上售楼处电话:400-8377-020☑️☑️
① 繁花之梯,同频百年华尔道夫,以精工细节打造海派艺术空间,一抹红色艺术楼梯是会所中的点金之笔,其形态宛若一缕红飘带,点缀于会所当中。

☑️☑️西派海上售楼处电话:400-8377-020☑️☑️
② 半标泳池,池底运用繁花马赛克,墙面与地面均使用大理石,天花板则运用发光玉石与造型艺术板,背景墙为LV同款定制双C造型艺术板。

☑️☑️西派海上售楼处电话:400-8377-020☑️☑️
③ 健身会馆,全会所健身器材采用豪宅标配的健身品牌waterrower的划船机、NOHrD跑步机、健身车等。
④ 下沉水院,核心焦点是天光茶室,打通首层水景池底,引入自然天光,整体营造比较浪漫、松弛的场景氛围,作为下午茶拍照打卡的理想场所。
源于全球珍藏手笔,细节镌刻圈层基因。

☑️☑️西派海上售楼处电话:400-8377-020☑️☑️
【西派海上】堪称“行走的奢石名木博物馆”——公馆门庭以整片巨型巴西铂金钻奢石景墙震慑视觉,单块石材纹理自然,如银河倾泻;会所吧台由整板亚马逊绿奢石切割而成,渐变绿色似热带雨林秘境;园林中更植入跨越多省超千公里精选的成对朴树、紫薇等珍稀树王,珍贵打造“活的生态遗产”。从石材到苗木,【西派海上】以“博物馆级”手笔,重新诠释高端住宅的质感标准。
当市场还在为 “效果图兑现” 争论不休时,西派海上早已用实景呈现打破行业想象!直接将 “所见即所得” 的高品质生活摆在购房者面前。这种降维打击式的诚意,不仅是对行业标准的颠覆,更是对人居价值的重新定义。
这,就是底气!作为西派中国里程碑式作品,它以超越价格的品质,让世界看到:真正的人居标杆,从来不以数字定义价值,而是用实景兑现的震撼,书写属于时代的传奇!
3重新定义浦东改善天花板
☑️☑️西派海上售楼处电话:400-8377-020☑️☑️
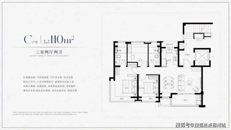
110㎡边套户型深度解析,该户型堪称“小面积段神作”,以四大设计重构改善逻辑:

☑️☑️西派海上售楼处电话:400-8377-020☑️☑️
南向约13米超级面宽:远超同面积段产品约9-10米的常规水平,实现3.5开间朝南,阳光渗透率达90%以上。
约6米横厅+双阳台系统:客厅、餐厅、厨房、阳台形成超40㎡的连续通透空间,家庭社交、亲子互动、派对宴请皆从容。
主卧270°全景舱设计:创新采用双转角飘窗,将楔形绿地与中央水景双重景观纳入私属领域,晨起观林海,夜卧枕星河。
在当下改善型住宅市场,真正能将空间利用率与居住舒适度完美融合的户型堪称凤毛麟角,而西派海上建面约103/105㎡的功能性真3房,无疑是其中的佼佼者。
凭借小高层的高得房率与飞机户型的精妙设计,这两款百平米户型打破了传统空间局限,以零走道的极致规划,将每一寸空间都发挥到极致,实现了真正意义上的三居室布局,与市面上常见的 “2+1 房” 竞品形成了天壤之别。

☑️☑️西派海上售楼处电话:400-8377-020☑️☑️

☑️☑️西派海上售楼处电话:400-8377-020☑️☑️
在浦东内中环改善市场一片 “大户型浪潮” 中,建面约88㎡的3房1卫堪称楼市 “沧海遗珠”,以刚需价位撬动核心地段,荣膺当之无愧的 “捡漏王” 称号!
此次加推的 15# 楼王尊席,占据社区景观中轴核心位置,不仅坐拥南北通透的经典飞机户型格局,更以 3 开间朝南的敞阔设计,搭配全卧飘窗的匠心巧思,将每一寸空间都化作生活的诗意栖居地。
更令人心动的是,入主内中环核心地段的门槛仅需 500-600 万起!在周边新房动辄千万的市场环境下,这样的 “黄金性价比” 堪称楼市奇迹。(88平米整体700-800万,少量非标户型500-600万捡漏)
然而机会稍纵即逝,此次仅限量推出 32 套,每一套都是无数购房者梦寐以求的安家钥匙。当稀缺属性遇上超高性价比,拼的不仅是预算,更是争分夺秒的手速!错过这 32 席,或许再难找到如此兼具地段、品质与价格优势的宝藏户型!

☑️☑️西派海上售楼处电话:400-8377-020☑️☑️
◼ 精装史诗:以高标准锻造生活肌理
西派海上的精装不是材料的堆砌,而是一场高级生活方式的场景化预演:
厨房系统:厨电配置了意大利品牌SMEG的灶台油烟机、博世太空舱五合一(蒸烤炸炖煮)蒸烤一体机与博世15套嵌入式洗碗机,霍尼韦尔前端净水器与末端净水器;
卫浴空间:卫浴洁具选用了全套的高仪产品,包括独立式全智能马桶、台盆、三孔调节龙头、恒温顶喷花洒等等......
☑️☑️西派海上售楼处电话:400-8377-020☑️☑️
细节偏执:全屋大量使用到奢石,归家门厅墙面采用石材镶嵌意大利毕加索奢石,地面采用大理石水刀海派拼花等,更显高端审美和品味。
4张江北蔡黄金三角的价值暴风眼
西派海上不仅是一个住宅项目,更是浦东发展红利的实体化载体。它占据着浦东最具爆发力的“黄金三角区”:

☑️☑️西派海上售楼处电话:400-8377-020☑️☑️
◼ 极核1:张江科学城——中☑️☑️西派海上售楼处电话:400-8377-020☑️☑️国硅谷的科创心脏
产业核爆力:紧邻上海光源、张江药谷、人工智能岛等国家战略项目,汇聚中芯国际、和记黄埔等2万余家企业,年产值突破1.3万亿。
高知蓄水池:区域内拥有约50万科技从业者,其中硕士以上学历占比38%,平均年薪超45万元,形成强大的高端购买力基座。
配套升级战:张江科学会堂、上海科技大学附属学校、嘉里商业综合体等高能配套密集落地,生活能级直追徐汇滨江。

☑️☑️西派海上售楼处电话:400-8377-020☑️☑️
◼ 极核2:北蔡楔形绿地——浦东的中央公园
生态孤品价值:约10.6平方公里绿地(相当于15个世纪公园)环抱项目,政府斥资128亿打造“城市绿肺”,含体育公园、湿地博物馆等设施。
头排资产定律:参照纽约中央公园1公里内豪宅溢价率常年超30%的规律,西派海上作为绿地头排项目,坐享不可复制的生态溢价空间。
教育王牌落地:上海浦东新区协和教育中心(涵盖幼儿园至高中)已正式签约入驻,英式精英教育体系无缝衔接。
☑️☑️西派海上售楼处电话:400-8377-020☑️☑️
◼ 极核3:立体交通网——浦东双轴交汇点
多轨交护航:项目周边直线约2km范围内,拥有包括2号线、13号线、16号线、18号线、磁悬浮等5条轨交,畅达全市的大部分CBD。
路网加速度:西派海上还拥有极为出众的交通优势:项目近罗山高架路、内环(直线距离内环约2.2公里)、中环。
商业新极点:北蔡中环商务区规划50万㎡商业体,山姆会员旗舰店已动工,将再造一个“浦东新天地”。

☑️☑️西派海上售楼处电话:400-8377-020☑️☑️
当浦东的黄金时代列车呼啸而过,西派海上如同内中环最后一张头等舱车票。它以“10万级的价格”承载“12万级的品质”,用8000㎡实景示范区兑现改善承诺,更以张江+北蔡绿地双重核爆级规划锁定未来十年增长极。
这172席压轴藏品,是双世界500强献给上海的最后一部新海派著作。建面约88㎡的环线绝唱,正以500万级总价撕开内中环壁垒;(88平米整体700-800万,少量非标户型500-600万捡漏)
历史经验昭示:每一次政策红利的退场,都伴随着资产价值的跃升。当北蔡地价冲破7.1万/㎡的今天,西派海上9.2万/㎡的联动价已成时代赠礼的最后一枚金币。
浦东内中环 全新盘
「西派海上」
项目剩余少量103-105㎡3房
总价约900万级
装标3000元/㎡
会所+泳池+健身房+壁球馆+架空层实景实体示范区
兴趣伙伴可扫码对接销售预约咨询参观

☑️☑️西派海上售楼处电话:400-8377-020☑️☑️

☑️☑️西派海上售楼处电话:400-8377-020☑️☑️

☑️☑️西派海上售楼处电话:400-8377-020☑️☑️
识别二维码
进入“西派海上”官方咨询通道
案场销售会第一时间与您联系
01.
基本信息
浦东张江新门面,内中环产品力标杆之作
西派海上入市至今,可谓一路高光。
首开热销,美学示范区开放仅两天,就吸引超2000组人气聚焦;此后二批次加推,再创认筹率佳绩,2024年12月开盘再度劲销,捷报连连,其产品力表现好评如潮,备受市场关注。 为何有如此优异战绩和口碑?

☑️☑️西派海上售楼处电话:400-8377-020☑️☑️
根源还是在 “基因”。
一方面两大世界级500强企业皆拥有深厚 产品锻造力: 国贸地产拥有丰富豪宅开发经验,旗下天琴系是全国高端豪宅系列之一;
“西派系” 则是中国铁建地产 TOP1 的产品系,已历十余年打磨和市场检验,在成都、重庆、广州等地备受塔尖圈层认可,并形成了 IP效应。
不止购房者,业界对其不断迭代的产品力也高度肯定,西派系连续6年斩获 “中国房地产项目品牌价值TOP10”就是最佳印证。
另一方面,两大开发商心怀焕新张江的决心。

☑️☑️西派海上售楼处电话:400-8377-020☑️☑️
因此,两大品牌优秀产品力交融,以“超配式”诚意,打造出了 西派海上, 这一 【西派顶序】西派中国里程碑作品, 填补了张江十年高端改善空缺。
说它“里程碑”,从 大师群著 就能一窥端倪。
西派海上不是只要求装标或社区一项指标好,而是全维度精进,邀请 全球大师共创 ,李益中负责空间、胡栋民设计雕塑、笛东操刀景观...从建筑、景观、户型甚至雕塑 全维度定制。
且不止硬件, 审美、艺术 被高度重视,开发商们洞察到了未来产品力比拼, 美学 将是一条独立赛道,因为阅尽繁华的高净值买家普遍具备很高的审美品味。
双世界500强联袂+大师群著,这才造就了全市首屈一指的约8000㎡超级示范区。
首先, 规模超大, 一般示范区也就4000、5000方,西派海上约8000㎡展示面是开发商对自身 产品兑现力 绝对自信的体现。
其次,不仅大,示范区更 有里子有面子。
①约88米海派公馆门庭
项目归家门庭沿街展面 约88米, 视觉冲击力极强,并采用高奢酒店“环岛式”落客流线, 配汉白玉大师雕塑 作品,墙面、地面采用 奢石 铺就。
这样气势磅礴的门庭,令张江的归家仪式感焕然一新,就像一座高奢酒店,刷新了张江的美学面貌。

☑️☑️西派海上售楼处电话:400-8377-020☑️☑️
清盘倒计时!约900万级买浦东内中环豪装3房【西派海上】少量约103-105㎡3房产品!
魔都购房团已关注
分享点赞在看已同步到看一看写下你的评论
视频详情
②、 约2000㎡圈层领地

☑️☑️西派海上售楼处电话:400-8377-020☑️☑️
同级项目配会所的极少,即使有,也普遍是会客厅+健身房,面积约1000㎡左右。
而西派海上打造了约2000㎡下沉式会所,内含 孔雀廊、水吧、健身房、半标游池、壁球馆、私宴区、儿童区等, 复刻华尔道夫传奇体验,构建一个“足不出户,奢享世界”的圈层领地。
在细节上,开发商都匠心处理,不是为了卖房子简单去做,而是真得想做到极致,把它当成 艺术品 对待,让空间更具生命力。

☑️☑️西派海上售楼处电话:400-8377-020☑️☑️

比如,半标无边界泳池, 池底运用了繁花马赛克,墙面与地面均使用大理石,天花板则运用发光玉石与造型艺术板,背景墙为LV同款定制双C造型艺术板。
这哪是一般的泳池,就是一个美术馆级的空间。
☑️☑️西派海上售楼处电话:400-8377-020☑️☑️
清盘倒计时!约900万级买浦东内中环豪装3房【西派海上】少量约103-105㎡3房产品!
魔都购房团已关注
分享点赞在看已同步到看一看写下你的评论
视频详情
又比如健身品牌的使用, 全会所健身器材采用豪宅标配的进口健身品牌waterrower的划船机、NOHrD跑步机、健身车 等。☑️☑️西派海上售楼处电话:400-8377-020☑️☑️

☑️☑️西派海上售楼处电话:400-8377-020☑️☑️
瑜伽室均采用定制品牌sws的真皮瑜伽垫、滚轴等,质感及调性拉满。

另外,部分 架空层 打造为多元主题休闲空间,一个集花艺、日咖夜酒、休闲阅读、咖啡体验、社交娱乐、骑行沙龙等多重功能为一体的“集中式”超级聚场,是业主解决亲子陪伴、半熟关系、邻里社交的理想之地。
☑️☑️西派海上售楼处电话:400-8377-020☑️☑️
清盘倒计时!约900万级买浦东内中环豪装3房【西派海上】少量约103-105㎡3房产品!
魔都购房团已关注
分享点赞在看已同步到看一看写下你的评论
视频详情
③、城市微度假园林生活

☑️☑️西派海上售楼处电话:400-8377-020☑️☑️
景观上,项目打造“海上繁花,摩登公馆”国际公园生活。
传统的水景,在这里成为 约500㎡马赛克无边水景, 搭配下沉式卡座,“在家就是度假”,天天酒店式享受。
传统的花园,在这里复刻了 海格罗夫庄园, 国际感、奢华感随处即拾。

☑️☑️西派海上售楼处电话:400-8377-020☑️☑️
第三,不仅硬件奢华,更融入 现代美学, 每个空间都化身 艺术空间。

①、国际新海派立面
项目立面点缀了 巴西铂金钻、巴西亚马逊绿 等珍贵石材,让建筑历久弥新的同时一眼封神。
②、社区即开放式艺术馆

☑️☑️西派海上售楼处电话:400-8377-020☑️☑️
参观完项目,我最大的感受是,西派海上不仅卷全实景,更在 审美艺术、生活方式 上接轨国际前沿,拔升了高端住宅的品味和调性。
艺术无处不在,比如入口处有胡栋民先生操刀,从约1500公里外臻选的汉白玉整石雕琢而成的《海·回声》;由张代松先生执笔的非遗纯铜雕塑也遍布园区。
每一个空间都不是简单的空间,而是化身 艺术空间。
③、社区树种身价高,也将是小孩子的植物课堂

☑️☑️西派海上售楼处电话:400-8377-020☑️☑️
项目匠心引进名木树种,30年树龄朴树、铁冬青、精品紫薇…且无一不是经过精挑洗选优美树形,打造四时有花、春色满园的景致。

☑️☑️西派海上售楼处电话:400-8377-020☑️☑️
这个示范区,不管是立足内中环、还是立足浦东、立足上海,都称得上是颠覆性的产品力革新!是上海真正的产品力标杆。