越秀外滩樾
区域
.01
越秀外滩越售楼处电话:400-8377-020
越秀外滩樾项目位于内环内虹口北外滩核心位置,占位“外滩-陆家嘴-北外滩”黄金三角核心。将以2座陆家嘴的商务体量规划,打造新天地2.0生活圈,成为上海跃升世界舞台的“中心发力”新引擎。北外滩总开发面积约840万方,未来将聚焦资产管理、金融科技、绿色航运等上游产业,打造“运作全球的总部城”。项目约1.5KM内拥享北外滩商圈、外滩商圈、陆家嘴商圈,华贸奢侈品品牌之家、白玉兰广场等潮奢集萃,未来上海顶奢商业新地标,举步间繁华尽拥。

越秀外滩越售楼处电话:400-8377-020

越秀外滩越售楼处电话:400-8377-020
交通
.02
项目多轨交汇,紧邻12号线国际客运中心站约500米,4号线、10号线、(19号线在建)海伦路站约850米,3站南京东路,6站新天地,项目靠近周家嘴路等城市主干道,可快速衔接北横通道,通达虹桥机场/虹桥火车站;新建路隧道,快速直达陆家嘴CBD;外滩隧道,直达外滩金融商业街以及老码头;三隧道环伺,浦东浦西无缝切换,轻松抵达全城核心商圈。越秀外滩越售楼处电话:400-8377-020

越秀外滩越售楼处电话:400-8377-020
项目
.03
越秀外滩樾由越秀地产和临港集团联合打造,仅49套低密海派风貌院墅,产品为双拼、三拼院墅,容积率1.3,纯墅区无高层。建筑风格采用海派经典元素,现代奢石,清水红砖、岩石山墙、古典门头等百年海派符号复刻,融合海派文化与现代奢居的打造理念。并规划约2500平“樾”心会所,涵盖恒温泳池、健身房、私宴厅等功能,打造沉浸式山水庭院景观。由越秀物业,提供24小时管家服务。越秀外滩越售楼处电话:400-8377-020

越秀外滩越售楼处电话:400-8377-020

越秀外滩越售楼处电话:400-8377-020

越秀外滩越售楼处电话:400-8377-020

越秀外滩越售楼处电话:400-8377-020

越秀外滩越售楼处电话:400-8377-020

越秀外滩越售楼处电话:400-8377-020

越秀外滩越售楼处电话:400-8377-020
出售
.04
风貌别墅
仅48套低密风貌别墅(双拼/三拼),地上3层、地下2层,层高3.2-3.9米、地下挑空6.15米,户户带30-80平私家庭院、观景露台。建面约238平、305平、318平、338平米,售价19.5万/平,总价4800-9000万

越秀外滩越售楼处电话:400-8377-020

越秀外滩越售楼处电话:400-8377-020

越秀外滩越售楼处电话:400-8377-020


越秀外滩越售楼处电话:400-8377-020

越秀外滩越售楼处电话:400-8377-020
虹口北外滩 低密风貌别墅
由越秀地产+临港集团联合打造
越秀临港虹口156街坊风貌别墅
【越秀·外滩樾】纯别墅社区

越秀外滩越售楼处电话:400-8377-020
风貌之上 世界堂前
建面约238㎡—338㎡
总价约4000-9000万
海派院墅三里外滩
立传别墅从你开启传承展厅已开放
70年产权住宅 容积率:约1.3
MODEL ROOM RESERVATION
预 约 看 实 房
越秀外滩越售楼处电话:400-8377-020

越秀外滩越售楼处电话:400-8377-020

越秀外滩越售楼处电话:400-8377-020

越秀外滩越售楼处电话:400-8377-020
户型图如下:
(过程稿仅供参考,最终以实际为准)
236.25㎡A户型:

越秀外滩越售楼处电话:400-8377-020
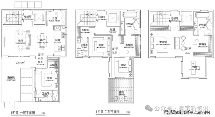
239.13㎡B户型:

239.13㎡B户型:

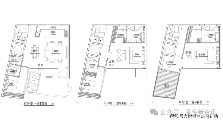
C户型:

越秀外滩越售楼处电话:400-8377-020
291.42㎡D户型

越秀外滩越售楼处电话:400-8377-020


越秀外滩越售楼处电话:400-8377-020

越秀外滩越售楼处电话:400-8377-020

越秀外滩越售楼处电话:400-8377-020

越秀外滩越售楼处电话:400-8377-020


越秀外滩越售楼处电话:400-8377-020

越秀外滩越售楼处电话:400-8377-020

越秀外滩越售楼处电话:400-8377-020

越秀外滩越售楼处电话:400-8377-020

【传奇的1.5公里 启航外滩百年世界史】
项目所在地北外滩,是百年前上海的发源地。作为上海开埠后第一座码头的诞生地,北外滩率先“开眼看世界”,海纳万国文化风潮,众多此后影响中国的创举在此诞生,是上海最早的“十里洋场”。

越秀外滩越售楼处电话:400-8377-020
【世界的1.5公里 再立世界上海新传】
傲立“一江一河”交汇处(直线距离黄浦江约1km),未来将打造成为彰显上海城市核心竞争力的黄金水岸和具有国际影响力的世界级城市会客厅,出入之间,相逢城市高阶未来。

越秀外滩越售楼处电话:400-8377-020
【上海新封面】黄金三角顶序规划
北外滩,与外滩、陆家嘴并称为上海的“黄金三角”。将以2座陆家嘴的商务体量规划,新天地2.0生活圈打造,成为上海跃升世界舞台的“中心发力”新引擎。
【经济中心】全球化核心腹地
北外滩总开发面积约840万方,自陆家嘴之后上海最大开发区域,未来将聚焦资产管理、金融科技、绿色航运等上游产业,打造“运作全球的总部城”。

越秀外滩越售楼处电话:400-8377-020
【极核中心】顶奢商业新地标
约1.5KM内拥享北外滩商圈、外滩商圈、陆家嘴商圈,华贸奢侈品品牌之家、白玉兰广场等潮奢集萃,未来上海顶奢商业新地标,举步间繁华尽拥。

越秀外滩越售楼处电话:400-8377-020


越秀外滩越售楼处电话:400-8377-020
一城中轴 半壁越秀:打造广州地标IFC、城建大厦、维多利广场、越秀金融大厦、财富广场、市长大厦、广州环贸中心(ICC)等诸多重量级作品。
全球地标打造者:广州国际金融中心(IFC)高约440.75米,建成之时为全球10大超高层建筑之一,获得国际建筑界奥斯卡“英国菜伯金奖”。(此外,中国仅北京“鸟巢”和上海世博会英国馆荣获该奖项。)
豪宅基因始终传承:打造“广州第一富人区”二沙岛,屹立广州顶豪之列,整个二沙岛9个项目,有7个项目都是越秀开发,其中越秀宏城花园单价25万-40万/㎡,总价1-6亿,一房难求。

越秀外滩越售楼处电话:400-8377-020
风貌之上 世界堂前
建面约238㎡—338㎡
总价约4500-9000万
海派院墅 三里外滩 立传别墅
70年产权住宅 容积率:约1.3
从你开启传承
MODEL ROOM RESERVATION
预 约 看 实 房