招商云澜湾(招商云澜湾售楼处)招商云澜湾(营销中心)-售楼处楼盘欢迎您-小区环境-户型-价格-地址-楼盘详情-周边配套-售楼处电话-交房时间

搜狐焦点宿州站 2025-09-12 10:42:37
用手机看
扫描到手机,新闻随时看

扫一扫,用手机看文章
更加方便分享给朋友

招商云澜湾售楼处预约电话:400-8824-198

松江新城·滨水低密墅区

建面约96-126㎡小高层

建面约135-141㎡叠加

均价4.5万/㎡ 总价约341万起

无需积分 可直接下定

样板房火热预约中

招商云澜湾售楼处预约电话:400-8824-198

项目基础信息

招商云澜湾售楼处预约电话:400-8824-198

项目名称:招商云澜湾

所属区位:上海·松江新城

产权年限:70年产权

总建筑面积:超7.2万方

可售住宅套数:617套(高层477套,叠加140套)

车位:约860个(地上85个,地下775个)

容积率:约1.6

绿地率:约35%

产品类型:高层(总高13F直通地下车库;一梯两户北向无连廊)、叠加(总高4F带电梯;下叠带地下室、上叠带露台)

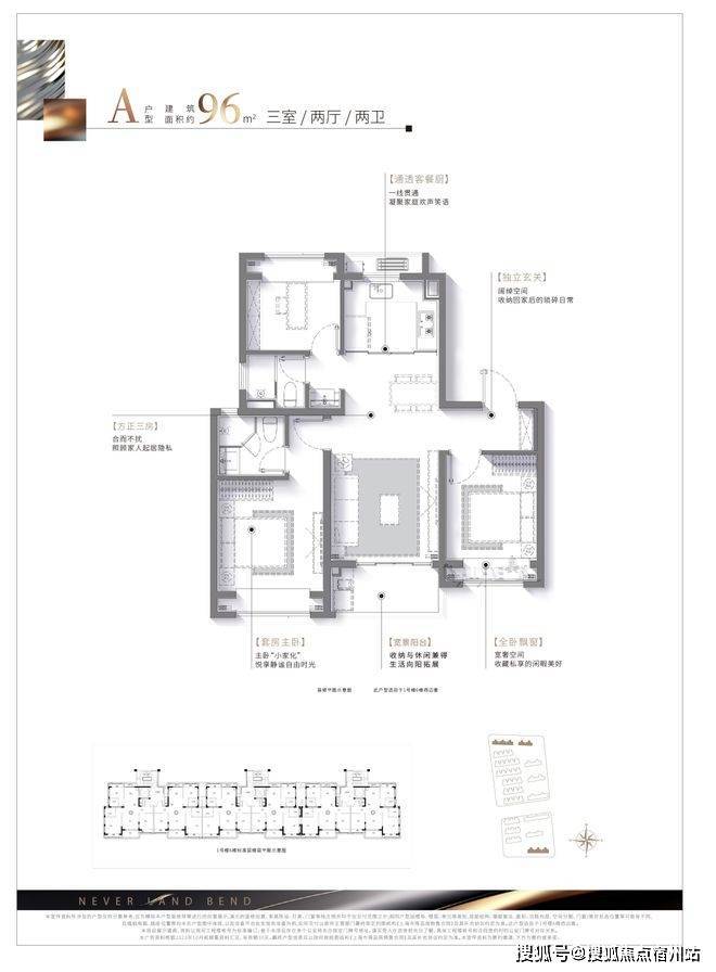
建面约:96㎡ 三房两厅两卫(高层)

100㎡ 三房两厅两卫(高层)

126㎡ 四房两厅两卫(高层)

135-141㎡(叠加)

均价:高层约4.5万/平,毛坯约3.9万/平(96平毛坯),叠加约6万/平

总价:约345-862万

总高:高层13层

叠加:下叠 1复2带地下室,上叠 3复4带露台

层高:高层 3米

叠加 首层3.3米,第二层3.1米

得房率:96/100平 约75%

126平 约80%

装修标准:高层 装修交付(中央空调+地暖+新风系统,除17幢是毛坯交付)

叠加 毛坯交付

拿地时间:2023年7月

交房时间:2025年12月31日

民族先驱 百年品牌的舒心

招商云澜湾售楼处预约电话:400-8824-198创立于1872年、具有百年历史的招商,不仅仅是中央直接管理的国有重要骨干企业,中国族工商业的先驱,更是持续蝉联世界500强!招商云澜湾售楼处预约电话:400-8824-198

招商云澜湾售楼处预约电话:400-8824-198招商蛇口,企业品牌价值位列行业TOP5 招商蛇口,招商局集团旗下城市综合开发运营板块的旗舰企业。入沪20载,招商蛇口开发项目超过50余座,“玺系”和 “璀璨系”两大红盘产品线,与城市共荣共进。招商云澜湾售楼处预约电话:400-8824-198

招商云澜湾售楼处预约电话:400-8824-198深耕13载,六子耀松江 2010年,招商蛇口初次进入松江。13载深耕,匠筑5大人居代表作,与松江共荣共进。2023年,招商蛇口溯源归来,“云澜系”上海首作——招商·云澜湾,对话千年繁华正脉,共鸣松江焕“芯”时代。招商云澜湾售楼处预约电话:400-8824-198

约1.6容积率低密墅区

打造松江新城品质住宅

招商云澜湾售楼处预约电话:400-8824-198在产品规划布局上,项目更是匠心打造罕见的纯4F叠墅,只有上下两叠的真叠墅,产品更加纯粹;以及全部无连廊的13F小高层,得房率更高,通透性更好!不管是中间套还是边套,舒适性、隐私性都更好~招商云澜湾售楼处预约电话:400-8824-198

效果图,仅供参考

招商云澜湾售楼处预约电话:400-8824-198项目南北地块坐拥双滨水景观带,居家即可享受自然滨水风光。在此基础上,项目更规划打造“两轴一林多重花巷”景观组团,让业主尽情拥抱自然生活。招商云澜湾售楼处预约电话:400-8824-198

效果图,仅供参考

招商云澜湾售楼处预约电话:400-8824-198同时更以“两心三区三主题”场景规划,打造两大中央会客厅,承载全龄段会客、休憩、娱乐、观赏等功能所需;并打造两大童乐活动区、青年运动区、长者康养区等全龄活动场所,可满足不同年龄段业主的生活需求。招商云澜湾售楼处预约电话:400-8824-198

效果图,仅供参考

招商云澜湾售楼处预约电话:400-8824-198此外,项目针对活动、会客、休闲等不同功能,规划开放式、半开放式不同氛围感的架空层,从会客接待到赏阅自我,可满足极富涵养的高知友邻每一种社交需求。招商云澜湾售楼处预约电话:400-8824-198

招商云澜湾售楼处预约电话:400-8824-198建筑设计上,充分考虑松江千年历史和丰厚文化肌理,设计以塔冠致敬松江传统建筑屋檐符号,以暖隐喻着海派的砖红审美,同时运用大量的圆角设计,形成独特的现代立面艺术。招商云澜湾售楼处预约电话:400-8824-198

效果图,仅供参考

招商云澜湾售楼处预约电话:400-8824-198项目还规划了3重定制公区,以酒店式社区大堂、臻装楼栋门厅&地下车库,开启尊崇归家仪式感。招商云澜湾售楼处预约电话:400-8824-198

效果图,仅供参考

招商云澜湾售楼处预约电话:400-8824-198同时还规划小区周界防护、车辆视频识别系统、全区视频监控系统、单元入口门禁系统、入户智能指纹锁、家庭安防报警系统等6重安防体系,全方位保障业主日常生活。招商云澜湾售楼处预约电话:400-8824-198

招商云澜湾售楼处预约电话:400-8824-198这样的高定品质,对于区域改善购房者来说,是不容错过的进阶之选!招商云澜湾售楼处预约电话:400-8824-198

招商云澜湾售楼处预约电话:400-8824-198最后,不可忽略的是招商·云澜湾还是“价格洼地”!招商云澜湾售楼处预约电话:400-8824-198

数据来源网上房地产公示信息/百度地图

进阶墅质人居

低总价即可上车精装3居

招商云澜湾售楼处预约电话:400-8824-198招商·云澜湾首推建面约96-126㎡小高层&约135-141㎡叠加户型!满足低总价上车到终极改善各类置业需求。招商云澜湾售楼处预约电话:400-8824-198

首开户型落位示意图

招商云澜湾售楼处预约电话:400-8824-198惊喜的是,项目带来小户型面积段,较大程度上控制了总价,降低了置业门槛;飞机户型的设计,让每1㎡空间都在重现居住的价值!招商云澜湾售楼处预约电话:400-8824-198

招商云澜湾售楼处预约电话:400-8824-198如建面约96㎡户型,性价比极高,是一个低总价上车3房的优质选择。经典飞机户型+三房两厅两卫设计,照顾家人的起居隐私;更有客餐厨一体化贯通设计,使得空间不设限更显大;主卧“小家化”,悦享静谧自由生活;进门处设置独立玄关空间,增加收纳的同时,也保护了业主隐私。招商云澜湾售楼处预约电话:400-8824-198

招商云澜湾售楼处预约电话:400-8824-198而建面约100㎡的三房两厅两卫户型,可以说是约96㎡3房的升级版,空间更加延展,整体横厅面宽约5.2米(轴中距),形成更大的南向采光面,且搭配南向观景阳台,直接做到了3.5面宽朝南,这在同类产品中是比较少见的。招商云澜湾售楼处预约电话:400-8824-198

招商云澜湾售楼处预约电话:400-8824-198此外,干湿分离卫浴设计+南向套房主卧+全卧飘窗设计,生活舒适度拉满。招商云澜湾售楼处预约电话:400-8824-198

招商云澜湾售楼处预约电话:400-8824-198建面约126㎡四房两厅两卫,更大限度保留了南向房间,四开间朝南,并且是LDKG一体化设计,全飘设计,更大大增加了室内尺度感和实用空间。招商云澜湾售楼处预约电话:400-8824-198

招商云澜湾售楼处预约电话:400-8824-198项目高层的装修标准,更是令人动心。不仅中央空调、地暖、新风等大件一样不少,洗碗机、玄关柜全部是交付标准,户内客餐厅卧室交付时均配置墙布;在厨卫品牌方面,甄选科勒、方太或同等品牌,主卫额外配置卫洗丽,诚意十足。招商云澜湾售楼处预约电话:400-8824-198

展示空间实景图

招商云澜湾售楼处预约电话:400-8824-198另外细节上,还有不少打动人心的加分项。如卫浴空间配置防水插座、防臭地漏,阳台配置防水插座、防滑地砖、专用地漏等,细节之处贴心入微!招商云澜湾售楼处预约电话:400-8824-198

招商云澜湾售楼处预约电话:400-8824-198除了小高层产品,项目此次还推出约135-141㎡叠加户型,作为只有上下两叠的真叠墅,无论居住尺度感和尊贵感都上了一个LEVEL,带来一步到位的理想改善生活。招商云澜湾售楼处预约电话:400-8824-198

建面约135㎡叠拼别墅

建面约141㎡叠拼别墅

建面约96㎡样板间展示如下

项目区位规划

招商云澜湾售楼处预约电话:400-8824-198项目地处松江新城永丰街道。松江新城板块位于松江区中心位置,成熟的配套和交通已成为松江的核心。加快建成松江枢纽,规划中地铁9号线和23号线,快线东西联络线和嘉青松金线,共计4条轨交在此交汇。再加上12号线西延伸段将也将于今年开始动工。招商云澜湾售楼处预约电话:400-8824-198

招商云澜湾售楼处预约电话:400-8824-198据悉,松江未来有望在嘉松公路以35号线将9号线与17号线南北贯通,届时将有可能升级为六轨交汇的松江新城。永丰是松江主城区的核心位置,而项目地块更是主城区最后一块优质土地。招商云澜湾售楼处预约电话:400-8824-198

招商云澜湾售楼处预约电话:400-8824-198总体看来,松江老城(永丰街道)油墩港以南界面和北面相比,无论是配套、学校、商业、城市界面还是居住氛围,都完全不能相比。我们都知道,即使是同一个单元,不同的地块,因为位置不同,价格也会出现不同,比如二批次出让的宅地:招商云澜湾售楼处预约电话:400-8824-198

△ 宝山南大地块,保利海上臻悦,6.3万/㎡;二批次金茂地块则6.7万/㎡;招商云澜湾售楼处预约电话:400-8824-198

△ 徐泾双联路北侧地块,绿城宅地,6.2万/㎡,隔壁虹桥公馆,6.4万/㎡;招商云澜湾售楼处预约电话:400-8824-198

△ 桃浦智创城,最新指导价8.55万/㎡,而之前位置处在智创城边缘一些的【象屿&交控桃浦项目】,指导价仅7.9万/㎡。招商云澜湾售楼处预约电话:400-8824-198

招商云澜湾售楼处预约电话:400-8824-198而22年的H17-02号地块,联动价4.9万/㎡,容积率1.5;23年7月,三盛颐景园东面招商双地块,容积率1.6,联动价同样是4.9万/㎡...容积率差不多,但是各方面配置都提高了不止一个等级的情况下,招商的宅地,竟然没有涨价。招商云澜湾售楼处预约电话:400-8824-198

醇熟配套 业态丰富

招商云澜湾售楼处预约电话:400-8824-198交通配套:小区门口50m配有有轨电车T1、T2线、长途汽车客运站;4km到9号线醉白池站,自驾沪昆高速,转换沪闵高架、中环、南北高架、内环高架等,可快速到达上海市区,也可通过S32申嘉湖高速,可以快速到达浦东机场;招商云澜湾售楼处预约电话:400-8824-198

招商云澜湾售楼处预约电话:400-8824-198教育配套:七大高校+上海师范大学附属外国语中学、松江区仓桥学校、上海对外经贸大学附属松江实交通验学校、第三实验小学、华亭第二幼儿园;私立学校或者国际学校有包玉刚实验学校、松江西外外国语学校、赫德国际学校。招商云澜湾售楼处预约电话:400-8824-198

招商云澜湾售楼处预约电话:400-8824-198商业配套:家门口新理想广场、2km泰晤士小镇、2km飞航广场,开车约20分钟可到万达、印象城等大型商圈。招商云澜湾售楼处预约电话:400-8824-198

招商云澜湾售楼处预约电话:400-8824-198医疗配套:松江区中心医院、上海市第一人民医院南院(三级甲等)、永丰街道社区卫生服务中心、方塔中医院、松江妇幼保健院(二级甲等)招商云澜湾售楼处预约电话:400-8824-198

招商云澜湾售楼处预约电话:400-8824-198休闲配套:永丰城市公园、三新体育场、永丰社区文体中心(在建)、仓城历史文化风貌保护区。招商云澜湾售楼处预约电话:400-8824-198

项目一房一价表

招商云澜湾售楼处预约电话:400-8824-198

招商云澜湾售楼处预约电话:400-8824-198

8月25日,上海市住房城乡建设管理委、市房屋管理局、市财政局、市税务局、人民银行上海市分行、市公积金管理中心等六部门联合印发《关于优化调整本市房地产政策措施的通知》(以下简称《通知》),包括调减住房限购、优化住房公积金、优化个人住房信贷以及完善个人住房房产税等政策。《通知》自2025年8月26日起施行。

一、调减住房限购政策

为更好满足居民改善性需求,促进宜居安居、职住平衡,《通知》明确进一步调减住房限购政策。一是符合条件居民家庭在外环外购房不限套数。对符合本市住房购买条件的居民家庭,包括本市户籍居民家庭、在本市连续缴纳社会保险或个人所得税满1年及以上的非本市户籍居民家庭,在外环外购买住房不限套数,包括新建商品住房和二手住房。二是成年单身人士按照居民家庭执行住房限购政策。

按照上述规定,沪籍居民家庭和沪籍成年单身人士,在外环外购买住房不限套数;在外环内限购2套住房。非沪籍居民家庭和非沪籍成年单身人士,自购房之日前在本市连续缴纳社会保险或个人所得税满1年及以上的,在外环外购买住房不限套数;自购房之日前在本市连续缴纳社会保险或个人所得税满3年及以上的,在外环内限购1套住房。

关于住房限购政策相关业务,可拨打房地产交易行业服务热线“962269”具体咨询。

二、优化住房公积金政策

为加大公积金支持住房消费力度,《通知》规定优化住房公积金政策。一是提高个人住房公积金贷款额度。对缴存人购买二星级及以上新建绿色建筑住房的,住房公积金(含补充公积金)最高贷款额度上浮15%。首套最高贷款额度从160万元提高至184万元,多子女家庭首套上浮比例可叠加计算,从192万元提高至216万元;二套最高贷款额度从130万元提高至149.5万元。二是支持提取住房公积金支付购房首付款。对缴存人购买我市新建预售商品住房的,可以按规定申请提取本人及配偶的住房公积金支付购房首付款。三是支持住房公积金“又提又贷”。对缴存人提取住房公积金支付购房首付款的,不影响其住房公积金贷款额度计算。

关于住房公积金贷款和提取业务的具体办理方式及材料,可查询上海住房公积金官网或拨打住房公积金热线“12329”具体咨询。

三、优化调整商业性个人住房贷款利率定价机制

为减轻居民购房利息负担,《通知》明确优化个人住房信贷政策。银行业金融机构根据上海市市场利率定价自律机制要求和本机构经营状况、客户风险状况等因素,在利率定价机制安排方面不再区分首套住房和二套住房,合理确定每笔商业性个人住房贷款的具体利率水平。

关于住房贷款相关业务,可向经办银行具体咨询。

四、完善个人住房房产税政策

为衔接优化住房限购政策,《通知》规定对符合条件的非本市户籍居民家庭购买的第一套住房暂免征收房产税;购买的第二套及以上住房在合并计算家庭全部住房面积后,给予人均60平方米的免税面积扣除。由于个人住房房产税按年征收,因此2025年1月1日起符合条件的购房者可享受本条政策。

声明:本文由入驻焦点开放平台的作者撰写,除焦点官方账号外,观点仅代表作者本人,不代表焦点立场。