「嘉利108公馆」
静安内环核心地段
建面约54~95㎡精装公寓
8号线西藏北路地铁站400米
总价约:350万-723万
5.6米层高复式 得房率130%
50年商办产权 不限购 稀缺Loft公寓
☑️☑️嘉利108公馆售楼处电话:400-8377-020☑️☑️

☑️☑️嘉利108公馆售楼处电话:400-8377-020☑️☑️
项目基础信息
【名称】嘉利108公馆
【板块】静安大宁中心
【地址】嘉利商业广场
【类型】商业办公
【竣工】2010年
【建面】复式63—95㎡
【总价】¥450-620万
【年限】50年(2006年-2056年)
【总高】21层
【得房率】130%
【开发商】上海北亚华欣置业有限公司
【物业】上海中建物业管理有限公司
【物业费】5元/平/月
☑️☑️嘉利108公馆售楼处电话:400-8377-020☑️☑️
【停车费】地上5/小时 地下7/小时 每天上限8小时 建议客户临时租赁比包月划算。
【水/电费】水:6元/吨
电:0.95/度(平) 0.45/度(谷)
【梯户比】:6梯22户 两个消防步梯
【首付比例】:7.5成左右
【交房标准】:精装全配送软装
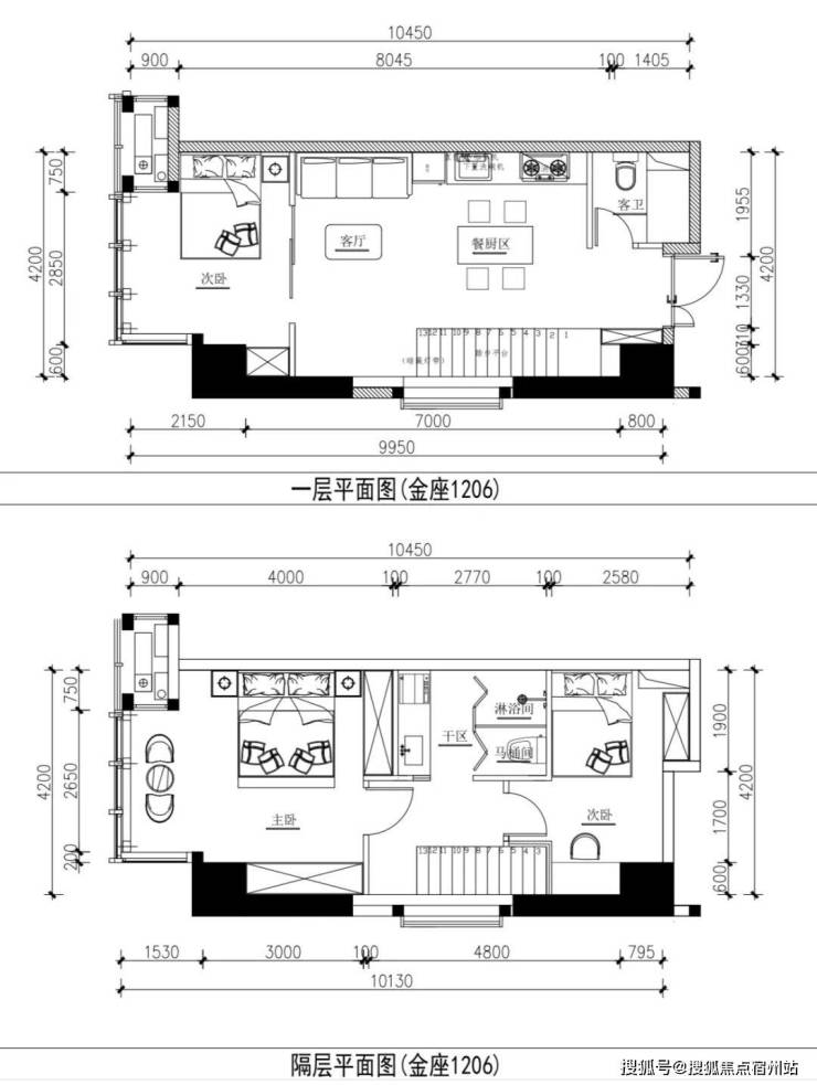
户型图及样板间照
【项目户型图】▼

☑️☑️嘉利108公馆售楼处电话:400-8377-020☑️☑️

☑️☑️嘉利108公馆售楼处电话:400-8377-020☑️☑️

☑️☑️嘉利108公馆售楼处电话:400-8377-020☑️☑️

☑️☑️嘉利108公馆售楼处电话:400-8377-020☑️☑️
【项目样板间实景图】▼

☑️☑️嘉利108公馆售楼处电话:400-8377-020☑️☑️


☑️☑️嘉利108公馆售楼处电话:400-8377-020☑️☑️

☑️☑️嘉利108公馆售楼处电话:400-8377-020☑️☑️

☑️☑️嘉利108公馆售楼处电话:400-8377-020☑️☑️

☑️☑️嘉利108公馆售楼处电话:400-8377-020☑️☑️

☑️☑️嘉利108公馆售楼处电话:400-8377-020☑️☑️
项目区位配套
项目地址位于上海静安区平型关路108号。隶属整个静安最完善的市级商圈大宁板块,毗邻人民广场及虹口足球场商圈,地理位置优越、配套成熟、生活便利、公共交通四通八达。项目本身自带底商,瑞幸咖啡,全家,各类重轻餐饮(火锅、快餐、日料、酒吧)等一应俱全,生活非常便捷。地下一层就是超大型综合卖场大润发,完全可以满足您日常生活所需。

☑️☑️嘉利108公馆售楼处电话:400-8377-020☑️☑️
【交通配套方面】步行350米到达8号线西藏北路地铁站,3站到达人民广场,乘坐1站到达虹口足球场站便可换乘3号线;1.3公里到达1号线中山北路地铁站;自驾5分钟内到达内环高架路及南北高架,10分钟可上中环。人民广场、陆家嘴、静安寺、徐家汇、五角场等上海核心商圈,30分钟内均可达到。
【底商与附近大型商圈】驱车10分钟以内便可到达上海著名的大宁商圈以及虹口足球场商圈:大宁国际购房广场,伍绿折扣店,红双喜专卖店,联华超市,大润发超市

☑️☑️嘉利108公馆售楼处电话:400-8377-020☑️☑️

☑️☑️嘉利108公馆售楼处电话:400-8377-020☑️☑️

☑️☑️嘉利108公馆售楼处电话:400-8377-020☑️☑️

☑️☑️嘉利108公馆售楼处电话:400-8377-020☑️☑️
【医疗资源方面】三甲医院有第十人民医院和同济附属口腔医院等坐镇。

☑️☑️嘉利108公馆售楼处电话:400-8377-020☑️☑️
【教育资源方面】上海外国语大学、上海大学等著名高等院校;市北中学、风华初级中学、大宁国际小学、闸北实验小学等市重点高中及一梯队小学均相聚在此。
【人文配套】上海马戏城、鲁迅公园、虹口足球场等娱乐文化体育场所。

☑️☑️嘉利108公馆售楼处电话:400-8377-020☑️☑️
「嘉利108公馆」
静安内环核心地段
建面约60~95㎡精装公寓
8号线西藏北路地铁站400米
总价约:390万-723万
5.6米层高复式 得房率130%
50年商办产权 不限购 稀缺Loft公寓
☑️☑️嘉利108公馆售楼处电话:400-8377-020☑️☑️

☑️☑️嘉利108公馆售楼处电话:400-8377-020☑️☑️
项目地址位于上海静安区平型关路108号。隶属整个静安最完善的市级商圈大宁板块,毗邻人民广场及虹口足球场商圈,地理位置优越、配套成熟、生活便利、公共交通四通八达。项目本身自带底商,瑞幸咖啡,全家,各类重轻餐饮(火锅、快餐、日料、酒吧)等一应俱全,生活非常便捷。地下一层就是超大型综合卖场大润发,完全可以满足您日常生活所需。
☑️☑️嘉利108公馆售楼处电话:400-8377-020☑️☑️
【项目基本信息】
板块区位:静安区大宁
地址:嘉利商业广场,静安区平型关路(近西藏北路)
产权:50年
容积率:2.4
总体量:20套
在售面积:复式59~95平
总价:450~723万
交付:精装全配
物业公司:中建物业管理
物业费:5元
停车:1200元/月 临停5元/小时
项目户型图

☑️☑️嘉利108公馆售楼处电话:400-8377-020☑️☑️

☑️☑️嘉利108公馆售楼处电话:400-8377-020☑️☑️

☑️☑️嘉利108公馆售楼处电话:400-8377-020☑️☑️

☑️☑️嘉利108公馆售楼处电话:400-8377-020☑️☑️
建面约63㎡样板间实拍图

☑️☑️嘉利108公馆售楼处电话:400-8377-020☑️☑️

☑️☑️嘉利108公馆售楼处电话:400-8377-020☑️☑️

☑️☑️嘉利108公馆售楼处电话:400-8377-020☑️☑️
建面约67㎡样板间实拍图

☑️☑️嘉利108公馆售楼处电话:400-8377-020☑️☑️

☑️☑️嘉利108公馆售楼处电话:400-8377-020☑️☑️

☑️☑️嘉利108公馆售楼处电话:400-8377-020☑️☑️
交通方面:步行350米到达8号线西藏北路地铁站,约1.3公里到达1号线中山北路地铁站;自驾5分钟内到达内环高架路及南北高架,10分钟可上中环。
商业方面:驱车10分钟以内便可到达上海著名的大宁商圈以及虹口足球场商圈:大宁国际购房广场,伍绿折扣店,红双喜专卖店,联华超市,大润发超市。

☑️☑️嘉利108公馆售楼处电话:400-8377-020☑️☑️

☑️☑️嘉利108公馆售楼处电话:400-8377-020☑️☑️
医疗方面:三甲医院有第十人民医院和同济附属口腔医院等坐镇。

☑️☑️嘉利108公馆售楼处电话:400-8377-020☑️☑️
☑️☑️嘉利108公馆售楼处电话:400-8377-020☑️☑️