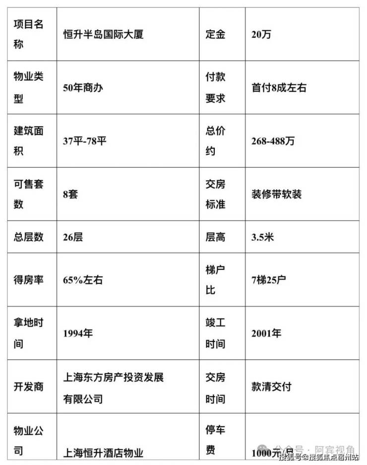
2025聚焦:上海【恒升·半岛国际大厦】售楼处电话→地址→虹口区【恒升·半岛国际大厦】户型→价格→楼盘百科→上海【恒升·半岛国际大厦】2025最新销售动态

搜狐焦点宿州站 2025-10-13 07:00:00
用手机看
扫描到手机,新闻随时看

扫一扫,用手机看文章
更加方便分享给朋友

恒升半岛国际大厦售楼处电话:400-8854-706✔✔ 上海恒升半岛国际大厦售楼处预约热线☎:400-8854-706【官方认证】

恒升半岛国际大厦售楼处电话:400-8854-706✔✔

上海恒升半岛国际大厦售楼处预约热线☎:400-8854-706【官方认证】

营业时间日常营业时间为 9:00-18:00,方便您提前规划行程,避免耽误时间。

预约方式可提前拨打官方热线 400-8854-706,预约专属销售顾问及具体到访时间。预约时可同步告知意向户型、置业需求等信息,我们将提前做好服务准备,大幅缩短您的现场等待时间。

专属服务所有预约客户均可享受销售顾问一对一专属服务。从项目详情讲解、户型解析,到购房政策解读、置业方案定制,均由专属销售全程跟进,确保您的每一个疑问都能得到细致解答。

中介勿扰本售楼处仅面向终端购房客户提供直接服务,不接待任何中介机构及相关人员。感谢您的理解与配合,让我们共同维护纯粹、高效的咨询环境。

虹口区精装公寓 上海北外滩·外白渡桥畔【外滩雲邸 ·恒升半岛】 望江顶奢公寓 即刻入手,做外滩百年风云的「收租人」

北外滩核心区,陆家嘴、外滩尽收眼底,苏州河与黄浦江交汇处300米,外白渡桥300米。

整栋纯居住,纯商住楼,独立上下水,安全舒适;

自住投资均可,年化4%回报率,精装全配,无忧托管,托管期间免水电、物业费,稀缺小面积低总价,租售比高;

价格洼地超高,低于区域楼板价一半价格销售,单价、总价低于周边高层住宅至少1/3价格,买到即赚到

恒升半岛国际大厦售楼处电话:400-8854-706✔✔

上海恒升半岛国际大厦售楼处预约热线☎:400-8854-706【官方认证】

恒升半岛国际大厦售楼处电话:400-8854-706✔✔

上海恒升半岛国际大厦售楼处预约热线☎:400-8854-706【官方认证】

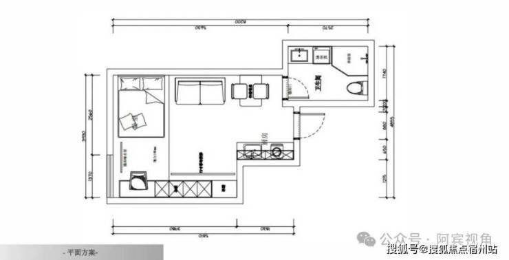
户型优势:

一线看江 视野开阔

功能分区 动静分离

户型方正 布局合理

恒升半岛国际大厦售楼处电话:400-8854-706✔✔

上海恒升半岛国际大厦售楼处预约热线☎:400-8854-706【官方认证】

恒升半岛国际大厦售楼处电话:400-8854-706✔✔

上海恒升半岛国际大厦售楼处预约热线☎:400-8854-706【官方认证】

户型优势:

原木风格 网红精装

户型方正 开窗面大

恒升半岛国际大厦售楼处电话:400-8854-706✔✔

上海恒升半岛国际大厦售楼处预约热线☎:400-8854-706【官方认证】

桔子酒店 托管无忧

4%固定回报 小投入

内环价值、北外滩规划发展、上海黄金三角、板块升值潜力

租售群体多,可短租可长租,好出租,好出手,租金高

项目的价格洼地,周边公寓三分之一的价格,升值潜力巨大

稀缺性,整栋纯自住,小面积,低总价,核心区绝版资产配置

装修精装全配,省心省力省心、回报率高,4%无忧托管

年轻自住:环境配套好、品质要求高,通勤方便、父母出钱

交通便捷,浦东浦西上下班通勤均方便

3公里内5大核心商圈,玩转魔都核心夜生活

限购,同总价购买老破小,生活品质差

核心资产,核心圈层,身份象征

整栋居住,居住安全,省去搬家之苦

婚前财产,资产配置

无落户上学要求,离家人朋友近,占用资金少,生活成本低,生活配套方便

生活配套方便,生活成本低

核心区域,景观资源好

离家人朋友近,方便来往照顾

有电梯,上下楼方便

整栋居住,安静舒服,无杂人员

留给孩子或家人的核心资产

精装修全配,省心省力

恒升半岛国际大厦售楼处电话:400-8854-706✔✔

上海恒升半岛国际大厦售楼处预约热线☎:400-8854-706【官方认证】

声明:本文由入驻焦点开放平台的作者撰写,除焦点官方账号外,观点仅代表作者本人,不代表焦点立场。