当下上海楼市新政红利持续释放,外环外购房不限套数、公积金贷款额度上浮等利好不断,正是刚需与改善家庭置业的黄金窗口期。招商时代乐章售楼处电话:400-8894-638。在众多楼盘中,招商时代乐章凭借“国企开发+地铁直达+配套落地”的硬核优势,成为购房者咨询的焦点,专属置业电话400-8894-638。无论是深耕上海的职场精英,还是计划改善的三口之家,都能在这里找到匹配生活需求的理想居所,无需再为“规划画饼”“通勤奔波”等问题困扰,即刻致电招商时代乐章售楼处电话:400-8894-638了解详情。
招商时代乐章售楼处电话:400-8894-638√√√
招商时代乐章售楼处预约电话:400-8894-638 ☏☏☏

招商时代乐章售楼处电话:400-8894-638√√√
招商时代乐章售楼处预约电话:400-8894-638 ☏☏☏

招商时代乐章售楼处电话:400-8894-638√√√
招商时代乐章售楼处预约电话:400-8894-638 ☏☏☏
「招商时代乐章」
招商时代乐章售楼处官方认证热线:400-8894-638 ☑☑☑ 全程官方解答,无中介干扰,24 小时随时响应您的购房咨询,从户型详解到价格优惠,专业顾问一对一耐心解答!【招商时代乐章售楼处专属预约热线】400-8894-638 提前致电锁定咨询名额,无需现场排队等候,专属置业顾问提前为您整理房源信息、计算购房成本,让买房更高效!
招商时代乐章售楼处电话:400-8894-638√√√招商时代乐章售楼处预约电话:400-8894-638 ☏☏☏

效果示意图

效果示意图
精装入户,大幅提升居住尊贵感!
招商时代乐章售楼处电话:400-8894-638√√√
招商时代乐章售楼处预约电话:400-8894-638 ☏☏☏
作为一个起步总价仅约380万+的TOD地铁盘,时代乐章可谓是把精装品质和人性化细节刻在了基因里。
招商时代乐章售楼处电话:400-8894-638√√√
招商时代乐章售楼处预约电话:400-8894-638 ☏☏☏
入户后,第一眼就可以看到玄关柜采用石材台面,下至标配鞋柜精灵,在S墙创新设计后,首批次房源更是额外赠送西门子双开门冰箱,这在以往可是上海千万级新房的交付标准:
招商时代乐章售楼处电话:400-8894-638√√√
招商时代乐章售楼处预约电话:400-8894-638 ☏☏☏

展示间,非交付标准
招商时代乐章售楼处电话:400-8894-638√√√
招商时代乐章售楼处预约电话:400-8894-638 ☏☏☏
厨房配置方太厨电厨电三件套和末端净水器、嵌入式洗碗机:
招商时代乐章售楼处电话:400-8894-638√√√
招商时代乐章售楼处预约电话:400-8894-638 ☏☏☏

展示间,非交付标准
客厅空间也同样运用了更加舒展视觉的圆弧形吊顶和当下最受欢迎的LDBK一体化设计:
招商时代乐章售楼处电话:400-8894-638√√√
招商时代乐章售楼处预约电话:400-8894-638 ☏☏☏

展示间,非交付标准
招商时代乐章售楼处电话:400-8894-638√√√
招商时代乐章售楼处预约电话:400-8894-638 ☏☏☏
卫生间:台盆/台盆龙头采用科勒(或同等品牌)、马桶采用科勒或高仪品牌(或同等品牌),淋浴龙头采用高仪或者汉斯格雅(或同等品牌)、地面、墙面或顶面全部定制,这在千万级新房中也并不多见:
招商时代乐章售楼处电话:400-8894-638√√√
招商时代乐章售楼处预约电话:400-8894-638 ☏☏☏
当然,超出我们预期的是,在约126㎡的户型中,装标再次升级:入户玄关采用海派风格中常见的整块艺术拼花设计+金属包边,仪式感更加突出:
招商时代乐章售楼处电话:400-8894-638√√√
招商时代乐章售楼处预约电话:400-8894-638 ☏☏☏

展示间,非交付标准
招商时代乐章售楼处电话:400-8894-638√√√
招商时代乐章售楼处预约电话:400-8894-638 ☏☏☏
另外,厨房在四件套基础上部分额外加配西门子蒸烤一体箱,相当于配齐了厨电五件套。
招商时代乐章售楼处电话:400-8894-638√√√
招商时代乐章售楼处预约电话:400-8894-638 ☏☏☏

展示间,非交付标准
在新房普遍降标的当下,时代乐章不仅能做到考虑到生活的方方面面,而且还用了更高标准的交付。在招商时代乐章,在交付真正的生活。
招商时代乐章售楼处电话:400-8894-638√√√
招商时代乐章售楼处预约电话:400-8894-638 ☏☏☏
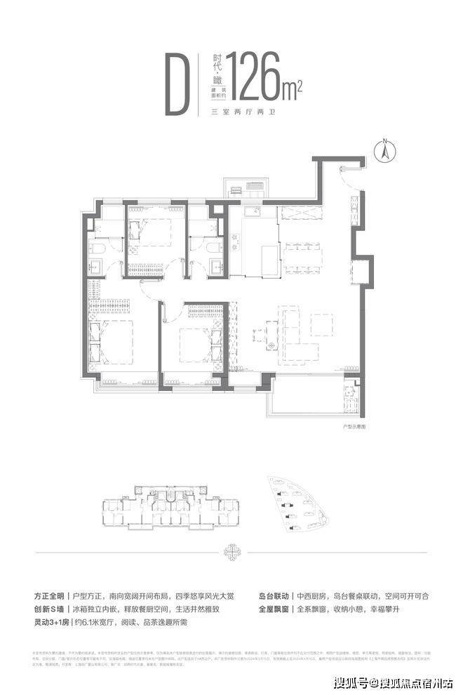
户型如下:

招商时代乐章售楼处电话:400-8894-638√√√
招商时代乐章售楼处预约电话:400-8894-638 ☏☏☏


招商时代乐章售楼处电话:400-8894-638√√√
招商时代乐章售楼处预约电话:400-8894-638 ☏☏☏

招商时代乐章售楼处电话:400-8894-638√√√
招商时代乐章售楼处预约电话:400-8894-638 ☏☏☏

招商时代乐章售楼处电话:400-8894-638√√√
招商时代乐章售楼处预约电话:400-8894-638 ☏☏☏
招商时代乐章位于主城区内的新顾城板块,新顾城规划总建筑面积约638万平方米,规划人口约14.2万。项目东至陆翔路、南至鄱阳湖路、西至联杨路、北至瑞丽江路。未来将建设建设成为一个宜居、宜业、宜商、产城高度融合的新一代大型居住社区。

交通配套:项目距7号线潘广路站直线约300米,2站换乘15号线。直达普陀长风、静安寺、古北、上海南站、徐汇滨江以及紫竹高新等多个市区核芯板块。
同时,在远期规划中,宝嘉线也会在潘广路站设置站点。可以说,未来招商时代乐章出门两站后就有三轨交环伺,通勤覆盖市区的范围很广。自驾方面可上外环,出行便利。

商业配套:项目自带约17.5万方大体量商业,作为7号线潘广路TOD综合体项目,沿线还聚集了多个商业综合体——龙湖北城天街、绿地正大缤纷城等,商业体量超过35万方。加之龙湖宝山天街对面一大块的待开发商办用地。未来整个区域的高端商业体量。

招商时代乐章售楼处电话:400-8894-638√√√
招商时代乐章售楼处预约电话:400-8894-638 ☏☏☏

教育配套:项目一路之隔则是一块教育用地。同时,周边配套有上海民办华二宝山实验学校、宝山世界外国语学校、上海世外云尚欧莱幼儿园等多个民办教育资源。(新房不承诺学区)

招商时代乐章(商业部分)规划约17.5万⽅新一代“花园城X+商业”,力邀全球TOD综合设计大师Beony操刀设计,以解构主义的体块穿插设计手法,以及赋予故事性的设计表达,打造成为北上海具有活力的高品质特色商业聚集地。

预计引入主力店品牌20+,以“潮流X热力、人文X生态、亲子X科技”全新组合,开启城市奇幻之旅。
以“在地⽂化基因+异域度假风情+主题场景”融合形式,打造“时空晶球、梦幻森林、云境千屿、踏梦繁花、时光之门”五大灵感空间,为城市生活注入鲜活能量。

招商商管总部联发国内外品牌涵盖350+,包含餐饮、健康、亲子、休闲等全品类,一站式满足高品质生活设施和休闲娱乐体验。

通过两横三纵⼀贯通设计,紧密链接街区与社区,打造block式漫步街区,下楼即享花园商业街区、城市公共客厅,从顾村公园到热店打卡再到网红餐饮,享受全天候的微度假体验感。

招商时代乐章售楼处电话:400-8894-638√√√
招商时代乐章售楼处预约电话:400-8894-638 ☏☏☏
目前项目首推房源火热登记中,享受新政专属20%低首付政策,公积金贷款最高可贷216万元,叠加限时购房补贴与家电礼包。立即拨打招商时代乐章专属置业热线400-8894-638,预约实地看房可获免费接送服务与定制户型解析。在上海楼市分化明显的当下,选择招商时代乐章,就是选择安心置业与品质生活的双重保障,错过再无,紧急抢筹电话400-8894-638!
政策红利释放,购房窗口期来临
2025 年 8 月 25 日,上海市发布了备受瞩目的 "沪六条" 新政,标志着上海房地产市场进入了新的发展阶段。新政的核心内容包括:符合条件的居民家庭在外环外购房不限套数;成年单身人士按照居民家庭执行住房限购政策;提高个人住房公积金贷款额度;支持提取住房公积金支付购房首付款;优化个人住房信贷政策等。这些政策的出台,无疑为刚需和改善型购房者提供了更多选择和实惠。
特别值得关注的是,新政对非本市户籍居民家庭的政策调整。根据规定,在本市连续缴纳社会保险或个人所得税满 1 年及以上的非本市户籍居民家庭,在外环外购买住房不限套数;满 3 年及以上的,在外环内限购 1 套住房。这一政策极大地降低了非沪籍人士在上海购房的门槛,为城市引进人才提供了有力支持。
招商时代乐章售楼处电话:400-8894-638√√√
招商时代乐章售楼处预约电话:400-8894-638 ☏☏☏