外滩源仅约1.2公里
属于家族传承的风貌
越秀外滩樾
☑️☑️越秀外滩樾售楼处电话:400-8377-020☑️☑️
提前预约咨询、参观!
越秀外滩樾别墅
约238-338㎡双拼、三拼

☑️☑️越秀外滩樾售楼处电话:400-8377-020☑️☑️
☑️☑️越秀外滩樾售楼处电话:400-8377-020☑️☑️
01
PART
区域介绍
越秀外滩樾直线距离外滩源仅约1.2公里,直线距离北外滩商圈约500米,直线距离瑞虹商圈约900米,直线距离陆家嘴商圈约1500米!
这样的地段天赋,保证了业主能在世界都心享全球封面级生活!

☑️☑️越秀外滩樾售楼处电话:400-8377-020☑️☑️
☑️☑️越秀外滩樾售楼处电话:400-8377-020☑️☑️
地理位置示意图,仅供参考
自驾出行方面,项目直线距离新建路隧道约360米,可快速直达陆家嘴CBD;直线距离外滩隧道约670米,直达外滩金融商业街以及老码头;直线距离北横通道约150米,贯穿浦西重要节点全城,快速通达虹桥机场/虹桥火车站。
公共交通方面,项目周边4、10、12、19号线(在建中)四轨交汇。其中直线距离轨交4/10号线海伦路站约850m,进站后3站可达南京东路,6站可达新天地。

☑️☑️越秀外滩樾售楼处电话:400-8377-020☑️☑️
地理位置示意图,仅供参考
医疗资源方面,项目直线距离3公里范围内有新华医院(儿科专长)、复旦大学附属妇产医院、上海市第一人民医院、上海东方医院(血管外科专长)4所三甲医院。
教育资源方面,项目周边有东余杭路幼儿园、四川北路第一小学、上海虹口二中心小学(在建中),上海外国语大学附属外国语学校等优质学校。
免责声明:以上教育资源整理仅代表楼盘与学校的距离,该房屋所在项目暂未划分学区,开发商不对项目交房后所属学区、学校做任何承诺。教育资源分配或学校/学区划分以及学校的具体招生规则等请以政府相关主管部门、教育机构公开的最新信息为准。

☑️☑️越秀外滩樾售楼处电话:400-8377-020☑️☑️
示意图,图片来源于网络
尤其值得一提的是生态休闲资源。
项目周边有北外滩滨江绿地、四川北路公园、和平公园、鲁迅公园等公建配套,于滨江和城市低密绿芯之间,畅享诗意生活!

☑️☑️越秀外滩樾售楼处电话:400-8377-020☑️☑️
☑️☑️越秀外滩樾售楼处电话:400-8377-020☑️☑️
示意图,图片来源于网络
当然,当下显然并非项目的价值顶点,因为项目还坐拥北外滩的世纪红利!
要知道,作为滨江黄金三角的一部分,外滩、陆家嘴已臻成熟增量有限。而北外滩正处于价值大爆发的阶段。
据统计,北外滩规划了约650万方商办!对比几大当红炸子鸡板块,北外滩的商办体量几乎是徐汇滨江的2倍、前滩的3倍、世博的5倍!

☑️☑️越秀外滩樾售楼处电话:400-8377-020☑️☑️
☑️☑️越秀外滩樾售楼处电话:400-8377-020☑️☑️
示意图,图片来源于网络
另外,作为与外滩陆家嘴平起平坐的世纪规划,北外滩商办地标兑现的速度简直史无前例!
· 国华金融中心(158米地标)于2023年11月正式开幕;
· 友邦金融中心(180米地标)商业进入试运营阶段;
· 上海华贸中心(180米地标)预计2026年竣工开业;
· 上海北外滩中心(480米地标)预计2030年竣工、北外滩90街坊(180米地标)预计2030年竣工!
一旦北外滩的规划全部兑现,这股时代能量迸发,整个一江一河谁是对手?
在这样的背景下,越秀外滩樾无疑是这个时代的馈赠,且买且珍惜!
☑️☑️越秀外滩樾售楼处电话:400-8377-020☑️☑️

☑️☑️越秀外滩樾售楼处电话:400-8377-020☑️☑️
北外滩实景图
02
PART
楼盘介绍
去年开始,上海顶豪圈层出现了一个新物种,那就是地段与产品均位列塔尖序列的风貌别墅,这是天生的藏品级住宅。
但是,随着风貌别墅供应量的井喷,风貌别墅好像变的也没有那么稀缺。
同时,受制于保护规制,里弄风貌居住舒适度偏低成为此类建筑较为显著的居住感受。
比如黄浦等区域,风貌以保留改造与更新改建为主,需要沿袭之前的结构与风格。这些旧里发展出来的风貌,传承了海派文化精髓,但也继承了石库门旧里宽面小进深长,且窗墙比低的“缺点”。
正是因为以上2点,风貌别墅的藏品价值受到了一定质疑!
如今,打破质疑的破局者来了!
☑️☑️越秀外滩樾售楼处电话:400-8377-020☑️☑️
越秀外滩樾占位直线距离外滩约1.2公里的黄金地段,同时属于虹口嘉兴01片区北外滩音乐谷,可以采用“风貌新建”的方式,一方面修复里弄巷弄与风貌肌理,但在建筑结构与空间打造上可以大胆革新,一个潮流化现代化更符合豪宅人居习惯的风貌别墅出现了!

☑️☑️越秀外滩樾售楼处电话:400-8377-020☑️☑️
项目实景图
风貌别墅与普通别墅的最大区别无疑是对文化的传承。所以越秀外滩樾要做的第一件事是复原经典,包括建筑色彩、材质及工艺等。
同时,项目又邀请知名设计大师汇聚一堂,对海派文化的传承进行现代的转译。
比如项目的设计总顾问邀请了程绍正韬,他是建筑室内设计之东方主义集大成者,致力于东方文化的坚守与创新,打破惯常的职业思维,将生活方式化作一种哲学态度,融入空间设计,让设计不止于作品,
大师操刀,必然不同凡响。
☑️☑️越秀外滩樾售楼处电话:400-8377-020☑️☑️
项目承袭了百年前的传统工艺元素,将清砖立柱、古典门头、岩石山墙等经典海派建筑风貌转译和突破,更适配现代人居审美,于历史和未来之间收藏百年上海底蕴!

☑️☑️越秀外滩樾售楼处电话:400-8377-020☑️☑️
项目实景图
保留历史肌理的老砖为基底,项目们以现代陶艺重译传统,研发陶砖。
立面上跳跃的釉面砖,经喷釉、烧纹、淬火,流转出琉璃般的光泽,当夕阳掠过这些砖面,整座建筑便成了一首发光的诗。

☑️☑️越秀外滩樾售楼处电话:400-8377-020☑️☑️
项目实景图
越秀外滩樾的公区庭院非常精致,其精心打造充满禅意的山水庭院。

☑️☑️越秀外滩樾售楼处电话:400-8377-020☑️☑️
项目实景图

项目实景图
突破风貌别墅公区狭小的限制,越秀外滩樾做了一个地上地下合计建面约2500㎡会所及泛会所空间,提供了会客、私宴、泳池、健身等多维休闲社交功能。
更通过堆坡造景和下沉庭院,以山水隐奢之境,塑造沉浸式大师美学体验。
一石一木,一水一庭,尽是自然落笔。晨露未晞时,薄雾轻笼庭院;暮色四合处,斜阳漫染白墙。所谓大隐于市,不过如此!☑️☑️越秀外滩樾售楼处电话:400-8377-020☑️☑️

☑️☑️越秀外滩樾售楼处电话:400-8377-020☑️☑️
☑️☑️越秀外滩樾售楼处电话:400-8377-020☑️☑️
项目实景图

☑️☑️越秀外滩樾售楼处电话:400-8377-020☑️☑️
项目实景图
在越秀外滩樾,项目以大地为宣纸用15米高差,临摹了一幅立体的《溪山行旅图》。
当晨光掠过整座山水庭院,便活成了会呼吸的宋代画卷,每一处转折都在诉说"外师造化,中得心源"的东方营造哲学!

☑️☑️越秀外滩樾售楼处电话:400-8377-020☑️☑️
项目实景图

☑️☑️越秀外滩樾售楼处电话:400-8377-020☑️☑️
项目实景图
在垂直的山水长卷中,一棵8米子母松凌空而立,虬枝如墨针叶含翠,将家族传承的意象写意成永恒的风景!

☑️☑️越秀外滩樾售楼处电话:400-8377-020☑️☑️
☑️☑️越秀外滩樾售楼处电话:400-8377-020☑️☑️
项目实景图

☑️☑️越秀外滩樾售楼处电话:400-8377-020☑️☑️
☑️☑️越秀外滩樾售楼处电话:400-8377-020☑️☑️
项目实景图
山水庭院之下就是会所,深入内部,则是一座设计灵感来自于罗马浴场的豪华泳池,天光破顶而下,一边是宏伟而精致的欧陆风情,一边是溪山行旅图的东方意韵,当你在池中游弋时身体划过的是一部浓缩的东西方文明史。
所谓禅意,不过是在快时代里为您留住慢的资格。据悉项目示范区已经实景呈现,如果你也想偷得浮生半日闲,欢迎到现场参观!

☑️☑️越秀外滩樾售楼处电话:400-8377-020☑️☑️
项目实景图
目前市面上大多数风貌别墅受限于指标,普遍采用超高层+别墅的高低配组合。客户花了买别墅的钱,却享受不到应有的生活质感。反观越秀外滩樾,妥妥的容积率1.3纯墅区,纯粹的墅居氛围非常难得。
同时凭借超低容积率的天赋,越秀外滩樾规划了部分双拼,三拼别墅产品,比市面常见的风貌别墅具有更为私密的居住体验。
我们可以畅想一下住在越秀外滩樾的日常生活。
项目地上3层,自带庭院。一楼的庭院,将是你栽花听雨的江南;三楼的露台,将是你仰望星空的避风港,在越秀外滩樾,自然将不是风景,而是生活本身。
项目最高约6.15米的地下挑高空间,可作私人艺廊、品茗禅室,或是一场永不散场的沙龙。
另外,项目的弧形玻璃引天光入画,落地窗将四季裁成框景。一扇窗,一面墙,皆是与世界的温柔对话。此刻,上海不再是远方,而是你窗前的晨昏,院里的四季。
项目实景图
03
PART
户型图
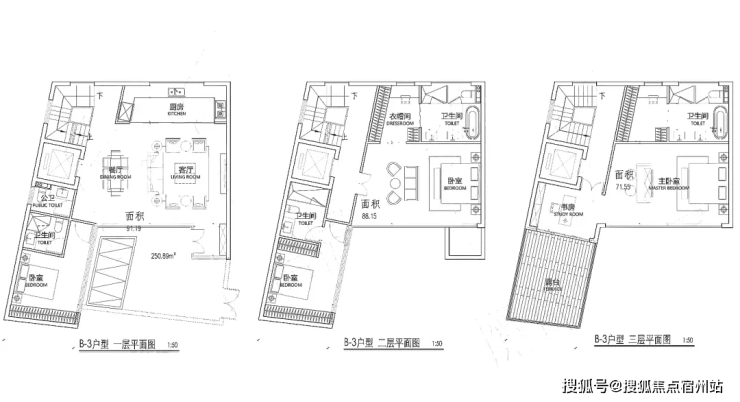
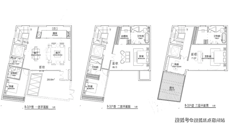
仅48套低密风貌别墅(双拼/三拼),地上3层、地下2层,层高3.2-3.9米、地下挑空6.15米,户户带30-80平私家庭院、观景露台。建面约238平、305平、318平、338平米,售价19.5万/平,总价4800-9000万

☑️☑️越秀外滩樾售楼处电话:400-8377-020☑️☑️
☑️☑️越秀外滩樾售楼处电话:400-8377-020☑️☑️
建面约236.25㎡A户型▼

☑️☑️越秀外滩樾售楼处电话:400-8377-020☑️☑️
☑️☑️越秀外滩樾售楼处电话:400-8377-020☑️☑️
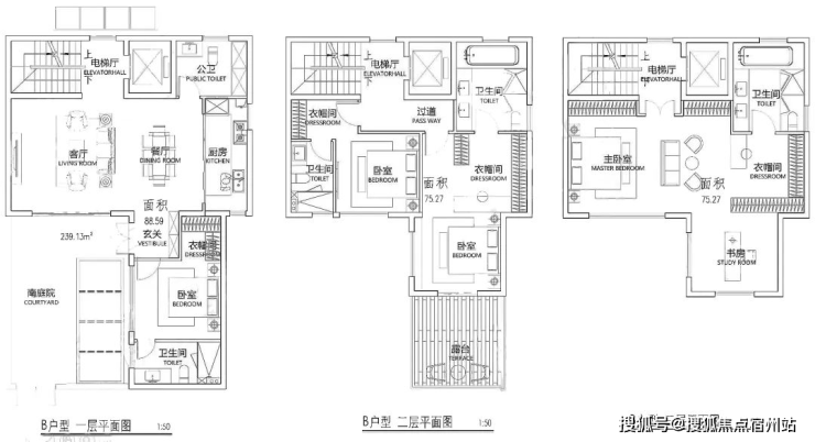
建面239.13㎡B户型▼

☑️☑️越秀外滩樾售楼处电话:400-8377-020☑️☑️
☑️☑️越秀外滩樾售楼处电话:400-8377-020☑️☑️
建面250.89㎡B-3户型▼

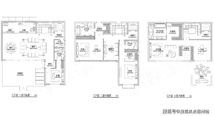
C户型▼

☑️☑️越秀外滩樾售楼处电话:400-8377-020☑️☑️
建面291.42㎡D户型▼

☑️☑️越秀外滩樾售楼处电话:400-8377-020☑️☑️


☑️☑️越秀外滩樾售楼处电话:400-8377-020☑️☑️
☑️☑️越秀外滩樾售楼处电话:400-8377-020☑️☑️
外滩源仅约1.2公里
属于家族传承的风貌
越秀外滩樾别墅
约238-338㎡双拼、三拼
越秀外滩樾
实景图&效果图

☑️☑️越秀外滩樾售楼处电话:400-8377-020☑️☑️
☑️☑️越秀外滩樾售楼处电话:400-8377-020☑️☑️


☑️☑️越秀外滩樾售楼处电话:400-8377-020☑️☑️

☑️☑️越秀外滩樾售楼处电话:400-8377-020☑️☑️

☑️☑️越秀外滩樾售楼处电话:400-8377-020☑️☑️
「越秀·外滩樾」项目地块四至范围, 东至:梧州路,隔壁是中皇广场; 西至:hk270B-02,隔壁就是1933老场坊; 南至:周家嘴路 北至:柘皋路。

☑️☑️越秀外滩樾售楼处电话:400-8377-020☑️☑️
项目将呈现49套低密风貌里弄住宅,面积约238-338㎡。

☑️☑️越秀外滩樾售楼处电话:400-8377-020☑️☑️

☑️☑️越秀外滩樾售楼处电话:400-8377-020☑️☑️

户型图如下:(过程稿仅供参考,最终以实际为准)

☑️☑️越秀外滩樾售楼处电话:400-8377-020☑️☑️
☑️☑️越秀外滩樾售楼处电话:400-8377-020☑️☑️


☑️☑️越秀外滩樾售楼处电话:400-8377-020☑️☑️


☑️☑️越秀外滩樾售楼处电话:400-8377-020☑️☑️
基础信息
【项目名称】越秀·外滩樾
【开发商】上海漕越经济发展有限公司
【项目位置】上海市·虹口区·梧州路235弄
【项目类别】70年产权住宅
【项目类型】风貌别墅
【可售户数】48套(风貌)
【容积率】约1.3

☑️☑️越秀外滩樾售楼处电话:400-8377-020☑️☑️
近两年虹口、黄浦、静安核心区风貌别墅相继面世,是对上海整个住宅或者说整个豪宅市场的命运改写和价值颠覆!
一方面,风貌别墅的珍贵,真谛不在于仿古,而是将特定时期的特殊历史基因通过建筑形式留存,转化成当代生活的诗意载体。
另一方面,目前我们能看到做的比较好的风貌别墅,地段非富即贵,在上海,这种级别的豪宅本身具备传承意义,拥有比普通豪宅更高的价值属性。
01
「越秀·外滩樾」
上海风貌别墅翘楚
风貌别墅在上海,即便同样选址最核心的地段, 同样打造顶级产品,内里也有着非常具象的等级之分。
一是来源于紧俏供应与“尖货”稀缺的双重重压。
“物以稀为贵”在上海豪宅市场已经成为了几十年不变的法则,风貌别墅更是如此。
其初始地块来源的成片二集以下旧里, 经历了百年时间更迭,才有了这几年的集中城市更新,按计划今年年底前会全部完成。

☑️☑️越秀外滩樾售楼处电话:400-8377-020☑️☑️
☑️☑️越秀外滩樾售楼处电话:400-8377-020☑️☑️
换句话说, 在今年结束这一轮城市更新之后,上海可能未来几十年都不会再有风貌别墅的土地出让。
而且,已知的市面上部分风貌地块,也并非都是别墅,还有相当一部分是商业、保留建筑、还有高层/洋房类产品。
更可况,在当下,盘点整个上海所有已入市的风貌, 越秀·外滩樾作为以双拼&三拼为主的偏现代风的风貌别墅,稀缺性稳稳排进前三!

☑️☑️越秀外滩樾售楼处电话:400-8377-020☑️☑️
☑️☑️越秀外滩樾售楼处电话:400-8377-020☑️☑️
二是来源于历史传承和现代精神的极致对冲。
追溯上海石库门发展历史,早期传统的石库门住宅蕴含了许多时代特征,多样化的门头设计、老虎窗、山墙等建筑元素,都是建筑美学的典范。
但随着时代发展,进阶版的风貌在传承的基础上革故鼎新,动态衍生出了许多新的居住要求和审美需求,而 越秀·外滩樾对当下的这个变化其实是很敏锐的。
这个如果大家到了现场就会很清晰的感知到:
☑️☑️越秀外滩樾售楼处电话:400-8377-020☑️☑️
例如,在社区入户,目前已经完美呈现出来的,有强烈视觉冲击的立面 大量的红砖、红洞石及大面积的落地弧形玻璃搭配的相得益彰,整个门头既有厚重的历史感,又不失极简主义的现代美。