外滩瑞府(售楼处)首页网站-外滩瑞府销售中心(营销中心)-外滩瑞府楼盘欢迎您-小区环境-户型-价格-地址-楼盘详情-周边配套-售楼处电话-交房时间

搜狐焦点宿州站 2025-09-10 14:37:53
用手机看
扫描到手机,新闻随时看

扫一扫,用手机看文章
更加方便分享给朋友

上海-外滩瑞府售楼处电话;400-833-6309【官网】

上海-外滩瑞府售楼处电话;400-833-6309【官网】

最新消息:

外滩1公里,外滩瑞府凭借首开14.78万/㎡绝版价,顶豪级公区和装标,以及平权化舒适三四房,收获了大批高端购房者青睐,项目建面约121/161㎡3-4房将于9月14日开盘!

认购现场实拍上海-外滩瑞府售楼处电话;400-833-6309【官网】

尤其约161㎡4房,2200-2850万总价,外滩-陆家嘴-北外滩世界级黄金三角不会再有这个价格!如果有一定不是四房!上海-外滩瑞府售楼处电话;400-833-6309【官网】

项目航拍图

对项目有兴趣的朋友

外滩瑞府售楼处电话;400-833-6309

在外滩瑞府偶遇的一位认购客户,一句话道破了当下上海核心区置业的关键逻辑:

“有些房子有钱就能买,但有的房子,拼的是转瞬即逝的机遇!”

如何理解?

机遇一:14.78万/㎡首开均价,是外滩1公里生活圈的“福利底价”!

当黄浦核心区房价冲破20万/㎡、北外滩即将站到20万/㎡、虹口下游板块已迈上16.6万 /㎡,身处外滩1公里生活圈的外滩瑞府,首开均价仅14.78万/㎡,这样的价差本身就是“福利”。

值得关注的是,上周上海七批次土拍中,杨浦内中环宅地的楼板价已达约9.2万/㎡——这一价格,与外滩瑞府楼板价相当!

这意味:若现在犹豫,未来花同样成本,只能买到内中环新房;反过来想,如今入手外滩瑞府,相当于用“内中环即将到来的房价”,拿下外滩1公里的核心资产。

再直白点说:外滩、外滩瑞府售楼处电话;400-833-6309北外滩比外滩瑞府贵太多,虹口下游也比它高,就连内中环地价也追上了它,这样的价格安全垫,在内环难寻第二个。

14.78万/㎡买世界级黄金三角(外滩+陆家嘴+北外滩)的新房,这种机会,大概率就这一次,错过再也没有!

机遇二:2200-2850万,入手世界级黄金三角4房最后窗口!

比单价更珍贵的,是“总价机遇”。

以大连路为起点沿黄浦江1公里画线,即世界级黄金三角最核心区域,如今在这片区域内,新房普遍20万/㎡上下,四房起步180㎡,四房门槛预计3500-4000万起。外滩瑞府售楼处电话;400-833-6309

这个范围内,只有外滩瑞府给予购房者2200-2850万一步到位4房的机会,后续大概率不会再有,因为这需要14.78万/㎡及约161㎡的精致面积段“双buff加持”。

毫不夸张地说,当下想在黄金三角核心区内,以2200万起的预算购入“舒适四房”,外滩瑞府是唯一选择。若有其他选项,要么不在黄金三角核心范围内,地段差一截;要么户型达不到“舒适四房”标准,难以满足家庭长期居住需求。

机遇三:买在上海城市更新“风暴眼”,坐享九龙路滨水空间+亿级风貌带红利!

真正的核心资产,永远与城市更新“风口”同频。就像新天地、苏河湾,凭借石库门的新生完成城市更新,房价走出了独立行情——外滩瑞府,正处在上海新一轮城市更新的 “风暴眼”,这里的更新不是简单的界面升级,而是剑指“城市文化新名片”的重磅规划。外滩瑞府售楼处电话;400-833-6309

其一,九龙路滨水空间,解锁家门口的艺术生活。

作为城市更新的关键落笔,外滩瑞府对九龙路滨水空间的打造,将从源头注入高规格美学基因——以法国塞纳河左岸为灵感,联动虹口港滨水资源,颠覆传统“归家路”属性,将九龙路主入口打造成打造“繁花似锦的艺术归家之路”。

过程方案示意图,以实际交付为准

据最新剧透的阶段性方案(非终版),这里的规划满是惊喜:

有承载海派记忆的红砖艺术长廊,让行走成为与历史的对话;仪式感十足的迎宾树阵,让归家如穿自然仪仗;还有文化景墙、宠物友好花园、全龄疗愈花园等场景。这些设计并非孤立景观,而是融合“漫步、社交、休闲”功能,最终呈现“可停留、可互动、可欣赏”的滨水美学街区。

换句话说,这里的更新不只是“颜值”焕新,更是“内涵”艺术融入,未来业主下楼即享慢时光,邻里可轻松社交,甚至会像徐汇滨江般,成为全市Citywalk爱好者追捧的标志性滨水休闲地。外滩瑞府售楼处电话;400-833-6309

*以上方案仅是目前构想,还将继续优化

过程方案示意图,以实际交付为准

其二,约7000㎡邻里风貌底盘堪称“王牌手笔”,串联大规模亿级风貌带。

优质风貌更新历来拥有重塑城市价值的强大力量——从新天地石库门突破传统,历经十余年迭代蜕变为国际潮流商业地标外滩瑞府售楼处电话;400-833-6309;到苏河湾耗时近10年推进更新,慎余里保留历史韵味,活化成现代商业空间;再到张园自2018年开启更新进程,至今仍在持续焕新,一跃成为上海顶流文化打卡地。

外滩瑞府售楼处电话;400-833-6309

这些案例都证明:真正的风貌更新,不是短期的界面改造,而是能历经时间沉淀,从根本上革新生活方式、提升城市气质,最终成长为兼具潮流属性与文化深度的城市名片。

外滩瑞府约7000㎡风貌底盘,正沿着这样的路径前行——它不仅是社区的延伸,更将成为代表外滩新气质的文化地标、网红打卡地。

未来,这里将以多元业态激活社区活力,融合海派烟火与艺术格调:据悉将引入社区咖啡馆提供休闲空间,瑞府邻里客厅/社区方式综合店服务中产消费与邻里互动,便民综合体涵盖超市等满足日常需求,另有社区会客厅供居民交流,及社区公共服务中心完善便民配套外滩瑞府售楼处电话;400-833-6309。

这些业态共同构筑便捷生活场景,让居民尽享舒适日常。对城市而言,这里不仅是界面的大焕新,更将凭借与周边亿级风貌带的联动效应,成为吸引全城目光的焦点。

过程方案示意图,以实际交付为准

更关键的是,外滩瑞府是这条亿级风貌带上少有的高层项目——既能浸润在海派风貌的烟火与文艺中,外滩瑞府售楼处电话;400-833-6309又能俯瞰黄金三角的璀璨景观,这样的“风貌+高层”组合,本身就是城市更新红利里的稀缺品。

过程方案示意图,以实际交付为准

市中心安全垫王炸新盘

外滩瑞府建面约121/161㎡3-4房

将于9月14日首开

首开福利价14.78万/㎡

其中约161㎡4房2200-2850万

是世界级黄金三角更划算的四房,没有之一

既控总价又有舒适性

一旦错过,置换成本3500万朝上

对项目有兴趣的朋友,

欢迎点击下方预约看房~

外滩瑞府售楼处电话;400-833-6309

总价友好+强流通!

稀缺“内环舒适四房”,首开抢藏正当时

在上海内环置业,“四房是刚需”已成共识:三口之家想接父母同住,需要独立卧室兼顾隐私;当下住内环三房的家庭,下次置换目标也必然是四房——这样的需求正在持续增长,市场却难寻适配的选择。

而外滩瑞府约161㎡四房,外滩瑞府售楼处电话;400-833-6309从供应缺口到价值潜力,每一点都直击购房者核心需求,堪称当前市场难得的“安全垫王炸户型”。

1、内环四房供应“两极分化”,160㎡段近乎断供

一方面,小面积紧凑户型难满足舒适需求:2024 年至今,155㎡以下的四房(或三房)占比约38.5%,这类户型普遍存在功能区局促、尺度不足的问题,无法承载家庭长期居住的舒适度需求;

另一方面,大面积户型总价高不可攀:180㎡以上的四房占比竟超54%,但这类产品总价普遍3500万起步,将绝大多数改善型购房者拒之门外;

外滩瑞府售楼处电话;400-833-6309最关键的160㎡段——既能保证四房完整功能,又能兼顾每个空间尺度感的面积段,去年至今内环供应占比仅约1%,近乎断供状态。外滩瑞府约161㎡四房,正是今年内环首个该面积段的舒适四房外滩瑞府售楼处电话;400-833-6309,直接填补了市场空白。

而且,当前内环地价持续高企,开发商更倾向于打造大户型,未来像160㎡段这样“控总价+保舒适”的四房,只会越来越少。

2、稀缺性+强流通性,成就“安全垫王炸户型”

外滩瑞府 161㎡四房“安全垫”,来自双重核心优势:

①、稀缺性执掌定价权:作为内环稀缺的161㎡舒适四房,项目在同类产品中几乎无竞品,具备“物以稀为贵”的价值属性,未来拥有更强的定价主动权;

②、面积适配+总价亲民,流通性更优:相比180㎡以上的高总价大户型,161㎡的面积段更符合主流改善家庭的需求,总价门槛更友好,在二手房市场上也能更快找到接手客群,流通性远超大面积产品。

再看项目的价值底盘:外滩瑞府售楼处电话;400-833-6309周边地王楼面价已达16.6-20万+/㎡,为项目价值筑下坚实“安全底”;而九龙路滨水空间+风貌底盘+161㎡四房稀缺性,共同为项目打开了价值上限——“低风险+高潜力”的组合,让这个户型成为内环置业的“稳健之选”。

3、首开福利价,后续买同户型大概率更贵

一方面,内中环楼板价追上了外滩瑞府,我觉得项目后续楼栋不会是14.78万/㎡价格,这次首开福利价,很可能是入手该户型的“最低价窗口”;

另一方面,每次推售“微涨”已成常态,外滩瑞府售楼处电话;400-833-6309对于购房者来说,“能买首开就买首开”,已是降低置业成本的共识。

4、外滩瑞府的客群广泛且资产上限极高

据了解,认购客户有大量来自陆家嘴、黄浦、徐汇等核心区域的精英人士。其客群并非局限区域内的改善群体,而是辐射到整个上海的财富圈层。这种广泛且高端的客群基础,赋予了项目更加强劲的未来潜力,也让其在市场中更具竞争力。

5、首推2号楼,采光+视野双优,居住体验再升级

外滩瑞府售楼处电话;400-833-6309

2号楼采光和视野优势出众,经专业建筑师测算,2号楼冬至日采光全部达5小时(计算时间段9:00-15:00),要知道,市中心高容积率下的新房,冬至日采光普遍仅为2小时左右;同时中高区可瞰三件套盛景。

过程方案示意图,以实际交付为准外滩瑞府售楼处电话;400-833-6309

渡边智昭执笔

外滩瑞府顶奢泛会所,开启高阶社交新境界

外滩瑞府的珍贵,远不止“价格上错过不再”的稀缺机遇——作为华润置地上海的顶级标杆作品,它从根源上为购房者赋予顶豪级的公区质感、审美格调与仪式感。

要知道,公区不同于室内装修,后期再难耗费成本改造升级,而华润置地直接以“顶配标准”打造外滩瑞府售楼处电话;400-833-6309,将高端生活的基石牢牢奠定。

这份底气,从其顶级设计天团便可见一斑:GOA 大象设计、渡边智昭、泰国TROP事务所、无间设计吴滨、李益中等,每一位都是行业内的顶尖力量,共同为外滩瑞府的高端基因保驾护航。

尤其值得细说的,是汤臣一品御用设计师渡边智昭操刀的泛会所。

他以颠覆性思维突破传统局限外滩瑞府售楼处电话;400-833-6309,不仅匠心打造独立 “室内外双幕水剧场”,更创造性地将高阶社交功能分散于四栋塔楼之下,规划出温莎廊吧、公啡花房、子恺乐园与Gym CLUB四大主题泛会所,让社交与生活需求各得其所。

过程方案示意图,以实际交付为准

比如首开2号楼下的“温莎廊吧”,这片业主专属的私享天地,从细节处尽显高阶审美:复古砖红墙面勾勒出海派风情的典雅轮廓,叶脉纹大理石地面则如流水般铺展,让空间多了几分灵动的流动感外滩瑞府售楼处电话;400-833-6309。

外滩瑞府售楼处电话;400-833-6309

过程方案示意图,以实际交付为准

入户大堂由吴滨设计,呈现“天圆地方”的效果,方正的线条勾勒出空间的规整与大气,与顶部的圆形形成刚柔并济的视觉平衡,让每一次归家都成为一场尊贵的礼遇。外滩瑞府售楼处电话;400-833-6309

外滩瑞府售楼处电话;400-833-6309

过程方案示意图,以实际交付为准

除了高阶社交场景,日常细节中更藏着顶豪的贴心。“无感通行”系统通过人脸识别联动单元门、自动呼梯外滩瑞府售楼处电话;400-833-6309,无需手动操作,尽显从容;电梯内专属设置的“宠物按钮”,精准关照养宠家庭需求,让带宠物出行告别“手忙脚乱”。

这些设计绝非流于表面的“营销噱头”,而是真正读懂生活需求的“贴心考量”,让尊贵感融入每一个日常瞬间。

过程方案示意图,以实际交付为准

不止于建筑与功能,社区内部的景观同样堪称艺术杰作。外滩瑞府特邀国际景观大师 Pok Kobkongsanti打造外滩瑞府售楼处电话;400-833-6309,将其对印象派光影的深刻理解,化作可步入、可触摸的“印象派自然秘境”。六大主题花园错落分布,贯穿全域的风雨连廊串联起四季景致,共同演绎出一座流动的艺术生活范本

过程方案示意图,以实际交付为准

采用“平权化”打造

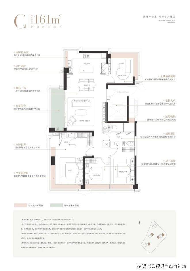
四转角窗270°视野+舒适四房

外滩瑞府售楼处电话;400-833-6309

户型设计上,项目主打舒适度与景观视野的平权。

在我看来,真正的改善,不该是少数房间的独享升级,而应让每个家庭成员都能平等享有舒适尺度与开阔视野。外滩瑞府摒弃了传统户型中明显的主次卧之分,无论是父母的休憩空间,还是孩子的成长天地,都拥有同等优质的居住体验。

建面约161㎡4房:外滩瑞府售楼处电话;400-833-6309

这是市面少有的360°视野的户型,全屋四个转角窗(北卧、厨房、阳台、主卧),不管你在哪个房间,外滩瑞府售楼处电话;400-833-6309都能欣赏城市景观。

厨房、餐厅、客厅与阳台相连通,形成联动空间,尺度感阔绰。于二胎家庭,这里足以让孩子从容玩耍,也能同时容纳子女弹琴、母亲做手工、父亲办公,满足家人多样化的活动需求。

161户型样板间图,以实际交付为准

三卧朝南,且几乎等面宽处理,因此不是“3+1”,而是标准4房,让阳光和舒适尺度成为给予每个人的平等馈赠外滩瑞府售楼处电话;400-833-6309。

外滩瑞府售楼处电话;400-833-6309

161户型样板间图,以实际交付为准

外滩瑞府售楼处电话;400-833-6309

公卫打造独特的四分离系统,实现独立洗漱台、卫生间、淋浴间、洗衣区互不打扰,将酒店化体验引入住宅。

161户型样板间图,以实际交付为准

此外,项目还有建面约121㎡3房:

装修细节值得一提:外滩瑞府售楼处电话;400-833-6309

首先,标配即顶配!

装修标准上,外滩瑞府全部选用国际一线大牌:厨房选用嘉格纳高端厨电,包含洗碗机、双开门冰箱、蒸烤一体机、油烟机、燃气灶,还奢侈的选用了316L不锈钢水管(一般都是304)。

其次,华润置地擅长在看不见的地方做加法,细节还在不断提升!

比如,厨房人性化小细节满满:外滩瑞府售楼处电话;400-833-6309

161户型厨房台面非常宽,你可以放置大型厨电,甚至摆上花花草草装扮厨房。

161户型样板间图,以实际交付为准

超大尺度的中西岛台,既符合中式烹饪的实用逻辑(预留足够操作台面),又能承载西式社交(朋友小聚时在岛台品酒聊天),让厨房从“单一做饭空间”变成“生活场景发生器”。

外滩瑞府售楼处电话;400-833-6309

161户型样板间图,以实际交付为准

在收纳方面,分类极为精细:

博洛尼整体橱柜(或同等品牌)用了转角拉篮、下拉式设计,连抽屉都做了分层收纳;中西岛台下方的双层抽屉+ 侧边滑轨柜,能把餐具、小家电“藏”得干干净净;外滩瑞府售楼处电话;400-833-6309

更贴心的是 “隐形过道收纳” 和主卧步入式衣帽间,真正做到“每一寸空间都不浪费”。

161户型还交付家政间,洗衣/烘干机和柜体都已配备齐全。

161户型样板间图,以实际交付为准

审美方面也高度在线:外滩瑞府售楼处电话;400-833-6309

大理石地砖的铺装工艺精湛,近乎看不出拼接缝,呈现出浑然一体的效果;吊顶采用悬浮顶设计,周边用金属包边,层次感十足;卫生间墙面不乏弧形处理,地板纹路的拼法也各有不同,通过复杂的工艺,只为呈现更优的视觉效果。

161户型样板间图,以实际交付为准

具体大家可以看样板间视频或者现场参观:

市中心安全垫王炸新盘

外滩瑞府建面约121/161㎡3-4房

将于9月14日首开

首开福利价14.78万/㎡

其中约161㎡4房2200-2850万

是世界级黄金三角更划算的四房,没有之一

既控总价又有舒适性

一旦错过,置换成本3500万朝上外滩瑞府售楼处电话;400-833-6309

声明:本文由入驻焦点开放平台的作者撰写,除焦点官方账号外,观点仅代表作者本人,不代表焦点立场。