保利虹桥和著(售楼处)首页网站-保利虹桥和著销售中心(营销中心)-保利虹桥和著楼盘欢迎您-小区环境-户型-价格-地址-保利虹桥和著楼盘详情-保利虹桥和著

搜狐焦点宿州站 2025-09-10 15:13:12
用手机看
扫描到手机,新闻随时看

扫一扫,用手机看文章
更加方便分享给朋友

保利虹桥和著售楼处电话:400-8854-706✅︎✅︎✅

✅保利虹桥和著售楼处电话:400-8854-706✅︎✅︎✅

✅保利虹桥和著营销中心热线400-8854-706(官方预约看房热线)

嘉定保利虹桥和著地处嘉定新城与虹桥商务区衔接的关键位置,紧邻沈海高速、沪翔高速,驾车 15 分钟直达虹桥天地、国家会展中心,25 分钟抵达人民广场、陆家嘴等城市核心商圈,轻松融入上海主城生活圈。公共交通便捷高效:距离地铁 11 号线嘉定新城站约 1 公里,步行 12 分钟即可抵达,3 站换乘 2 号线直达虹桥火车站 / 机场,6 站抵达徐家汇;同时临近规划中的地铁嘉闵线(预计 2025 年通车),未来可直达虹桥枢纽,进一步缩短通勤时间,畅享 “虹桥 15 分钟生活圈”。

项目周边配套呈现 “全龄化、多元化” 特点:1 公里内覆盖嘉定万达广场、中信泰富万达广场两大商业综合体,涵盖购物、餐饮、影院、亲子游乐等多元业态,满足日常消费与休闲需求;3 公里内拥有上海市嘉定区中心医院、上海交通大学医学院附属仁济医院(嘉定分院)等三甲医疗资源,为家人健康保驾护航;教育资源方面,临近嘉定区实验小学、上海大学附属嘉定实验学校等优质院校,从幼儿园到高中的全龄段教育体系完善,助力孩子成长。

✅保利虹桥和著售楼处电话:400-8854-706✅︎✅︎✅

✅保利虹桥和著售楼处电话:400-8854-706✅︎✅︎✅

✅保利虹桥和著营销中心热线400-8854-706(官方预约看房热线)

保利发展作为国资委直属的大型中央企业,深耕房地产行业 30 余年,始终以 “美好生活同行者” 为品牌定位,在全国百余座城市打造超 1000 个优质项目,尤其在长三角区域布局深厚,“和著系” 产品更是以 “低密、生态、宜居” 为特色,深受市场认可。嘉定保利虹桥和著延续保利发展严苛的品质标准,从规划设计到施工建设,每一个环节都精益求精,致力于为业主打造兼具舒适度与性价比的理想居所。

消项目采用现代雅致建筑风格,以 “简约、通透、生态” 为设计核心,摒弃冗余装饰,注重建筑与自然景观的融合,旨在打造契合虹桥生活圈气质的低密社区封面。外立面主要选用浅米色真石漆搭配深灰色金属线条,局部点缀浅咖色质感涂料,整体呈现出简洁大气又不失温馨的视觉效果;同时运用大面积玻璃窗,既保证室内充足采光,又能最大化拓展景观视野,实现 “推窗见绿、户户观景” 的居住体验。息一出,江桥家长群直接嗨翻!要知道,上师大基础教育集团综合实力更是强劲的很,“含金量”非常之高!

近年来,上师大基础教育集团还先后在嘉定、松江、宝山、金山、青浦成立了教育子集团,助力各区域教育水平升级。

有如此实力名校加持,不用多说,江桥的教学水平和高素质人口导入也将迈上新台阶,江桥区域将迎来新的未来!上师大资源的引入,是对上虹桥这片成片规划打造的城市更新区的价值高度的证言。

对于购房者来说,优质教育为孩子的未来增添了一份确定性,作为片区内首发项目——保利·虹桥和著来说,更可谓是如虎添翼。

桥和著正在认购中,热势抢购,火热数据实力出圈!

✅保利虹桥和著售楼处电话:400-8854-706✅︎✅︎✅

✅保利虹桥和著营销中心热线400-8854-706(官方预约看房热线)

低密规划:项目容积率仅 1.6,打造 “8-11 层花园洋房 + 15-18 层瞰景小高层” 的低密居住格局,楼间距最小达 38 米,最大超 65 米,充分保障每一户的采光与通风,避免楼栋间的视线遮挡,洋房产品更能近距离享受社区园林景观;

入户体验:洋房单元入户大堂采用挑高 4.8 米设计,地面铺设仿大理石地砖,墙面搭配木饰面与艺术装饰画,搭配暖光吊灯,营造温馨且具仪式感的归家氛围;小高层入户大堂同样精心设计,配备智能门禁系统(支持人脸识别、刷卡、密码解锁),兼顾便捷与安全;

门窗配置:所有住宅均采用双层中空 Low - E 玻璃,搭配断桥铝窗框,隔音量达 40 分贝以上,有效隔绝外界噪音,同时具备优异的保温、防紫外线性能,为室内营造安静、舒适的居住环境;洋房产品配备定制入户门,搭配智能门锁,提升居住安全性与品质感。

项目主打 89 - 143㎡三房至四房户型,涵盖刚需、改善等多种需求,所有户型均遵循 “全明设计、南北通透、动静分区、得房率高” 的原则,洋房产品得房率高达 82% - 85%,核心户型亮点如下:

✅保利虹桥和著售楼处电话:400-8854-706✅︎✅︎✅

✅保利虹桥和著营销中心热线400-8854-706(官方预约看房热线)

可以说,保利虹桥和著产品的设计感、细节处理,再一次惊艳了北虹桥,惊艳了整个上海楼市。究竟能做出什么样的产品力?不妨让我们一起期待!

✅保利虹桥和著售楼处电话:400-8854-706✅︎✅︎✅

✅保利虹桥和著营销中心热线400-8854-706(官方预约看房热线)

正如加缪所言,“这世上如果还有一样东西,人们总是渴望获得,那就是人与人之间的温情。”保利虹桥和著,围绕“精奢人文+摩登烟火”理念,打造更时尚、更具烟火气的国际社区。✅保利虹桥和著售楼处电话:400-8854-706✅︎✅︎✅

✅保利虹桥和著营销中心热线400-8854-706(官方预约看房热线)

✅保利虹桥和著售楼处电话:400-8854-706✅︎✅︎✅

✅保利虹桥和著营销中心热线400-8854-706(官方预约看房热线)

五开间朝南,南向面宽超 14.5 米,客厅面宽达 7 米,连接 5 米宽全景阳台,视野极致开阔,可同时容纳多人聚会,尽显大宅尺度;

主卧为豪华套房设计,配备独立卫生间(双台盆 + 淋浴区 + 浴缸)与步入式衣帽间,提升居住舒适度与格调;

厨房采用中西厨分离设计,中厨满足日常烹饪需求,西厨配备吧台,适合举办家庭派对或朋友聚餐;

室内预留智能家居接口,可实现灯光、窗帘、空调等设备的智能控制,打造现代化智能居住体验。

入户的第一眼,决定归家心情的愉悦程度。当你穿过约100米沿街酒店式落客礼仪大门,就能找到某家奢华酒店的影子。地下地上双装修入户大堂,礼遇归家的每一步风景。

采用高级灰+香槟金铝板线条构建美学立面,颜值出众且审美在线,仅凭这个外立面就知道业主对美和艺术的追寻不一般。

✅保利虹桥和著售楼处电话:400-8854-706✅︎✅︎✅

✅保利虹桥和著营销中心热线400-8854-706(官方预约看房热线)

社区大门—私影花园—共享聚场—森林课堂—芳华聚场,每一步都能享受到移步异景的欢愉感,四季变迁的风景是生活的主角,社区也不只是绿化景墙的堆砌,而是满足趣享乐活的全龄场域。

行走之间、一呼一吸之间,以全龄化体系构建多元架空层,打造重体验、全维度、有温度的社区“第二客厅”。

以最烫金的地块造极端出众的产品力!

板块中的首发作品,一定是奠定整个板块人居高度、产品力标杆的作品,是目前整个北虹桥最关键和重要的项目。

而最终,上海地产集团与央企保利发展完成了双向奔赴,将共同完成这个划时代的作品。

但为什么是保利发展?

一方面,确实是保利发展的拿地眼光独到,要么瞄准城市核心、一江一河顶流区域,比如保利世博天悦、保利杨浦滨江新地王。

若非城市核心,那一定聚焦潜力板块,紧抓地铁和产业两大价值底盘。

而上虹桥这个王者级的板块,值得保利的青睐!

另外一方面是保利发展深耕上海20余年,这家央企的实力和匠心是一个项目一个项目积累出来的。

尤其是保利虹桥和著,更是完美解决了目前上车客户实际痛点。

保利·虹桥和著加推7号楼楼王10单元128㎡户型,及14号楼14单元104㎡户型,共计72套房源,过会均价58875元/㎡。

保利虹桥和著的户型设计格外出众,在精控面积的同时,通过优秀的格局设计,让空间效率大大提升,非常具有代表性的就是,充分利用了双开门电梯+阳光梯厅的优势,打造独立外玄关空间,营造归家仪式感的同时,也具有相当的实用价值

具体到个个户型来说

1)建面约104㎡3房可能是最好的百平米三房之一

建面约104㎡3房,约10.3m的南向面宽,为室内带来了出众的采光面和尺度感,这个户型无论从实用性、尺度感,亦或是视野、采光、私密性来说,都做得相当优秀。

类一梯一户,解决百平米3房的收纳、私密性等问题:

相比其他百平米3房玄关的逼仄、收纳空间少的问题,保利虹桥和著本次所有户型都做到了类一梯一户,全明独立电梯厅。

这是一个通常出现在千万级高端住宅中的设计,且往往小户型还不舍得用,只留给大户型。

现在居然出现在了一个总价约600万的产品中!可以说保利把1500万级客户的尊贵感、隐私性给到了保利虹桥和著的客户。

独立电梯厅的出现,相当于多了一个小厅,大概增加了约6-8㎡空间(注:数据为人工测算,可能存在一定偏差),可以用来规划摆放收纳柜等,其实也变相提高了“得房率”。✅保利虹桥和著售楼处电话:400-8854-706✅︎✅︎✅

✅保利虹桥和著营销中心热线400-8854-706(官方预约看房热线)

南北通透解决通风问题:✅保利虹桥和著售楼处电话:400-8854-706✅︎✅︎✅

✅保利虹桥和著营销中心热线400-8854-706(官方预约看房热线)

保利虹桥和著的客餐厅以及厨房一脉相连,中间套也能实现完全的南北通透,出色的空气流动性能为业主带来更加舒适、宜居的居住氛围。

飞机户型带来的0空间浪费,解决尺度感的问题:

机户型还带来了0走道的优势,室内几乎没有空间浪费。

这会导致各个空间的尺度感都会更宽绰,尤其是餐厅,可以放一个容纳6-8人的餐桌,可供一家人享受天伦之乐。✅保利虹桥和著售楼处电话:400-8854-706✅︎✅︎✅

✅保利虹桥和著营销中心热线400-8854-706(官方预约看房热线)

约10.3米的南向面宽+3房5飘窗1阳台,解决采光以及收纳等问题:

整个户型三开间朝南,拥有约10.3米的南向面宽,为室内带来了出众的采光面和尺度感。✅保利虹桥和著售楼处电话:400-8854-706✅︎✅︎✅

✅保利虹桥和著营销中心热线400-8854-706(官方预约看房热线)

3房5飘窗1阳台的设计更是最大程度的拓展了整个空间的视野,再搭配玄关柜、餐边柜、橱柜、镜柜等多重收纳空间。

整个户型不管是实用性、尺度感、视野、采光还是私密性上都做的无懈可击,真正以约600万的价格就能享受到千万级豪宅般的生活体验。

✅保利

✅保利虹桥和著售楼处电话:400-8854-706✅︎✅︎✅

✅保利虹桥和著营销中心热线400-8854-706(官方预约看房热线)虹桥和著售楼处电话:400-8854-706✅︎✅︎✅

✅保利虹桥和著营销中心热线400-8854-706(官方预约看房热线)

当然,这样的“完美”也促使了项目一期此爆款户型的热销,短期内就迅速售罄。二期的入市几乎可以说的不争必然错过!抓紧!

建面约128㎡4房稀缺改善户型,灵活性强

过去很长一段时间,由于土地端7090政策限制,新房产品绝大部分以百平米左右刚需产品为主,而保利虹桥和著此次将推出建面约128㎡稀缺舒适四房,本身就是一次难得的改善机遇,更何况该户型设计非常亮眼,四开间朝南设计,尽可能将更多阳光引入室内,主卧270度飘窗+南北通透大套房设计,同级别户型中十分罕见,充分满足舒适度和身份感。

甄选高标准精装

而在精装方面,保利虹桥和著不仅甄选国际知名品牌,而且配置内容相当丰富,举几个例子:

比如厨房除了常规配置的厨电套件,还有洗碗机、末端净水装置、线性凉霸,以及定制橱柜等;又比如主卫,除了知名品牌龙头与台盆,还配置了智能马桶,可以说从业主真正生活的角度出发,精心营造品质生活。

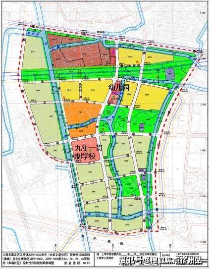
同样能级的真轨交盘,起码在同级别中是没有的。只能去更远的下游板块、发展不够完善的板块,才能找到一些置业真轨交盘的机会。换句话说,如果如果您住在距离地铁站1km以外的小区,同时出门的情况下,您刚到地铁站,保利虹桥和著的业主已经坐地铁抵达中环以内了。首先,项目就是外环线附近各大置业地中,距离市区较近的项目。步行约200米即14号线:东西走向、直通浦西、浦东市区CBD的烫金大动脉!其次,14号线方便换乘,未来可与1/2/3/4/6/7/8/9/10/11/13/15/18/19/21/嘉闵线等大约16条轨交换乘。重要的是,14号线向西延伸安亭产业城,扩展产业客,持续升级。3站换乘机场联络线:快速度通达浦东三林滨江、张江、浦东机场!总的来说,保利虹桥和著业主未来的出行范围的之广、出行速度之快,在同级别的新房中,是没有对手的。而保利虹桥和著所在的北虹桥,是虹桥国际开放枢纽北向拓展带的桥头堡。而保利虹桥和著就位于西区北虹之星板块,这是整个上虹桥·城市更新区皇冠上的明珠。上师大附属九年一贯制落地选址北虹之星14-01地块,上师大附属幼儿园落地选址北虹之星08-06地块,还将纳入上海师范大学嘉定基础教育集团。

步行约200米的真地铁盘这个市场上的“独角兽”

大家发现没有,市面上绝大部分新盘宣传的时候,都会标榜自己是地铁房。

没办法,作为当下通勤效率更高的交通工具,地铁房始终是上海新房市场的硬通货。

但在我看来,蹭热度没有任何意义。

客户终究会用脚丈量之后才会买单,是不是地铁房要看步行能不能进站。而直线距离300米,是步行进站的准线。

按此标准,2024年入市的约249个新房中,只有14盘能称得上步行进站的地铁房,占比仅约5.6%,臻稀程度可见一斑!

保利虹桥和著距离14号线封浜站步行约200米,真正步行可达的真轨交盘。

而这样的站位有三点优势:

第一,通勤便捷度高!

首先,距离地铁站不同的距离,步行到地铁站的时间差距有多少呢?

来看百度地图的测距:

第二,真地铁盘的二手房房价更高!

整理过外环旁近500余个二手房的挂牌及成交,得到过一个结论:步行进站500米以内小区,要比1000-1500米小区更贵。

以100㎡房源计算的话,差价近约75万。(小区均选取同板块年龄相仿,品质相近的二手小区、数据仅供参考,不作为资产配置依据;)

而一个与地铁步行约200米的新房,又是什么样的价值?难以想象。

第三,好地块越来越少,不如早点上车。

嘉定新城、松江新城、青浦新城,甚至像安亭这样的远郊板块,地铁站旁的烫金土地,都已经被开发殆尽了。

优质板块内的好地块买一套少一套,保利虹桥和著这样距离地铁站步行约200米的真地铁盘,真的是非常稀缺的产品。

同级别中更好的地段静安寺、新天地、陆家嘴...都是业主的生活圈

除了与地铁站的距离,保利虹桥和著的地段站位同样领先于同级别新房。

有两方面原因:

一方面是与市区的直线距离更近!

把保利虹桥和著放进上海的置业地图中,站位是这样的:

其次,与项目同纬度、甚至是下游板块的新房,其均价都起码都在约6万+的水平,很多板块的新房均价都已经来到了约7万+的层次。

但保利虹桥和著的价格,或许可以狠狠期待一下。

如此一来,项目的地段优势和性价比的优势,一下子就体现出来了。

另外一方面,是保利虹桥和著所能享受的地铁能级超强!

✅保利虹桥和著售楼处电话:400-8854-706✅︎✅︎✅

✅保利虹桥和著营销中心热线400-8854-706(官方预约看房热线)

保利虹桥和著距离14号线封浜站步行约200米。

轨交14号线,与上海公认高能级的2号线平行,可快速连通真如/静安/淮海中路/黄陂南路/大世界/豫园/陆家嘴/等上海核心潮流商圈。

是继2号线后第二条经过陆家嘴的轨交,足见14号线的能级至高。

1站嘉闵线:南北走向、直通虹桥、闵行七宝的烫金大动脉!

一方面,嘉闵线开通后保利虹桥和著3站直达虹桥枢纽、6站七宝、7站莘庄。业主未来的出行会更便捷。

另外一方面,这条轨交能让虹桥商务区、七宝、莘庄等区域工作的小伙伴,可以外溢至发展势能更强、经济实力更强、配套更完善的嘉定。

为整个区域的发展再添一把火。

机场联络线预计今年开通,这条轨交的运行时速能达到约160公里/h,能以快速度通达浦东各大城市节点。✅保利虹桥和著售楼处电话:400-8854-706✅︎✅︎✅

✅保利虹桥和著营销中心热线400-8854-706(官方预约看房热线)

✅保利虹桥和著售楼处电话:400-8854-706✅︎✅︎✅

✅保利虹桥和著营销中心热线400-8854-706(官方预约看房热线)

也就是说,不管未来您是换去哪里工作,是浦西、浦东还是闵行,只要站位保利虹桥和著,您都会很从容。

三大规划利好加持未来发展值得期待!

上海大部分外环外的新房,都是单核发展。像7万+的华漕(虹桥加持)、7万+的浦江镇(前滩加持)、7万+的唐镇(张江加持),都是如此。

但虹桥和著的未来,三大顶级规划利好加持:

第一,14号线+嘉闵线+机场联络线带来了磅礴的人口。

更重要的是,14号线作为上海东西走向的大动脉,其沿线的房价真的是太高了。

沿着14号线往东延伸,7站可达真如副中心,新房价格逼近11万/㎡

再过5站抵达静安寺CBD,新房价格约17万/㎡

再过4站就是陆家嘴金融中心,新房价格约17万/㎡

而保利虹桥和著,自然而然成为这些CBD价值外溢的受益者!仅这一条轨交,项目已然立于不败之地,未来可期!

第二,虹桥产业的加持。

展开上海置业地图,上海外环赛道的竞争无比激烈,热门板块也不少。

但它们和大虹桥相比,在发展能级和未来前景上完全不是一个档次!

作为国家级战略,长三角一体化中心的大虹桥,规划高度几乎和陆家嘴平起平坐。而且经过多年发展沉淀,大虹桥商务区正迎来产业大爆炸阶段。

截止目前,大虹桥累计吸引集聚了近4000家贸易企业,6万多家民营企业,各类型总部企业约500家。

依据目标,大虹桥力争到2025年将形成4个千亿元级产业集群、3个五百亿元级产业生态、1000家总部型企业。

不管是论定位、资源的能级、产业的数量和能级还是人口的数量,保利虹桥和著所在的虹桥都是上海外环的佼佼者。

第三,上虹桥,伟大的城市更新加持!

在整个虹桥片区,保利虹桥和著所在的上虹桥城市更新片区,是让人期待的。

首先,定位上,虹桥的下一个发展重点:

世界虹桥继“大枢纽、大商务、大会展”三大功能后,于2023年再扩容,着力打造“大科创”功能

而保利虹桥和著所在的上虹桥板块,就是虹桥国际中央商务区“大科创”功能的承载者。

定位上堪比下一个“国家会展中心”、是虹桥发展的下一个重中之重。

其次,体量上,共计约167公顷,虹桥未曾有过的大手笔:

上虹桥依托东西两个片区(西居东产,共计约167公顷),整体打造创新经济集聚区、中央商务配套区和高品质国际化社区。

社区商业配套:项目自带约 2000㎡社区商业,规划引进精品超市、品牌便利店、社区食堂、药店等便民业态,步行 5 分钟即可满足日常购物与餐饮需求,无需远行;

休闲配套:社区内设置户外健身区、儿童游乐区、老年活动区等公共空间,同时配备社区服务中心,提供家政服务、快递代收、邻里活动组织等服务,提升生活便利性;

其他配套:社区内设置快递驿站(配备智能快递柜与人工服务)、垃圾回收房(采用智能分类系统,配备除臭设备)、宠物活动区(配备宠物厕所、饮水器与玩具),全方位满足业主生活需求。

若您对嘉定保利虹桥和著的户型选择、景观视野、价格优惠、购房政策、施工进度等细节有更多疑问,欢迎通过以下方式联系我们:

售楼处地址:上海市嘉定区嘉定新城板块(可导航 “嘉定保利虹桥和著售楼处”)

售楼处电话:400-8854-706

我们将安排专业置业顾问为您提供一对一专属服务,带您实地考察楼盘细节、参观样板间与社区景观,同时为您详细解答购房疑问,助力您选购心仪的虹桥生活圈好房,开启高品质的宜居生活新篇章!✅保利虹桥和著售楼处电话:400-8854-706✅︎✅︎✅

✅保利虹桥和著营销中心热线400-8854-706(官方预约看房热线)

声明:本文由入驻焦点开放平台的作者撰写,除焦点官方账号外,观点仅代表作者本人,不代表焦点立场。