它的地理优势明显, 距离静安只有约400米、距离中环线直线约3km,同频享受静安的商业、医疗、文化等资源;品质方面能够比肩千万级奢宅的楼盘,价格却超香!
「大华·公园柏翠」6批次加推164套房源,均价65327元/㎡,建面约101-142㎡3-4房,火爆认购!
☑️☑️大华·公园柏翠售楼处电话:400-8377-020☑️☑️
编辑

☑️☑️大华·公园柏翠售楼处电话:400-8377-020☑️☑️
大宁之上 双轨交1/18号线
『大华·公园柏翠』
收官房源火爆认购中!
加推建面约101-142㎡3-4房
低密小高层+超大面宽“神”户型
四期建面约101㎡精装3房在售中
编辑

☑️☑️大华·公园柏翠售楼处电话:400-8377-020☑️☑️
编辑

☑️☑️大华·公园柏翠售楼处电话:400-8377-020☑️☑️
编辑

☑️☑️大华·公园柏翠售楼处电话:400-8377-020☑️☑️
编辑

☑️☑️大华·公园柏翠售楼处电话:400-8377-020☑️☑️
编辑

☑️☑️大华·公园柏翠售楼处电话:400-8377-020☑️☑️
编辑

☑️☑️大华·公园柏翠售楼处电话:400-8377-020☑️☑️
☑️☑️大华·公园柏翠售楼处电话:400-8377-020☑️☑️
Part 01
静安400米、大宁下一站
南北高架旁距离中心城区最近的新房!
关于大华公园柏翠的地段,有几大关键词:
第一,南北高架+中环,大华公园柏翠串联起了上海更昂贵的置业地。
大华公园柏翠距离北中环直线约3km,通过南北高架几乎可以实现无缝衔接。
而如今整条北中环线上的房价相当昂贵,整体均价都在约11万+。但这些置业地距离大华公园柏翠不过是一脚油门的事情。☑️☑️大华·公园柏翠售楼处电话:400-8377-020☑️☑️
这是大华公园柏翠性价比和潜力的体现,也是未来业主出行的保障。
第二,静安400米,与大宁新房房价相差一半有余。
大华公园柏翠距离静安区只有约400米左右的直线距离,是整个宝山距离中心城区最近的新房。
同时,项目距离大宁的市北高新园区直线仅约2.5km。
一方面,这是地段价值的体现,尤其是在康宁路-万荣路、南北高架、1号线等三条超级大动脉的加持下。
大宁的配套、产业几乎与大华公园柏翠共享。
另外一方面,在大宁在前不久出让的土地,其可售楼板价约8.6万/㎡,网上猜测这块宅地未来售价的声音很多,例如12万、14万甚至是16万。☑️☑️大华·公园柏翠售楼处电话:400-8377-020☑️☑️
但不管卖多少钱,这个大宁新房都比大华公园柏翠的价格高出一倍有余。
这意味着什么?
首先,上海新房的定价确实与所在区域有很大的关系,举个例子:
大华公园柏翠与大宁之间的关系,与宝山新江湾城与杨浦新江湾之间的关系很相似。
不同区,但几乎享受相同的配套、交通以及产业利好。
在新房定价时,宝山新房均价约7万/㎡、杨浦新江湾约10万+/㎡,这无可厚非。
但一旦步入二手,这两者之间的房价差距迅速拉近, 因为在配套、交通、产业相近的情况下,产品力才是决定一切的根本。☑️☑️大华·公园柏翠售楼处电话:400-8377-020☑️☑️
编辑

☑️☑️大华·公园柏翠售楼处电话:400-8377-020☑️☑️
示意图
而大华公园柏翠的产品力,有着不输任何对手的底气!一旦步入二手,这就是整个北中环的王者,拥有极强的未来潜力。
第三,四大顶级规划围绕下的“北中环真核心”,无限潜力。
除了出众的地段、配套、价格优势外,大华公园柏翠享受的利好和潜力,同样惊人。
一方面,大宁市北高新园区就在项目南侧,咫尺的距离。
这座园区对于北中环的意义,与张江对于浦东的意义是相同的, 代表着更高阶、更高能级的产业规模和能级。
更重要的是,市北高新园区的重点项目正在不断加码!
在上海建设“科创中心”的大目标下,上海市大数据中心已带头落址市北高新。这里将会是上海数据资源最丰富、数据类企业最集中、数据应用场景最广泛的区域。☑️☑️大华·公园柏翠售楼处电话:400-8377-020☑️☑️
大宁北部的投资强度和经济密度都会进一步加强。
另外一方面,宝山其实从去年南北转型开始,就展现出了完全不同以往的发展势头来。
大华公园柏翠以西的南大智慧城、以东的吴淞创新城,在规划中都是科创产业的主阵地建设的两大核心承载区,建设速度肉眼可见。☑️☑️大华·公园柏翠售楼处电话:400-8377-020☑️☑️
同时,今年宝山公示了《吴淞江-蕰藻浜沿线地区专项规划》。
就在大华公园柏翠北侧,将规划整体打造一条蓝绿交织、清新明亮、连湖串链、通江达海和水韵特色鲜明、创新功能集聚、滨水活力彰显的上海大都市江南水廊发展带,体现中华风范、江南风光、创新风尚。
编辑

☑️☑️大华·公园柏翠售楼处电话:400-8377-020☑️☑️
图片来源网络
以大华公园柏翠为核心,周边聚集了宝山最重要的科创产业、资源能级。
同时,项目又是整个北中环距离静安、大宁,以及上海主动脉南北高架更近的项目。
编辑

☑️☑️大华·公园柏翠售楼处电话:400-8377-020☑️☑️
示意图
可以预想到,未来以项目为中心,周边未来聚集的高薪产业、高知人口以及城市菁英不计其数。
而大华公园柏翠遥遥领先的产品力,未来将吸引这些改善置业客户的不断追逐,直至将其顶上北境之王的价格和地位。
这样的潜力和未来预期,是其他单核发展的板块所无法比拟的。
☑️☑️大华·公园柏翠售楼处电话:400-8377-020☑️☑️
⬇️专业销售一对一咨询⬇️
☑️☑️大华·公园柏翠售楼处电话:400-8377-020☑️☑️
Part 02
约80米门头、星级酒店大堂
内外双公园,比肩千万级豪宅的公区
大华公园柏翠西侧是60多万方的规划绿地,接近1.5个长风公园大小。
而项目是一个容积率约2.2的全17F以下低密小高层社区。
在叠加项目距离静安直线约400米的地段,这几乎就是一个位于城市中央、生长在森林里的低密大居。
同时, 大华公园城市一二三期均已交付入住,整个大社区的居住环境、氛围已经非常浓郁。大华公园柏翠这个王冠之上的作品一旦交付,即刻就能享受生活。
☑️☑️大华·公园柏翠售楼处电话:400-8377-020☑️☑️
项目在归家动线上特别打造了“三进式”归家礼序,并且每一层归家礼序的打造,都是按照千万级豪宅才有的规格。
一进:宽约80米、高约6米的气派大门。
并且在选材上选用来自吴哥窟的进口石材,尽显静谧奢华的气质。
主入口利用108片伯爵灰大理石打造12座景墙单元,辅以香槟色不锈钢修饰。
整体迎宾空间耗材约1800片大理石,这样的大门规格、石材用料以及用心程度,无不体现出大华公园柏翠对标豪宅的决心。☑️☑️大华·公园柏翠售楼处电话:400-8377-020☑️☑️
编辑

☑️☑️大华·公园柏翠售楼处电话:400-8377-020☑️☑️
社区实景图
二进:围合庭院。
庭院由4处归家通道、8扇造型屏风和1座水景雕塑的一体化设计打造而成,由此开始拉开了低密森氧居住生活的大幕,这是市面上其他新房所没有的高规格。
用料上,庭院两侧设计师选用大理石与镂空铝板虚实结合,利用2层柏翠造型铝线条错拼而成,更显精致;
这样的设计和用料,在600万级的新房市场中,简直是降维打击。☑️☑️大华·公园柏翠售楼处电话:400-8377-020☑️☑️
编辑

☑️☑️大华·公园柏翠售楼处电话:400-8377-020☑️☑️
社区实景图
三进:宅门。
归家大堂能给业主更尊贵归家体验的同时,也能作为柏翠业主专属的城市会客厅。
整座大堂外墙采用伯爵灰大理石满铺高墙,电动门镶嵌宝格绿奢石,实现无感通行;
编辑

☑️☑️大华·公园柏翠售楼处电话:400-8377-020☑️☑️
社区实景图
内墙材料选用来自 保加利亚的维纳多石材,整块大理石圆弧拉槽,这是顶级豪宅才有的用料和细节。
编辑

☑️☑️大华·公园柏翠售楼处电话:400-8377-020☑️☑️
社区实景图
大堂接待台选用产自 意大利山脉的宝格绿奢石一体打造而成。
☑️☑️大华·公园柏翠售楼处电话:400-8377-020☑️☑️
编辑

☑️☑️大华·公园柏翠售楼处电话:400-8377-020☑️☑️
社区实景图
这些用料和最终呈现出来的浓郁海派氛围,是对大华集团实力和匠心最好的体现。
丰富的架空层空间,足不出楼就能享受生活。
社区内还在部分楼栋内设置了 架空层泛会所空间,用于亲子陪伴或是朋友会面。
编辑

☑️☑️大华·公园柏翠售楼处电话:400-8377-020☑️☑️
编辑

☑️☑️大华·公园柏翠售楼处电话:400-8377-020☑️☑️
编辑

☑️☑️大华·公园柏翠售楼处电话:400-8377-020☑️☑️
社区实景图
对于有孩子的家长而言,足不出户就能让孩子有更安全、更具乐趣的成长空间,这是多少人的梦想。
社区还拥有极高的审美和艺术表达能力。
对于很多新房而言,公区的用料可能就代表一切,因为这个只要“肯花钱”,很容易就能达成。
真正考验开发商能力和匠心的,是审美和艺术表达能力。
而大华公园柏翠在这一点上,值得全上海的豪宅学习和模仿。
首先,大华公园柏翠利用12级叠水、2座树池、9步水上汀步,运用六重造景的手法打造近500平的中央水景!
用一颗柏翠树型的构筑物形成独具艺术气质的“大树咖啡厅”,不仅拔高了社区的整体审美艺术和品味,也可供业主闲时聊天赏景、遛宠遛娃。☑️☑️大华·公园柏翠售楼处电话:400-8377-020☑️☑️
编辑

☑️☑️大华·公园柏翠售楼处电话:400-8377-020☑️☑️
社区实景图
并且将中心场地抬高1米, 在水系池底通铺1300多片的PRADA绿石(仿石砖)、精选斜飘乌桕、造型紫薇等名贵树种...
不难看出,大华公园柏翠不仅卷用料,更在审美艺术、生活方式上接轨国际前沿,拔升了高端住宅的品味和调性,整体的公区用料更是媲美高端豪宅!☑️☑️大华·公园柏翠售楼处电话:400-8377-020☑️☑️
就比如前不久刚刚举办的大树生活节&光年社的社群启幕活动。
现场不仅有巨型圣诞树,大宁久光同款小食屋,还飘下了2024年上海的“第一场雪”。现场的圣诞氛围满满,人气火热。
编辑

☑️☑️大华·公园柏翠售楼处电话:400-8377-020☑️☑️
编辑

☑️☑️大华·公园柏翠售楼处电话:400-8377-020☑️☑️
编辑

编辑

☑️☑️大华·公园柏翠售楼处电话:400-8377-020☑️☑️
☑️☑️大华·公园柏翠售楼处电话:400-8377-020☑️☑️
Part 03
中环之上、大宁之上
上海距离静安更近的新房
2024年静安的新房供应主要集中在西藏北路和江宁路板块,均价都是12万/㎡起步。大宁已经许久没有新房供应,但是中外环的静安府、仁恒静安世纪、融创静安映等挂牌价都来到11-13万/㎡。
为什么说「大华·公园柏翠」的地理位置绝佳?
在地段上,项目有三个标签:
项目距离静安直线约400米、地铁3站大宁核心区!
项目距离中环线约3km!
繁华配套!
我们来解析以上这三个标签。
第一,距离静安直线约400米、地铁3站大宁核心意味着什么?
一方面,这意味着距离静安、黄浦更近,直接影响上班通勤便捷性,即使你将来换工作,只要还占位外环内,不管单位在哪里,都能从容应对。☑️☑️大华·公园柏翠售楼处电话:400-8377-020☑️☑️
编辑

☑️☑️大华·公园柏翠售楼处电话:400-8377-020☑️☑️
要知道,如今置业肉眼可见的边缘化,主力供应已到外环外5-10公里,如今却还能碰到 大华公园柏翠,甚是难得。
尤其对于工作在大宁的小伙伴来说,1号线3站就是上海马戏城,大宁核心区。
编辑

☑️☑️大华·公园柏翠售楼处电话:400-8377-020☑️☑️
地理位置决定了享受到的资源浓度,大宁的繁华咫尺可得。
目前的大宁已是大家公认的北上海新的商业、产业中心。
约56万平大宁音乐广场、约25万平大宁国际商业广场、约30万平大宁久光百货,静安大融城等商场一路连缀。
编辑

☑️☑️大华·公园柏翠售楼处电话:400-8377-020☑️☑️
这个出行便捷度,在同能级的板块中,几乎是属于一梯队。
另外一方面,这意味着大华公园柏翠有出众的未来前景。
举个例子:整个浦东外环外,唐镇无疑是王者级的。约10万+的二手房房价、约7万+的新房价格,板块价值可见一斑。
而造成这种原因也很简单: 唐镇距离张江仅3站。
于是,唐镇就成为了张江精英们外溢的首站。而围绕着这些精英,唐镇落地了大量高能级的教育、商业、生态等资源。
这样的良性循环,让这个板块的价值水涨船高,甚至突破环线价格限制。
编辑

☑️☑️大华·公园柏翠售楼处电话:400-8377-020☑️☑️
同样道理,大华公园柏翠距离静安直线约400米、1号线3站即大宁核心商圈,是整个上海距离静安最近的新房。
对于工作在大宁、苏河湾、静安寺、南京西路、人民广场、虹口等区域的购房者来说,大华公园柏翠就是地段更好的新房。
☑️☑️大华·公园柏翠售楼处电话:400-8377-020☑️☑️
并且相比静安、大宁的约1500万级置业门槛,大华公园柏翠的价格几乎是差了一半多,这样的性价比谁能抵挡?
未来当大水漫灌下,大华公园柏翠的项目价值、配套能级、居住氛围和圈层,都会有大提升。
第二,项目距离中环线约3km!☑️☑️大华·公园柏翠售楼处电话:400-8377-020☑️☑️
与大华公园柏翠同纬度的板块,新房均价起码约8.58万/㎡起,单价约10万+的区域比比皆是。
编辑

☑️☑️大华·公园柏翠售楼处电话:400-8377-020☑️☑️
第三,已经成熟的繁华配套!
商业配套方面,项目周边从生活配套到高端商场到大型商超,应有尽有。
· 地铁3站直达:大宁久光中心、大宁音乐广场、大宁国际商业广场等
· 周边约900M范围:共康商圈、社区邻里中心商业广场、场北集贸市场、北斗星广场
· 直线距离约1.5KM范围内:宝山万达广场、宝山购物中心等
· 直线距离约2.7KM:宝山日月光,多类型商业形态荟萃☑️☑️大华·公园柏翠售楼处电话:400-8377-020☑️☑️
编辑

☑️☑️大华·公园柏翠售楼处电话:400-8377-020☑️☑️
编辑

☑️☑️大华·公园柏翠售楼处电话:400-8377-020☑️☑️
教育方面,项目周边教育资源丰富,包括陈伯吹实验幼儿园(上海市示范幼儿园)、陈伯吹实验小学,华师大宝山实验学校等学校。
项目正南侧一墙之隔,还有 九年一贯制公办学校在建设中。免责声明:以上教育资源整理仅代表楼盘与学校的距离,该房屋所在项目暂未划分学区,开发商不对项目交房后所属学区、学校做任何承诺。教育资源分配或学校/学区划分以及学校的具体招生规则等请以政府相关主管部门、教育机构公开的最新信息为准。
生态方面,项目坐拥五大公园:
约80万方伟岸绿境环抱,包括千亩绿境(约60万方绿化在侧),约3万方庙行公园、约4.2万方共和公园,约2.7万方三泉公园、约9.3万方彭浦四季公园等。☑️☑️大华·公园柏翠售楼处电话:400-8377-020☑️☑️
这样的生态能级,媲美“新江湾湿地公园、世纪公园、长风公园”等,拥享“自然生态+稀臻难寻”双重价值属性。
编辑

☑️☑️大华·公园柏翠售楼处电话:400-8377-020☑️☑️
不管是从出行便捷度、未来潜力、现有配套还是同纬度的对比中,大华公园柏翠的地段都是更具竞争力的。光凭这一点,这个项目就已经足够有吸引力了。
但在产品力上,大华依旧给了我们足够的诚意和惊喜。
扫码进入官方报名通道,直接预约
☑️☑️大华·公园柏翠售楼处电话:400-8377-020☑️☑️
Part 04
建面约101-142㎡神户型
一梯两户的无连廊飞机户型
项目整个社区由4栋16层、10栋17层小高层组成, 是纯粹的低密小高层住宅。
一方面, 小高层在近期的上海市场中非常稀缺,尤其是在中环线上的位置上,小高层住宅凤毛麟角。
但另外一方面,小高层天然的高得房率、私密性和居住舒适度也保证了这个产品的受欢迎程度。
换句话说,大华公园柏翠的产品力,从天赋上就已经与其他项目拉开了差距。
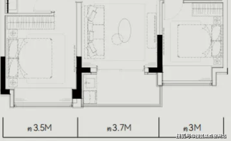
其次,产品上:项目建面约101-124㎡房源 一梯两户、建面约142㎡ 两梯两户。
而这意味着, 大部分的房源均是无连廊的设计,将带来更高的采光通透度、更好的通风以及更高的得房率。
再加上项目飞机户型的设计,室内几乎0空间浪费,即使是小户型也有超高的尺度感。
具体来看下:
建面约101㎡的三房两厅两卫
☑️☑️大华·公园柏翠售楼处电话:400-8377-020☑️☑️
编辑

☑️☑️大华·公园柏翠售楼处电话:400-8377-020☑️☑️
建面约101㎡3房2卫户型,非常标准的飞机户型。
三开间朝南整体约11.5米的面宽。什么概念呢?
上海这些年其实也有不少三开间朝南的飞机户型,但都不如了大华公园柏翠。
例如以下这个: 总价约千万左右,建面约104㎡的房源。
这个项目凭借着出色的户型,获得了不少高净值人群的青睐,但他约104㎡的户型南向面宽只有10.2米,比大华公园柏翠约101㎡的户型还小了约1.3米。☑️☑️大华·公园柏翠售楼处电话:400-8377-020☑️☑️
别小看这约1.3米,整体的尺度感完全不同。
编辑

☑️☑️大华·公园柏翠售楼处电话:400-8377-020☑️☑️
更重要的是,项目是 大横厅+超大阳台的设计。撑起气场的同时,也能为家庭带来更多的生活想象。
另外,南北通透+3房5飘窗的设计,保证了户型的通风以及视野。
超大的U型厨房十分宽绰,让切配煮更加合理从容。
细节方面,次卫的干湿分离也能保证室内的干燥,入户的玄关、主卧的套房,保证了主人的私密空间。
这个户型拥有一个“好户型”的所有特质,上车必看的首选户型!
建面约142㎡的四房两厅两卫
☑️☑️大华·公园柏翠售楼处电话:400-8377-020☑️☑️
编辑

☑️☑️大华·公园柏翠售楼处电话:400-8377-020☑️☑️
真正一步到位的改善型4房产品,大横厅的设计,
四开间朝南+大横厅,约15.4米的南向面宽堪比别墅。
大横厅也可以灵活运用在各种生活场景,例如作为妈妈的瑜伽室、孩子的游乐天地等,都是很好的选择。
这样的户型,能满足各个家庭成员的需求!
最后,还有一点: 项目将标配国际家装大牌、臻选精奢材质、把关精细施工,悉心规划4大定制系统、100+精工细节,精琢非凡空间。☑️☑️大华·公园柏翠售楼处电话:400-8377-020☑️☑️
来看样板间实拍👇
注:以下为项目概念展示间实景图,非交付标准
编辑

☑️☑️大华·公园柏翠售楼处电话:400-8377-020☑️☑️
编辑

编辑

☑️☑️大华·公园柏翠售楼处电话:400-8377-020☑️☑️
编辑

编辑

☑️☑️大华·公园柏翠售楼处电话:400-8377-020☑️☑️
大宁之上 双轨交1/18号线
『大华·公园柏翠』
低密小高层+超大面宽“神”户型
四期建面约101㎡精装3房在售中
均价62480元/㎡
价格比前三期更低,性价比更高!
项目社区秉承 “内外双公园、城市公园一体化”理念,打造出 “一轴、一带、一环、九大花园空间”的生态品质社区。

☑️☑️大华·公园柏翠售楼处电话:400-8377-020☑️☑️
一轴:纵向公园归家轴
一带:横向精致花园带
一环:阳光有氧环形跑道

☑️☑️大华·公园柏翠售楼处电话:400-8377-020☑️☑️
九园:潮汐花园(社区外围口袋花园)、浔湾秘境(会所式入户)、社交剧场、漫游森境、下沉会所、阅读花园、社交花园、自然博物馆。

约80米气派门面:非凡界面昭示,彰显大家门风。

☑️☑️大华·公园柏翠售楼处电话:400-8377-020☑️☑️
星级酒店大堂:全T2设计,出入从容,悦享私密尊崇。

☑️☑️大华·公园柏翠售楼处电话:400-8377-020☑️☑️
☑️☑️大华·公园柏翠售楼处电话:400-8377-020☑️☑️
高感车库:引光入径,指引回家方向,营造明亮温馨的仪式感。

☑️☑️大华·公园柏翠售楼处电话:400-8377-020☑️☑️
大华物业: 国家一级物业管理资质,中国物业服务百强企业,为逾百万家庭幸福生活保驾护航

☑️☑️大华·公园柏翠售楼处电话:400-8377-020☑️☑️
约500万+起在中环旁买正3房
只有大华公园柏翠能满足你!
有一个前提大家一定要清楚:大华公园柏翠是整个中环线上,距 离市区更近的新房。
这个项目与很多千万以上的豪宅处于同一纬度:

中环的地段价值+总价约500万+起的价格,大华公园柏翠妥妥的价格洼地!
但在这样的洼地价格上,大华还为购房者带来了比肩千万级豪宅的产品力,真的是非常惊艳:
先来看户型:☑️☑️大华·公园柏翠售楼处电话:400-8377-020☑️☑️
建面约101㎡的3房!

☑️☑️大华·公园柏翠售楼处电话:400-8377-020☑️☑️
稀缺属性上:
目前上海中小套配比已经改变了,小高层和高层产品未来的门槛将会是建面约110㎡起。
这意味着,未来不仅将增加10-20㎡置业成本,并且百平米左右的3房将成为市场臻稀产品。

☑️☑️大华·公园柏翠售楼处电话:400-8377-020☑️☑️
产品力上:
如果你熟悉上海市场,你会发现目前市面上的户型普遍会面临:利用率低、有连廊、采光不足、卫生间少/功能性差、卧室太小不够等问题。
但大华公园柏翠的建面约101㎡3房2卫,却很好的解决了以上所有问题:
约5.3米的大横厅、整体约11.5米的巨型南向面宽!

一方面,在整个中环甚至是整个上海, 百平米3房能做到约11.5米面宽的新房,只有大华公园柏翠。
另外一方面,这个南向采光面带来的居住舒适度是MAX级的。
尤其是 约5.3米的大横厅+超大阳台的设计,撑起气场的同时,也能为家庭带来更多的生活想象。

☑️☑️大华·公园柏翠售楼处电话:400-8377-020☑️☑️
实景图
小高层+飞机户型造就真3房的实用性!

小高层的天然高得房率+飞机户型带来的0走道优势,让这个百平米户型做到了真正的3房!
相比竞品户型的2房+1个功能房 ,其功能性天壤之别。


☑️☑️大华·公园柏翠售楼处电话:400-8377-020☑️☑️
实景图
南北通透带来极为宜居的居住环境!

大华公园柏翠的客餐厅以及厨房一脉相连,中间套也能实现完全的南北通透,出色的空气流动性能为业主带来更加舒适、宜居的居住氛围。
LDKB的设计,在撑起气场的同时,也增加了更多的生活想象!
还有细节方面的设计,例如:次卫的干湿分离保证室内的干燥;入户的玄关、主卧的套房,保证了主人的私密空间...
这个户型拥有一个“好户型”的所有特质,上车必看的首选户型!
样板间看房视频独家首发!
建面约142㎡类一梯一户顶奢4房:☑️☑️大华·公园柏翠售楼处电话:400-8377-020☑️☑️

☑️☑️大华·公园柏翠售楼处电话:400-8377-020☑️☑️
☑️☑️大华·公园柏翠售楼处电话:400-8377-020☑️☑️
稀缺属性上:
2021年至今,整个上海140-145㎡新房仅供应532套,占比 不足5%。光这个产品在整个市场中就已经足够稀缺了。
产品力上:
说实话,到建面约142㎡的维度,各个项目的户型设计都很不错。
但有几点真的是大华公园柏翠独有的。
类一梯一户,享独立电梯厅 ,在入户仪式感和私密性拉满的同时, 增加了实际使用面积 ,变相提高了“得房率”。
四开间朝南 , 南向面宽达约15.4米,其中三卧朝南。 一般来说,4房户型中2房朝北是逃不掉的问题,但大华公园柏翠长面宽短进深的设计,让这个户型的 得房率、采光度 更上一层楼。
约5.9米面宽的巨幕横厅 ,加上同样面宽的宽绰阳台,为业主带来更多的生活想象。
这个户型拥有一个好户型应该拥有的所有特质!


☑️☑️大华·公园柏翠售楼处电话:400-8377-020☑️☑️

☑️☑️大华·公园柏翠售楼处电话:400-8377-020☑️☑️
实景图
这两个产品,真的是如今上海市面上,同级别户型中设计感最强的户型。
最后,还有一点: 项目将标配国际家装大牌、臻选精奢材质。

☑️☑️大华·公园柏翠售楼处电话:400-8377-020☑️☑️

☑️☑️大华·公园柏翠售楼处电话:400-8377-020☑️☑️