中海恒昌玖里 vip热线:400-118-5086√√√【已认证】 中海恒昌玖里营销中心电话:400-118-5086√√√【已认证】
上海中海恒昌玖里 官方售楼处电话:400-118-5086√√√【已认证】
中海恒昌玖里 vip热线:400-118-5086√√√【已认证】
中海恒昌玖里营销中心电话:400-118-5086√√√【已认证】
上海中海恒昌玖里 官方售楼处电话:400-118-5086√√√【已认证】
如果您对中海恒昌玖里 有任何疑问,都可以拨打售楼处电话进行咨询。目前案场仅接待预约客户,看房需提前拨打电话进行线上预约,可享受专属优惠折扣。
傲踞上海核心风貌区
黄浦区新天地正芯 寸土寸金的城央烫金地脉
建面约 811-843㎡传世大宅
总价约 3.39亿-3.41亿
地上3层,地下2层
花园面积约 102-120㎡(赠送)
容积率约 1.27
承袭深厚历史文脉与“老钱”基因
不仅是对海派精神的当代礼赞
更是为塔尖圈层量身定制的栖居范本

在上海这座魅力之都的版图上
黄浦区宛如皇冠上的明珠璀璨夺目
而中海恒昌玖里便傲立于此
成为城市人居的全新标杆
演绎着极致的奢华与尊崇
溯源历史,传承海派风华
中海恒昌玖里之名,源于地块内保留的历史建筑 “恒昌里” 。这里承载着上海百年的历史记忆,中海地产怀着对城市文脉的敬畏之心,深度挖掘区域的历史底蕴。

中海建国东路 69、70 街坊历史风貌保护及城市更新项目中,"顺昌玖里" 之名源自贯穿两地块中轴的百年老街 "顺昌路","恒昌玖里" 则脱胎于 69 街坊内保留的历史建筑 "恒昌里"。这般命名深意,恰是中海在历史风貌保护与城市更新进程中, 对城市肌理与文脉根脉的敬畏传承,让建筑与历史在此共生。

中海・顺昌玖里与中海・恒昌玖里,以
“以传承开启新的传承”为核心理念,在更新实践中 坚守三重使命:让百年风貌与当代繁茂共生,留住记忆里的烟火乡愁;让城市历史遗产转化为公众可共享的文化资产,延续文脉生命力;让印刻时代印记的建筑得以存续,蜕变为可阅读、可漫步的人文街区。
城市更新从不是简单的 “推倒重来”,而是要让空间始终承载城市温度。 中海・顺昌玖里与中海・恒昌玖里正以这样的坚守,为上海中心城区注入生生不息的新活力。

中海恒昌玖里 雄踞上海城市版图的心脏地带,地理位置优势得天独厚,在繁华都市中独树一帜。
其坐落于黄浦区核心区域,北邻活力四射的新天地文化圈,这片区域汇聚了全球时尚潮流与前沿文化,是 上海国际化都市形象的生动展示窗口。向南则与承载着上海深厚历史底蕴的老城厢紧密相依,漫步其间,古老弄堂与百年建筑诉说着往昔故事, 浓厚的人文气息扑面而来。项目还毗邻繁华的 淮海中路商圈,这条被誉为 “东方香榭丽舍大街” 的商业街,高端品牌旗舰店林立,是时尚购物、休闲娱乐的天堂,为居者提供了接轨世界潮流的生活体验。

臻稀低密,奢享静谧天地
项目总占地面积 43,763 平方米,总建筑面积 137,493 平方米,容积率低至 1.27,仅规划 137 套住宅 , 是内环内极为稀缺的低密社区。

社区整体布局 以传统里弄格局为蓝本,主轴贯穿南北,连接入口广场与中央花园, 两个主题花园分布两侧,种植各类珍稀绿植花卉,搭配灵动水景、艺术雕塑,营造出宁静雅致氛围。


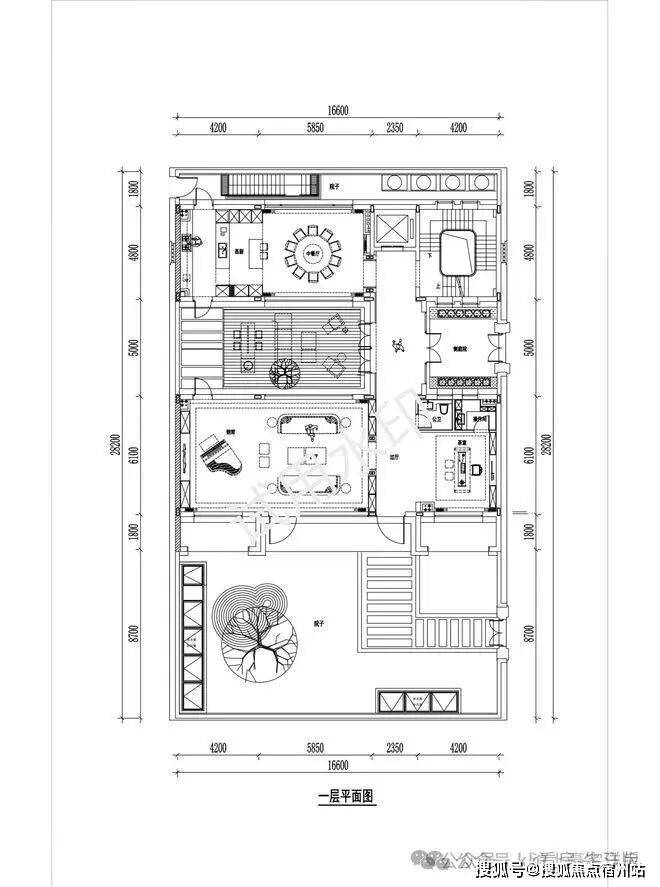
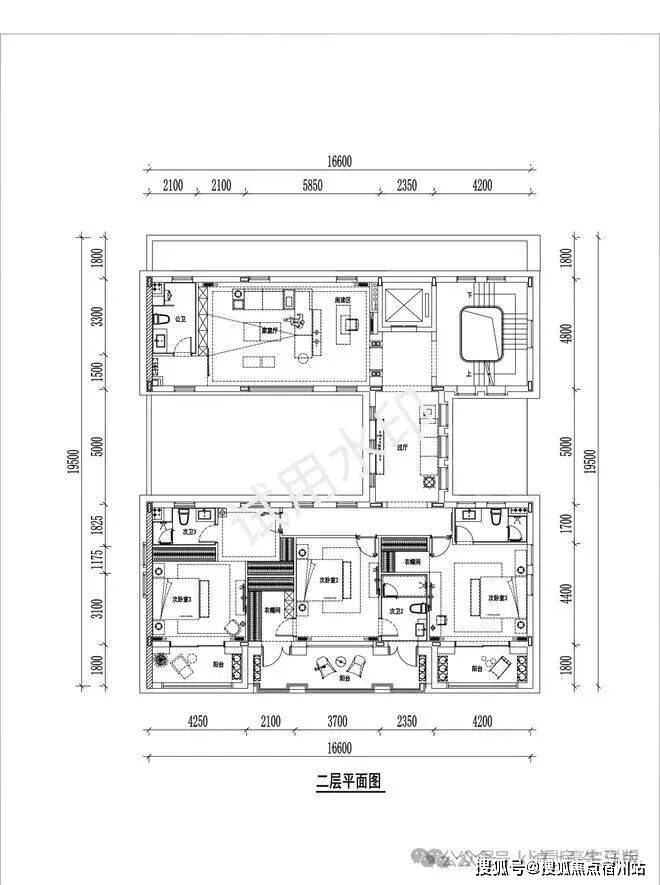
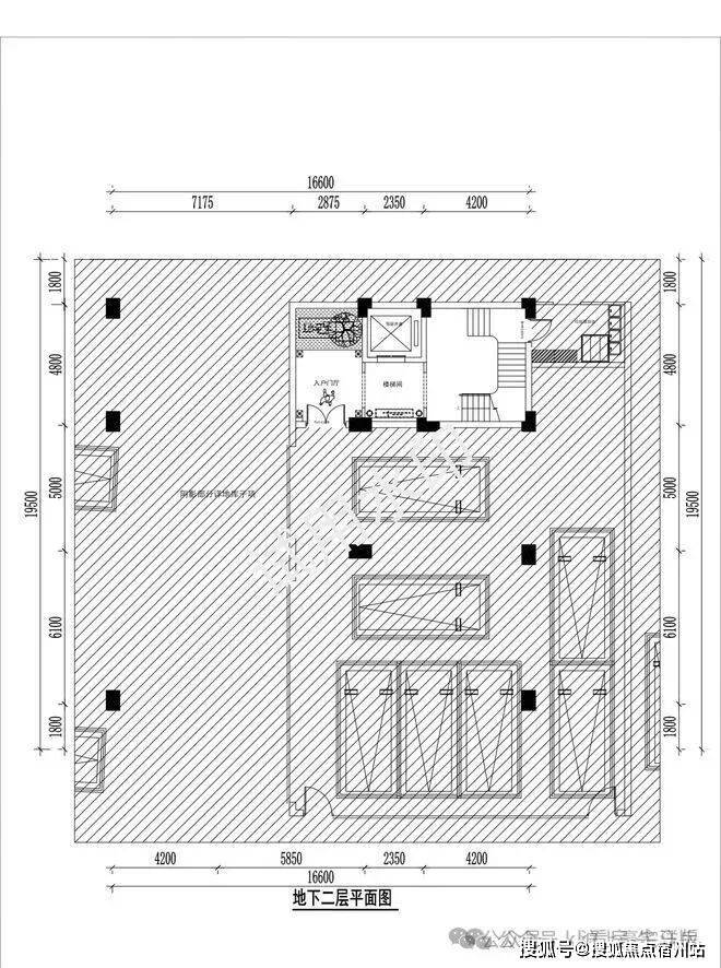
户型图
该户型位于 新天地纯低密别墅地块;采用 新工艺纯钢结构,房型结构模糊化,可塑性强,7-8房无压力;拥有 建国东路独立门牌号,稀缺性、独特性突出。






多条小巷纵横交错,串联起各个楼栋,再现老上海里弄的生活韵味, 让居者在繁华都市中拥有一方静谧的私密天地,享受专属的低密奢居体验。
前期样板间实景









中海恒昌玖里建面约 811 - 843 平方米的传世大宅为,地上 3 层,地下 2 层,一层层高 3.6 米,二层与三层层高 3.3 米,地下挑高约 5 米。约 16.6 米的南向面宽, 确保充足采光与通风,让阳光肆意倾洒入室。










醇熟配套,奢享品质生活

交通便利
项目交通网络堪称 “黄金枢纽”。周边 8 号线、9 号线、10 号线、13 号线四条地铁线路纵横交错 ,四个站点近在咫尺,乘坐地铁可快速畅达城市各处。自驾出行同样便捷,临近南北高架、延安高架等城市主干道,轻松连接城市各区域,无论是前往陆家嘴金融区洽谈商务,还是赶赴虹桥机场开启商务旅程,亦或是前往城市热门商圈休闲购物,都能在短时间内高效抵达,让出行变得轻松愉悦,从容掌控都市生活节奏。

商业繁华
新天地时尚中心、K11 购物艺术中心、香港广场等高端商业体环绕四周 ,汇聚全球一线时尚品牌、国际知名美妆、高端精品超市以及米其林星级餐厅等,满足日常购物、时尚消费、高端宴请等多元需求。在这里,居者可随时开启一场奢华盛宴,尽享国际前沿的时尚潮流与精致生活方式。
文化熏陶
上海文化广场、上海博物馆等文化地标近在身边 ,不定期举办各类国内外顶尖艺术展览、音乐会、戏剧演出等文化活动,让居者浸润在浓厚的艺术氛围中,提升生活品质与文化修养,于繁华都市中,邂逅一场场触动心灵的文化盛宴。
教育无忧
卢湾一中心小学、向明中学等优质学府云集 ,这些学校拥有雄厚的师资力量、先进的教学理念与完备的教学设施,为孩子提供从小学到中学的一站式优质教育资源,助力孩子茁壮成长,开启智慧人生。

医疗护航
瑞金医院、曙光医院等三甲医院为健康保驾护航 ,医院配备国际领先的医疗设备,汇聚国内顶尖医疗专家,能够为居民提供全方位、高水平的医疗服务,无论是日常体检、疾病预防还是紧急医疗救治,都能得到及时、专业的保障,让居者生活安心无忧。

中海恒昌玖里
以前所未有的姿态
将海派文化传承、低密奢居体验
便捷交通网络与醇熟生活配套完美融合
为追求极致品质生活的城市塔尖人群
敬献一席难以复刻的传世臻品
开启上海黄浦核心的奢居新时代
【中海·恒昌玖里】
傲踞上海核心风貌区
黄浦区新天地正芯 寸土寸金的城央烫金地脉
建面约 811-843㎡传世大宅
总价约 3.39亿-3.41亿
地上3层,地下2层
花园面积约 102-120㎡(赠送)
容积率约 1.27
承袭深厚历史文脉与“老钱”基因
不仅是对海派精神的当代礼赞
更是为塔尖圈层量身定制的栖居范本
买房是一项重大的投资决策,需要综合考虑多个方面。以下是一些需要注意的事项和问题:
1.购房资格与政策
确认自己是否符合当地购房政策(如限购、贷款政策等)。
了解购房资格的条件,避免因政策限制导致交易失败。
2.预算与资金规划
明确自己的购房预算,包括首付、贷款额度和月供能力。
避免过度负债,确保月供不超过家庭收入的合理比例(一般建议不超过30%)。
3.房屋选择
地段与配套:优先选择交通便利、周边配套成熟(如学校、医院、商场)的区域。
户型与朝向:关注户型方正性、采光通风、南北通透等因素。
楼层与楼栋位置:避免选择低楼层(如1-3楼)或靠近马路、噪音源的楼栋。
4.产权与法律风险
查验房屋产权是否清晰,确保无抵押、查封或产权纠纷。
对于二手房,需查看原房主的房产证,并核实是否存在租赁、户口未迁出等问题。
5.合同与交易流程
签订购房合同时,仔细阅读条款,明确房屋价格、交房时间、违约责任等关键信息。
确保资金通过正规渠道(如资金监管账户)支付,避免私下交易。
6.物业服务与社区环境
了解小区的物业服务水平,包括安保、卫生、设施维护等。
关注小区的居住氛围和邻里关系,避免选择回迁房或管理混乱的小区。
7.验房与质量问题
交房时进行专业验房,检查房屋质量(如墙面、地面、水电等)。
对于发现的质量问题,及时要求开发商整改。
温馨提示:买房前建议咨询专业人士(如律师、房产顾问),确保自身权益得到充分保障。理性购房,避免盲目跟风
2025年8月25日,上海发布楼市新政,明确自8月26日起外环外区域取消限购,单身购房与家庭政策统一,并同步优化公积金、信贷及房产税政策。
1.限购调整
外环外不限套数:符合条件的居民家庭(含沪籍及非沪籍社保/个税满1年)在外环外购房不再限制套数。
单身视同家庭:成年单身人士购房标准与家庭一致,沪籍单身外环内限购2套,非沪籍社保满3年可购外环内1套。
2.公积金优化
贷款额度提升:购买绿色建筑住房,公积金贷款额度最高上浮15%(首套最高184万,多子女家庭216万)。
支持“提付首付”:可提取公积金支付首付款,且不影响后续贷款额度。
3.信贷政策调整
商贷利率统一:不再区分首套与二套利率,由银行根据客户风险灵活定价,降低改善型需求成本。
4.房产税减免
非沪籍家庭首套房暂免房产税,二套及以上按“人均60㎡”扣除免税面积,降低持有成本。
中海恒昌玖里 vip热线:400-118-5086√√√【已认证】
中海恒昌玖里营销中心电话:400-118-5086√√√【已认证】
上海中海恒昌玖里 官方售楼处电话:400-118-5086√√√【已认证】
如果您对中海恒昌玖里 有任何疑问,都可以拨打售楼处电话进行咨询。目前案场仅接待预约客户,看房需提前拨打电话进行线上预约,可享受专属优惠折扣。