静安玺樾(售楼处)首页网站-静安玺樾销售中心(营销中心)静安玺樾楼盘欢迎您-小区环境-户型-价格-地址-楼盘详情-周边配套-售楼处电话-交房时间

搜狐焦点宿州站 2025-09-16 12:29:16
用手机看
扫描到手机,新闻随时看

扫一扫,用手机看文章
更加方便分享给朋友

招商·云澜湾售楼处电话:400-8377-020

#招商·云澜湾 今年买今年住

建面约135-141㎡叠拼准现房

预看房活动火热进行中

96平(毛坯)3房2卫345 万-418万

100平(精装)3房2卫396万-506万

上叠:788万-832万

下叠:854万-903万

首付比例:首套15%,二套20%

交付标准:高层装修交付(17,18栋是毛坯交付);叠加毛坯交付

卖点:央企开发 双水系环绕 低密 不封阳台 南北通透 无连廊

招商·云澜湾售楼处电话:400-8377-020

项目信息

总建筑面积:超7.2万方

小区总户数:617套(高层477套,叠加140套)

一期开盘套数:292套(2023/12/12)

二期开盘套数:325套(2024/4/23)

车位:约860个(地上85个,地下775个)

容积率:约1.6

绿地率:约35%

产品类型:高层(总高13F直通地下车库;一梯两户北向无连廊)、叠加(总高4F带电梯;下叠带地下室、上叠带露台)

建面约:96㎡ 三房两厅两卫(高层)

100㎡ 三房两厅两卫(高层)

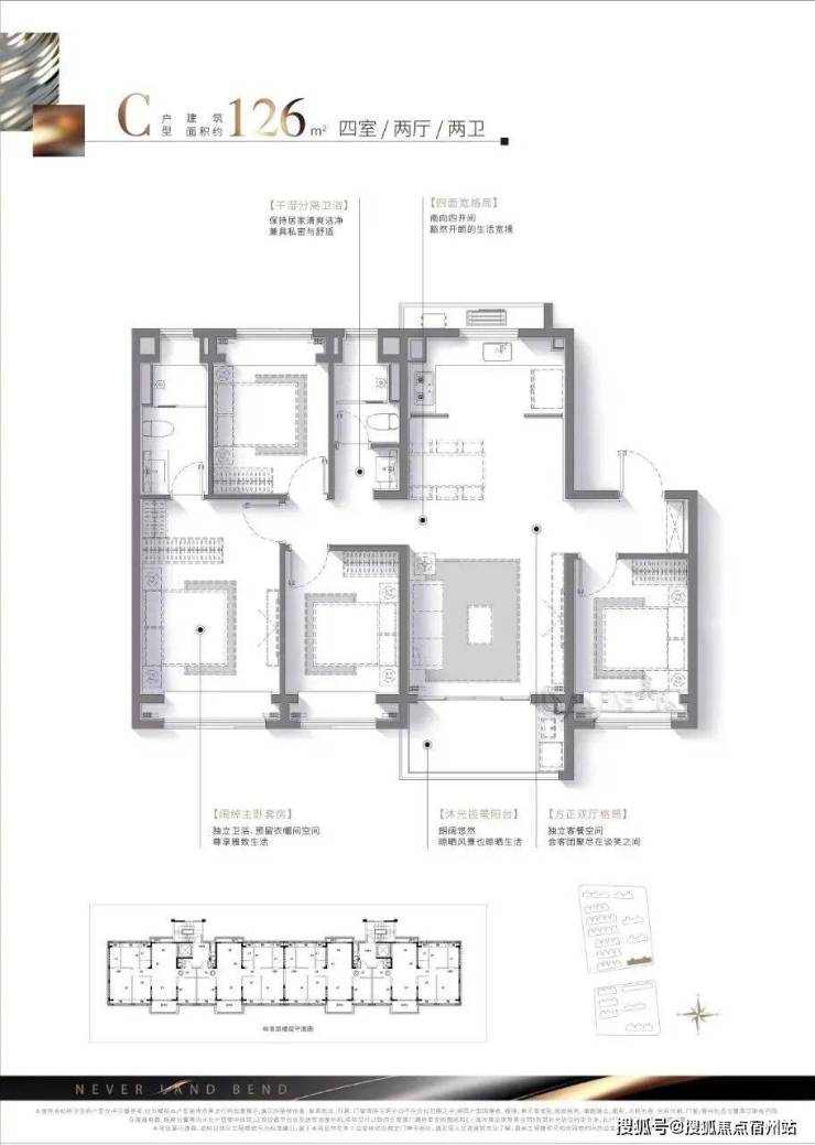
126㎡ 四房两厅两卫(高层)

135-141㎡(叠加)

均价:高层约4.6万/平,毛坯约4万/平(96平毛坯),叠加约6万/平

总价:约341-904万

总高:高层13层

叠加:下叠 1复2带地下室,上叠 3复4带露台

层高:高层 3米

叠加 首层3.3米,第二层3.1米

产权:70年

得房率:96/100平 约75%

126平 约80%

装修标准:高层 装修交付(中央空调+地暖+新风系统,除17、18幢是毛坯交付)

叠加 毛坯交付

拿地时间:2023年7月

交房时间:2025年12月31日

招商·云澜湾售楼处电话:400-8377-020

户型图如下

叠加户型图

96平样板房照片如下

100

平样板房照片如下

招商·云澜湾售楼处电话:400-8377-020

招商·云澜湾售楼处电话:400-8377-020

声明:本文由入驻焦点开放平台的作者撰写,除焦点官方账号外,观点仅代表作者本人,不代表焦点立场。