☑️☑️中粮北外滩一号售楼处电话:400-8377-020☑️☑️中粮·北外滩壹号 NORTH BUND ONE 中粮大悦城上海第五座壹号系
建面约185㎡/228㎡天际大平层
建面约190㎡/210㎡/280㎡海派风貌墅
即将入市,敬请期待
城市展厅【壹号会客厅】现已开放,诚邀参观
☑️☑️中粮北外滩一号售楼处电话:400-8377-020☑️☑️

☑️☑️中粮北外滩一号售楼处电话:400-8377-020☑️☑️
丨项目基本信息丨
总占地面积:约2.38万㎡
交付标准:高层精装交付,别墅毛坯交付
总户数:208户(90套高层、118套别墅)
首开产品:建面约185㎡/228㎡天际大平层
扫描二维码 预约参观

☑️☑️中粮北外滩一号售楼处电话:400-8377-020☑️☑️
大悦城控股在上海坚持城市共生,立足“一江一河”城市战略,从陆家嘴的海派复兴到苏河湾畔的人文共生, 从国际前滩探寻城市新生到和平公园的东方意境,中粮大悦城以全球高端人居理念,开启上海“壹号系”的“一江一河”生长之路。
· 2009-中粮·海景壹号
矗立陆家嘴云端,以摩天之姿定义东方天际
· 2015-中粮·天悦壹号
临水苏州河畔,以静谧美学重构都会张力
· 2018-中粮·前滩海景壹号
革新生态人居,以国际视野雕琢未来城脉
· 2021-中粮瑞虹·海景壹号
以新亚洲极简主义,让东方意境栖居时光

☑️☑️中粮北外滩一号售楼处电话:400-8377-020☑️☑️


☑️☑️中粮北外滩一号售楼处电话:400-8377-020☑️☑️
· 世界湾区,全球CAZ
北外滩+陆家嘴+外滩的黄金三角,上海“一江一河”城市战略规划核心段。

· 840万方城市生长力
4平方公里统一规划的雄心,北外滩以世界会客厅的尺度,重写全球资源配置。

· 超高建筑群重塑浦西城市天际线
——25年4月,约480米的浦西第一个高楼北外滩中心9根巨型结构柱已跃出地面,进入地上施工阶段,预计2030年完工。
——180米的上市中心正在建设中;2025年2月,上海华贸中心项目主楼规划调整从180米加高至249米,调整规划获批。
——320米的白玉兰广场,263米的来福士双塔、180米友邦金融中心、158米国华金融中心、100米FC金茂广场已投入运行。
此外,北外滩区域还规划了1栋380米建筑,2栋300-320米建筑,9栋200-265米的超高建筑。
从2020年北外滩新元年开始,《北外滩地区控制性详细规划》获批后,虹口区制定了“三年出形象、五年塑功能、十年基本建成”的发展目标,将北外滩定位为“新时代都市发展新标杆”和上海“中心辐射”新引擎。

☑️☑️中粮北外滩一号售楼处电话:400-8377-020☑️☑️
· 全球菁英的北外滩国际生活区,未来生活的“超维样本”
——22公顷无车漫步区
——3.5万平方米航海公园与中央绿地相融
——3.4公里滨江休闲岸线

☑️☑️中粮北外滩一号售楼处电话:400-8377-020☑️☑️


· 纵横全城 从容畅达
—三轨三隧通达双快速—
4号线大连路站、12号线提篮桥站、19号线提篮桥站(在建中);大连路隧道、新建路隧道、北横通道(快速辐射内环),叠加南北通道(规划中);内环高架、北横通道瞬息接驳。
· 摩登与历史交辉
—商业地标环伺—
北外滩来福士(约600米)、瑞虹天地太阳宫(约350米)、白玉兰广场(约1公里),汇聚全球奢享;
外滩万国建筑群(约2.4公里)、陆家嘴三件套(约2.2公里),于窗前定格经典天际线。

☑️☑️中粮北外滩一号售楼处电话:400-8377-020☑️☑️
· 自然与健康共生
—生态秘境—
北外滩中央公园(约6公顷)、北外滩滨江绿地(约1.8公里慢跑道)、霍山公园(社区绿肺),推窗见绿,转角遇美;
—医疗配套—
上海市第一人民医院(约1.9公里)、上海交大医学院附属新华医院(约2公里),三甲守护,健康无忧。


当黄浦江的百年潮声叩响城市记忆,中粮大悦城上海第五座壹号系,以更厚重的迭代之势,深植海派文化根系,以谦恭之姿对话历史文脉,以全球格局焕新城市界面。
这一次,不仅是「壹号」基因的传承,更是众多领域大师的匠心共著——从空间美学到细节工艺,从功能规划到精神共鸣,以跨界的智慧碰撞,雕琢大悦城控股上海又一封面力作。

☑️☑️中粮北外滩一号售楼处电话:400-8377-020☑️☑️
· 90席天际大平层
俯揽黄浦江视野,执掌世界S湾的时代潮向。

· 118席海派风貌墅
重绎石库门风骨,唤醒海派生活的优雅基因。

虽然项目仅有208户,仍然通过深挖三层,满配了高达 约1800㎡的私享顶奢会所。按户均占有会所资源计来算,这在当今顶豪圈是顶尖的水平。
会所由全球顶奢酒店设计领域的标杆——CCD香港郑中设计事务所执笔。 目前看到的效果图,体现出一股醇正的老钱世家风,设计品位远超市场同类豪宅。

效果图,仅供参考
社交宴会区内,私宴、茶室与专属酒吧一应俱全,满足业主商务应酬到亲友小聚的各种场景需求。

☑️☑️中粮北外滩一号售楼处电话:400-8377-020☑️☑️
效果图,仅供参考
瑜伽健身区,大幅落地窗引入自然光线,天花的格栅造型,地面的复古拼花木地板,都透出浓厚的海派风情。

效果图,仅供参考
恒温泳池更是融入超级垂直花园庭院体系,直接在泳池中做出美轮美奂的景观。

☑️☑️中粮北外滩一号售楼处电话:400-8377-020☑️☑️
效果图,仅供参考
雅集共聚区内,除了常规的阅读,棋牌等功能外,甚至设有一个舞蹈录音室,配置之高,沪上少见。

☑️☑️中粮北外滩一号售楼处电话:400-8377-020☑️☑️
效果图,仅供参考
因为这是中粮大悦城的壹号系,珠玉在前,小编完全不担心会所未来兑现的效果,甚至已经很期待看到未来会所开放展示的那一刻。
景观方面,设计了「八大主题场景」,从百年梧桐下的静谧巷道,到充满未来感的艺术庭院,共同构成一个鲜活立体的生活剧场。

效果图,仅供参考
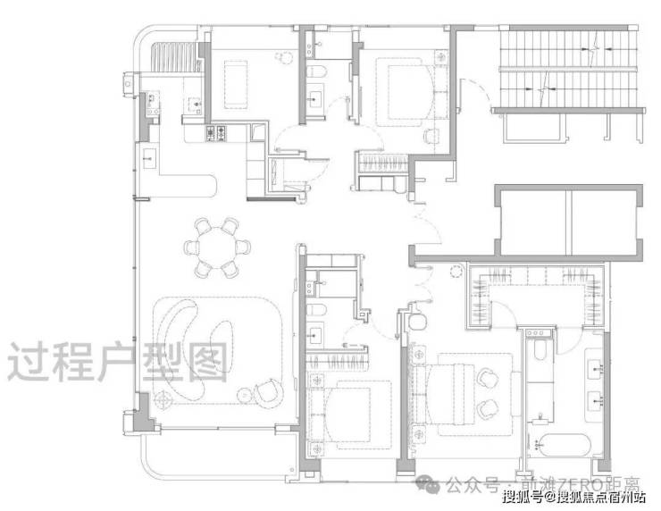
户型方面,即将入市的90套天际大平层圈层纯粹,中间户是185㎡,边户是228㎡,均为四房两厅三卫设计,全系类一梯一户的配置。
扫描二维码 预约参观

☑️☑️中粮北外滩一号售楼处电话:400-8377-020☑️☑️
示意图,仅供参考
因为南向都是低密风貌的缘故,项目的采光好到离谱了!
参考第三方做的冬至日9:00至16:00间的有效日照时间分析,即使中低区,也都拥有优秀的采光条件,冬至日南向客厅和居室均达到了5小时以上。
这么好的日照,超绝大多数市中心的超高层豪宅想都不敢想。
图源网络,仅供参考

除了采光,项目的南向景观资源也很能打。低区看风貌城市界面,中区看北外滩建筑群像,部分高区能看 黄浦江景与陆家嘴三件套。
阿斌在网上扒到了项目隔壁一幢公寓,10多层的实拍照片。果然是毫无遮挡, 令人豁然开朗!

☑️☑️中粮北外滩一号售楼处电话:400-8377-020☑️☑️
图源链家网,仅供参考
再具体看户型,所有90套户型的采光,都有即将入市的90套天际大平层圈层纯粹,中间户是185㎡,边户是228㎡,均为四房两厅三卫设计,全系类一梯一户的配置。
185㎡四房奢阔大宅
户型图为过程稿,以开发商发布为准

☑️☑️中粮北外滩一号售楼处电话:400-8377-020☑️☑️
准1梯1户设计,私享电梯厅独立入户,经典飞机户型,三开间朝南,南北通透,动静分区,通风采光俱佳。
独立玄关做足私密性和仪式感;LDKB 一体化设计的客餐厅面积达到约55㎡,方正大气。
主卧套房尺度豪奢,可供业主配置步入式衣帽间,卫生间做到双台盆+大浴缸+独立淋浴的顶配,尊崇感十足!
228㎡四房天际大宅
户型图为过程稿,以开发商发布为准

准1梯1户设计,私享电梯厅独立入户,户型尺度进一步升级,当今顶豪新盘中极为稀缺的四开间朝南。
边厅面积超过50 ㎡,给一家人提供了阔绰的交流空间;约270°环幕景观设计,带来极好的采光,并且高区可以直面陆家嘴城市天际线+黄浦江景观,视野相当震撼!
主卧大套房设计带超大主卫和衣帽间,面积约50㎡,尺度感与市面上近300㎡的顶豪拉平。
室内设计由中国现代室内设计领域的领军人物——梁志天亲自打造。
在材质选用上,延续了壹号系的高端标准,大量运用奢石、高难度弧形工艺以及国内外顶尖品牌。
如宝格丽大理石打造的西厨岛台、铂浪高的净水三合一水龙头和一体式大水槽、霍尼韦尔的前置过滤器、全屋软水以及末端净水器系统、来自意大利法罗力燃气热水器、德国唯宝卫浴、当代龙头及花洒......还有全屋华为智能家居系统配置。这一套组合,是真正意义上的顶豪序列配置!

☑️☑️中粮北外滩一号售楼处电话:400-8377-020☑️☑️
☑️☑️中粮北外滩一号售楼处电话:400-8377-020☑️☑️