现在的上海,有不少顶级豪宅。
但谁才是真正能够代表上海的顶级豪宅封面?
回望伦敦的One Hyde Park、纽约的432 Park Avenue、香港的Opus Hong Kong,城市封面级别的顶豪,往往需要满足以下的 顶豪金字塔模型:

天潼里售楼处电话:400-8377-020
示意图
【外滩天潼里】二期全新房源,正是这一金字塔模型的完美体现!给出了 近2年来上海顶豪市场,最完美的答案!
基础层:地段价值 - 外滩源260米,身份的终极象征!
地段,外滩是毋庸置疑的“上海之巅”!也是上海之于世界的门面担当!
而 【外滩天潼里】直线距离外滩源仅约260米!
真正做到步行可达!
不是营销噱头中的"外滩",而是 实打实的外滩!

外滩
想象一下,当你邀请朋友到家中做客,你的朋友点开手机上收到的定位,发现你的豪宅真的就在外滩源的旁边,这是一种什么样的羡慕之情!

区位示意图 仅供参考
文化层:建筑符号 - 石库门与红砖,上海记忆的完美传承!
建筑本身,没有任何建筑形式能比 石库门最能代表上海文化!
立于万国建筑源点,【外滩天潼里】二期外立面设计融合了 石库门和红砖元素,看起来很有 老上海的韵味,同时又带点 伦敦Mayfair区的感觉!

效果图 仅供参考
这不是简单的模仿,【外滩天潼里】真的把 上海记忆中的文化符号做进了建筑里!
这样的外立面,路过的时候,绝对忍不住会让人多看两眼!


效果图 仅供参考
想象一下,当你的朋友开车来到小区附近,看到如此 融合上海历史与国际审美的建筑,内心会泛起一种什么样的羡慕之情!
品质层:公共空间 - 海纳百川,老钱与新钱的完美融合!
会所/停车库/园林景观,不仅是世界级城市顶豪的“标准配套”,更是社区内部的第一印象以及美学/品味的展现!

效果图 仅供参考
不同于上海大多数顶豪项目要么展现 过于浮夸的土豪金"老钱"风格,要么采用 缺乏历史底蕴与典雅气质的现代"新钱"设计,【外滩天潼里】的公区设计,是上海少有的真正体现了 海纳百川文化的作品,融合了中西风格, 兼具"老钱"和"新钱"的摩登感,就像曼哈顿上东区的顶级豪宅一样。

天潼里售楼处电话:400-8377-020
纽约豪宅会所配套图 仅供参考

天潼里售楼处电话:400-8377-020
不张扬却极致奢华,不追求表面浮华却处处彰显典雅气度!
这种感受会对品位刮目相看:" 这才是真正懂生活的人会选择的地方!
生活层:室内/户型设计 - 全上海几乎独一份的无敌方正大平层!
【外滩天潼里】邀请到了市场中真正顶级的设计天团,按照私宅的标准进行设计,打造出了 相对于前期审美更高级的室内设计!
更难得的是,户型方面,打造出了 市场中难得一见的无敌方正大平层!
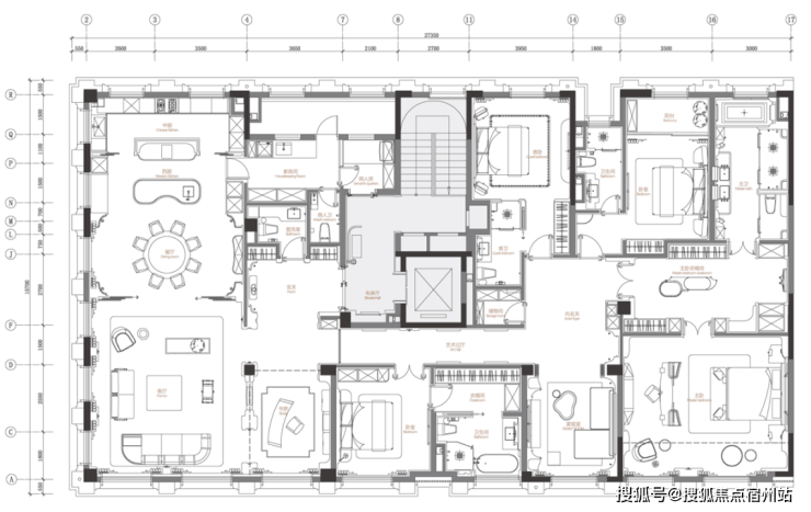
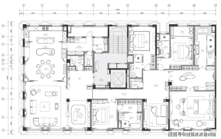
建面约408㎡无敌方正5房3厅6卫,得房率高达约87%,相当于高层住宅的455㎡:

户型图仅供参考 以实际为准
相对于其他几个同价位段顶豪产品的不规则户型,【外滩天潼里】放眼全市都 没有任何竞品,可以被称为孤品!
只有这样的作品,当朋友来到家中,才能真正体验到上海顶豪的气度!
巅峰层:视野景观 - 外白渡桥+乍浦路桥+陆家嘴,前无古人后无来者!
无论是纽约、伦敦,还是香港,这是顶级豪宅的最后一步,也是 金字塔顶端的进阶必备。
相对于部分顶豪产品视角的单一性,【外滩天潼里】能将 上海大厦、乍浦路桥、陆家嘴(高层部分可看)同时尽收眼底。
想象一下,当你的朋友被带到窗前,眼前豁然展开的是 上海的过去、现在和未来同框的壮观景象!这种体验,是 任何其他豪宅都无法复制的专属记忆!
这,就是【外滩天潼里】的 全新房源所重新定义的真正能代表上海的顶豪封面!
外滩天潼里
全新房源
一梯一户低密洋房
已经封顶
建面约389-408㎡
无敌方正大平层
约87%超高得房率
相当于高层住宅428-455㎡
上海真正的顶豪孤品
只有10套
天潼里售楼处电话:400-8377-020
1 金字塔顶端的外滩资产:不可复制的地段价值
180年外滩风云,塑造了上海的当代灵魂!
而 总长约1.5公里外滩的起点,便是在外滩源!
这里同时也是上海近10年来最重要的城市规划“一江一河”: 黄浦江&苏州河的交汇点!
【外滩·天潼里】直线距离外滩源仅约260米,绝非其他“外滩”豪宅可比!
【外滩·天潼里】这10套全新房源所占据的,是 上海最稀缺、最顶级、最不可复制的资源!没有之一!
翻开 1910年的上海地图,辛亥革命发生的前一年,【外滩·天潼里】所在的区域就 已经是当时上海公共租界(英美租界)的繁华地段, 巨鹿路、南京西路、武康路当时都还是农田!

上海1910年地图 仅供参考
这里的 历史所孕育出来的文化底蕴,是上海任何一个新兴板块都无法比拟的!
从【外滩天潼里】往南, 外滩源、半岛酒店、怡和洋行、中国银行、和平饭店……
世人仰望的上海精华,你的散步日常!

示意图 仅供参考
苏州河口, 世界会客厅、中国证券博物馆、外白渡桥、上海大厦、乍浦路桥、四川路桥、上海邮政博物馆……
半部近代史,于【外滩天潼里】近在咫尺!

示意图 仅供参考
黄浦江对岸, 东方明珠、金茂大厦、上海环球金融中心、上海中心、上海国金中心……上海最为核心的国际金融中心!

示意图 仅供参考
真正的外滩,真正的上海市中心,上海的 历史、现在和未来在此“同框”!
【外滩天潼里】绝对是上海作为 世界顶级都市的封面顶豪和传世资产!
天潼里售楼处电话:400-8377-020
2 上海最纯粹的超级豪宅社区:超大户均会所面积!
整体规划上,【外滩天潼里】占地面积近2万㎡,包含 高层洋房、多层洋房、联排及合院别墅。
地块的四个角落 天然呈现弧度,而建筑设计 巧妙顺应这一自然禀赋,刻意打造流畅的曲线轮廓,讲究的是 "玉带环腰"的东方美学意境,让气场流转不滞,福祉绵延不绝!

示意图 仅供参考
放眼全市,【外滩天潼里】还有 3个极为难得的价值点!
其一是社区的规模。
整个项目一共只有 24套叠墅、27套里弄合院别墅、59套风貌平层、少量底商和一座 美术馆,整个小区 一共只有124套住宅!
更少的套数,意味着 更高的私密性和安全感!更精细的物业服务和更强的圈层认同感!
更值得一提的是,这两年市区的顶豪,采用的都是“高低配”的形式进行开发,而这个“高” 绝大多数为超高层!
【外滩天潼里】是极少数的 低密度合院与洋房的组合!


效果图 仅供参考
尤其是二期仅10套全新房源,总高仅7层!1梯1户!
居住体验完胜超高层!
其二是社区的门槛。
【外滩天潼里】的124套传世大宅中, 最低门槛高达约7000万级!
成为业主的门槛比【翠湖天地六期】还要高!
远超上海壹号院、露香园、嘉里金陵华庭等一众“其他豪宅”!
超精粹体量+超高入门门槛!这里将是未来最高品质、最高总价的上海 最纯粹的超级豪宅社区!
其三是业主专属的会所。
占地面积近2万㎡的【外滩天潼里】 业主专属会所的面积竟然高达约3000㎡!
在寸土寸金的上海市中心几乎找不到第二个能够 拥有如此体量的业主专属会所!
例如
【云锦东方】,会所共5000㎡,服务1016户业主, 户均会所面积约4.9㎡。
而【外滩天潼里】,在上海最塔尖的土地资源上配备了约3000㎡的业主专属会所,且只服务于124户业主! 户均会所面积高达约24㎡!!
如此惊人的户均会所面积,放眼整个上海几乎没有对手!
天潼里售楼处电话:400-8377-020
3 上海顶豪孤品:无敌方正大平层,约87%超高得房率!
【外滩天潼里】二期仅10套的风貌平层产品,是整个项目124套中, 最为稀缺且独特的传世之作!
其一,TA拥有 更具传承意味的红砖外立面!

效果图 仅供参考
以及相对于前期 更好的室内设计、更高的装标、更高的层高空间,以及更好的私密性(一梯一户)!
Daikin空调、 Honeywell新风系统、 Vaillant供暖、 BWT中央净水系统、ABB华为智能家居系统、三菱电梯系统等设备。

示意图 仅供参考
而对于部分顶级品牌,项目 不满足于仅使用其最高端产品线,更是倾力打造出了 针对性的独家定制!
对极致品质的不懈追求,成就了这座城市中真正的艺术杰作。
其二,这次的10套风貌平层是上海 多年未见的无敌方正户型!
先看一下 其他项目的户型:
某项目建面约370平4房:

某项目建面约300平3房:

受限于超高层的建筑设计, 房型本身很难做到方正,且存在着 诸多面积浪费!
而 【外滩天潼里】全新的10套房源无敌方正!简直震撼!
放眼整个上海没有任何一套大宅能够与之相比!
建面约408㎡无敌方正5房3厅6卫,得房率高达约87%,相当于高层住宅的455㎡:

户型图仅供参考,以实际为准
建面约389㎡无敌方正5房3厅6卫,得房率接近87%,相当于高层住宅的428㎡:

户型图仅供参考,以实际为准
整个户型 十字中轴的布局, 方正无比的格局, 卧室全套房的设计, 27米的南向面宽…… 无论是功能性还是尺度感都足以承载一个 大家族的居住和传世需求!
假设外滩天潼里和其他高层新房的建筑面积单价相同,由于得房率的巨大差异(87% vs 78%),其他高层新房的实际使用面积单价可能比外滩天潼里高出10%左右!
要买到和外滩天潼里实际使用面积差不多的房子,在其他高层新房可能要多花1000万左右!
天潼里售楼处电话:400-8377-020
尤为值得一提的是, 【外滩天潼里】已经封顶!
而 上海其他待售的150米超高层豪宅多数刚刚造到地上1楼2楼,什么时候才能封顶→装修→交房其实是一个未知数!
综上所述,外滩天潼里绝对是 各位成功人士在上海市中心一步到位拥有5房超级豪宅的不二之选!