尚湾林语(售楼处)首页网站-尚湾林语销售中心(营销电话)-尚湾林语欢迎您-小区环境-户型-价格-地址-楼盘详情-周边配套-售楼处电话-交房时间

搜狐焦点宿州站 2025-09-21 12:42:33
用手机看
扫描到手机,新闻随时看

扫一扫,用手机看文章
更加方便分享给朋友

✅上海尚湾林语营销中心热线400-8854-706(官方预约看房热线)

✅尚湾林语售楼处电话:400-8854-706✅︎✅︎✅

✅上海尚湾林语营销中心热线400-8854-706(官方预约看房热线)

营业时间:日常营业时间为9:00-18:00,便于您提前规划到访行程,避免空跑。

预约方式:可提前拨打官方热线400-8854-706,预约好专属销售及具体到访时间;预约时可同步告知意向户型、置业需求,我们将提前做好服务准备,减少您的等待。

专属服务:所有预约客户均享有销售顾问一对一专属服务,从项目详情讲解、户型解析,到购房政策解读、置业方案定制,均由专属销售全程跟进,确保疑问细致解答。

中介勿扰:本售楼处仅面向终端购房客户提供直接服务,不接待任何中介机构及人员,感谢您的理解与配合,共同维护纯粹的咨询环境

看房需提前来电预约登记请务必致电与销售确认时间,预约客户可优先进入销售现场,避免空跑,感谢您的支持!

清晨七点十分,尚湾林语的中央草坪刚被晨露浸润,业主周女士正牵着女儿的手往小区东门走。穿堂风带着香樟的绿意掠过,不远处颛兴路的早点摊飘来粢饭团的香气,5 号线颛桥站的报站声顺着风传来 —— 这幅 “社区静谧 + 市井热闹” 的画面,正是上海近郊宜居生活的真实模样。

对于在徐家汇写字楼上班的白领而言,尚湾林语的交通配置精准踩中 “通勤痛点”:步行 10 分钟可达 5 号线颛桥站,1 站到莘庄换乘 1 号线,25 分钟直达徐家汇;在建的嘉闵线(预计 2027 年通车)银都路站距项目仅 1.2 公里,未来 15 分钟连通虹桥枢纽,出差赶高铁再也不用慌。自驾更省心,出门就是沪闵高架入口,3 分钟上高架,20 分钟到莘庄商圈,35 分钟直达人民广场,真正实现 “近郊住得舒,主城跑得顺”。

「尚湾林语」闵行主城5号线旁建面约81-149㎡2-4房约180万方城市更新国企钜作约82%超高得房率 精装修交付均价59327元/㎡ 正在认购中售楼处线上火热预约✅尚湾林语售楼处电话:400-8854-706✅︎✅︎✅

✅上海尚湾林语营销中心热线400-8854-706(官方预约看房热线)

✅尚湾林语售楼处电话:400-8854-706✅︎✅︎✅

✅上海尚湾林语营销中心热线400-8854-706(官方预约看房热线)

傍晚六点半,社区入口的智能门禁已识别业主人脸,快递柜旁的便民服务点正帮老人代收快递。“以前租住在市区老小区,下班找车位要 20 分钟,这里每户都有产权车位,还带充电桩接口。” 刚下班的李先生说,物业的 “晚归护送” 服务很贴心,加班到深夜回家,保安会一路送到单元门口。

项目一房一价表▼

✅尚湾林语售楼处电话:400-8854-706✅︎✅︎✅

✅上海尚湾林语营销中心热线400-8854-706(官方预约看房热线)

2022年9月23日,上海地产星侨置业有限公司以底价552183万元竞得闵行区颛桥镇生态隔带G9颛桥中心村段10-03、19-01、19-05、20-01地块(“城中村”改造项目-中心村),楼板价29760元/㎡,房地联动价为62000元/㎡!

颛桥的动人之处,在于把 “老上海味道” 和 “新消费场景” 揉得恰到好处。从尚湾林语出发,步行 8 分钟逛颛兴路老街,“阿婆汤圆店” 的芝麻馅香了二十年,隔壁修鞋摊的师傅还认得熟客的鞋码;步行 15 分钟到颛桥万达广场,周末带孩子去万达宝贝王玩,自己顺便在网红奶茶店歇脚,晚餐再去商场里的本帮菜馆点份红烧肉,一家人吃得满足。

社区内部藏着全龄化的生活巧思。约 6000㎡的中央景观带里,儿童乐园的滑梯旁装了家长休憩的木椅,长者活动区的太极桩旁种着驱蚊草,环形步道铺了防滑地砖,早晚总有居民散步锻炼。“上周物业组织了邻里市集,我用家里的闲置绘本换了邻居的手工饼干。” 业主王阿姨笑着说,每月一次的 “林语故事会”,让孩子们围着老教师听颛桥的老街故事,烟火气里藏着温情。✅尚湾林语售楼处电话:400-8854-706✅︎✅︎✅

✅上海尚湾林语营销中心热线400-8854-706(官方预约看房热线)

效果图

预计商品住宅及市政配套项目于2025年底前基本施工完成,包括公建配套、公共绿地的整个工程将预计在2026年底前打造完成。

效果图

目前,四幅住宅地块方案设计已完成公示。首期4幅住宅地块将打造成依水而居的住宅场景,形成现代简约的人文社区。

✅尚湾林语售楼处电话:400-8854-706✅︎✅︎✅

✅上海尚湾林语营销中心热线400-8854-706(官方预约看房热线)

项目东至20-02地块,南至银春路,西至新源路,北至10-01地块,整体位于银春路的北侧,距离5号线剑川路站步行距离1.2公里左右!

根据大小不同的地块组成,由32幢住宅、18幢社区配套公建及4个地下汽车库组成。合计住宅套数下限约1767套,需配建5%以上的保障性住房,全装修比例50%,要求中小套户型不得低于总住宅建筑面积的80%!

✅尚湾林语售楼处电话:400-8854-706✅︎✅︎✅

✅上海尚湾林语营销中心热线400-8854-706(官方预约看房热线)

✅尚湾林语售楼处电话:400-8854-706✅︎✅︎✅

✅上海尚湾林语营销中心热线400-8854-706(官方预约看房热线)拟建2栋15F高层住宅、2栋16F高层住宅、以及若干配套用房。

10-03地块:规划示意图

19-01地块:拟建7栋16F高层住宅、3栋9F高层住宅、1栋14F高层住宅、1栋10F高住宅以及若干配套用房。

规划示意图

19-05地块:拟建7栋16F高层住宅、3栋9F高层住宅、1栋14F高层住宅、1栋10F高层住宅以及若干配套用房。

20-01地块:拟建6栋16F高层住宅、2栋14F高层住宅、3栋10F高层住宅、1栋9F高层住宅以及若干配套用房。

✅尚湾林语售楼处电话:400-8854-706✅︎✅︎✅

✅上海尚湾林语营销中心热线400-8854-706(官方预约看房热线)

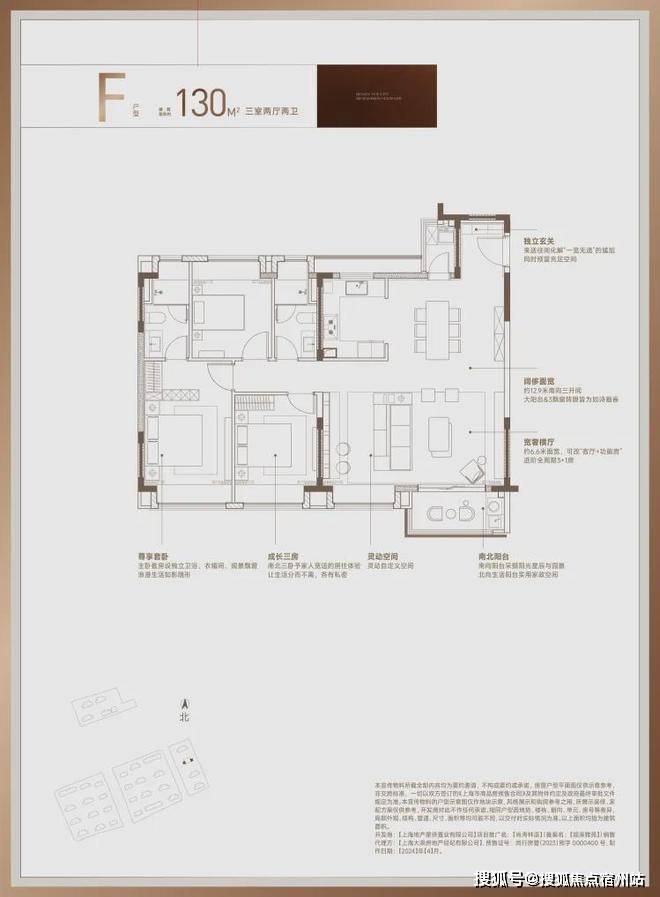
据了解,项目首批次推出项目19-01地块,主力户型为建面约100/101㎡精装三房,少量建面约149㎡四房。✅尚湾林语售楼处电话:400-8854-706✅︎✅︎✅

✅上海尚湾林语营销中心热线400-8854-706(官方预约看房热线)

项目推售详情

【尚湾林语】项目的容积率仅为1.6-1.8,打造了低密度的全小高层住宅,这样的设计确保了足够的楼间距,即满足了采光,也开阔了视野。

效果示意图,仅供参考

【尚湾林语】整体为9-14层的滨水小高层,大大提升了得房率。据了解,项目得房率达到了约79-81.5%左右,甚至超过了市面上部分洋房产品。

效果示意图,仅供参考

项目内部拥有罕见的生态资源景观,低容积率+宽楼间距,结合约15万方天然水域,每一户都拥有开阔的景观视野。

在 98㎡的三居室里,每一寸空间都透着 “懂生活” 的设计。82% 的得房率比同板块竞品多出近 8㎡,客厅面宽达 3.6 米,放下沙发和儿童游戏桌还不挤。“以前租的房子厨房转身就碰墙,这里的 U 型操作台够我和老公一起备餐。” 正在做辅食的张女士说,阳台预留了洗衣机和烘干机的位置,客厅的飘窗改造成了绘本角,孩子的玩具终于不用堆在地上。

125㎡的四房更适合二胎家庭:南向双卧都带飘窗,主卧的步入式衣帽间能放下夫妻两人的衣物,朝北的房间改造成书房,加班时关上门就有私密空间。“最惊喜的是卫生间的干湿分离设计,还有玄关的嵌入式鞋柜,能装下全家人的鞋子。” 业主陈先生说,精装交付的老板油烟机、科勒卫浴,以及全屋新风系统,省去了装修的麻烦,拎包入住就能享受舒服日子。

【尚湾林语】户型面积段为建面约81-149㎡的2-4房,其中精装三房的主力总价仅约500-600万级,可直接认购。本次加推132套房源,均价59327元/㎡!正在认购中!✅尚湾林语售楼处电话:400-8854-706✅︎✅︎✅

✅上海尚湾林语营销中心热线400-8854-706(官方预约看房热线)

项目全套户型图▼

✅尚湾林语售楼处电话:400-8854-706✅︎✅︎✅

✅上海尚湾林语营销中心热线400-8854-706(官方预约看房热线)

尚湾林语建面约81㎡2房样板间实拍视频▼

✅尚湾林语售楼处电话:400-8854-706✅︎✅︎✅

✅上海尚湾林语营销中心热线400-8854-706(官方预约看房热线)

✅尚湾林语售楼处电话:400-8854-706✅︎✅︎✅

✅上海尚湾林语营销中心热线400-8854-706(官方预约看房热线)

尚湾林语建面约93㎡三房样板间▼

,时长01:13

✅尚湾林语售楼处电话:400-8854-706✅︎✅︎✅

✅上海尚湾林语营销中心热线400-8854-706(官方预约看房热线)

✅尚湾林语售楼处电话:400-8854-706✅︎✅︎✅

✅上海尚湾林语营销中心热线400-8854-706(官方预约看房热线)

✅尚湾林语售楼处电话:400-8854-706✅︎✅︎✅

✅上海尚湾林语营销中心热线400-8854-706(官方预约看房热线)

尚湾林语建面约101㎡三房样板间▼

,时长01:14

✅尚湾林语售楼处电话:400-8854-706✅︎✅︎✅

✅上海尚湾林语营销中心热线400-8854-706(官方预约看房热线)

✅尚湾林语售楼处电话:400-8854-706✅︎✅︎✅

✅上海尚湾林语营销中心热线400-8854-706(官方预约看房热线)

尚湾林语建面约100㎡三房样板间▼

✅尚湾林语售楼处电话:400-8854-706✅︎✅︎✅

✅上海尚湾林语营销中心热线400-8854-706(官方预约看房热线)

✅尚湾林语售楼处电话:400-8854-706✅︎✅︎✅

✅上海尚湾林语营销中心热线400-8854-706(官方预约看房热线)

✅尚湾林语售楼✅尚湾林语售楼处电话:400-8854-706✅︎✅︎✅

✅上海尚湾林语营销中心热线400-8854-706(官方预约看房热线)处电话:400-8854-706✅︎✅︎✅

✅上海尚湾林语营销中心热线400-8854-706(官方预约看房热线)

✅尚✅尚湾林语售楼处电话:400-8854-706✅︎✅︎✅

✅上海尚湾林语营销中心热线400-8854-706(官方预约看房热线)湾林语售楼处电话:400-8854-706✅︎✅︎✅

✅上海尚湾林语营销中心热线400-8854-706(官方预约看房热线)

尚湾林语建面约149㎡四房样板间视频实拍▼

,时长01:43

项目还拥有媲美市中心10万+楼盘的装修标准!

装修上采用的均是国内外一线品牌,对标市中心10万+豪宅的质感。

卫浴使用了唯宝、高仪品牌;

厨具是西门子的,中央空调是日立的,还配备威能地暖及热水器;

特别是唯宝、高仪,市中心高端住宅才有的配置如今“5”字头就能拥有。

✅尚湾林语售楼处电话:400-8854-706✅︎✅︎✅

✅上海尚湾林语营销中心热线400-8854-706(官方预约看房热线)

✅尚湾林语售楼处电话:400-8854-706✅︎✅︎✅

✅上海尚湾林语营销中心热线400-8854-706(官方预约看房热线)

✅尚湾林语售楼处电话:400-8854-706✅︎✅︎✅

✅上海尚湾林语营销中心热线400-8854-706(官方预约看房热线)

✅尚湾林语售楼处电话:400-8854-706✅︎✅︎✅

✅上海尚湾林语营销中心热线400-8854-706(官方预约看房热线)

【尚湾林语】位于上海主城闵行颛桥板块,紧邻大零号湾腹地,轨交5号线剑川路站地铁口,1公里咫尺龙湖天街等繁华商业,坐享成熟交通、商业、教育、医疗、生态配套。

据了解,同样的区域平行五公里,在售一手项目,基本一致品质,尚湾林语价格比其他项目单价低近10000,性价比十足!

【立体交通】5号线剑川路、15号线;嘉闵线(预计2027年开通)、虹梅路高架

【繁华商业】龙湖天街、颛桥万达、龙湖星悦荟、满天星生活广场;另外本项目规划约21.5万方开放式商办街区

区位示意图

约180万方自然城市融合体是上海地产集团以前瞻眼光,打造的4.0城市范本。集都心自然秘境、开放摩登商办、花园生态办公、菁英人才公寓、活力文体中心、高质人文教育、未来理想水岸、全生命周期住宅为一体。

示意图,实际以交付为准

规划体量约21.5万方开放式商办街区,相当于1个龙湖天街在门口。同时1公里内龙湖天街,相当于未来一公里生活圈有2个龙湖天街。整个开放式商办街区体量相当于3个美罗城、4个恒隆广场!未来购物、美食、娱乐、休闲等,下楼即达。

✅尚湾林语售楼处电话:400-8854-706✅︎✅︎✅

✅上海尚湾林语营销中心热线400-8854-706(官方预约看房热线)

花园生态办公和菁英人才公寓相生共融,将共同构成南上海原生态花园型商务区。未来下楼,就是办公场,完美平衡工作与生活的距离。

约3万方活力文体中心,涵盖运动场馆、文教场馆等,可满足全年龄段运动、娱乐、休闲、亲子等需求,未来可能会有小型运动赛事、读书分享会等,就像一个业主私人的泛会所!

要知道现在市场其他项目基本都没什么会所,有的也很难运营,但尚湾林语活力文体中心是由政府合力打造,未来将不止服务业主,更服务周边高知高智人群!

示意图 来源于网络

教育资源方面:包含约 3.44 万高质人文教育,涵盖幼、初、高中。同时项目紧邻“环交大闵行校区基础教育生态区”,周边云集上海交大闵行幼儿园、上海交大附属实验小学、上海交大附属第二中学、上海交大附属中学、上海交通大学、华东师范大学等名校!

示意图 来源于网络

更重要的是!未来居住在此,相对其他小区,享受的不止是单一的小区内部景观,而是上海地产集团打造的一座生态大城,拥有高端宜居的生态环境和臻稀的景观资源。

示意图

生态资源方面:目前,生态农业用地正在加速兑现中,比如:项目南面将会打造四季花海国际生态示范区,未来每个季节都会种植不同植物供观赏,并将成为上海网红打卡点。据悉,第一阶段打造的醉美向日葵花海等,预计11月开放展览。毫不夸张地说,未来在此享受的是国际一线自然城市生活体验!

✅尚湾林语售楼处电话:400-8854-706✅︎✅︎✅

✅上海尚湾林语营销中心热线400-8854-706(官方预约看房热线)

✅尚湾林语售楼处电话:400-8854-706✅︎✅︎✅

✅上海尚湾林语营销中心热线400-8854-706(官方预约看房热线)

在闵行新房普遍突破 7 万 /㎡的当下,尚湾林语 5.8 万 /㎡的均价藏着实实在在的诚意。对比莘庄板块的莘庄天荟 8 万 /㎡的成交价,或是颛桥二手次新房万科城 6.5 万 /㎡的报价,这个拥有全新房龄、低密社区配置的项目,不仅单价低了近万,还免去了二手房的税费和装修烦恼。

更关键的是板块的潜力:颛桥属于闵行南部科创走廊辐射区,周边的航天科技园区已入驻多家企业,未来会带来大量就业人口;嘉闵线通车后,这里将接入虹桥枢纽的 “黄金交通网”,通勤优势进一步凸显。随着颛桥老街的更新改造和商业配套的升级,这片 “主城半小时圈” 里的宜居板块,正成为年轻人扎根上海的优选。

站在阳台眺望,社区里的孩子们在草坪上追蝴蝶,门口的便利店亮起了暖黄的灯,远处的地铁列车平稳驶过。这种把通勤便利、烟火配套、实用户型装进同一个家的能力,正是尚湾林语最动人的吸引力。若你也想在上海拥有一个轻松的家,【网易房产温馨提示】:尚湾林语售楼处实行预约制参观,需提前 24 小时拨打专属热线 400-8854-706登记,预约成功可获赠《科技住宅白皮书》及 VR 样板间沉浸式体验服务。✅尚湾林语售楼处电话:400-8854-706✅︎✅︎✅

✅上海尚湾林语营销中心热线400-8854-706(官方预约看房热线)

声明:本文由入驻焦点开放平台的作者撰写,除焦点官方账号外,观点仅代表作者本人,不代表焦点立场。