中海恒昌玖里 vip热线:400-118-5086√√√【已认证】 中海恒昌玖里营销中心电话:400-118-5086√√√【已认证】
上海中海恒昌玖里 官方售楼处电话:400-118-5086√√√【已认证】
中海恒昌玖里 vip热线:400-118-5086√√√【已认证】
中海恒昌玖里营销中心电话:400-118-5086√√√【已认证】
上海中海恒昌玖里 官方售楼处电话:400-118-5086√√√【已认证】
如果您对中海恒昌玖里 有任何疑问,都可以拨打售楼处电话进行咨询。目前案场仅接待预约客户,看房需提前拨打电话进行线上预约,可享受专属优惠折扣。
傲踞上海核心风貌区
黄浦区新天地正芯 寸土寸金的城央烫金地脉
建面约 811-843㎡传世大宅
总价约 3.39亿-3.41亿
地上3层,地下2层
花园面积约 102-120㎡(赠送)
容积率约 1.27
承袭深厚历史文脉与“老钱”基因
不仅是对海派精神的当代礼赞
更是为塔尖圈层量身定制的栖居范本

点击输入图片描述(最多30字)
在上海这座魅力之都的版图上
黄浦区宛如皇冠上的明珠璀璨夺目
而中海恒昌玖里便傲立于此
成为城市人居的全新标杆
演绎着极致的奢华与尊崇
溯源历史,传承海派风华
中海恒昌玖里之名,源于地块内保留的历史建筑 “恒昌里” 。这里承载着上海百年的历史记忆,中海地产怀着对城市文脉的敬畏之心,深度挖掘区域的历史底蕴。

点击输入图片描述(最多30字)
中海建国东路 69、70 街坊历史风貌保护及城市更新项目中,"顺昌玖里" 之名源自贯穿两地块中轴的百年老街 "顺昌路","恒昌玖里" 则脱胎于 69 街坊内保留的历史建筑 "恒昌里"。这般命名深意,恰是中海在历史风貌保护与城市更新进程中, 对城市肌理与文脉根脉的敬畏传承,让建筑与历史在此共生。

点击输入图片描述(最多30字)
中海・顺昌玖里与中海・恒昌玖里,以
“以传承开启新的传承” 为核心理念,在更新实践中 坚守三重使命:让百年风貌与当代繁茂共生,留住记忆里的烟火乡愁;让城市历史遗产转化为公众可共享的文化资产,延续文脉生命力;让印刻时代印记的建筑得以存续,蜕变为可阅读、可漫步的人文街区。
城市更新从不是简单的 “推倒重来”,而是要让空间始终承载城市温度。 中海・顺昌玖里与中海・恒昌玖里正以这样的坚守,为上海中心城区注入生生不息的新活力。

点击输入图片描述(最多30字)
中海恒昌玖里 雄踞上海城市版图的心脏地带,地理位置优势得天独厚,在繁华都市中独树一帜。
其坐落于黄浦区核心区域,北邻活力四射的新天地文化圈,这片区域汇聚了全球时尚潮流与前沿文化,是 上海国际化都市形象的生动展示窗口。向南则与承载着上海深厚历史底蕴的老城厢紧密相依,漫步其间,古老弄堂与百年建筑诉说着往昔故事, 浓厚的人文气息扑面而来。项目还毗邻繁华的 淮海中路商圈,这条被誉为 “东方香榭丽舍大街” 的商业街,高端品牌旗舰店林立,是时尚购物、休闲娱乐的天堂,为居者提供了接轨世界潮流的生活体验。

点击输入图片描述(最多30字)
臻稀低密,奢享静谧天地
项目总占地面积 43,763 平方米,总建筑面积 137,493 平方米,容积率低至 1.27,仅规划 137 套住宅 , 是内环内极为稀缺的低密社区。

点击输入图片描述(最多30字)
社区整体布局 以传统里弄格局为蓝本,主轴贯穿南北,连接入口广场与中央花园, 两个主题花园分布两侧,种植各类珍稀绿植花卉,搭配灵动水景、艺术雕塑,营造出宁静雅致氛围。

点击输入图片描述(最多30字)

点击输入图片描述(最多30字)
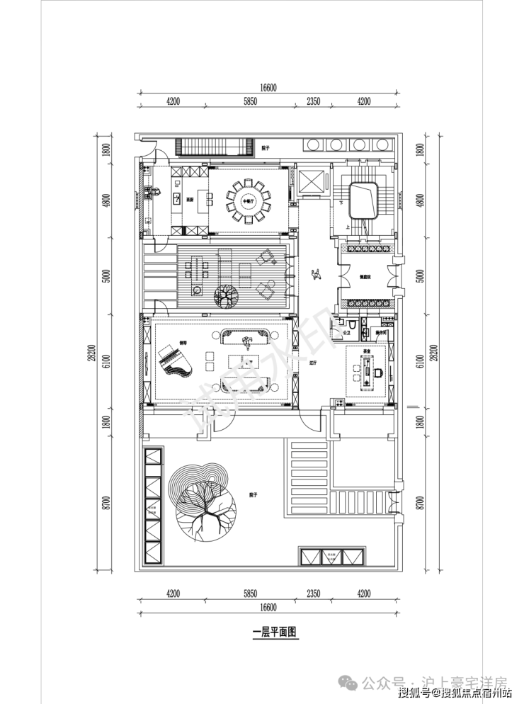
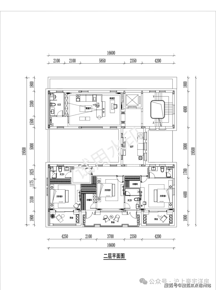
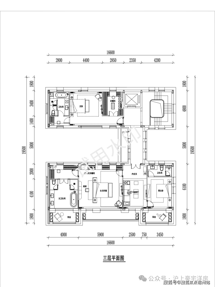
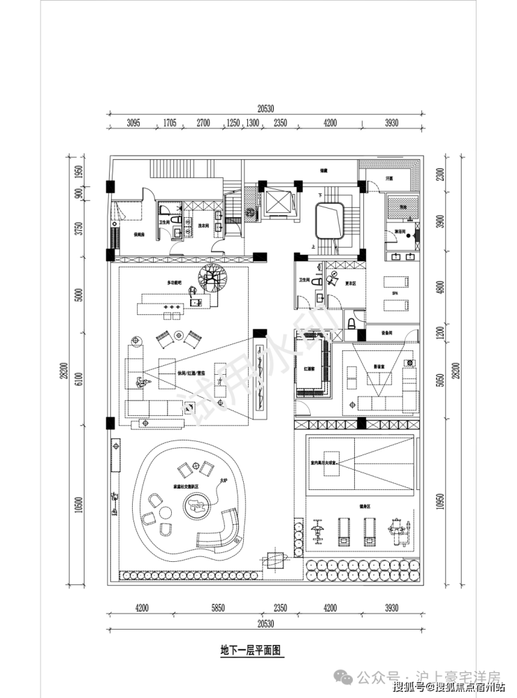
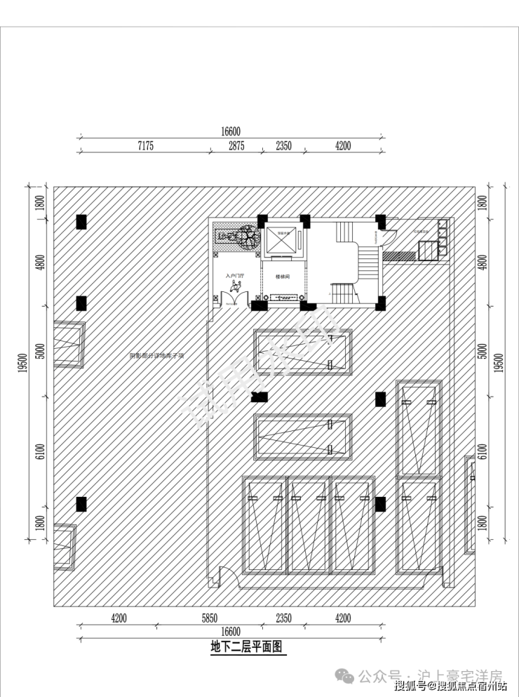
户型图
该户型位于 新天地纯低密别墅地块;采用 新工艺纯钢结构,房型结构模糊化,可塑性强,7-8房无压力;拥有 建国东路独立门牌号,稀缺性、独特性突出。

点击输入图片描述(最多30字)

点击输入图片描述(最多30字)

点击输入图片描述(最多30字)

点击输入图片描述(最多30字)

点击输入图片描述(最多30字)

点击输入图片描述(最多30字)
多条小巷纵横交错,串联起各个楼栋,再现老上海里弄的生活韵味, 让居者在繁华都市中拥有一方静谧的私密天地,享受专属的低密奢居体验。
前期样板间实景

点击输入图片描述(最多30字)

点击输入图片描述(最多30字)

点击输入图片描述(最多30字)

点击输入图片描述(最多30字)

点击输入图片描述(最多30字)

点击输入图片描述(最多30字)

点击输入图片描述(最多30字)

点击输入图片描述(最多30字)

点击输入图片描述(最多30字)
中海恒昌玖里建面约 811 - 843 平方米的传世大宅为,地上 3 层,地下 2 层,一层层高 3.6 米,二层与三层层高 3.3 米,地下挑高约 5 米。约 16.6 米的南向面宽, 确保充足采光与通风,让阳光肆意倾洒入室。

点击输入图片描述(最多30字)

点击输入图片描述(最多30字)

点击输入图片描述(最多30字)

点击输入图片描述(最多30字)

点击输入图片描述(最多30字)

点击输入图片描述(最多30字)

点击输入图片描述(最多30字)

点击输入图片描述(最多30字)

点击输入图片描述(最多30字)

点击输入图片描述(最多30字)
醇熟配套,奢享品质生活

点击输入图片描述(最多30字)
交通便利
项目交通网络堪称 “黄金枢纽”。周边 8 号线、9 号线、10 号线、13 号线四条地铁线路纵横交错 ,四个站点近在咫尺,乘坐地铁可快速畅达城市各处。自驾出行同样便捷,临近南北高架、延安高架等城市主干道,轻松连接城市各区域,无论是前往陆家嘴金融区洽谈商务,还是赶赴虹桥机场开启商务旅程,亦或是前往城市热门商圈休闲购物,都能在短时间内高效抵达,让出行变得轻松愉悦,从容掌控都市生活节奏。

点击输入图片描述(最多30字)
商业繁华
新天地时尚中心、K11 购物艺术中心、香港广场等高端商业体环绕四周 ,汇聚全球一线时尚品牌、国际知名美妆、高端精品超市以及米其林星级餐厅等,满足日常购物、时尚消费、高端宴请等多元需求。在这里,居者可随时开启一场奢华盛宴,尽享国际前沿的时尚潮流与精致生活方式。
文化熏陶
上海文化广场、上海博物馆等文化地标近在身边 ,不定期举办各类国内外顶尖艺术展览、音乐会、戏剧演出等文化活动,让居者浸润在浓厚的艺术氛围中,提升生活品质与文化修养,于繁华都市中,邂逅一场场触动心灵的文化盛宴。
教育无忧
卢湾一中心小学、向明中学等优质学府云集 ,这些学校拥有雄厚的师资力量、先进的教学理念与完备的教学设施,为孩子提供从小学到中学的一站式优质教育资源,助力孩子茁壮成长,开启智慧人生。

点击输入图片描述(最多30字)
医疗护航
瑞金医院、曙光医院等三甲医院为健康保驾护航 ,医院配备国际领先的医疗设备,汇聚国内顶尖医疗专家,能够为居民提供全方位、高水平的医疗服务,无论是日常体检、疾病预防还是紧急医疗救治,都能得到及时、专业的保障,让居者生活安心无忧。

点击输入图片描述(最多30字)
中海恒昌玖里
以前所未有的姿态
将海派文化传承、低密奢居体验
便捷交通网络与醇熟生活配套完美融合
为追求极致品质生活的城市塔尖人群
敬献一席难以复刻的传世臻品
开启上海黄浦核心的奢居新时代
【中海·恒昌玖里】
傲踞上海核心风貌区
黄浦区新天地正芯 寸土寸金的城央烫金地脉
建面约 811-843㎡传世大宅
总价约 3.39亿-3.41亿
地上3层,地下2层
花园面积约 102-120㎡(赠送)
容积率约 1.27
承袭深厚历史文脉与“老钱”基因
不仅是对海派精神的当代礼赞
更是为塔尖圈层量身定制的栖居范本
买房是一项重大的投资决策,需要综合考虑多个方面。以下是一些需要注意的事项和问题:
1.购房资格与政策
确认自己是否符合当地购房政策(如限购、贷款政策等)。
了解购房资格的条件,避免因政策限制导致交易失败。
2.预算与资金规划
明确自己的购房预算,包括首付、贷款额度和月供能力。
避免过度负债,确保月供不超过家庭收入的合理比例(一般建议不超过30%)。
3.房屋选择
地段与配套:优先选择交通便利、周边配套成熟(如学校、医院、商场)的区域。
户型与朝向:关注户型方正性、采光通风、南北通透等因素。
楼层与楼栋位置:避免选择低楼层(如1-3楼)或靠近马路、噪音源的楼栋。
4.产权与法律风险
查验房屋产权是否清晰,确保无抵押、查封或产权纠纷。
对于二手房,需查看原房主的房产证,并核实是否存在租赁、户口未迁出等问题。
5.合同与交易流程
签订购房合同时,仔细阅读条款,明确房屋价格、交房时间、违约责任等关键信息。
确保资金通过正规渠道(如资金监管账户)支付,避免私下交易。
6.物业服务与社区环境
了解小区的物业服务水平,包括安保、卫生、设施维护等。
关注小区的居住氛围和邻里关系,避免选择回迁房或管理混乱的小区。
7.验房与质量问题
交房时进行专业验房,检查房屋质量(如墙面、地面、水电等)。
对于发现的质量问题,及时要求开发商整改。
温馨提示:买房前建议咨询专业人士(如律师、房产顾问),确保自身权益得到充分保障。理性购房,避免盲目跟风
2025年8月25日,上海发布楼市新政,明确自8月26日起外环外区域取消限购,单身购房与家庭政策统一,并同步优化公积金、信贷及房产税政策。
1.限购调整
外环外不限套数:符合条件的居民家庭(含沪籍及非沪籍社保/个税满1年)在外环外购房不再限制套数。
单身视同家庭:成年单身人士购房标准与家庭一致,沪籍单身外环内限购2套,非沪籍社保满3年可购外环内1套。
2.公积金优化
贷款额度提升:购买绿色建筑住房,公积金贷款额度最高上浮15%(首套最高184万,多子女家庭216万)。
支持“提付首付”:可提取公积金支付首付款,且不影响后续贷款额度。
3.信贷政策调整
商贷利率统一:不再区分首套与二套利率,由银行根据客户风险灵活定价,降低改善型需求成本。
4.房产税减免
非沪籍家庭首套房暂免房产税,二套及以上按“人均60㎡”扣除免税面积,降低持有成本。
中海恒昌玖里 vip热线:400-118-5086√√√【已认证】
中海恒昌玖里营销中心电话:400-118-5086√√√【已认证】
上海中海恒昌玖里 官方售楼处电话:400-118-5086√√√【已认证】
如果您对中海恒昌玖里 有任何疑问,都可以拨打售楼处电话进行咨询。目前案场仅接待预约客户,看房需提前拨打电话进行线上预约,可享受专属优惠折扣。