上海丨华润外滩瑞府售楼处电话丨华润外滩瑞府官方线上展厅-华润外滩瑞府竭诚接待-2025年末清盘特惠-户型图册-楼盘详情页-容积率
扫描到手机,新闻随时看
扫一扫,用手机看文章
更加方便分享给朋友
上海-华润外滩瑞府售楼处电话:400-833-6309✅︎✅︎✅【官网】
案场预约制 看房需提前来电预约登记
请务必致电与销售确认时间,仅预约客户可进入销售现场,避免空跑,感谢您的支持
你是否发现,上海塔尖置业的门槛,正悄然筑起一座高墙?
以外滩为中心,黄浦、老静安、陆家嘴——这三张象征上海身份与财富的终极名片,如今正同步面临一场严峻的断供与跳涨危机。
这不仅关乎供应,更关乎入场券的彻底重塑。
第一重困局:绝对的稀缺,漫长的空窗
黄浦:主力豪宅基本清盘,下一批像样的供应,至少要苦等大半年的空窗期
老静安:全区仅一个新房等待登场,土地稀缺至下一块不知何时。这是真正的卖一套,少一套。上海-华润外滩瑞府售楼处电话:400-833-6309✅︎✅︎✅【官网】
陆家嘴:核心区已近十年没有新房入市,所有的向往都只能停留在二手市场的传说里。
第二重冲击:单价只是门槛,面积才是真正的“总价锁”
单价全面站稳20万+已成定局,但这仅是序幕。
而真正的规则改变始于面积:从今年下半年起,黄浦、静安新盘入门面积就已跃升至约200㎡起上海-华润外滩瑞府售楼处电话:400-833-6309✅︎✅︎✅【官网】。
这意味着,入场起步价就是4000万级,且未来很长一段时间,这将是常态。
这个已成为横亘在买家与三大顶级地段之间的一道清晰、冰冷的资产水位线。线下,意味着与核心资产的永久错过。
当三大核心区合力将门槛推至云端,在外滩-陆家嘴-老城厢黄金三角的核心,外滩瑞府成为唯一的机会上海-华润外滩瑞府售楼处电话:400-833-6309✅︎✅︎✅【官网】。
它直接回应了两大核心痛点:
外滩1km,占位不可复制的核心:与三大顶豪区同频对话,共享顶级资源与价值。
4000万内,唯一的上车机会:以约1700-2700万的总价段,提供在此核心圈层绝迹的稀缺选择。
当三大塔尖中心合力关上总价4000万以下的大门,外滩瑞府,很可能是外滩核心最后一张不同量级的入场券。
上海-华润外滩瑞府售楼处电话:400-833-6309✅︎✅︎✅【官网】
项目收官批次 正在热销中
93套建面约124-165㎡3-4房
总价约1700-2700万!
对项目有兴趣的朋友
上海-华润外滩瑞府售楼处电话:400-833-6309✅︎✅︎✅【官网】
外滩-陆家嘴-南京西路-人民广场
占位上海价值网络的黄金节点
上海-华润外滩瑞府售楼处电话:400-833-6309✅︎✅︎✅【官网】
在上海的财富地图上,外滩瑞府坐落于一个无可复制的“王者十字路口”。
它并非仅仅靠近某个单一核心,而是静立于南京西路顶级商圈、外滩世界窗口、陆家嘴资本引擎与人民广场城市心脏所构成的黄金象限正中央。
外滩瑞府的价值,首先由一组无法撼动的极距数字锚定:
约1公里直抵外滩;
约2.5公里同步陆家嘴与人民广场;
约3.5公里接轨静安南京西路
这不是简单的邻近,而是以“黄金三角”之势,将上海最具价值的金融、商业、文化与历史核心,收束于一个极短的、可轻松抵达的物理半径之内。
这意味着什么?上海-华润外滩瑞府售楼处电话:400-833-6309✅︎✅︎✅【官网】
第一,这意味着“效率即价值”的巅峰通勤。
对于掌控事业与生活的塔尖人群而言,时间是最昂贵的成本。
而对于外滩瑞府而言,这种时间效率,由双重交通网络精准兑现:
自驾:约1-5公里的极短物理半径,意味着前往各大核心几乎就是一脚油门。
轨交:2站外滩、3站陆家嘴、人民广场、4站南京西路。无论地面交通如何变幻,地下动脉始终提供一条风雨无阻的保底捷径。
地上地下的双重优势,让您总能选择最优路径,从容主导日程。
通勤的确定性与自由度,在此被提升至核心区罕见的高度,时间得以最大限度地归还于决策、创造与生活本身上海-华润外滩瑞府售楼处电话:400-833-6309✅︎✅︎✅【官网】。
第二,顶级生活方式成为日常。
上海-华润外滩瑞府售楼处电话:400-833-6309✅︎✅︎✅【官网】
通勤的效率,将极大的丰富生活维度的。
晨跑可在外滩的百年风华间,午餐可在陆家嘴的云端餐厅,看展可在人民广场的国家级场馆。

外滩板块实景图上海-华润外滩瑞府售楼处电话:400-833-6309✅︎✅︎✅【官网】
四大顶级板块的资源与场景,不再是需要计划的目的地,而是如同社区配套般无缝融入日常。
这种在历史、金融、文化与商业巅峰之间自由穿行的生活体验,定义了真正的“核心区全域生活”。
第三,更意味着一个清晰可见的“价值锚点”与未来预期。
当黄浦、陆家嘴、老静安的新房与标杆次新房价已全面站上20万+/㎡,形成一道高耸的价值壁垒时。
位于同一黄金象限正中央的外滩瑞府,其约14.85万/㎡的均价。
上海-华润外滩瑞府售楼处电话:400-833-6309✅︎✅︎✅【官网】在顶级地段供应几近枯竭、价格持续攀升的明确趋势下,占据如此核心位置的资产,其稀缺性与成长潜力不言而喻。
总而言之,外滩瑞府提供了一个罕见的综合解:以极具竞争力的单价与总价门槛,一次性兑现极致的城市效率、全能的生活体验以及明确的价值前景。
这不是等待未来,这是以当下的明智占位,锚定上海不可再生的核心未来。
买在上海城市更新“风暴眼”
坐享九龙路滨水空间+亿级风貌带红利!
上海-华润外滩瑞府售楼处电话:400-833-6309✅︎✅︎✅【官网】
外滩瑞府所占据的,远不止一个链接四方的烫金地段。
它正处在上海新一轮城市更新的“风暴眼”之上——这里没有混乱,只有价值重塑过程中最强劲的聚合力与确定性。
真正的核心资产,永远与城市更新“风口”同频。就像新天地、苏河湾,凭借石库门的新生完成城市更新,房价走出了独立行情——外滩瑞府,正处在上海新一轮城市更新的 “风暴眼”,这里的更新不是简单的界面升级,而是剑指“城市文化新名片”的重磅规划。上海-华润外滩瑞府售楼处电话:400-833-6309✅︎✅︎✅【官网】
其一,九龙路滨水空间,解锁家门口的艺术生活。
作为城市更新的关键落笔,外滩瑞府对九龙路滨水空间的打造,将从源头注入高规格美学基因——以法国塞纳河左岸为灵感,联动虹口港滨水资源,颠覆传统“归家路”属性,将九龙路主入口打造成打造“繁花似锦的艺术归家之路”。
示意图,以实际交付为准上海-华润外滩瑞府售楼处电话:400-833-6309✅︎✅︎✅【官网】
据最新剧透的阶段性方案(非终版),这里的规划满是惊喜:
有承载海派记忆的红砖艺术长廊,让行走成为与历史的对话;仪式感十足的迎宾树阵,让归家如穿自然仪仗;还有文化景墙、宠物友好花园、全龄疗愈花园等场景。这些设计并非孤立景观,而是融合“漫步、社交、休闲”功能,最终呈现“可停留、可互动、可欣赏”的滨水美学街区。
换句话说,这里的更新不只是“颜值”焕新,更是“内涵”艺术融入,未来业主下楼即享慢时光,邻里可轻松社交,甚至会像徐汇滨江般,成为全市Citywalk爱好者追捧的标志性滨水休闲地。
*以上方案仅是目前构想,还将继续优化

过程方案示意图,以实际交付为准
上海-华润外滩瑞府售楼处电话:400-833-6309✅︎✅︎✅【官网】其二,约7000㎡邻里风貌底盘堪称“王牌手笔”,串联大规模亿级风貌带。
优质风貌更新历来拥有重塑城市价值的强大力量——从新天地石库门突破传统,历经十余年迭代蜕变为国际潮流商业地标;到苏河湾耗时近10年推进更新,慎余里保留历史韵味,活化成现代商业空间;再到张园自2018年开启更新进程,至今仍在持续焕新,一跃成为上海顶流文化打卡地。
上海-华润外滩瑞府售楼处电话:400-833-6309✅︎✅︎✅【官网】
这些案例都证明:真正的风貌更新,不是短期的界面改造,而是能历经时间沉淀,从根本上革新生活方式、提升城市气质,最终成长为兼具潮流属性与文化深度的城市名片。上海-华润外滩瑞府售楼处电话:400-833-6309✅︎✅︎✅【官网】
外滩瑞府约7000㎡风貌底盘,正沿着这样的路径前行——它不仅是社区的延伸,更将成为代表外滩新气质的文化地标、网红打卡地。上海-华润外滩瑞府售楼处电话:400-833-6309✅︎✅︎✅【官网】
未来,这里将以多元业态激活社区活力,融合海派烟火与艺术格调:据悉将引入社区咖啡馆提供休闲空间,瑞府邻里客厅/社区方式综合店服务中产消费与邻里互动,便民综合体涵盖超市等满足日常需求,另有社区会客厅供居民交流,及社区公共服务中心完善便民配套。
这些业态共同构筑便捷生活场景,让居民尽享舒适日常。对城市而言,这里不仅是界面的大焕新,更将凭借与周边亿级风貌带的联动效应,成为吸引全城目光的焦点。
过程方案示意图,以实际交付为准上海-华润外滩瑞府售楼处电话:400-833-6309✅︎✅︎✅【官网】
更关键的是,外滩瑞府是这条亿级风貌带上少有的高层项目——既能浸润在海派风貌的烟火与文艺中,又能俯瞰黄金三角的璀璨景观,这样的“风貌+高层”组合,本身就是城市更新红利里的稀缺品。
过程方案示意图,以实际交付为准
立于风暴眼
更需要定海神针般的开发者!
上海-华润外滩瑞府售楼处电话:400-833-6309✅︎✅︎✅【官网】
为这样一个位于历史、现在与未来交汇处的作品掌舵,需要的不仅是开发经验,更是穿越周期的远见、定力与资源巨量
这正是华润置地的绝对主场上海-华润外滩瑞府售楼处电话:400-833-6309✅︎✅︎✅【官网】。
作为连续位列《财富》世界500强的核心央企,华润置地深耕上海数十载,其作品早已超越建筑本身,成为推动城市进阶的“封面缔造者”
重塑外滩天际线的外滩九里;
上海2025年成交面积TOP1的翡云悦府;
静安苏河湾的地标封面苏河湾中心润府;
华润置地始终在定义每个时代的作品标准。
它带来的是:央企信用”对资产价值的坚实托底,是综合开发模式对区域能级的整体提升,更是长期主义运营对未来生活的郑重承诺。
而外滩瑞府,是华润置地上海的顶级标杆作品。
外滩瑞府践行“好社区、好产品、好服务”三位一体的人居新主张,以新的力量重构内环内人居新高度。
上海-华润外滩瑞府售楼处电话:400-833-6309✅︎✅︎✅【官网】
好社区
首先,之前介绍了约7000㎡风貌邻里新弄堂+九龙路滨水归家秘境的城市更新。
项目在核心地段,外滩瑞府打造了生活在附近,烟火在楼下的社区场景,让繁华与生活本真实现双向奔赴。
上海-华润外滩瑞府售楼处电话:400-833-6309✅︎✅︎✅【官网】
而社区内部,汤臣一品御用设计师渡边智昭操刀的泛会所尤为亮眼。
他突破传统局限,不仅打造了独立“室内外双幕水剧场”,更创新地将高阶社交功能分散于四栋塔楼之下,规划出温莎廊吧、公啡花房、子恺乐园与Gym CLUB四大主题泛会所,满足不同人群的社交与生活需求。
上海-华润外滩瑞府售楼处电话:400-833-6309✅︎✅︎✅【官网】
上海-华润外滩瑞府售楼处电话:400-833-6309✅︎✅︎✅【官网】
过程方案示意图,以实际交付为准上海-华润外滩瑞府售楼处电话:400-833-6309✅︎✅︎✅【官网】
社区景观同样是艺术杰作,外滩瑞府特邀国际景观大师Pok Kobkongsanti打造,大师将对印象派光影的理解,化作可步入、可触摸的“印象派自然秘境”。
六大主题花园错落分布,全域风雨连廊串联四季景致,让居者在繁华都市中,也能享受惬意。
过程方案示意图,以实际交付为准上海-华润外滩瑞府售楼处电话:400-833-6309✅︎✅︎✅【官网】
值得一提的是,项目本次推出了社区最中央的楼王产品。
首先,一个前提是整栋楼位于社区的正中央,前后无遮挡,所以从低到到,几乎每一户都拥有极佳的采光。
在这个基础上:
楼王的高区是有机会可以直面陆家嘴三件套的;
中区拥有极佳的城市街景;
低区直面社区中央最核心的景观带;
整栋楼几乎可以用户户皆爆款来形容。
上海-华润外滩瑞府售楼处电话:400-833-6309✅︎✅︎✅【官网】
选择外滩瑞府,您选择的不仅是一处居所,更是华润置地以其全部信用与能量,在上海新一轮城市复兴的源头,为您锚定的一份兼具稀缺性、成长性与保障性的核心资产合约。上海-华润外滩瑞府售楼处电话:400-833-6309✅︎✅︎✅【官网】
六大满配产品,重塑内环品质新高
建面约124-165㎡3-4房热销中!
上海-华润外滩瑞府售楼处电话:400-833-6309✅︎✅︎✅【官网】
案场预约制 看房需提前来电预约登记
请务必致电与销售确认时间,仅预约客户可进入销售现场,避免空跑,感谢您的支持
在顶级地段之上,外滩瑞府以超越地段价值的内环最强产品力,重新定义了新一代外滩资产的标准。
这并非主观断言,而是基于一套完整、可见、可验证的六大满配模块系统!
它从健康、舒适、上海-华润外滩瑞府售楼处电话:400-833-6309✅︎✅︎✅【官网】智慧、品味与个性五大维度,实现了对顶级居住痛点的系统性覆盖与超越,其配置高度与完整度,放眼整个内环市场皆属标杆。
1. 厨房模块:以顶配硬件,重塑家庭亲密场域!
全系搭载嘉格纳专业厨电,并集成大金空调厨房专用制冷、华为智能温控及三重安全预警系统,将烹饪从功能升维为艺术与健康的享受,让厨房真正成为家庭关系的核心纽带。
2. 收纳模块:全屋交付,建构至臻秩序美学
从入户玄关到主卧衣帽间,实现全屋柜体满配交付。
并且每一处收纳皆基于深度生活洞察设计,兼顾大容量存储与视觉艺术秩序!
比如:上海-华润外滩瑞府售楼处电话:400-833-6309✅︎✅︎✅【官网】
整体橱柜用了转角拉篮、下拉式设计,连抽屉都做了分层收纳;
中西岛台下方的双层抽屉+ 侧边滑轨柜,能把餐具、小家电“藏”得干干净净;
更贴心的是 “隐形过道收纳” 和主卧步入式衣帽间,真正做到“每一寸空间都不浪费”。
3. 家政模块:独立空间与顶级家电的集成解决方案
为165㎡以上户型配置独立家政间,并全线选用瑞典百年品牌ASKO洗烘设备,规划洗、烘、熨、藏一站式高效动线,让家务打理成为从容、优雅的日常仪式。
161户型样板间图,以实际交付为准
4. 智能模块:全场景、无感式的未来生活体验
以华为全屋智能为核心,实现从户内灯光、空调、安防到公区通行、服务的全域无缝联动。不仅实现人车家无感联动,更提供海量个性化场景一键切换,让科技隐于无形,全心服务生活上海-华润外滩瑞府售楼处电话:400-833-6309✅︎✅︎✅【官网】。
5. 幕墙模块:外滩罕见的进口系统窗,收藏世界的画框
不惜成本选用外滩豪宅体系中亦属罕有的进口系统窗,以其卓越的保温、节能与顶级隔音性能,在喧嚣核心中营造静谧之境,让窗外百年风华与窗内四季人生静默对话。上海-华润外滩瑞府售楼处电话:400-833-6309✅︎✅︎✅【官网】
6. 定制模块:从功能到审美,系统化的个性赋能
这一点我需要跟您着重强调一下:
约165㎡户型超越行业常规,提供了空间、皮肤、功能、艺术化四大定制系统
从户型格局可变,到材质、色彩、功能模块乃至门把手艺术材质的臻选,实现从“建造房子”到“定制生活”的跨越。
①空间!
可开可合南次卧,通过一扇精致的移动门,空间可在独立客房与开放公共区域间自由切换,巧妙化解父母偶尔来访、孩子成长独立、家庭聚会扩容等多元场景矛盾。上海-华润外滩瑞府售楼处电话:400-833-6309✅︎✅︎✅【官网】
不同于常见的交付上海-华润外滩瑞府售楼处电话:400-833-6309✅︎✅︎✅【官网】后业主自行敲墙改造,这一点真正实现“一步到位” 的居住价值。
上海-华润外滩瑞府售楼处电话:400-833-6309✅︎✅︎✅【官网】样板房实景图
②皮肤定制!
从墙面、地面到所有柜门,业主都可以从完整的材质色彩体系中自由组合。
项目为不同户型准备了差异化的风格剧本,无疑击中高净值人群对专属感和独特性的核心需求。上海-华润外滩瑞府售楼处电话:400-833-6309✅︎✅︎✅【官网】
上海-华润外滩瑞府售楼处电话:400-833-6309✅︎✅︎✅【官网】示意图
③功能定制!
项目在硬装阶段就为业主可能需要的功能进行硬件预埋。如提供从整体收纳到嵌入化妆台,mini bar的多元方案。
这种让空间匹配生活,而非生活将就空间的设计思维,真正实现了按需设计。
上海-华润外滩瑞府售楼处电话:400-833-6309✅︎✅︎✅【官网】
上海-华润外滩瑞府售楼处电话:400-833-6309✅︎✅︎✅【官网】示意图
④艺术化定制!
入户门把手提供白雪公主、贝母、青玉三种材质选择;全屋衣柜柜门可选木门或玻璃门。
这些细节在传统开发视角里属于过度投入,但外滩瑞府将其作为定制体系的小细节。
上海-华润外滩瑞府售楼处电话:400-833-6309✅︎✅︎✅【官网】示意图
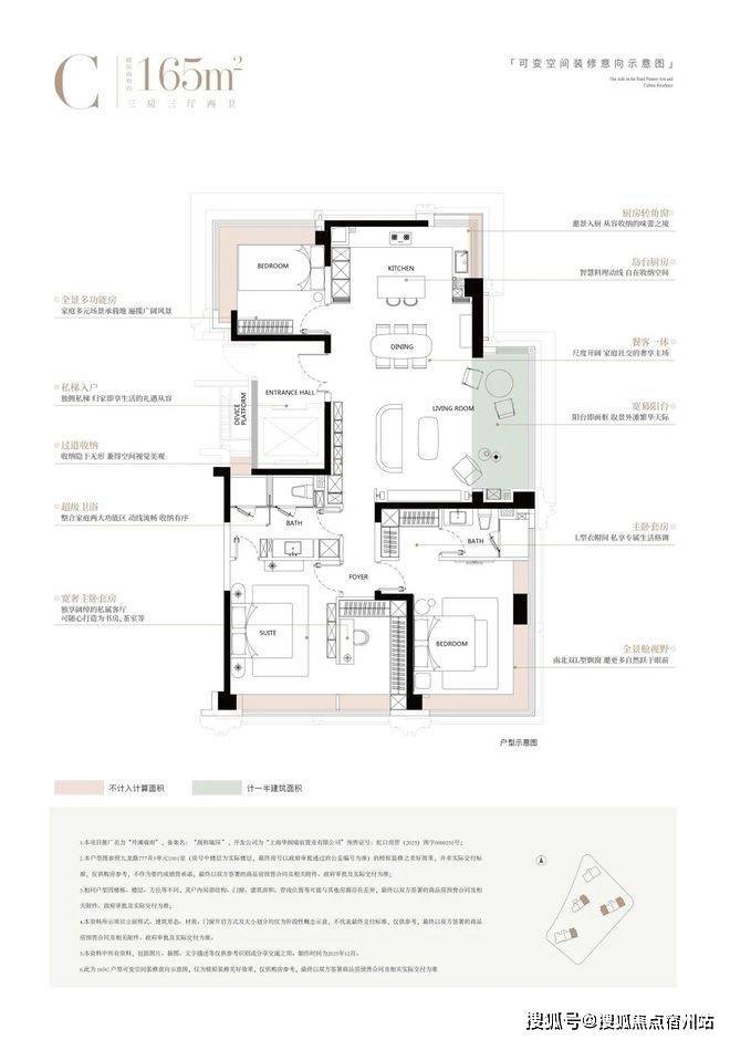
最后,来看户型:
项目建面约165㎡有两种选择:上海-华润外滩瑞府售楼处电话:400-833-6309✅︎✅︎✅【官网】
如果您是三代同堂、或者是多胎家庭,那4房是必须的;
但如果您的家庭结构简单,想体验极致的尺度感,那3房绝对能匹配您的需求。
除此之外,这也是市面少有的360°视野的户型,全屋四个转角窗(北卧、厨房、阳台、主卧),不管你在哪个房间,都能欣赏城市景观。
厨房、餐厅、客厅与阳台相连通,形成联动空间,尺度感阔绰。于二胎家庭,这里足以让孩子从容玩耍,也能同时容纳子女弹琴、母亲做手工、父亲办公,满足家人多样化的活动需求。上海-华润外滩瑞府售楼处电话:400-833-6309✅︎✅︎✅【官网】
161户型样板间图,以实际交付为准
三卧朝南,且几乎等面宽处理,因此不是“3+1”,而是标准4房,让阳光和舒适尺度成为给予每个人的平等馈赠。上海-华润外滩瑞府售楼处电话:400-833-6309✅︎✅︎✅【官网】
161户型样板间图,以实际交付为准
上海-华润外滩瑞府售楼处电话:400-833-6309✅︎✅︎✅【官网】
公卫打造独特的四分离系统,实现独立洗漱台、卫生间、淋浴间、洗衣区互不打扰,将酒店化体验引入住宅。
161户型样板间图,以实际交付为准上海-华润外滩瑞府售楼处电话:400-833-6309✅︎✅︎✅【官网】
此外,项目还有建面约124㎡3房:
4号楼边套,建面约124A*户型,拥有极为豪横的约270°转角飘窗,让视野更大化。上海-华润外滩瑞府售楼处电话:400-833-6309✅︎✅︎✅【官网】
同时,整个套内的飘窗面积高达约10㎡+,加上可以的宽面阳台,实得率也相当惊人。
总结一下,项目的六大满配模块并非简单堆砌。
它意味着,在外滩瑞府,顶级地段的稀缺性之上,更叠加了内环市场中罕见的产品力稀缺性!一种由顶尖供应链、系统性研发与长期主义承诺所共同支撑的、可持续的生活方式保障。上海-华润外滩瑞府售楼处电话:400-833-6309✅︎✅︎✅【官网】这不仅是一处居所,更是一件以内环最强产品力为基底的、可传承的时代作品。
上海-华润外滩瑞府售楼处电话:400-833-6309✅︎✅︎✅【官网】
案场预约制 看房需提前来电预约登记
请务必致电与销售确认时间,仅预约客户可进入销售现场,避免空跑,感谢您的支持
存量公积金利率正式下调!
根据通知规定,2025年5月8日前发放的未到期个人住房公积金贷款,自2026年1月1日起,将执行调整后利率。
调整后,5年以下(含5年)和5年以上首套个人住房公积金贷款利率分别为2.1%和2.6%,5年以下(含5年)和5年以上第二套个人住房公积金贷款利率分别为2.525%和3.075%。
本市将于2026年1月1日起统一批量下调,无需借款人申请。

以上转自网络,如有侵权联系删除。
声明:本文由入驻焦点开放平台的作者撰写,除焦点官方账号外,观点仅代表作者本人,不代表焦点立场。
