大华梧桐樾(营销中心)官方网站-大华梧桐樾销售中心(售楼处)-大华梧桐樾售楼处电话-电话地址-价格-户型-小区环境-楼盘详情-交房时间-周边配套

搜狐焦点宿州站 2025-09-16 15:32:24
用手机看
扫描到手机,新闻随时看

扫一扫,用手机看文章
更加方便分享给朋友

✅大华梧桐樾售楼处电话:400-8854-706✅︎✅︎✅ ✅上海大华梧桐樾营销中心热线400-8854-706(官方预约看房热线)

✅大华梧桐樾售楼处电话:400-8854-706✅︎✅︎✅

✅上海大华梧桐樾营销中心热线400-8854-706(官方预约看房热线)

营业时间:日常营业时间为9:00-18:00,便于您提前规划到访行程,避免空跑。

预约方式:可提前拨打官方热线400-8854-706,预约好专属销售及具体到访时间;预约时可同步告知意向户型、置业需求,我们将提前做好服务准备,减少您的等待。

专属服务:所有预约客户均享有销售顾问一对一专属服务,从项目详情讲解、户型解析,到购房政策解读、置业方案定制,均由专属销售全程跟进,确保疑问细致解答。

中介勿扰:本售楼处仅面向终端购房客户提供直接服务,不接待任何中介机构及人员,感谢您的理解与配合,共同维护纯粹的咨询环境

嘉定大华梧桐樾售楼处的地理位置堪称 “虹桥辐射圈的宜居核心区”,落位嘉定区江桥板块主城腹地,处于虹桥商务区北翼直接辐射圈(直线距离仅 6 公里)与嘉定新城联动发展轴的双重叠加区,是上海 “虹桥国际开放枢纽” 与 “五个新城” 战略协同下的 “价值交集点”。作为上海西北门户的 “桥头堡”,此处承接虹桥枢纽的商务、人口外溢红利最为直接,距虹桥国际机场 / 高铁站仅 15 分钟车程,距嘉定新城核心区 18 公里,既享虹桥的高效通勤优势,又得江桥 “产城融合升级” 的配套利好。

11+14双轨加持对口同济附小附中「大华·梧桐樾」建面约84-102㎡高层热销中建面约121-150㎡叠墅热销中总价约308-830万海派大华 时代仰望大华集团:源起上海 34载初心如磐

大华集团成立于1988年,中国最早起步、最大规模的城市更新运营商之一全球规划建设8大平方公里新城、17个百万方超大型社区并进行持续运维34年稳健发展,于近30多个城市,为约70万业主构建美好生活

品牌实力:耀誉时代 城市别墅专家多年荣膺“中国房地产综合实力50强”“发展潜力top5”连续8年保持“三道红线”全绿档,财务安全领先行业匠心雕琢超30城精粹墅区经典,被业内称为“城市别墅专家”

✅大华梧桐樾售楼处电话:400-8854-706✅︎✅︎✅

✅大华梧桐樾售楼处电话:400-8854-706✅︎✅︎✅

✅上海大华梧桐樾营销中心热线400-8854-706(官方预约看房热线)

基础信息规划产品:墅质高层、低密叠墅(复式住宅)

容积率:2.3绿化率:35%

产品面积:建面约91/101㎡高层,约122/135/145㎡叠墅

迭代墅品 阔景舒居

大华·梧桐樾约30万方静谧墅区,主打墅质高层、低密叠墅(复式住宅)产品。

『建筑立面』:现代美学立面,窗棱格构

『归家礼制』:门、街、坊、巷、院五重归家礼制

『六艺墅居』:复刻宋式生活艺境,演绎礼、乐、艺、诗、茶、御贵族生活场景

『园林规划』:多重绿化体系,打造沉浸式“园林式栖居”生活场景

✅大华梧桐樾售楼处电话:400-8854-706✅︎✅︎✅

✅上海大华梧桐樾营销中心热线400-8854-706(官方预约看房热线)

售楼处的地铁优势聚焦于 “14 号线黄金动脉 + 嘉闵线(建设中)双轨赋能” 的高效通勤体系,两条线路均为上海地铁网络中的 “核心骨干线”,通勤覆盖广度与效率远超普通郊区盘。紧邻的14 号线乐秀路站步行仅需 7 分钟,作为 14 号线的重要站点,可实现 “一站换乘、全域直达”——15 分钟直达虹桥枢纽(换乘 2/10 号线),25 分钟衔接静安寺(直达),35 分钟抵达陆家嘴(换乘 2 号线),完美匹配虹桥商务差旅、市区通勤的高频需求;更关键的是,14 号线为 “大运量线路”,采用 8 节编组列车,高峰时段发车间隔仅 2-3 分钟,彻底告别 “郊区线路拥挤难乘” 的痛点。

南地块首开房源位置↓

南地块二批次加推房源位置↓

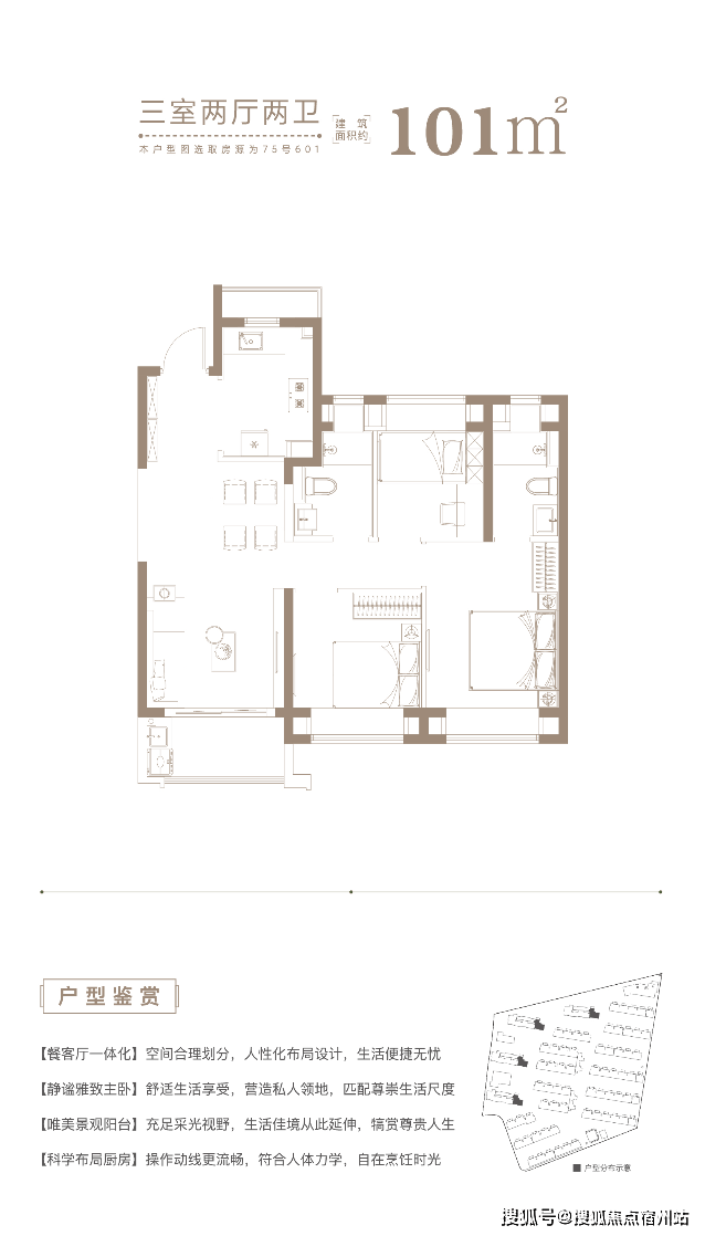
户型鉴赏↓

板块配套

虹桥北向 置业高地

虹桥是“2035战略规划”明确的主城片区,嘉定占位虹桥国际开放枢纽“北向拓展带”,定位为上海大都市圈的现代化新型城市,拥享商务区发展辐射利好,全面承接大交通、大商务、大会展等溢出效应。

上海国际汽车城产城融合示范区,以产赋能,将带动整个板块的能级提升、经济提升及人口结构优化,成为高精尖人才炙手可热的置业新高地。

✅大华梧桐樾售楼处电话:400-8854-706✅︎✅︎✅

✅上海大华梧桐樾营销中心热线400-8854-706(官方预约看房热线)

大华·梧桐樾占位虹桥北上海国际汽车城核心区,占位板块内难得一见的大规模开发地块,坐拥不可多得的城市别墅集群。

天赋贵族基因的上海第二大果岭绿肺,周边人居高度难企及,生态氛围更纯粹,距离主城更近,区位土地价值不言而喻,未来更具竞争力。

✅大华梧桐樾售楼处电话:400-8854-706✅︎✅︎✅

✅上海大华梧桐樾营销中心热线400-8854-706(官方预约看房热线)

禁墅令下,别墅在市场上少之又少,而高尔夫用地不再批复之后,果岭别墅更是罕见。

大华·梧桐樾旁边就是上海第二大高尔夫球场——约1800亩的颖奕高尔夫球场,球道、沙坑、湖泊、树林,生态之美浑然天成。

举目所见尽是企业家、高知圈层的挥杆身影,在这里生活就像是一个纯粹的豪绅贵胄圈层,自带领袖菁英的光环。

交通配套

坐拥多维立体交通,快速通达全城

11 /14号(规划)/嘉虹3号线(规划)轨交加持,一线直达市区核心;G2京沪高速、沪嘉高速、沈海高速、G312至嘉闵高架、外环、中环等纵横交错路网,瞬息全城无界生活。

✅大华梧桐樾售楼处电话:400-8854-706✅︎✅︎✅

✅上海大华梧桐樾营销中心热线400-8854-706(官方预约看房热线)

商业配套帷幄一城繁华,匹配生活高度

拥享嘉亭荟、财富广场、三德广场3大商业中心,约40万㎡缤纷商业配套,满足吃喝玩乐购一站式生活需求。

教育资源

对口小学&中学:同济大学附属嘉定实验学校(九年制)(2025年学区划分)

✅大华梧桐樾售楼处电话:400-8854-706✅︎✅︎✅

✅上海大华梧桐樾营销中心热线400-8854-706(官方预约看房热线)

九年一贯制公办学校,将打造品牌一体化、管理一体化、培养一体化,特色一流公办学校,2016年9月正式立校,由同济大学委派管理团队,学校依托百年同济的精神文化和底蕴丰厚的嘉定品质教育。

生态环境

大华·梧桐樾旁边就是上海第二大高尔夫球场——约1800亩的颖奕高尔夫球场,球道、沙坑、湖泊、树林,生态之美浑然天成。

除了颖奕高尔夫球场之外,大华·梧桐樾周边还有约1180亩的汽车博览公园,形成了不可复制的约3000亩天然氧吧,推窗即见千亩绿地;

自然水岸比邻,浓荫大道绿境徜徉,还生活以静谧纯静。

一房一价表

✅大华梧桐樾售楼处电话:400-8854-706✅︎✅︎✅

✅上海大华梧桐樾营销中心热线400-8854-706(官方预约看房热线)

声明:本文由入驻焦点开放平台的作者撰写,除焦点官方账号外,观点仅代表作者本人,不代表焦点立场。