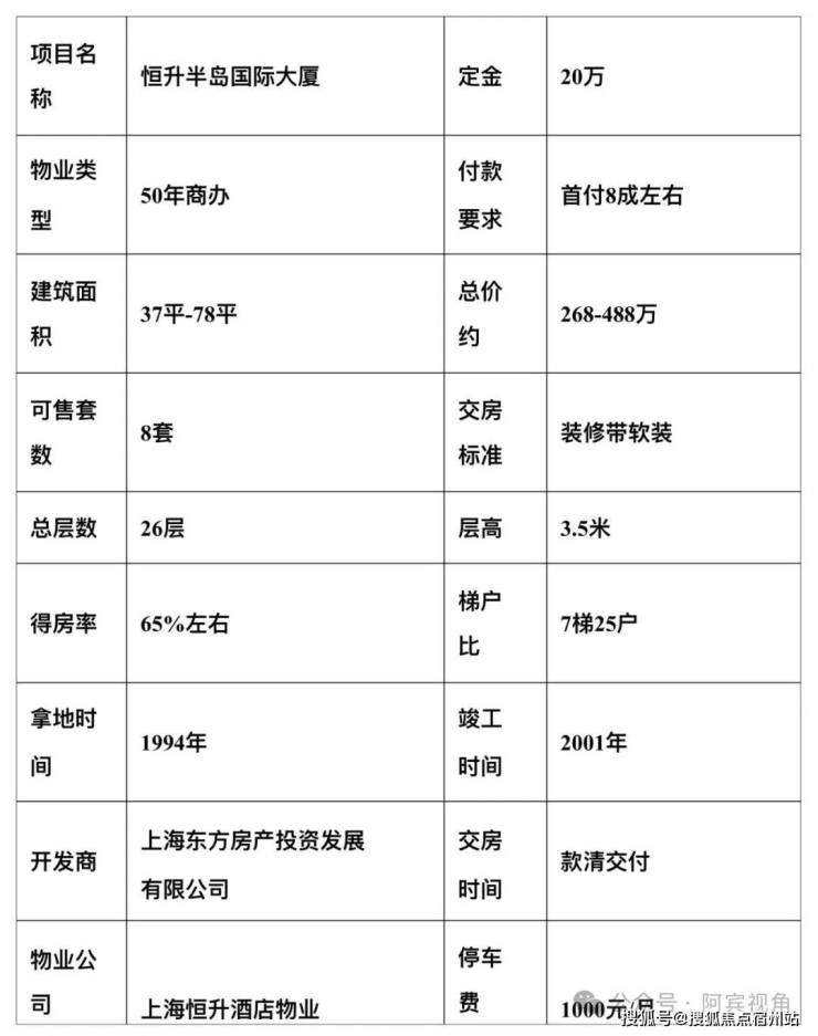
虹口区精装公寓 上海北外滩·外白渡桥畔【外滩雲邸 ·恒升半岛】 望江顶奢公寓 即刻入手,做外滩百年风云的「收租人」
北外滩核心区,陆家嘴、外滩尽收眼底,苏州河与黄浦江交汇处300米,外白渡桥300米。
整栋纯居住,纯商住楼,独立上下水,安全舒适;
自住投资均可,年化4%回报率,精装全配,无忧托管,托管期间免水电、物业费,
稀缺小面积低总价,租售比高;
价格洼地超高,低于区域楼板价一半价格销售,单价、总价低于周边高层住宅至少1/3价格,买到即赚到‼

外滩雲邸售楼处电话:400-8377-020


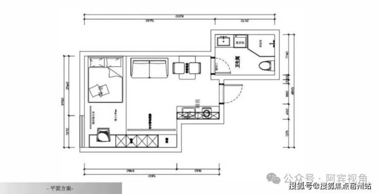
户型优势:
一线看江 视野开阔
功能分区 动静分离
户型方正 布局合理

外滩雲邸售楼处电话:400-8377-020




户型优势:
原木风格 网红精装
户型方正 开窗面大



外滩雲邸售楼处电话:400-8377-020
面积37.73平
虹口区精装公寓 上海北外滩·外白渡桥畔【外滩雲邸 ·恒升半岛】 望江顶奢公寓 即刻入手,做外滩百年风云的「收租人」
外滩雲邸售楼处电话:400-8377-020
虹口区精装公寓 上海北外滩·外白渡桥畔【外滩雲邸 ·恒升半岛】 望江顶奢公寓 即刻入手,做外滩百年风云的「收租人」
申城房源真视角已关注
分享点赞在看已同步到看一看写下你的评论
视频详情
投资优势:
桔子酒店 托管无忧
4%固定回报 小投入
内环价值、北外滩规划发展、上海黄金三角、板块升值潜力
租售群体多,可短租可长租,好出租,好出手,租金高
项目的价格洼地,周边公寓三分之一的价格,升值潜力巨大
稀缺性,整栋纯自住,小面积,低总价,核心区绝版资产配置
装修精装全配,省心省力省心、回报率高,4%无忧托管
年轻自住:环境配套好、品质要求高,通勤方便、父母出钱
交通便捷,浦东浦西上下班通勤均方便
3公里内5大核心商圈,玩转魔都核心夜生活
限购,同总价购买老破小,生活品质差
核心资产,核心圈层,身份象征
整栋居住,居住安全,省去搬家之苦
婚前财产,资产配置
无落户上学要求,离家人朋友近,占用资金少,生活成本低,生活配套方便
生活配套方便,生活成本低
核心区域,景观资源好
离家人朋友近,方便来往照顾
有电梯,上下楼方便
整栋居住,安静舒服,无杂人员
留给孩子或家人的核心资产
精装修全配,省心省力