静安内环内苏河湾板块@2026上海【静安里】售楼处电话|静安里热销中|静安里欢迎您
扫描到手机,新闻随时看
扫一扫,用手机看文章
更加方便分享给朋友
静安内环内苏河湾板块
上海【静安里】售楼处电话/地址☎:400-833-6309(预约热线)√√
营销中心位置/热线☎:400-833-6309(看房专线)√√
温馨提示:提前预约来电预约专业一对一热情服务,看房尊享内部优惠折扣!
(已认证)欢迎致电咨询预约看房优惠信息,郑重承诺:开发商旗下销售团队全程营销策划,房源信息真实有效!
上海静安里售楼处电话/地址☎:400-833-6309(预约热线)√√
直接认购!
在售约262-370m²风貌别墅
纯别墅社区 !样板间已开放!
上海静安里售楼处电话/地址☎:400-833-6309(预约热线)√√
总价在4200万-1亿元左右
参观看房请提前线上预约!
上海静安里售楼处电话/地址☎:400-833-6309(预约热线)√√
去年,静安区发布了一则关于历史风貌保护项目实施主体遴选的公告,即静安04-05、05-01北站新城地块。
来源:静安区规划资源局
根据评分遴选相关事项,本次遴选报价以房地联动价21万元/㎡为基准。就在2023年7月21日,华发招商联合体官宣拿下静安天目社区04-05、05-01历史风貌保护项目:
上海静安里售楼处电话/地址☎:400-833-6309(预约热线)√√
上海静安里售楼处电话/地址☎:400-833-6309(预约热线)√√
仅从图上看,该地块直线距苏州河约1公里,直线距外滩约1.4公里,直线距北外滩约1.7公里,直线距3/4号线宝山路站约300米,直线距10号线四川北路站约560米,区位优势明显。
区位示意图
上海静安里售楼处电话/地址☎:400-833-6309(预约热线)√√
【产品规划】该地块地处北站新城,老上海人习惯称它为"老北站",区域历史底蕴悠久,地块内留有不少历史建筑,比如优秀历史建筑虞氏故居,还有泰山大剧院等建筑,都将予以保留修缮。
上海静安里售楼处电话/地址☎:400-833-6309(预约热线)√√
上海静安里售楼处电话/地址☎:400-833-6309(预约热线)√√
自2017年,北站新城启动征收,它是上海"留改拆"背景下启动的首个试点基地,由市、区联合土地储备。直到2023年6月,该项目开启了公开遴选的流程,已经历时近7年的时间。下面,我们具体来看看地块信息!
上海静安里售楼处电话/地址☎:400-833-6309(预约热线)√√
上海静安里售楼处电话/地址☎:400-833-6309(预约热线)√√
项目共由两幅地块组成,住宅并无中小套型限制,根据限高和容积率推测,该地块位于静安内环内,旁边就是待入市的弘安里。武进路正是虹口静安交界,静安里地块属于静安,弘安里属于虹口。上海静安里售楼处电话/地址☎:400-833-6309(预约热线)√√
地块实拍图
地块四至范围:南至武进路,西至宝山路、河南北路,北至规划04-03、04-04地块。上海静安里售楼处电话/地址☎:400-833-6309(预约热线)√√
上海静安里售楼处电话/地址☎:400-833-6309(预约热线)√√
上海静安里,位于百年历史街道武进路旁,以历史原真性融入现代手法规划222席低密风貌大宅,保留南市北里的格局,在成片的风貌之间,诠释出入之间迷人的摩登生活诗篇。上海静安里售楼处电话/地址☎:400-833-6309(预约热线)√√
上海静安里售楼处电话/地址☎:400-833-6309(预约热线)√√
项目所在地为苏河湾风貌区,周边风貌街区集群,放眼整个苏河湾,风貌保护建筑达50万㎡,是全市风貌建筑最密集的地区之一,上海静安里所属苏河湾北段,是风貌成片、格局完整、具有较高历史保护价值的风貌街坊。
上海静安里售楼处电话/地址☎:400-833-6309(预约热线)√√
上海静安里售楼处电话/地址☎:400-833-6309(预约热线)√√
最新消息!静安内环内苏河湾板块,华发招商静安北站项目「静安里」222席建面185-200-262-301-370㎡风貌别墅;二批次加推约200-370m²风貌别墅!均价约21万/㎡ ,总价在4200万-1亿元左右;纯别墅社区 直接定!参观看房请提前线上预约!上海静安里售楼处电话/地址☎:400-833-6309(预约热线)√√
⬇️专业销售一对一咨询⬇️
上海静安里售楼处电话/地址☎:400-833-6309(预约热线)√√
耐心等待官方VIP客户经理回电
展厅实景图如下
上海静安里售楼处电话/地址☎:400-833-6309(预约热线)√√
上海静安里售楼处电话/地址☎:400-833-6309(预约热线)√√
上海静安里售楼处电话/地址☎:400-833-6309(预约热线)√√
上海静安里售楼处电话/地址☎:400-833-6309(预约热线)√√
⬇️专业销售一对一咨询⬇️
上海静安里售楼处电话/地址☎:400-833-6309(预约热线)√√
耐心等待官方VIP客户经理回电
样板间实景
上海静安里售楼处电话/地址☎:400-833-6309(预约热线)√√
上海静安里售楼处电话/地址☎:400-833-6309(预约热线)√√
上海静安里售楼处电话/地址☎:400-833-6309(预约热线)√√
上海静安里售楼处电话/地址☎:400-833-6309(预约热线)√√
上海静安里售楼处电话/地址☎:400-833-6309(预约热线)√√
上海静安里售楼处电话/地址☎:400-833-6309(预约热线)√√
上海静安里售楼处电话/地址☎:400-833-6309(预约热线)√√
上海静安里售楼处电话/地址☎:400-833-6309(预约热线)√√
上海静安里售楼处电话/地址☎:400-833-6309(预约热线)√√
上海静安里售楼处电话/地址☎:400-833-6309(预约热线)√√
上海静安里售楼处电话/地址☎:400-833-6309(预约热线)√√
上海静安里售楼处电话/地址☎:400-833-6309(预约热线)√√
上海静安里售楼处电话/地址☎:400-833-6309(预约热线)√√
上海静安里售楼处电话/地址☎:400-833-6309(预约热线)√√
上海静安里售楼处电话/地址☎:400-833-6309(预约热线)√√
⬇️专业销售一对一咨询⬇️
上海静安里售楼处电话/地址☎:400-833-6309(预约热线)√√
耐心等待官方VIP客户经理回电
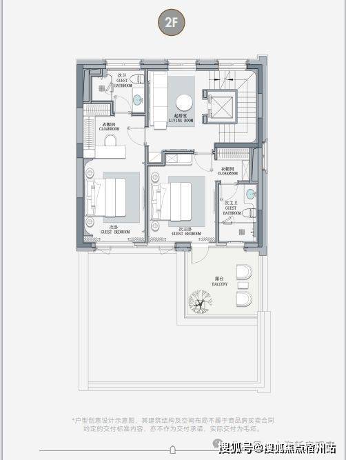
在售户型图如下:
上海静安里售楼处电话/地址☎:400-833-6309(预约热线)√√
上海静安里售楼处电话/地址☎:400-833-6309(预约热线)√√
上海静安里售楼处电话/地址☎:400-833-6309(预约热线)√√
上海静安里售楼处电话/地址☎:400-833-6309(预约热线)√√
上海静安里售楼处电话/地址☎:400-833-6309(预约热线)√√
上海静安里售楼处电话/地址☎:400-833-6309(预约热线)√√
上海静安里售楼处电话/地址☎:400-833-6309(预约热线)√√
上海静安里售楼处电话/地址☎:400-833-6309(预约热线)√√
『岁月里市,烟火新生』,苏河湾商业新名片:以苏河湾地区全新商业名片为规划定位,在海派优秀历史建筑集群之间,规划打造高端零售、高档餐饮、文化展览等格调商业,代言「上海历史文化生活新地标」。
上海静安里售楼处电话/地址☎:400-833-6309(预约热线)√√
上海静安里售楼处电话/地址☎:400-833-6309(预约热线)√√
上海静安里售楼处电话/地址☎:400-833-6309(预约热线)√√
⬇️专业销售一对一咨询⬇️
上海静安里售楼处电话/地址☎:400-833-6309(预约热线)√√
耐心等待官方VIP客户经理回电
上海静安里售楼处电话/地址☎:400-833-6309(预约热线)√√
静安里风貌别墅建面约185-380㎡不等,但在空间魔法下,可实现可使用面积成倍增加。向下拓展自由:约10米层高地下室分为两层,地下2层入户门庭直连停车场;地下1层约4.2-6米层高,可释放改造潜能,化身私人收藏馆、酒窖、茶室、家庭影院或健身体验舱。上海静安里售楼处电话/地址☎:400-833-6309(预约热线)√√
上海静安里售楼处电话/地址☎:400-833-6309(预约热线)√√
向外融入自然:庭院及露台,让居者实现栖居诗意。
另外,【静安里】在户型上也突破传统里弄“窄开间”桎梏,以大开间+高窗墙比提高空间感与通透性,赋予风貌建筑现代生命力。
总结来说,静安里以"向下约10米地下室、向外庭院露台"的立体空间策略,结合大开间现代户型,将风貌别墅的空间价值推向全新高度,在历史肌理中缔造当代塔尖生活范式。
上海静安里售楼处电话/地址☎:400-833-6309(预约热线)√√
『织新历史场景』 ,叙新上海高端人居范式:围绕“源于里弄 高于里弄”设计初衷,以当代的视角,用城市稀缺的低密珍藏,重新编织历史与当代兼容的生活场景,创造一片建筑的多样性、一个巷弄风情的多元性,颠覆上海人居想象。
上海静安里售楼处电话/地址☎:400-833-6309(预约热线)√√
上海静安里售楼处电话/地址☎:400-833-6309(预约热线)√√
里市新街:规划南北活力纵轴,保改、更新宝山路、东新民路、罗浮路、武进路街面,重塑里市繁华记忆。上海静安里售楼处电话/地址☎:400-833-6309(预约热线)√√
上海静安里售楼处电话/地址☎:400-833-6309(预约热线)√√
繁花新境:社区入口打造隐奢门庭,内部尊重原有肌理,打造四纵三横主巷弄,创造三大中庭花园节点,融入上海及世界优秀花园样式,打造海派花园百科全书。上海静安里售楼处电话/地址☎:400-833-6309(预约热线)√√
礼遇新所:打造地下面积约1300㎡生活方式合集空间,集萃一站式高阶生活服务礼遇。
上海静安里售楼处电话/地址☎:400-833-6309(预约热线)√√
上海静安里售楼处电话/地址☎:400-833-6309(预约热线)√√
上海静安里售楼处电话/地址☎:400-833-6309(预约热线)√√
海派新生:妥善留存更新原有不同风格建筑,通过保护修缮、保留改造、更新改建、织补新建四大更新手法,让各个时代建筑和谐共存。
上海静安里售楼处电话/地址☎:400-833-6309(预约热线)√√
上海静安里售楼处电话/地址☎:400-833-6309(预约热线)√√
上海静安里售楼处电话/地址☎:400-833-6309(预约热线)√√
低密新院:建面约200-369㎡城市典藏作品,沿袭历史建筑格局,提高窗墙比,降低围墙高度,拓展地下空间,打造历史风貌住宅里面少有的有社区大堂、会所、精装地库,进阶规格。
上海静安里售楼处电话/地址☎:400-833-6309(预约热线)√√
高定公区,重塑海派归家史诗;隐奢门庭:社区大门以古琦黑奢石手工锻造弧形幕墙,将珠宝镶嵌工艺融入建筑肌理;
巷弄仪式:以"七坊三十二弄"为脉络,八大石库门坊门串联七大组团,复刻百年归家礼序。
静安里实景图
世界花园巡礼:六大主题花园凝练凡尔赛宫轴线、英伦自然主义等精髓,让百年海派情怀在当代庭院中流转新生。
上海静安里售楼处电话/地址☎:400-833-6309(预约热线)√√
景观规划示意图
上海静安里售楼处电话/地址☎:400-833-6309(预约热线)√√
英国花园效果示意图,仅供参考
上海静安里售楼处电话/地址☎:400-833-6309(预约热线)√√
一方会所空间的礼遇,跨越百年时间的上海名流生活方式的尊荣呈现。上海静安里匠造地下建面约1000 ㎡生活方式合集空间,提供星级高端服务接待休息区,还配备了健身房、瑜伽室、泳池等,集萃一站式高阶生活服务空间礼遇。
上海静安里售楼处电话/地址☎:400-833-6309(预约热线)√√
会所实景及效果图:
上海静安里售楼处电话/地址☎:400-833-6309(预约热线)√√
『双匠联袂』,2024上海人文风貌作品新序:百年招商旗下地产旗舰品牌招商蛇口联袂珠海综合型国有企业集团、“中国企业500强”华发集团旗下华发股份,以上海人文风貌作品新序,还原上海老北站盛景时代的文化生活,在区域标志性的历史氛围中,享受静谧生活。
上海静安里售楼处电话/地址☎:400-833-6309(预约热线)√√
『北外滩』上海“黄金三角”,约840万方全球影响力滨水会客厅:未来北外滩与外滩、陆家嘴将共同形成上海的核心“黄金三角”,组成上海内环内封面地标。对标伦敦金融城、纽约曼哈顿等世界金融中心,汇聚商务办公、公共文化、商业服务等功能。上海静安里售楼处电话/地址☎:400-833-6309(预约热线)√√
上海静安里售楼处电话/地址☎:400-833-6309(预约热线)√√
上海静安里售楼处电话/地址☎:400-833-6309(预约热线)√√
开发体量约840万方具有全球影响力的世界滨水区
规划18栋超高层建筑群,其中包括480米的浦西第一高楼
已有金融企业约1500多家,集聚全球影响力企业总部
(信息来源于:网易新闻房产公众号https://mp.weixin.qq.com/s/YvhVftgL0bdi3K3a2oGepg)
上海静安里售楼处电话/地址☎:400-833-6309(预约热线)√√
『苏河湾北部高阶住区』,崭新城市更新单元:周边汇集超高层甲级写字楼、购物街区、石库门商业街与现代街区、石库门里弄联排、超高层大平层、文学博物馆、奢华酒店,以及其他各类保护建筑,在海派文化底蕴深处,生长城市新生的活力生活场。上海静安里售楼处电话/地址☎:400-833-6309(预约热线)√√
交通配套:周边4号线、10号线双轨环绕。靠近北横通道和外滩隧道,交通便捷。上海静安里售楼处电话/地址☎:400-833-6309(预约热线)√√
商业配套:周边有星荟中心、宝华城市广场等商业中心,另规划有四川北路18号街坊,作为虹口生活新地标,包含超甲级写字楼,上海首座约14,000㎡的文化博物馆。上海静安里售楼处电话/地址☎:400-833-6309(预约热线)√√
教育资源:周边有静安区闸北第一中心小学、宝山路小学、市北中学、上海市民办新华初级中学等。
上海静安里售楼处电话/地址☎:400-833-6309(预约热线)√√
医疗资源:附近有瑞金医院、曙光医院、中西医结合岳阳医院、第一人民医院、上海市中医院、上海市儿童医院等。
上海静安里售楼处电话/地址☎:400-833-6309(预约热线)√√
上海静安里售楼处电话/地址☎:400-833-6309(预约热线)√√
静安内环内【静安里】在售建面约200-369m²风貌别墅上海静安里售楼处电话/地址☎:400-833-6309(预约热线)√√
静安内环内苏河湾板块
上海【静安里】售楼处电话/地址☎:400-833-6309(预约热线)√√
营销中心位置/热线☎:400-833-6309(看房专线)√√温馨提示:提前预约来电预约专业一对一热情服务,看房尊享内部优惠折扣!
(已认证)欢迎致电咨询预约看房优惠信息,郑重承诺:开发商旗下销售团队全程营销策划,房源信息真实有效!
上海静安里售楼处电话/地址☎:400-833-6309(预约热线)√√
直接认购!
在售约262-370m²风貌别墅
纯别墅社区 !样板间已开放!上海静安里售楼处电话/地址☎:400-833-6309(预约热线)√√
总价在4200万-1亿元左右
参观看房请提前线上预约!
上海静安里售楼处电话/地址☎:400-833-6309(预约热线)√√
去年,静安区发布了一则关于历史风貌保护项目实施主体遴选的公告,即静安04-05、05-01北站新城地块。
来源:静安区规划资源局
根据评分遴选相关事项,本次遴选报价以房地联动价21万元/㎡为基准。就在2023年7月21日,华发招商联合体官宣拿下静安天目社区04-05、05-01历史风貌保护项目:
上海静安里售楼处电话/地址☎:400-833-6309(预约热线)√√
上海静安里售楼处电话/地址☎:400-833-6309(预约热线)√√
仅从图上看,该地块直线距苏州河约1公里,直线距外滩约1.4公里,直线距北外滩约1.7公里,直线距3/4号线宝山路站约300米,直线距10号线四川北路站约560米,区位优势明显。
区位示意图
上海静安里售楼处电话/地址☎:400-833-6309(预约热线)√√
【产品规划】该地块地处北站新城,老上海人习惯称它为"老北站",区域历史底蕴悠久,地块内留有不少历史建筑,比如优秀历史建筑虞氏故居,还有泰山大剧院等建筑,都将予以保留修缮。
上海静安里售楼处电话/地址☎:400-833-6309(预约热线)√√
上海静安里售楼处电话/地址☎:400-833-6309(预约热线)√√
自2017年,北站新城启动征收,它是上海"留改拆"背景下启动的首个试点基地,由市、区联合土地储备。直到2023年6月,该项目开启了公开遴选的流程,已经历时近7年的时间。下面,我们具体来看看地块信息!
上海静安里售楼处电话/地址☎:400-833-6309(预约热线)√√
上海静安里售楼处电话/地址☎:400-833-6309(预约热线)√√
项目共由两幅地块组成,住宅并无中小套型限制,根据限高和容积率推测,该地块位于静安内环内,旁边就是待入市的弘安里。武进路正是虹口静安交界,静安里地块属于静安,弘安里属于虹口。上海静安里售楼处电话/地址☎:400-833-6309(预约热线)√√
地块实拍图
地块四至范围:南至武进路,西至宝山路、河南北路,北至规划04-03、04-04地块。上海静安里售楼处电话/地址☎:400-833-6309(预约热线)√√
上海静安里售楼处电话/地址☎:400-833-6309(预约热线)√√
上海静安里,位于百年历史街道武进路旁,以历史原真性融入现代手法规划222席低密风貌大宅,保留南市北里的格局,在成片的风貌之间,诠释出入之间迷人的摩登生活诗篇。上海静安里售楼处电话/地址☎:400-833-6309(预约热线)√√
上海静安里售楼处电话/地址☎:400-833-6309(预约热线)√√
项目所在地为苏河湾风貌区,周边风貌街区集群,放眼整个苏河湾,风貌保护建筑达50万㎡,是全市风貌建筑最密集的地区之一,上海静安里所属苏河湾北段,是风貌成片、格局完整、具有较高历史保护价值的风貌街坊。
上海静安里售楼处电话/地址☎:400-833-6309(预约热线)√√
上海静安里售楼处电话/地址☎:400-833-6309(预约热线)√√
最新消息!静安内环内苏河湾板块,华发招商静安北站项目「静安里」222席建面185-200-262-301-370㎡风貌别墅;二批次加推约200-370m²风貌别墅!均价约21万/㎡ ,总价在4200万-1亿元左右;纯别墅社区 直接定!参观看房请提前线上预约!上海静安里售楼处电话/地址☎:400-833-6309(预约热线)√√
⬇️专业销售一对一咨询⬇️
上海静安里售楼处电话/地址☎:400-833-6309(预约热线)√√
耐心等待官方VIP客户经理回电
上海楼市明年会不会回暖?
12月28日(周日),根据上海网上房地产公示数据显示,当日二手房网签成交1088套。

本月截止目前(12.28),二手房网签成交累计20812套,继11月成交2.2万套,已经连续两个月突破2万套大关。
除此之外,上海挂牌量不断探底!
到12月,上海的二手挂牌量降到了14w+套。
从趋势上看,还会持续下降。
据了解目前很多房东心态并没有实质性向好,但他们调价的次数在减少。
甚至不接受降价的房东,有的都选择下架不卖了,改成租出去!
这也是为何,上海二手房挂牌量大幅度下降的主要原因。

上海今年二手房网签成交总量累计251966套,创近四年新高。
2022年,158172套
2023年,191811套
2024年,242744套
上述数据可以看出,其实今年一整年的上海二手房成交量都很好,月均成交量破2万套
这在大家意识中的淡市周期里这是一个了不起的结果
放眼全国,这是唯一
那么,上海楼市明年(2026年)会不会回暖?
我的直接回答是:会
但不是你想象中的“普涨狂欢”,而是“结构性回暖”。
简单来说,2026年上海楼市大概率会进入一个“止跌企稳、冰火两重天”的新阶段。
市场的底部已经显现,但资金和需求会极度分化——好的资产(核心区、豪宅)会涨,普通的资产(远郊、老破小)可能还在阴跌。
为了让你更清晰地看懂明年的走势,我为你拆解了以下几个关键信号:
真正的“回暖”信号:刚需进场
楼市是否回暖,不看专家言论,只看一个硬指标:刚需(首次买房的人)是否开始接盘。
目前来看,上海总价300万以下的刚需房源成交占比已超过60%。这说明价格已经跌到了很多刚需的心理价位,大家开始觉得“这价格可以承受,风险可控”,从而进场“抄底”。
结论:只要刚需持续入场,成交量稳住,市场就真正“活”了。预计明年成交量会保持活跃,价格则会逐渐趋稳。
2026年最大的“变数”:4万套房解禁
这是明年市场面临的最大考验,也是你最需要警惕的风险点。
限售解禁潮:2021年上海新房积分制下,大量认购率高的新房被限售5年。2026年,预计约有4万套解禁,并不是这4万套房源都会涌入二手市场,但即便仅有30%房源选择挂牌,对于板块的房价冲击也相当大。
冲击板块:主要集中在大虹桥、徐泾等前期炒作较热的区域。
影响:这批“投资客”可能会选择高位套现,导致短期内这些板块的二手房价格承压,出现“以价换量”的局面。
“冰火两重天”的具体格局
明年的上海楼市,不同地段、不同产品会有截然不同的命运:

给你的一点建议
如果你正在关注上海楼市,建议你根据自己的需求对号入座:
如果你想自住(刚需):
现在是窗口期。尤其是明年上半年,政策环境好(低利率、限购放宽),且有大量房源可供挑选。
重点关注:总价300万左右的低总价房源,或者核心区的高性价比“老破小”(为了学区或地段)。
如果你想改善(换房):
卖旧买新要趁早。如果你手里的房子是远郊的“老破大”或非核心资产,建议在价格还能接受的时候尽快置换,去置换核心区的“好房子”。
盯紧新房:关注带有“好房子”认证(绿色、智能、得房率高)的新盘,这些是未来的增值主力。
如果你想投资:
千万别碰远郊。2026年不是“闭眼买都能赚”的时代了。
只选核心。只有上海内环内、有顶级资源配套的房产才具备长期的保值增值能力。
总结:2026年上海楼市不会出现大水漫灌式的暴涨,但也不会崩盘。它正在进入一个“品质为王”的新周期。对于普通人来说,买对区域和产品,比赌市场大势更重要。
以上转自网络,如有侵权联系删除
声明:本文由入驻焦点开放平台的作者撰写,除焦点官方账号外,观点仅代表作者本人,不代表焦点立场。
