上海-招商序售楼处电话:400-833-6309【官网】
案场预约制 看房需提前来电预约登记
请务必致电与销售确认时间,仅预约客户可进入销售现场,避免空跑,感谢您的支持
上海楼市竞争进入白热化阶段,大家都在疯狂内卷,卷户型、卷装标、卷公区。
所以,现在的新房指标都被卷到了一个相当高的水准,想要再超越何谈容易。
但就在这样的市场中,出现了一个可以称之为:完全碾压同级的超规格新房。
Ta就是中环沿线、大吴淞片区内的600万级新房,招商序。

那这个项目究竟有多超规格呢?

1、超规格占位:中环线 + 吴淞城市副中心,双重王牌在手。
约600万级,买进的不仅是中环地段,更是上海政府重金规划的“吴淞城市副中心”核心。这不再是买房,而是买入城市未来的“原始股”。
2、超规格动脉:双轨交类TOD格局锁定,转身及世界。
18号线二期(预计2025年底开通)已进入倒计时,规划19号线落位明确。别人的交通是“规划图”,招商序的交通是“进度条”。双轨交汇,让畅达全城成为日常。招商序售楼处电话:400-833-6309【官网】
3、超规格实景:约2000㎡示范区全开,说再多,不如亲眼见。
约2000㎡实景示范区提前开放,一草一木、一砖一石全铺在你眼前。开发商敢投入巨资“提前交卷”,就是未来交付品质最硬的保证。
4、超规格产品:约600万级三阳台神户型,重新定义尺度
在户型上“疯狂内卷”,做出三阳台、宽奢卧室。在别人压缩空间时,招商序敢于“浪费”面积,只为兑现真正的人居尺度。
5、超规格配置:大师团队+顶豪级会所,直接把内环标准搬到中环
招商顶奢“启序系”血统,集结业界大师天团。约4000㎡会所+架空层,恒温泳池、私宴厅配置直接看齐内环顶豪。
6、超规格归家:从66米宽门头到首创中央车库,仪式感拉满
约66米宽归家门头,六重礼序只是开始。首创“中央车站”式地下车库,精装交付,动线科学,无缝链接会所、大堂,让你的归家体验,从进门的第一秒就高效、从容、有面子。
一句话总结:当中环房卖成“上车盘”,招商序正以“超规格”之姿,实现你的“升舱”梦!

中环占位+吴淞城市副中心
约600万级最强的超规格地段!
在上海,有一条颠扑不破的黄金定律:中环,是资产最坚实的价值锚点。
它规避了内环的拥堵与高昂成本招商序售楼处电话:400-833-6309【官网】,又超越了外环的疏离与不便,是事业与生活达成完美平衡的“最优解”。占位中环,本身就是一种身份的确认与价值的保障。
那现阶段,在中环置业的门槛是多少?

整个中环沿线,如今的新房均价,起步门槛就是约11万/㎡+!
换句话说,招商序是目前中环沿线最后的洼地,也是最值得入手的“潜力股”。
但它的野心,远不止于此。
招商序售楼处电话:400-833-6309【官网】更关键的一重价值,来自于它脚下这片热土——吴淞创新城,一个被上海市政府赋予“城市副中心”战略定位的板块。

这绝非普通的区域更新。招商序售楼处电话:400-833-6309【官网】
定位上:这是与张江、徐家汇同级的市级城市副中心。
能级上:根据已批复的《大吴淞地区专项规划》,这里将是上海北部转型发展的“核爆点”,是承载科创中心主阵地功能的市级重大功能区。
建设目标上:政府倾注的万亿级投资,正在将这片约26平方公里的土地,从昔日的工业区,重塑为集科技创新、商业商务、文化生态于一体的现代化滨江新城。
这不是一个普通的中环潜力之地,而是整个上海南北转型、北部城市发展的重要承载区,聚集了整个城市的规划资源与目光。
那约600万级买到招商序意味着什么?
这意味着,你不仅仅是买了一套中环旁的房子。你买入的是:
一张“城市未来”的入场券:与国家级战略规划同频共振,提前布局下一个前滩或张江。商序售楼处电话:400-833-6309【官网】
一圈高知精英的邻居圈层:产业的升级将汇聚大量高净值、高素质人才,你将与这座城市未来的创造者比邻而居。
一个“眼见为实”的价值爆发前夜:当规划一一落地,当配套日益成熟,你今天的选择,将成为明天被众人羡慕的“远见”。
所以,当约600万级的总价能同时锁定成熟中环的现在与吴淞副中心的未来,那这已不是机会,而是时代给予的厚礼。
这,就是招商序“超规格占位”的底气——它让你用当下的理性预算,稳稳押注一个毋庸置疑的黄金未来。

超规格出行大动脉
双轨交汇的类TOD
招商序售楼处电话:400-833-6309【官网】
其实楼市君一直坚信:TOD就是未来生活的终极答案!
这一点我相信已经不用多说了,上海有太多可以证明这句话的例子了:

但不同的是,招商序是18/19号线双轨交的类TOD,其交通能级堪称“超规格”。
我们来具体分析一下:
18号线——贯穿五角场、杨浦滨江、北滨江、碧云、花木!
项目是18号线二期长江西路站的纯粹TOD,下楼即地铁站。
而18号线二期预计2025年底前开通试运营。
也就是说,这不是规划,这是正在冲刺的“工程进度条”。

通车后,它将无缝衔接一期,纵贯宝山、杨浦、浦东,直达御桥、龙阳路等核心枢纽,轻松换乘2、7、14等多条线路,彻底打通城市的“任督二脉”。

更令人振奋的是,这仅仅是序幕——未来,19号线已明确落位于此。
19号线——贯穿北外滩、陆家嘴、前滩、世博、三林滨江!
从长江西路站出发,仅1站即可抵达18号线与19号线的换乘站——江杨南路站
这意味着,招商序实质上是一座被双地铁站环绕的TOD项目
而19号线是一条贯穿上海中央活动区的南北向骨干线路,被称为“浦东滨江黄金线”。招商序售楼处电话:400-833-6309【官网】
它将直接串联前滩、后滩、世博、陆家嘴、北外滩等一系列上海顶流板块。

总结一下,双地铁不是简单的“1+1=2”,而是几何级数的能级跃升。
对于招商序而言,18号线与19号线的交汇,构筑了三大核心优势:
1、双轨交让你的生活半径从“区域级”跃升为“全市级”,无论是通勤、娱乐、购物还是会友,全城目的地皆可一键直达。
2、双轨交贯穿并链接了众多顶级产业区。这意味着区域导入高收入、高净值的精英人群的能力极强,这人对于居住的需求,为招商序的房产价值提供坚实保障。招商序售楼处电话:400-833-6309【官网】
3、单一线路的TOD价值有限,而双轨交TOD形成了“价值网络”,其资源吸附能力与抗风险能力远超单线项目。
在招商序,双轨交不是遥远的蓝图,而是驱动你资产升值的强大引擎。这重“超规格”的交通配置,赋予了你对这座城市的绝对掌控感与一份更具确定性的价值未来。

超规格实景
约2000㎡实景示范区全功能开放
招商序售楼处电话:400-833-6309【官网】
在期房市场,最大的痛点莫过于“不确定性”。效果图再美,终究是虚拟的想象。
招商序深刻理解这份顾虑,并选择用最硬核、最坦诚的方式予以回应——约2000㎡实景示范区全功能开放,邀请你亲身体验。
招商序售楼处电话:400-833-6309【官网】
这绝非零敲碎打的“样板段”,而是一次对社区完整生活系统的全景式呈现。:
1. 全景开放的精品会所+泛会所:顶配生活,已准备就绪
约4000㎡的会所、泛会所空间,这个体量规格,真的可以比肩市区的一些顶级豪宅:

并且,招商序的会所还涵盖恒温泳池、健身房、室内高尔夫、私宴厅、棋牌室等多元空间。
恒温泳池:全天候、全季节的健身与休闲保障。

健身房:配备完善的健身器材,业主下楼即可锻炼,将通勤时间转化为运动时间,是效率与成本的双重优化。招商序售楼处电话:400-833-6309【官网】

室内高尔夫:为业主提供了一个稀缺的、高品质的室内社交与休闲选择。无论是个人爱好还是商务接待,都能在社区内完成,是项目品质格调的直接体现。

私宴厅+棋牌室:为业主及其家人提供了一个固定的、舒适的日常休闲与邻里交往场所,有效促进社区氛围的融合招商序售楼处电话:400-833-6309【官网】。

招商序售楼处电话:400-833-6309【官网】同时,还有不出楼栋就能直接享受的架空层泛会所。

业主可以享受在社区内运动、游泳、健身、会客、遛娃、学习、放松甚至是家庭聚餐等需求,这才是改善,这才是更有格调的生活模式。
2. 首创的“中央车站”式地下车招商序售楼处电话:400-833-6309【官网】库:归家第一步,即是尊崇!招商序售楼处电话:400-833-6309【官网】
招商序售楼处电话:400-833-6309【官网】
地上空间的美学感受随着车行归家动线也延伸到了地下,招商序的地下车库,不仅精装交付,还提出了“中央车站”的概念。招商序售楼处电话:400-833-6309【官网】

招商序售楼处电话:400-833-6309【官网】中央车站是招商的首创设计。
作为地下的驱车通道,本身也是整个空间的枢纽平台,连通社区的各个空间,高效抵达的同时,保证了业主的私密性,营造独一份的尊崇体验。
这也是只有一些五星级酒店,以及市区最新的大几千万级的豪宅才会拥有的配置!
招商序售楼处电话:400-833-6309【官网】


这彻底颠覆了传统地下车库的昏暗与逼仄,归家的尊崇感,从你停稳爱车的那一刻,便已开始。
3、用料、体量比肩高端豪宅级的超级归家展面!
招商序打造了一个约66米宽、约6.7米高的超级归家展面。
并且,用料相当奢侈:保加利亚进口的沉香米黄石材的底座,搭配以安哥拉黑大理石、透光云石,而大门精选伊朗进口水墨玉天然石材、两侧腰线搭配橙皮红石材,奢华典雅。招商序售楼处电话:400-833-6309【官网】
迎宾楼内选用非遗金箔艺术画,每一幅的制作周期近3个月,可见用心。

一方面,招商序的超大归家门头为业主带给了极致的豪宅归家仪式感。
另外一方面,这样气势磅礴的门庭,令区域的归家仪式感焕然一新,就像一座高奢酒店,刷新了区域的美学面貌。

招商序售楼处电话:400-833-6309【官网】

总结一下,开发商敢于投入重金打造实景示范区,将施工中的工地与已成型的实景一并坦诚相告,这本身就是实力雄厚、对产品充满绝对自信的最硬核表达。
招商序售楼处电话:400-833-6309【官网】
还有很多关于示范区的细节,小胖君就不多赘述了,大家可以前往售楼处亲身体验,这绝对是一个越了解越震撼超规格社区。

上海不会再有的超规格三阳台产品!
精装标准与收纳,惊艳全市
招商序售楼处电话:400-833-6309【官网】
招商序的户型,有几点跟大家分享一下:
第一,招商序这个建面约100㎡的3阳台产品,是错过不会再有的产品了。
上海规划与自然资源局发布关于印发《关于进一步促进本市住宅品质提升的规划资源若干意见》的通知。
其中有一条:未来阳台面积是“比例+阈值” 双控,比如120㎡户型阳台最大可以做12㎡,200㎡户型阳台最大可以做16㎡。

换句话说,未来想做三阳台,起码是建面约120㎡以上的户型,那总价起码就要到约800万级左右了。
第二,招商序建面约100㎡的3房,比市场上大多数的约120㎡产品更宽绰!

项目凭借着3阳台的设计,给到客户一个真正的三房户型!
要知道,在其他百平米3房户型中,只能作为一间书房的北次卧。但招商序的北次卧不仅能放下一张完整的床,还能放下一张大尺寸的办公桌或者是梳妆台,甚至还有空间做一些收纳柜和床头柜等招商序售楼处电话:400-833-6309【官网】。
这样的尺度感和实用性,真的比一般建面约120㎡以上的宽绰3房更加惊人。

当然,最让我觉得惊叹的是这个南向次卧:
这个卧室里放下了一张双人床、两个床头柜、一个收纳柜、两个休闲座椅和小茶几。招商序售楼处电话:400-833-6309【官网】
妥妥的“建面约120㎡以上户型的主卧级尺度”,在招商序建面约100㎡的户型中,只是一个南向次卧而已。

最后来看主卧:招商序售楼处电话:400-833-6309【官网】
招商并没有为了放大两间次卧的尺度而牺牲主卧的标准。
豪华的套房设计,北侧卫浴飘窗+南向床边双飘窗的设计,更是把这个空间的视野和收纳空间延展开来,尺度感真的很惊人。

招商序售楼处电话:400-833-6309【官网】

除此之外,市场上绝大多数建面约100㎡的3房户型,小厨房+单开门冰箱是标配。对于一生爱囤货的中国人来说,如此格局只能说“需要忍受”。
为此,招商序设计了一面S墙,可以放下一个超大的双开门冰箱。招商序售楼处电话:400-833-6309【官网】

招商序售楼处电话:400-833-6309【官网】同时把原本冰箱的空间都留给了厨房,让业主有更多的空间进行烹饪。

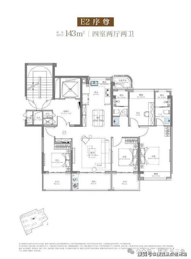
当然除了建面约100㎡3房外,招商序本次还将推出建面约143㎡4房产品:

首先,中间套四开间朝南,4房中有三间房间均朝南,这个套内的采光度相当出众。
同时,这个户型拥有三个阳台+五飘窗的设计,不管是卧室、客厅、厨房还是卫生间,尺度感都比传统的约143㎡大了好几个size。招商序售楼处电话:400-833-6309【官网】
最关键的是,建面约143㎡的产品全系两梯两户、类一梯一户的设计,电梯出来有一个独立的电梯厅,可以作为业主生活的延伸。

边套户型同样是三间卧室朝南,三阳台+多飘窗的设计。
但为更好的放大整个户型的视野,项目在东/西两侧放了双阳台+约270°的主卧飘窗,保证了视野的最大化。
招商序售楼处电话:400-833-6309【官网】
说完户型,我们再来看一下项目的精装和收纳:
招商序的收纳,几乎是做到了极致。
我们来看几个细节:
首先是厨房,我们用一张动图展现一些这个厨房的收纳,究竟有多强:

不管是小碗、大碗还是其他特殊餐具,都有不同的大小规格的抽屉可供整齐的摆放。让整个厨房的空间,得到充分的“扩容”。
满足业主对于烹饪、收纳的所有需求。
其次还有玄关部分:招商序售楼处电话:400-833-6309【官网】
玄关收纳更精细,每个格子的规划都很贴近生活,随手物件,女主人的高靴,吸尘器等都有各自安置空间。
同时玄关柜底部也特意做了镂空,可以摆放拖鞋、换洗的鞋子、摆放扫地机器人等都很实用。
另一侧的储物柜是一个容量较大的落地柜,足够收纳一个大行李箱,背面还贴心设置了洞洞板,可以悬挂雨伞、包包等物品

值得一提的是,整个玄关柜是天然木皮鸡翅木包裹,用料昂贵。并且与墙面、地板几乎一个色系,营造一气呵成的视觉观感,传递出一种低调内敛的豪华感。

眼前一亮的是卫生间收纳,项目的镜柜是内外双镜,并且内部的收纳空间相当丰富,小到女主人的发箍、面膜、口红招商序售楼处电话:400-833-6309【官网】、香水,大到吹风机都有适合的位置。
并且,还配备了一个美妆冰箱,可以收纳昂贵、需要冷藏的化妆品等。


整个室内空间的收纳真的是相当出色。
在精装层面,项目走的依旧是高奢范:主卫唯宝(或同等品牌,下同)洗脸盆、高仪的智能马桶、恒温花洒;松下的空调地暧两联供;百朗的新风系统;方太的燃气灶+油烟机+洗碗机;博世的蒸烤一体机等国际高定装标在招商序聚首,确保业主后期使用体验。招商序售楼处电话:400-833-6309【官网】
其中,灶具是方太的高端系列,保障后期的居住便捷。

同时精奢细节的嵌入。
比如:除了卧室的拼花地板外,墙面与地面绝大部分都是岩板与奢石!就连卫生间的墙面、餐客厅外连通的阳台都做到了岩板通铺。
放眼大几千万的高端豪宅市场,能做到如此高标准的也不多见。

入户门选用的是索福或美心(或同等档次品牌)的定制轻卡门。

钢芯结构外加高强度钢板,入户门锁采用博联(或同等档次品牌)七合一智能门锁,门把手和智能门锁的一体化设计,视觉上不会有任何突兀感,充满了仪式感。招商序售楼处电话:400-833-6309【官网】
还附带智能猫眼、配置约5.5寸可视高清大屏,可实现双向视频对讲监控,锁处于联网状态时可用手机小程序及APP智控,实现远程开锁。
整个项目的精装品质和收纳设计真的是超规格的存在。
总结而言:
招商序的“超规格”,不是单点的突出,而是从占位、交通、产品到兑现力的系统性胜出。它用600万级的总价,提供了一个在区位能级、产品力和生活品质上均能对标更高预算级别的“完全体”解决方案。
对于您而言,这是一次用当下理性预算,锁定未来超额回报的绝佳机会。
招商序售楼处电话:400-833-6309【官网】进行官方线上预约通道尊享团购优惠
上海-招商序售楼处电话:400-833-6309【官网】
案场预约制 看房需提前来电预约登记
请务必致电与销售确认时间,仅预约客户可进入销售现场,避免空跑,感谢您的支持
上海楼市竞争进入白热化阶段,大家都在疯狂内卷,卷户型、卷装标、卷公区。
所以,现在的新房指标都被卷到了一个相当高的水准,想要再超越何谈容易。
但就在这样的市场中,出现了一个可以称之为:完全碾压同级的超规格新房。
Ta就是中环沿线、大吴淞片区内的600万级新房,招商序。

那这个项目究竟有多超规格呢?

1、超规格占位:中环线 + 吴淞城市副中心,双重王牌在手。
约600万级,买进的不仅是中环地段,更是上海政府重金规划的“吴淞城市副中心”核心。这不再是买房,而是买入城市未来的“原始股”。
2、超规格动脉:双轨交类TOD格局锁定,转身及世界。
18号线二期(预计2025年底开通)已进入倒计时,规划19号线落位明确。别人的交通是“规划图”,招商序的交通是“进度条”。双轨交汇,让畅达全城成为日常。招商序售楼处电话:400-833-6309【官网】
3、超规格实景:约2000㎡示范区全开,说再多,不如亲眼见。
约2000㎡实景示范区提前开放,一草一木、一砖一石全铺在你眼前。开发商敢投入巨资“提前交卷”,就是未来交付品质最硬的保证。
4、超规格产品:约600万级三阳台神户型,重新定义尺度
在户型上“疯狂内卷”,做出三阳台、宽奢卧室。在别人压缩空间时,招商序敢于“浪费”面积,只为兑现真正的人居尺度。
5、超规格配置:大师团队+顶豪级会所,直接把内环标准搬到中环
招商顶奢“启序系”血统,集结业界大师天团。约4000㎡会所+架空层,恒温泳池、私宴厅配置直接看齐内环顶豪。
6、超规格归家:从66米宽门头到首创中央车库,仪式感拉满
约66米宽归家门头,六重礼序只是开始。首创“中央车站”式地下车库,精装交付,动线科学,无缝链接会所、大堂,让你的归家体验,从进门的第一秒就高效、从容、有面子。
一句话总结:当中环房卖成“上车盘”,招商序正以“超规格”之姿,实现你的“升舱”梦!

中环占位+吴淞城市副中心
约600万级最强的超规格地段!
在上海,有一条颠扑不破的黄金定律:中环,是资产最坚实的价值锚点。
它规避了内环的拥堵与高昂成本招商序售楼处电话:400-833-6309【官网】,又超越了外环的疏离与不便,是事业与生活达成完美平衡的“最优解”。占位中环,本身就是一种身份的确认与价值的保障。
那现阶段,在中环置业的门槛是多少?

整个中环沿线,如今的新房均价,起步门槛就是约11万/㎡+!
换句话说,招商序是目前中环沿线最后的洼地,也是最值得入手的“潜力股”。
但它的野心,远不止于此。
招商序售楼处电话:400-833-6309【官网】更关键的一重价值,来自于它脚下这片热土——吴淞创新城,一个被上海市政府赋予“城市副中心”战略定位的板块。

这绝非普通的区域更新。招商序售楼处电话:400-833-6309【官网】
定位上:这是与张江、徐家汇同级的市级城市副中心。
能级上:根据已批复的《大吴淞地区专项规划》,这里将是上海北部转型发展的“核爆点”,是承载科创中心主阵地功能的市级重大功能区。
建设目标上:政府倾注的万亿级投资,正在将这片约26平方公里的土地,从昔日的工业区,重塑为集科技创新、商业商务、文化生态于一体的现代化滨江新城。
这不是一个普通的中环潜力之地,而是整个上海南北转型、北部城市发展的重要承载区,聚集了整个城市的规划资源与目光。
那约600万级买到招商序意味着什么?
这意味着,你不仅仅是买了一套中环旁的房子。你买入的是:
一张“城市未来”的入场券:与国家级战略规划同频共振,提前布局下一个前滩或张江。招商序售楼处电话:400-833-6309【官网】
一圈高知精英的邻居圈层:产业的升级将汇聚大量高净值、高素质人才,你将与这座城市未来的创造者比邻而居。
一个“眼见为实”的价值爆发前夜:当规划一一落地,当配套日益成熟,你今天的选择,将成为明天被众人羡慕的“远见”。
所以,当约600万级的总价能同时锁定成熟中环的现在与吴淞副中心的未来,那这已不是机会,而是时代给予的厚礼。
这,就是招商序“超规格占位”的底气——它让你用当下的理性预算,稳稳押注一个毋庸置疑的黄金未来。

超规格出行大动脉
双轨交汇的类TOD
招商序售楼处电话:400-833-6309【官网】
其实楼市君一直坚信:TOD就是未来生活的终极答案!
这一点我相信已经不用多说了,上海有太多可以证明这句话的例子了:

但不同的是,招商序是18/19号线双轨交的类TOD,其交通能级堪称“超规格”。
我们来具体分析一下:
18号线——贯穿五角场、杨浦滨江、北滨江、碧云、花木!
项目是18号线二期长江西路站的纯粹TOD,下楼即地铁站。
而18号线二期预计2025年底前开通试运营。
也就是说,这不是规划,这是正在冲刺的“工程进度条”。

通车后,它将无缝衔接一期,纵贯宝山、杨浦、浦东,直达御桥、龙阳路等核心枢纽,轻松换乘2、7、14等多条线路,彻底打通城市的“任督二脉”。

更令人振奋的是,这仅仅是序幕——未来,19号线已明确落位于此。
19号线——贯穿北外滩、陆家嘴、前滩、世博、三林滨江!
从长江西路站出发,仅1站即可抵达18号线与19号线的换乘站——江杨南路站。
这意味着,招商序实质上是一座被双地铁站环绕的TOD项目。
而19号线是一条贯穿上海中央活动区的南北向骨干线路,被称为“浦东滨江黄金线”。招商序售楼处电话:400-833-6309【官网】
它将直接串联前滩、后滩、世博、陆家嘴、北外滩等一系列上海顶流板块。

总结一下,双地铁不是简单的“1+1=2”,而是几何级数的能级跃升。
对于招商序而言,18号线与19号线的交汇,构筑了三大核心优势:
1、双轨交让你的生活半径从“区域级”跃升为“全市级”,无论是通勤、娱乐、购物还是会友,全城目的地皆可一键直达。
2、双轨交贯穿并链接了众多顶级产业区。这意味着区域导入高收入、高净值的精英人群的能力极强,这人对于居住的需求,为招商序的房产价值提供坚实保障。招商序售楼处电话:400-833-6309【官网】
3、单一线路的TOD价值有限,而双轨交TOD形成了“价值网络”,其资源吸附能力与抗风险能力远超单线项目。
在招商序,双轨交不是遥远的蓝图,而是驱动你资产升值的强大引擎。这重“超规格”的交通配置,赋予了你对这座城市的绝对掌控感与一份更具确定性的价值未来。

超规格实景
约2000㎡实景示范区全功能开放
招商序售楼处电话:400-833-6309【官网】
在期房市场,最大的痛点莫过于“不确定性”。效果图再美,终究是虚拟的想象。
招商序深刻理解这份顾虑,并选择用最硬核、最坦诚的方式予以回应——约2000㎡实景示范区全功能开放,邀请你亲身体验。
招商序售楼处电话:400-833-6309【官网】
这绝非零敲碎打的“样板段”,而是一次对社区完整生活系统的全景式呈现。:
1. 全景开放的精品会所+泛会所:顶配生活,已准备就绪
约4000㎡的会所、泛会所空间,这个体量规格,真的可以比肩市区的一些顶级豪宅:

并且,招商序的会所还涵盖恒温泳池、健身房、室内高尔夫、私宴厅、棋牌室等多元空间。
恒温泳池:全天候、全季节的健身与休闲保障。

健身房:配备完善的健身器材,业主下楼即可锻炼,将通勤时间转化为运动时间,是效率与成本的双重优化。招商序售楼处电话:400-833-6309【官网】
上海-招商序售楼处电话:400-833-6309【官网】
案场预约制 看房需提前来电预约登记
请务必致电与销售确认时间,仅预约客户可进入销售现场,避免空跑,感谢您的支持
上海楼市竞争进入白热化阶段,大家都在疯狂内卷,卷户型、卷装标、卷公区。
所以,现在的新房指标都被卷到了一个相当高的水准,想要再超越何谈容易。
但就在这样的市场中,出现了一个可以称之为:完全碾压同级的超规格新房。
Ta就是中环沿线、大吴淞片区内的600万级新房,招商序。
编辑

那这个项目究竟有多超规格呢?
编辑

1、超规格占位:中环线 + 吴淞城市副中心,双重王牌在手。
约600万级,买进的不仅是中环地段,更是上海政府重金规划的“吴淞城市副中心”核心。这不再是买房,而是买入城市未来的“原始股”。
2、超规格动脉:双轨交类TOD格局锁定,转身及世界。
18号线二期(预计2025年底开通)已进入倒计时,规划19号线落位明确。别人的交通是“规划图”,招商序的交通是“进度条”。双轨交汇,让畅达全城成为日常。招商序售楼处电话:400-833-6309【官网】
3、超规格实景:约2000㎡示范区全开,说再多,不如亲眼见。
约2000㎡实景示范区提前开放,一草一木、一砖一石全铺在你眼前。开发商敢投入巨资“提前交卷”,就是未来交付品质最硬的保证。
4、超规格产品:约600万级三阳台神户型,重新定义尺度
在户型上“疯狂内卷”,做出三阳台、宽奢卧室。在别人压缩空间时,招商序敢于“浪费”面积,只为兑现真正的人居尺度。
5、超规格配置:大师团队+顶豪级会所,直接把内环标准搬到中环
招商顶奢“启序系”血统,集结业界大师天团。约4000㎡会所+架空层,恒温泳池、私宴厅配置直接看齐内环顶豪。
6、超规格归家:从66米宽门头到首创中央车库,仪式感拉满
约66米宽归家门头,六重礼序只是开始。首创“中央车站”式地下车库,精装交付,动线科学,无缝链接会所、大堂,让你的归家体验,从进门的第一秒就高效、从容、有面子。
一句话总结:当中环房卖成“上车盘”,招商序正以“超规格”之姿,实现你的“升舱”梦!
编辑

中环占位+吴淞城市副中心
约600万级最强的超规格地段!
在上海,有一条颠扑不破的黄金定律:中环,是资产最坚实的价值锚点。
它规避了内环的拥堵与高昂成本招商序售楼处电话:400-833-6309【官网】,又超越了外环的疏离与不便,是事业与生活达成完美平衡的“最优解”。占位中环,本身就是一种身份的确认与价值的保障。
那现阶段,在中环置业的门槛是多少?
编辑

整个中环沿线,如今的新房均价,起步门槛就是约11万/㎡+!
换句话说,招商序是目前中环沿线最后的洼地,也是最值得入手的“潜力股”。
但它的野心,远不止于此。
招商序售楼处电话:400-833-6309【官网】更关键的一重价值,来自于它脚下这片热土——吴淞创新城,一个被上海市政府赋予“城市副中心”战略定位的板块。
编辑

这绝非普通的区域更新。招商序售楼处电话:400-833-6309【官网】
定位上:这是与张江、徐家汇同级的市级城市副中心。
能级上:根据已批复的《大吴淞地区专项规划》,这里将是上海北部转型发展的“核爆点”,是承载科创中心主阵地功能的市级重大功能区。
建设目标上:政府倾注的万亿级投资,正在将这片约26平方公里的土地,从昔日的工业区,重塑为集科技创新、商业商务、文化生态于一体的现代化滨江新城。
这不是一个普通的中环潜力之地,而是整个上海南北转型、北部城市发展的重要承载区,聚集了整个城市的规划资源与目光。
那约600万级买到招商序意味着什么?
这意味着,你不仅仅是买了一套中环旁的房子。你买入的是:
一张“城市未来”的入场券:与国家级战略规划同频共振,提前布局下一个前滩或张江。商序售楼处电话:400-833-6309【官网】
一圈高知精英的邻居圈层:产业的升级将汇聚大量高净值、高素质人才,你将与这座城市未来的创造者比邻而居。
一个“眼见为实”的价值爆发前夜:当规划一一落地,当配套日益成熟,你今天的选择,将成为明天被众人羡慕的“远见”。
所以,当约600万级的总价能同时锁定成熟中环的现在与吴淞副中心的未来,那这已不是机会,而是时代给予的厚礼。
这,就是招商序“超规格占位”的底气——它让你用当下的理性预算,稳稳押注一个毋庸置疑的黄金未来。