上海风貌豪宅重头戏
黄浦区新天地城央烫金地段
【中海·恒昌玖里】售楼处电话:400-8377-020
建面约811-843㎡传世大宅
总价约3.39亿-3.41亿
样板房开放中
【中海·恒昌玖里】售楼处电话:400-8377-020

178号基础信息
层数:地上3层,地下2层
层高:1F3.6米;2F-3F3.3米;地下约5米(挑高)
花园面积:约102-120㎡(赠送)
容积率:约1.27
交付时间:2026年底

地上面积:843.62㎡
地下面积:561㎡
花园面积:132㎡
南向面宽:约16.6m
露台面积:约72㎡
报价:3.39亿

【中海·恒昌玖里】售楼处电话:400-8377-020
168号基础信息
层数:地上3层,地下2层
层高:1F3.6米;2F-3F3.3米;地下约5米(挑高)
花园面积:约102-120㎡(赠送)
容积率:约1.27
交付时间:2026年底

地上面积:811.14㎡
地下面积:615㎡
花园面积:114㎡
南向面宽:约16.6m
露台面积:约72㎡
报价:3.41亿
项目实景


【中海·恒昌玖里】售楼处电话:400-8377-020

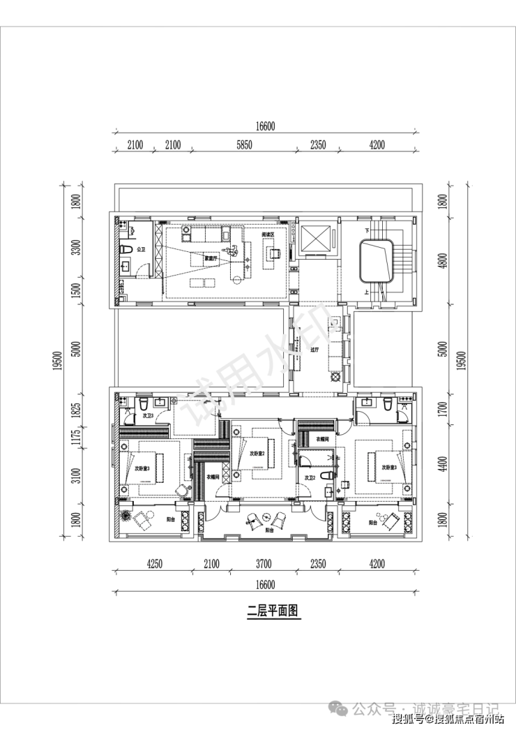
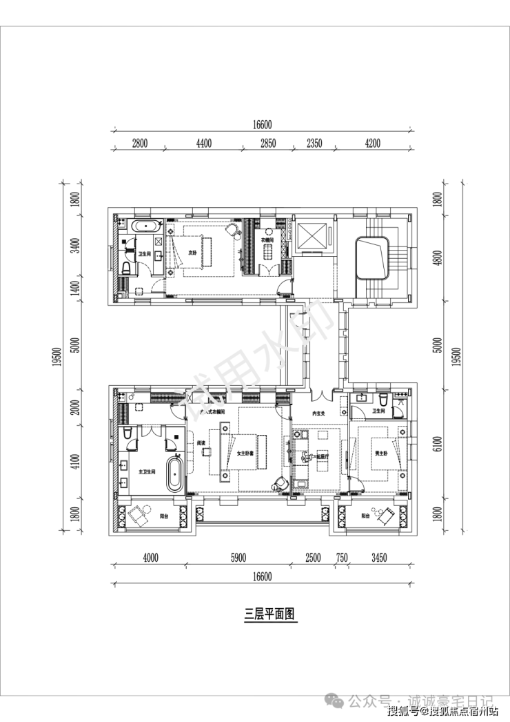
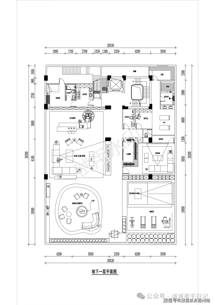
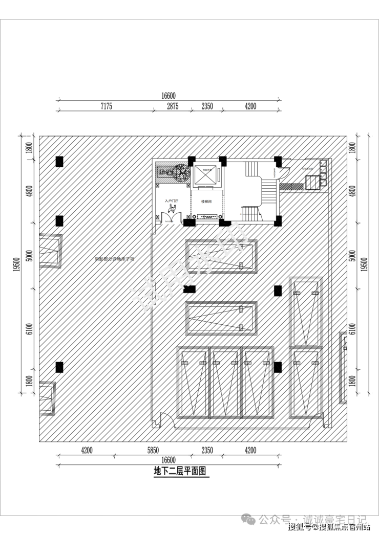
户型图
该户型位于新天地纯低密别墅地块;
采用新工艺纯钢结构,房型结构模糊化,可塑性强,7-8房无压力;
拥有建国东路独立门牌号,稀缺性、独特性突出。




【中海·恒昌玖里】售楼处电话:400-8377-020


前期样板间实景















【中海·恒昌玖里】售楼处电话:400-8377-020








【中海·恒昌玖里】售楼处电话:400-8377-020

中海顺昌玖里&恒昌玖里区位图

材质方面,中海顺昌玖里风貌别墅以砖、石为主材。
项目严格测量原地块内建筑的砖块尺寸,保证大多数砖都与百年前的砖块尺寸一致。同时通过现代建筑科技,研发出了一套专业的排砖系统,让砖墙的颜色排序更加符合现代审美。

如果说砖赋予生活烟火气,那石材的应用则让中海顺昌玖里拥有了历久弥新的质感。

风貌别墅的美不止于材料的不同,更体现在建筑艺术的呈现上。
石雕艺术是建筑艺术的典型代表。顺昌玖里在研究了大量的历史文献,并实地走访了众多老上海里弄建筑遗存后,选用“中国传统纹样、西方古典主义风格、西方Art-Deco风格”三大类雕花设计风格。
在窗下装饰、建筑栏杆、烟囱、风帽等细节的打造中,项目团队同样秉承“以传承开启新的传承”的理念,在汲取传统设计精华与亮点的同时,通过对细节的再造与升级,让其带来更为长久的舒适。



综合来看,对于热爱海派文化,向往石库门居住体验的Old money买家来说,中海顺昌玖里确实具备极强的吸引力!
社区景观:


中海建国东路的69和70街坊历史风貌保护及城市更新项目,顺昌玖里源自两个地块的中轴道百年老街“顺昌路”, 恒昌玖里则来自69街坊保留历史建筑“恒昌里”。这样的命名选择,传达了中海在历史风貌保护及城市更新项目中,对城脉与文脉的传承。

中海·顺昌玖里和中海·恒昌玖里在“以传承开启新的传承”的理念指导下,致力于让风貌与繁茂并存,成为记忆中的烟火乡愁;让城市的历史遗产,成为公众的文化资产;让印刻时代的建筑得以存续,成为可阅读的漫步街区。
城市更新不是简单的“推倒重来”,要让城市的空间留住城市的温度,中海·顺昌玖里和中海·恒昌玖里,将为上海中心城区注入新的活力。

【中海·恒昌玖里】售楼处电话:400-8377-020
值得一提的是,该板块是真正的上海中心,周边 四条地铁线路加持,分别是 8号线、9号线、10号线和13号线,共有四个站点,可到达各个区域。

实景图 实景图 实景图





【中海·恒昌玖里】售楼处电话:400-8377-020
上海风貌豪宅重头戏
黄浦区新天地城央烫金地段
【中海·恒昌玖里】
建面约811-843㎡传世大宅
总价约3.39亿-3.41亿
样板房开放中