华润外滩瑞府(售楼处)官方网站-华润外滩瑞府销售中心(营销中心)-华润外滩瑞府楼盘欢迎您-小区环境-户型-价格-地址-楼盘详情-周边配套-售楼处电话-交房时间
扫描到手机,新闻随时看
扫一扫,用手机看文章
更加方便分享给朋友
上海「外滩瑞府」售楼处电话:400-833-6309(官方售楼处电话)
华润外滩瑞府售楼处话☎:400-833-6309(预约看房热线)
地段是上海豪宅和顶豪的分野。
2000万级可以看作豪宅门槛线,随着近两年大量豪宅蜂拥入市,上海豪宅的板块也变得越来越泛,两只手都不够数。
但把标准提高到能够代表上海城市封面的顶豪板块,则只有外滩、新天地、陆家嘴,至少5000万起步!
网络图,仅供参考
眼下上海外滩板块,坐落于外滩-陆家嘴-北外滩世界级黄金三角的「外滩瑞府」二期正在认购!146席建面约124-330m²3-4房,过会均价14.83万/m²!
华润外滩瑞府售楼处电话☎:400-833-6309效果图,仅供参考
「外滩瑞府」是华润置地上海首座“瑞系”顶序作品,它位处上海城市封面的外滩“15分钟生活圈“内,至外白渡桥直线距离只有约一公里。这次在上海最顶的地段,做出了个低门槛,高宜居属性,采光、视野双满级的产品,上海的豪宅市场要为之疯狂了!
效果图,仅供参考
华润外滩瑞府售楼处电话☎:400-833-6309
华润外滩瑞府售楼处电话☎:400-833-6309
项目效果图如下:
「外滩瑞府」二期明天开盘!
华润外滩瑞府售楼处电话☎:400-833-6309
146席建面约124-330m²3-4房
过会均价14.83万/m²
外滩一公里,对望世界级黄金三角
恒贵城市封面天赐良机
华润外滩瑞府售楼处电话☎:400-833-6309
进入“华润外滩瑞府”官方预约咨询通道
案场销售会第一时间与您联系
01
以中产豪宅的价格,越级上海城市封面的珍稀机会
外滩是上海的城市封面,周围“十五分钟生活圈“的豪宅新盘门槛6000万起步
比如金陵华庭,步行到外滩约1公里,和「外滩瑞府」到外白渡桥距离相近,单价直奔19万元/㎡。
同在外滩“生活圈“,「外滩瑞府」合理的市场价值至少在17万元/㎡以上,但项目二期均价仅14.83万/m²。华润外滩瑞府售楼处电话☎:400-833-6309
示意图,仅供参考华润外滩瑞府售楼处电话☎:400-833-6309
当今上海市区豪宅价格一路上涨。
眼下内中环间的徐汇滨江,龙华等板块已经开始冲击20万的单价;传统的中产板块大宁、瑞虹也纷纷卖到16、7万。
对比之下,「外滩瑞府」首开价格可以算“倒车接人“。
示意图,仅供参考华润外滩瑞府售楼处电话☎:400-833-6309
今年六批次土拍,绿城竞得北外滩新宅地,溢价率超过46%,未来售价预计突破20万元,它的位置就在「外滩瑞府」东侧约1KM。
这意味着,「外滩瑞府」的价格洼地转瞬即逝,很快就会被填平。
示意图,仅供参考华润外滩瑞府售楼处电话☎:400-833-6309
华润外滩瑞府售楼处电话☎:400-833-6309家人们,在这样的位置能有一个低总价的红包盘是非常难得的,必将被疯抢。
在这样的市场背景下,「外滩瑞府」可以说是以超具性价比的价位段,越级买入城市封面地段的难得机会,此时若是犹豫,很可能就再也没机会了。
华润外滩瑞府售楼处电话☎:400-833-6309
02
住进上海城市封面,坐拥醇熟顶级配套
买房看的是地段,除了地段还是地段。
用一张航拍图,可以清楚地看到项目位处在上海城市封面的顶尖地段。
距离外滩的地标外白渡桥、外滩源直线约一公里
外滩是上海海派文明的起点,百余年来一直作为上海的象征出现在世人面前,万国博览建筑群是上海过去百年繁荣的见证。华润外滩瑞府售楼处电话☎:400-833-6309
网络图,仅供参考华润外滩瑞府售楼处电话☎:400-833-6309
距离北外滩的“世界会客厅”直线约一公里
这里正以惊人速度崛起,超840万方开发体量、约480米新地标,已吸引2100+金融机构、4500+航运企业,是上海未来站在世界舞台上的门面。
网络图,仅供参考华润外滩瑞府售楼处电话☎:400-833-6309
距离陆家嘴直线1.7公里,更是成熟已久的上海价值封面,项目只需开车约1公里即可进入新建路隧道直达陆家嘴。
网络图,仅供参考华润外滩瑞府售楼处电话☎:400-833-6309
地段决定价值,价值决定房价。这是一个位处外滩+北外滩+陆家嘴“黄金三角“叠加的区域,当之无愧的上海城市封面
示意图,仅供参考华润外滩瑞府售楼处电话☎:400-833-6309
买在这里,周边一线配套资源直接满级。
逛街购物,这里除了拥有上海顶级City walk路线,1公里内步行可达苏河湾万象天地、白玉兰广场,坐享黄金三角的醇熟商业资源,满足高阶生活所需一切。
网络图,仅供参考
华润外滩瑞府售楼处电话☎:400-833-6309「外滩瑞府」隔壁的“音乐谷“城市更新区域,是上海十大城市更新重要单元之一,和黄浦外滩、老城厢同级。未来这里将打造成“东方百老汇”,成为上海最in的文艺潮流地标。
示意图,仅供参考华润外滩瑞府售楼处电话☎:400-833-6309
环绕在它周围3公里的,也都是外滩、新天地、陆家嘴、北外滩这些顶流商圈。
示意图,仅供参考华润外滩瑞府售楼处电话☎:400-833-6309
交通方面,它直线距离10号线四川北路站仅350米,2站南京东路,5站新天地,周边还有3/4/19号线(在建)轨交网络。
自驾可经外滩隧道直抵外滩,新建路隧道速达陆家嘴CBD,规划中的南北通道重构城市纵向动脉,北横通道与延安高架形成十字骨架,直达虹桥枢纽与世纪公园。
示意图,仅供参考
另外,医疗上有上海市第一人民医院(三甲)为健康保驾护航,教育也是整个上海的高地。华润外滩瑞府售楼处电话☎:400-833-6309
买在这里,上海最醇熟的重磅资源尽在手中。
03
华润置地顶级产品线,极致审美与极致功能的完美融合
华润置地在上海的口碑一向很好,哪怕这两年限价情况下,华润置地出品仍然是品质的保证,这也自然博得了客户的青睐——
悦系的新杨思翡雲悦府,是今年上半年冠军,触发上半年最高积分,并且4开4罄;华润外滩瑞府售楼处电话☎:400-833-6309
润系的南大中环置地中心润府,连续12次开盘12次卖爆,达成销售破2000套的里程碑节点,打破了上海楼市的历史纪录;
南翔的时代之城,12开12捷,包揽上海外环成交面积、套数、金额“三冠王”,荣登全市成交套数TOP1宝座……
这一次,「外滩瑞府」是华润置地顶级产品线——瑞系在上海首作。
华润置地邀请了具备丰富豪宅设计经验和国际化视野的国内外设计团队,建筑设计由GOA大象设计操刀,社交公区由渡边智昭亲自锻造,室内设计则由W.DESIGN无间设计(吴滨团队)和李益中打造。
这个大师天团给项目带来了极致的审美和极致的功能设计。
示意图,仅供参考华润外滩瑞府售楼处电话☎:400-833-6309
建筑立面,采用“风貌→幕墙→冠冕”过渡式向上生长设计。
基座以石库门建筑将基地四周包裹成风貌街区,托举出地块内核的高层。
效果图,仅供参考华润外滩瑞府售楼处电话☎:400-833-6309
自下而上,它的风貌基座、高区、冠冕依次是配以砖石,铝板,玻璃这样的丰富材质,完成了从传统到现代的过渡,营造出融合的建筑语言。
效果图,仅供参考华润外滩瑞府售楼处电话☎:400-833-6309
景观方面,「外滩瑞府」通过建筑楼体的偏转,形成了围合式的景观布局。由此,项目做出了约3000㎡尺度宏大,连续贯穿的核心中央花园,并利用楼栋布局与边界形成夹角,自然衍生出6个小型花园组团。
效果图,仅供参考华润外滩瑞府售楼处电话☎:400-833-6309
项目还将印象派艺术融⼊生活,将莫奈的《睡莲》、雷诺阿的《花园里的女人》这样的印象派画作融入景观了理念中,打造出多主题的印象派花园。
效果图,仅供参考华润外滩瑞府售楼处电话☎:400-833-6309
最后以轻松明快的色彩搭配,呈现出致美的松弛感。
效果图,仅供参考华润外滩瑞府售楼处电话☎:400-833-6309
公区方面,项目做了一个足足了约50米宽的风貌气质门头,仪式感直接拉满。
效果图,仅供参考华润外滩瑞府售楼处电话☎:400-833-6309
进入之后,通过酒店式入户大堂衔接艺术感极强的全域风雨连廊归家。
效果图,仅供参考
华润外滩瑞府售楼处电话☎:400-833-6309这条连廊不仅是遮风避雨的通道,其下方架空层更被打造为一座与花园景观交融的“线性美术馆”。从优雅的拱形吊顶到考究的廊柱细节,让归家动线成为穿梭时空的艺术之旅华润外滩瑞府售楼处电话☎:400-833-6309。
效果图,仅供参考华润外滩瑞府售楼处电话☎:400-833-6309
每栋架空层的主题也各不相同,规划了沙龙社交空间、运动休闲空间、童玩空间、会客厅,以及地下泳池会所。
效果图,仅供参考
风貌底盘+酒店式大堂+全域风雨连廊+架空层泛会所+艺术长廊+地下泳池会所,共同构成了“瑞系“的顶豪语序。
户型方面,项目前期户型就能看出华润外滩瑞府售楼处电话☎:400-833-6309华润外滩瑞府售楼处电话☎:400-833-6309打造了极致产品力。所有卧室全部超越3米面宽,多个270°转角飘窗……让项目样板间一开就收获无数好评,参观的客户也是络绎不绝。
124㎡三房户型
户型图为过程稿,以开发商发布为准
三开间朝南,南北通透,全明户型。
客厅、餐厅、厨房、阳台全贯通的LDKB空间将空间尺度感最大化。
“S”墙收纳提升了空间利用率,并且实现了墙面的平整美观。
室内5个飘窗延伸空间。华润外滩瑞府售楼处电话☎:400-833-6309
市面上120㎡级户型普遍至少一个卧室面宽不足3米,舒适度欠佳,这几乎成为默认的惯例。这个户型卧室面宽均超过3米,这是对“好房子“标准的真诚回应。
三个卧室各有特色,主卧为套房设计;南次卧可灵活改造成卧室、开放式书房、客厅延伸区的三重X空间;北次卧无墙垛设计,几乎一整面都是窗,采光、通风都实现了最大化。
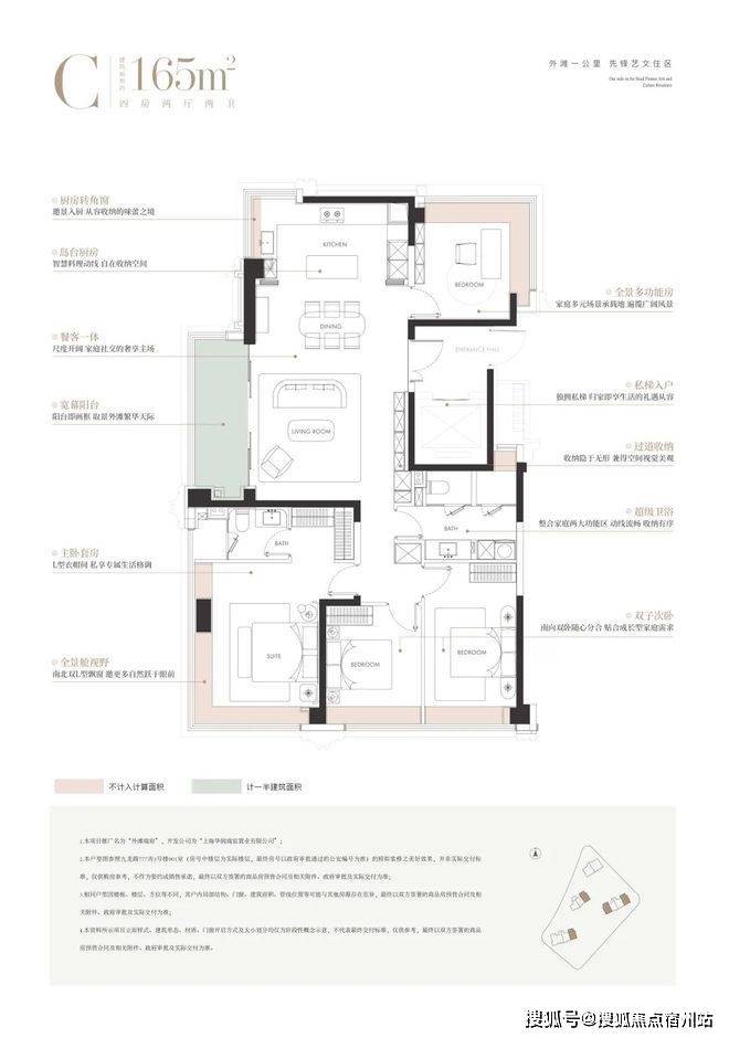
165㎡四房户型
户型图为过程稿,以开发商发布为准华润外滩瑞府售楼处电话☎:400-833-6309
大横厅尺度感奢阔,尊享私梯入户,隐私性满分!
三卧朝南,老人、小孩均可享受南向采光;主卧、北向次卧、厨房都有270°转角飘窗,中高区主卧可以看到陆家嘴三件套与浦西第一高楼(在建中)。
次卫创新采用四分离设计,淋浴区+马桶区+台盆区+家政区,功能实现独立分隔,相当人性化。华润外滩瑞府售楼处电话☎:400-833-6309
内装方面,选用了标识性极强的香奈儿高定风,简约的黑白色调、搭配加州灰奢材,将高级定制理念注入每一寸空间。
样板房实拍,仅供参考华润外滩瑞府售楼处电话☎:400-833-6309
主卧背景墙采用编织皮革工艺,既保留了皮革的挺括质感,又增添了柔软触感,成为空间中独特的视觉元素。
样板房实拍,仅供参考华润外滩瑞府售楼处电话☎:400-833-6309
主卫地面采用威尼斯白与奥兰灰石材拼花,两种石材的纹理自然交错,让人仿佛置身于上海外滩的经典建筑之中。
样板房实拍,仅供参考
可以说,每一处材质的选择都兼顾了美感与实用性,高级感十足。
项目的收纳系统也做得让人叹为观止。以124户型举例,步入玄关,就有约6米长的交付空间装得下生活的所有琐碎。
样板房实拍,仅供参考
华润外滩瑞府售楼处电话☎:400-833-6309厨房采用博洛尼整体橱柜(或同等品牌),利用转角空间、钻石台面及下拉式拉篮等设计,配合可按压开柜、反光镜等巧思,大幅提升空间利用率与取物便利性华润外滩瑞府售楼处电话☎:400-833-6309。

样板房实拍,仅供参考
公卫还有全尺寸衣帽收纳空间以及配备洗烘套装的家政间,共同构成了一个高效、便捷的收纳体系。华润外滩瑞府售楼处电话☎:400-833-6309

样板房实拍,仅供参考华润外滩瑞府售楼处电话☎:400-833-6309
项目的隐蔽工程也让人眼前一亮,
厨房排烟系统通过嘉格纳大风量油烟机、大金空调双重滤网及中央排烟系统三重保障,解决油烟困扰。
医用级316L不锈钢水管与怡口/滨特尔净软水四件套,确保水质纯净安全;搭配AO史密斯一级能效热水器,实现零冷水、静音运行与防腐耐用。
照明采用Ra≥90显色指数灯具与灯带,还原食材本色;
静音设计涵盖低噪厨电、同层排水、缓冲阻尼及中央排烟降噪技术,营造安静烹饪环境。华润外滩瑞府售楼处电话☎:400-833-6309
安全方面配备燃气泄漏、水浸、烟雾三重报警及自动关阀功能,结合熄火保护与圆角台面、阻尼柜门等人性化设计,全方位守护家庭安全。
其他如全屋智能采用华为AI系统、无感通行系统等的产品亮点还有很多......
华润外滩瑞府售楼处电话☎:400-833-6309
总之,这是一个非常有诚意且有鲜明气质的豪宅产品,值得亲自到现场去感受更多的匠心细节。
「外滩瑞府」二期明天开盘!
华润外滩瑞府售楼处电话☎:400-833-6309
146席建面约124-330m²3-4房
过会均价14.83万/m²
外滩一公里,对望世界级黄金三角
恒贵城市封面天赐良机
对本项目感兴趣的朋友进入官方报名通道预约咨询、参观
上海「外滩瑞府」售楼处电话:400-833-6309(官方售楼处电话)
华润外滩瑞府售楼处电话☎:400-833-6309(预约看房热线)
地段是上海豪宅和顶豪的分野。
2000万级可以看作豪宅门槛线,随着近两年大量豪宅蜂拥入市,上海豪宅的板块也变得越来越泛,两只手都不够数。
但把标准提高到能够代表上海城市封面的顶豪板块,则只有外滩、新天地、陆家嘴,至少5000万起步!
网络图,仅供参考
眼下上海外滩板块,坐落于外滩-陆家嘴-北外滩世界级黄金三角的「外滩瑞府」二期正在认购!146席建面约124-330m²3-4房,过会均价14.83万/m²!
华润外滩瑞府售楼处电话☎:400-833-6309效果图,仅供参考
「外滩瑞府」是华润置地上海首座“瑞系”顶序作品,它位处上海城市封面的外滩“15分钟生活圈“内,至外白渡桥直线距离只有约一公里。这次在上海最顶的地段,做出了个低门槛,高宜居属性,采光、视野双满级的产品,上海的豪宅市场要为之疯狂了!
效果图,仅供参考
华润外滩瑞府售楼处电话☎:400-833-6309
华润外滩瑞府售楼处电话☎:400-833-6309
项目效果图如下:
「外滩瑞府」二期明天开盘!华润外滩瑞府售楼处电话☎:400-833-6309
146席建面约124-330m²3-4房
过会均价14.83万/m²
外滩一公里,对望世界级黄金三角
恒贵城市封面天赐良机
华润外滩瑞府售楼处电话☎:400-833-6309
进入“华润外滩瑞府”官方预约咨询通道
案场销售会第一时间与您联系
01
以中产豪宅的价格,越级上海城市封面的珍稀机会
外滩是上海的城市封面,周围“十五分钟生活圈“的豪宅新盘门槛6000万起步。
比如金陵华庭,步行到外滩约1公里,和「外滩瑞府」到外白渡桥距离相近,单价直奔19万元/㎡。
同在外滩“生活圈“,「外滩瑞府」合理的市场价值至少在17万元/㎡以上,但项目二期均价仅14.83万/m²。华润外滩瑞府售楼处电话☎:400-833-6309
示意图,仅供参考华润外滩瑞府售楼处电话☎:400-833-6309
当今上海市区豪宅价格一路上涨。
眼下内中环间的徐汇滨江,龙华等板块已经开始冲击20万的单价;传统的中产板块大宁、瑞虹也纷纷卖到16、7万。
对比之下,「外滩瑞府」首开价格可以算“倒车接人“。
示意图,仅供参考华润外滩瑞府售楼处电话☎:400-833-6309
今年六批次土拍,绿城竞得北外滩新宅地,溢价率超过46%,未来售价预计突破20万元,它的位置就在「外滩瑞府」东侧约1KM。
这意味着,「外滩瑞府」的价格洼地转瞬即逝,很快就会被填平。
示意图,仅供参考华润外滩瑞府售楼处电话☎:400-833-6309
华润外滩瑞府售楼处电话☎:400-833-6309家人们,在这样的位置能有一个低总价的红包盘是非常难得的,必将被疯抢。
在这样的市场背景下,「外滩瑞府」可以说是以超具性价比的价位段,越级买入城市封面地段的难得机会,此时若是犹豫,很可能就再也没机会了。
华润外滩瑞府售楼处电话☎:400-833-6309
02
住进上海城市封面,坐拥醇熟顶级配套
买房看的是地段,除了地段还是地段。
用一张航拍图,可以清楚地看到项目位处在上海城市封面的顶尖地段。
距离外滩的地标外白渡桥、外滩源直线约一公里。
外滩是上海海派文明的起点,百余年来一直作为上海的象征出现在世人面前,万国博览建筑群是上海过去百年繁荣的见证。华润外滩瑞府售楼处电话☎:400-833-6309
网络图,仅供参考华润外滩瑞府售楼处电话☎:400-833-6309
距离北外滩的“世界会客厅”直线约一公里。
这里正以惊人速度崛起,超840万方开发体量、约480米新地标,已吸引2100+金融机构、4500+航运企业,是上海未来站在世界舞台上的门面。
网络图,仅供参考华润外滩瑞府售楼处电话☎:400-833-6309
声明:本文由入驻焦点开放平台的作者撰写,除焦点官方账号外,观点仅代表作者本人,不代表焦点立场。
