外滩瑞府售楼处电话:400-833-6309【预约☎】 案场预约制 看房需提前来电预约登记 请务必致电与销售确认时间,仅预约客户可进入销售现场,避免空跑,感谢您的支持。
自外滩瑞府首批作品以“现象级”姿态完美售罄,于百年外滩之上,外滩瑞府再次带来超越想象的全新传世大宅新作。这不仅是一场产品的迭代,更是一次时代的开启——外滩,正式进入瑞府时刻。
上海-外滩瑞府售楼处电话:400-833-6309【预约☎】
案场预约制 看房需提前来电预约登记
请务必致电与销售确认时间,仅预约客户可进入销售现场,避免空跑,感谢您的支持。

外滩瑞府售楼处电话:400-833-6309【预约☎】
外滩瑞府二批次新品已正式过会,楼王1#无界大宅与3#天际光邸传世而来,一个更宏大、更精粹的顶奢生活想象,正问世外滩,也正式宣告:外滩的封面,由此进入瑞府所定义的时代。
进入官方报名通道,直接预约
专业销售一对一咨询
Part1 |外滩的共识 也是世界豪宅圈的共识
“瑞府时刻”的到来,并非一蹴而就,而是建立在坚实无比的市场验证之上。首开即罄所创造的,不仅创造了惊人的“外滩红盘速度”,更重要的是,它凝聚了一种基于绝对产品自信的“外滩共识”外滩瑞府售楼处电话:400-833-6309【预约☎】。

外滩瑞府售楼处电话:400-833-6309【预约☎】
首批119套房源,在短短时间内悉数售罄,去化率100%,劲销24.8亿,以无可争议的实力,加冕“上海内环2025现象级红盘”。首开即罄的斐然成绩,背后是华润置地顶序“瑞系”产品力与外滩精神的深度共鸣,更是塔尖人群对稀缺土地、传世资产的一致选择。这一刻,外滩正式进入:一个由产品力重新定义顶奢的瑞府时代。
Part2 | 二批次1# 无界大宅以无界塔尖范本筑立传世奢邸封面
以无界大宅为核心,1#楼王同步推出建面约195-330㎡顶奢豪宅藏品,将外滩的居住想象推向新高度。从艺文底盘到空间细节,每一处设计都在重构顶豪的价值标准,也标志着:外滩的居住标准,进入瑞府所引领的无界时代。

传世「大宅」—— 外滩世家之邸 家族精神的空间之域
无界大宅绝非尺度的简单堆砌,其核心竞争力在于以“空间功能、材质美学、身心体验” 的三维进阶
「外滩无界大宅」“四大核心” 打造家族尊崇主场
当奢材定制与奢适系统筑牢了大宅的质感基底,约240㎡无界大宅更在空间功能上突破 “尺度” 的局限,重新定义每处空间的使命 —— 将“权力礼序、社交影响力、私域尊崇、代际包容” 四大核心,融入空间肌理,让这里成为承载家族秩序、情感与传承的 “尊贵主场”外滩瑞府售楼处电话:400-833-6309【预约☎】。

外滩瑞府售楼处电话:400-833-6309【预约☎】
① 权力的语法:殿堂归家礼序
同尺度豪宅罕有的双开门,复刻官邸般恢弘。 推开门是“独立房间级”的超级玄关厅,设计取源“欧洲凡尔赛宫 76 米长的镜厅”,其本质就是古西方权利阶层的“超级玄关”,以不凡尺度加持世家家族的品味。
外滩瑞府售楼处电话:400-833-6309【预约☎】

外滩瑞府售楼处电话:400-833-6309【预约☎】
② 影响力的剧场:外滩“世家会客厅”
约240㎡客厅,成为家族迎来送往的“私人会所”。 连通北向次卧形成近90㎡的LDKGT超级厅堂,无论是商务伙伴的远见卓识,还是家族挚友的午后闲谈,都在此从容承载。
外滩瑞府售楼处电话:400-833-6309【预约☎】

外滩瑞府售楼处电话:400-833-6309【预约☎】
③ 自我的王国:宫殿式私密领地
“庭院深深深几许”,李清照的词在千年后有了全新注解——“深五许”。 无界大宅的主卧以五进制格局层层递进,步步深入如同走进一座为主人定制的“迷你宫殿”

外滩瑞府售楼处电话:400-833-6309【预约☎】
④ 私享的尊重:代际的独立分区
家业奢邸的传承,在于对主人和传承人权利的尊重。 以“南北双组团”,划分“主人起居社交组团”与“家庭成员组团”。“不挤压、不疏离”的大宅格局,灵活适配家族生命周期的变化让大宅成为凝聚家族的空间纽带。

奢材&高定 全维升级 “权力空间” 的奢感
奢材的遴选,是对“权力美学”的深度呼应:玄关处白雪公主玉石,以通透莹润的肌理,像月光倾泻般铺就外滩私邸 “入门即尊荣” 的隐喻;祥云灰水墨岩延展地面的流动诗意,与外滩华尔道夫同源共生;而最为珍稀的,当属主卧背景墙上威尼斯安缦级树瘤木与巴黎宝格丽同源羊皮纸的邂逅——两种天然文明在此对话,营造出一种可被触摸、被感知的官邸奢感。

健康+智能+收纳 让豪宅的奢适落地为 “实用级”
约240㎡无界大宅从不是冰冷的奢美容器,而是能滋养身心的 “生活能量场”构建深入肌理的 “身心奢适系统”,让健康、智能与收纳,成为豪宅的日常底色。
健康安适:从入口直饮水,到晨起洗漱的温水,四重净软水系统早已滤去杂质;厨房更藏着“无烟” 的巧思,嘉格纳油烟机、大金空调与中央排烟系统三重联动,打造立体净化矩阵。当烹饪油烟被悄然化解,厨房便成为家族情感交融的纯净圣域外滩瑞府售楼处电话:400-833-6309【预约☎】。
智能无感:华为AI全链路加密系统,2900+品牌生态融合,从人脸识别无感通行到APP远程操控,让科技成为生活的隐形管家。创就“返璞归真”的操作模式,让超前科技化为如影随形的自在。
收纳艺术:中西厨以嘉格纳9 件套适配烹饪需求,博洛尼橱柜拉篮、调味架让厨具各归其位;玄关柜分区、独立家政间等「PRO级全屋收纳」,居住摆脱繁琐,把重心聚焦自我的松弛、和家庭社交之中。 全球「大家」—— 外滩百年传承的尊崇私邸
全球大师联袂外滩再立「顶奢设计新标杆」
从十九世纪的万国建筑博览,到二十一世纪的文化资本高地,外滩始终以先锋姿态引领着世界风向。外滩瑞府自然也要承载"不跟随流行,只创造引领流行"的使命,联袂goa大象设计、TROP景观、渡边智昭、李益中、吴滨全球大师团队,打造一座在世界范围内引领潮流、百年后依然流行的传世居所。
外滩瑞府售楼处电话:400-833-6309【预约☎】

外滩瑞府售楼处电话:400-833-6309【预约☎】
约240㎡无界大宅,由全球知名室内设计师吴滨先生执笔。以标志性"摩登东方"设计哲学,将东方内敛神韵与西方简约笔触完美融合,这正是外滩瑞府定义"传世大宅"的核心所在:超越中西、跨越百年的美学永恒。

外滩豪宅史上前所未见的“全域艺术场域”
建筑与风貌共生、花园与艺术共生、社交与美学共生,外滩瑞府于大宅之外打造“全域艺术场域”。
①海派新颜 再筑「外滩天际明珠」
从虹口港畔到黄浦江岸,百年风貌在此绵延簇拥,而外滩瑞府正是这条黄金风貌带上最亮眼的明珠。携手政府 打造约7000㎡「艺术邻里新弄堂」沉浸式风貌街区,未来这里将融党群服务、便民综合体于一体,打造下个“安福路级” 文化地标。

外滩瑞府售楼处电话:400-833-6309【预约☎】
建筑立面是明珠的夺目内核, 「海派王权基座」复刻石库门的经典拱券,以风华致敬世界权利人物; 中部「卢浮宫流光之幕」设计参照卢浮宫金字塔,以利落现代线条与大面积玻璃,照映百年外滩进取精神; 顶部为约240㎡所在楼特有的「外滩百老汇之冠」,勾勒世界崭新的天际线。
外滩瑞府售楼处电话:400-833-6309【预约☎】

外滩瑞府售楼处电话:400-833-6309【预约☎】
②取景印象画作 造「世界级圣殿花园」
外滩瑞府沿袭莫奈花园的松弛浪漫精髓, 邀国际大师Pok Kobkongsanti从印象派艺术汲取灵感,风雨连廊串联起六大花园。坐拥约3200㎡的中央花园盛景,更近享主题花园——塔贝尔花园,打造自然无界共生的“会友新天地”;“夜色梵高星空”交织水苑秘境;“莫奈梦幻水湾”临水架立小桥,成为驻足凝视的“画框”。出入其间,皆成穿行于艺术的旅程。
外滩瑞府售楼处电话:400-833-6309【预约☎】

外滩瑞府售楼处电话:400-833-6309【预约☎】③「家 的会客领地」 际会世界塔尖名流
约240㎡无界大宅漫步而下,从容抵达约3000㎡的私属高奢圈层
当私宴启幕,独立接待室化为包厢;当商务会客,与合作伙伴漫品咖啡的醇香;艺术独立Gallery,成为「私人藏品艺廊」;小型图书馆复刻法国文艺气息,宛若身处巴黎左岸的莎士比亚书店,在静谧间思想碰撞。
外滩瑞府售楼处电话:400-833-6309【预约☎】

外滩瑞府售楼处电话:400-833-6309【预约☎】

外滩瑞府售楼处电话:400-833-6309【预约☎】
地上地下双重礼序重构外滩艺术归家的至高标准
艺术与礼序交织,外滩瑞府以双重沉浸式归家体验,将自然之美、馆藏之韵与圈层之雅融入每一步归途。
①地上・艺术馆藏归家
从九龙路起步,在繁花水岸的滨水步道上漫步归家;归家之路在滨水艺境另一侧,是 约7000㎡的沉浸式邻里风貌街区,融合党群服务与邻里综合体业态,可在归家路途中感受精致烟火气;之后抵达九龙路归家主入口的河岸艺术大堂,两条地上细分动线,藏着不同的归家意趣:一条从主入口艺术大堂步入,沿着风雨连廊穿越花园小径,光影透过叶片洒落脚边,风携花香漫过肩头,仿佛逛完一场印象艺术展;另一条则经 风雨连廊直抵“艺术品展列空间”泛会所,或许邂逅正在展出的私人藏品,在艺术氛围中完成圈层身份的过渡。最后步入电梯厅,半圆弧形天花吊顶暗合“天圆地方” 东方哲学,让归家终拾恢弘而宁静的仪式感。


②地下·殿堂星光归家
从哈尔滨路缓缓驶入,演绎 四重殿堂星光级地下归家,首先映入眼帘的是「光阶尊礼车道」,随之而来的是「隽美天幕玄关」,慢行间车停于「超跑级T台车道」,仿佛置身于私人的尊驾秀场;最终抵达「流光入口门庭」,光影流转间,归心于瑞。
外滩瑞府售楼处电话:400-833-6309【预约☎】

外滩瑞府售楼处电话:400-833-6309【预约☎】

外滩瑞府售楼处电话:400-833-6309【预约☎】

塔尖「大业」—— 汇聚塔尖家族的精神领地
外滩瑞府的“大业” 核心价值,通过 “圈层精神共鸣、全球资源主动匹配、万象权益无界延伸” 的三维联动,将居住与塔尖家族的事业传承、生活品质、社交需求深度绑定 ,最终让 “大业” 成为支撑家族长远发展的隐形基石,这也是其超越普通顶豪服务逻辑的关键。外滩瑞府售楼处电话:400-833-6309【预约☎】

外滩瑞府售楼处电话:400-833-6309【预约☎】
升级管家式服务,无界链接的「全球资源枢纽」
为匹配塔尖人物的需求,继“礼仕服务体系”精髓价值,提供超越想象的专属特权。不仅秉持高效、私密、专属、雅致4S理念,围绕46个服务场景与769项标准,缔造资产、服务与情绪的三重价值。更把 服务聚焦于主动式的资源匹配机制,从安排全球范围内的商业特权和私属体验,为业主匹配符合其身份的顶级资源,提供“一案一议”的定制服务

外滩瑞府售楼处电话:400-833-6309【预约☎】
“人无我有,人有我尊”的无界万象生活体系
依托苏河湾万象生活全球资源,打造“万象挚友无界权益”体系,将社区生活与城市脉动无缝连接,涵盖四大维度:从“万象·瑞享”的商业特权礼遇,到“万象·瑞礼”的全球时令珍礼;从“万象·瑞群”的高端品牌联名圈层活动,到“万象·瑞尊”的米其林星厨上门等星级定制服务。
外滩瑞府售楼处电话:400-833-6309【预约☎】外滩瑞府售楼处电话:400-833-6309【预约☎】

外滩瑞府售楼处电话:400-833-6309【预约☎】
“大宅”是坚实的物理基础,提供了世界级的空间产品与居住体验;“大家”是顶层的审美背书与艺术生活价值,确保了其超越时间的传世属性;而“大业”则是最终的价值升华,通过圈层、服务与资源的整合,为家族的永续发展赋能。
Part3| 3# 天际光邸
全龄进阶外滩顶豪臻稀入场券
在外滩瑞府大尺度的顶豪产品矩阵中,我们同样 为不同需求的远见者,预留了入席外滩的珍藏门槛。
二批次全新推出的3#楼建面约121-161㎡「天际光邸」,并非对标准的妥协,而是 在顶豪基因之上,对空间、功能与生活场景的再一次全维升级。它让更多热爱外滩的人,有机会共享这片土地的荣耀与未来——这是外滩进入瑞府时刻的又一力证: 不止于塔尖,更关乎远见。

外滩瑞府售楼处电话:400-833-6309【预约☎】
超级底盘:全龄共融的生活秘境
3#楼业主,将享有一个更为丰盛、更具体验感的全龄社区底盘。 楼下泛会所「子恺乐园」,是为小业主量身打造的“童梦成长天地”。这里配备了独立的学习房、图书馆,以及如同彩色玻璃盒子般的Play Room,为孩子们提供了一个寓教于乐的成长空间。
外滩瑞府售楼处电话:400-833-6309【预约☎】泛会所 空间更可直接延伸至室外,与“调色盘游乐场”和“自然学堂”无缝衔接,让孩子的童年充满探索与欢笑。同时3#全龄进阶的居住奢享,更体现在为长者 和其他业主规划两大印象水景组团——“莫奈的睡莲水湾”与“海派水廊社交空间”,让全家人都能在潺潺水声与光影变幻中,寻回内心的宁静与诗意。

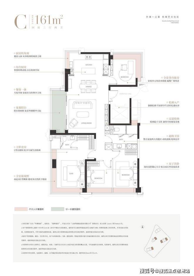
建面约121-161㎡进阶新品:收藏外滩的恒贵资产
建面约124㎡的边厅“全景舱”户型,是外滩板块极致稀缺的臻品。它以三房布局满足主流家庭需求,更以无遮挡的视野与巨幕般的边厅落地窗,将城市天际线化为私藏画卷。主卧270°L型飘窗,让阳光与风景成为生活的主角。

外滩瑞府售楼处电话:400-833-6309【预约☎】
建面约161㎡的奢享四房,则是对改善需求的深刻洞察。其设计更是颠覆性的:全屋四个转角窗构建外滩天际环幕视野,三卧朝南且近乎等面宽的“真四房”设计,实现了家庭成员间的景观平权与舒适平权。酒店式四分离次卫与独立家政空间的设计,更是对生活细节的极致考量。外滩瑞府售楼处电话:400-833-6309【预约☎】
外滩瑞府售楼处电话:400-833-6309【预约☎】

外滩瑞府售楼处电话:400-833-6309【预约☎】
结语
从首开即罄的现象,到传世大宅的封面
外滩瑞府,始终以超越期待的产品力
回应外滩土地的百年荣光
“瑞府时刻”已然降临,二批次全新著品荣耀过会
珍藏门槛,静待入席
进入官方报名通道,直接预约专业销售一对一咨询
外滩瑞府售楼处电话:400-833-6309【预约☎】
自外滩瑞府首批作品以“现象级”姿态完美售罄,于百年外滩之上,外滩瑞府再次带来超越想象的全新传世大宅新作。这不仅是一场产品的迭代,更是一次时代的开启——外滩,正式进入瑞府时刻。
上海-外滩瑞府售楼处电话:400-833-6309【预约☎】案场预约制 看房需提前来电预约登记请务必致电与销售确认时间,仅预约客户可进入销售现场,避免空跑,感谢您的支持。

外滩瑞府售楼处电话:400-833-6309【预约☎】
外滩瑞府二批次新品已正式过会,楼王1#无界大宅与3#天际光邸传世而来,一个更宏大、更精粹的顶奢生活想象,正问世外滩,也正式宣告:外滩的封面,由此进入瑞府所定义的时代。
进入官方报名通道,直接预约专业销售一对一咨询
Part1 |外滩的共识 也是世界豪宅圈的共识
“瑞府时刻”的到来,并非一蹴而就,而是建立在坚实无比的市场验证之上。首开即罄所创造的,不仅创造了惊人的“外滩红盘速度”,更重要的是,它凝聚了一种基于绝对产品自信的“外滩共识”外滩瑞府售楼处电话:400-833-6309【预约☎】。

外滩瑞府售楼处电话:400-833-6309【预约☎】
首批119套房源,在短短时间内悉数售罄,去化率100%,劲销24.8亿,以无可争议的实力,加冕“上海内环2025现象级红盘”。首开即罄的斐然成绩,背后是华润置地顶序“瑞系”产品力与外滩精神的深度共鸣,更是塔尖人群对稀缺土地、传世资产的一致选择。这一刻,外滩正式进入:一个由产品力重新定义顶奢的瑞府时代。
Part2 | 二批次1# 无界大宅以无界塔尖范本筑立传世奢邸封面
以无界大宅为核心,1#楼王同步推出建面约195-330㎡顶奢豪宅藏品,将外滩的居住想象推向新高度。从艺文底盘到空间细节,每一处设计都在重构顶豪的价值标准,也标志着:外滩的居住标准,进入瑞府所引领的无界时代。

传世「大宅」—— 外滩世家之邸 家族精神的空间之域
无界大宅绝非尺度的简单堆砌,其核心竞争力在于以“空间功能、材质美学、身心体验” 的三维进阶
「外滩无界大宅」“四大核心” 打造家族尊崇主场
当奢材定制与奢适系统筑牢了大宅的质感基底,约240㎡无界大宅更在空间功能上突破 “尺度” 的局限,重新定义每处空间的使命 ——将“权力礼序、社交影响力、私域尊崇、代际包容” 四大核心,融入空间肌理,让这里成为承载家族秩序、情感与传承的 “尊贵主场”外滩瑞府售楼处电话:400-833-6309【预约☎】。

外滩瑞府售楼处电话:400-833-6309【预约☎】
① 权力的语法:殿堂归家礼序
同尺度豪宅罕有的双开门,复刻官邸般恢弘。推开门是“独立房间级”的超级玄关厅,设计取源“欧洲凡尔赛宫 76 米长的镜厅”,其本质就是古西方权利阶层的“超级玄关”,以不凡尺度加持世家家族的品味。
外滩瑞府售楼处电话:400-833-6309【预约☎】