上海城市精神
海纳百川 追求卓越
开明睿智 大气谦和
☑️☑️保利世博天悦售楼处电话:400-8377-020☑️☑️
编辑

☑️☑️保利世博天悦售楼处电话:400-8377-020☑️☑️
『保利•世博天悦』
世博滨江100亿地王
(投资90.5亿)
保利官方定位
一线滨江豪宅 28年全球高端作品
现房状态 今年9月份交付
均价16.8万/㎡
建面190㎡-195-400㎡沿江洋房
建面205㎡-239-251㎡平层
样板房 线上预约参观!
☑️☑️保利世博天悦售楼处电话:400-8377-020☑️☑️
编辑

☑️☑️保利世博天悦售楼处电话:400-8377-020☑️☑️
『保利•世博天悦』
☑️☑️保利世博天悦售楼处电话:400-8377-020☑️☑️
仅预约客户可实体参观!
编辑

☑️☑️保利世博天悦售楼处电话:400-8377-020☑️☑️
编辑

☑️☑️保利世博天悦售楼处电话:400-8377-020☑️☑️
上海土地市场,豪宅市场上涨趋势已经是明牌,买进迫在眉睫!新房供应同质化、产品差异化不足,盲目上车风险同样不容忽视!
上海第三次土拍落幕
绿城拍下北蔡地块-
预示中环进入12+时代!
市区宅地彻底杀疯!回首上一次土拍,老静安拍出16.2万新中国单价地王, 预示内环核心即将进入30万+时代!
编辑

☑️☑️保利世博天悦售楼处电话:400-8377-020☑️☑️
具体到总价-
3000万以上豪宅新盘来讲!
初步统计下来:上海核心区总价3000万以上新盘超过90个!黄浦、徐汇、虹口、杨浦、浦东皆有供应!
编辑

☑️☑️保利世博天悦售楼处电话:400-8377-020☑️☑️
大家比较熟悉,徐汇滨江核心!董家渡、北外滩甚至是杨浦滨江,未来都再难有真正的一线滨江宅地供应!
而,保利世博天悦,临江仅约80米!是一线临江中硕果仅存纯宅地,这样地块天赋堪称“绝无仅有”!
编辑

地块位置 如下图所示:
直观来看,是块好地,临江无遮挡!
编辑

☑️☑️保利世博天悦售楼处电话:400-8377-020☑️☑️
编辑

保利世博天悦
容积率2.0-绿化率35%!
西侧沿江布置6栋8层住宅(其中靠世博大道5栋为保留建筑)东侧沿雪野路布置19~22层住宅,形成西低东高两道天际线,最大程度利用江景资源!
编辑

☑️☑️保利世博天悦售楼处电话:400-8377-020☑️☑️
在2024年-
“豪宅大年”异常激烈竞争下!
保利世博天悦,以80亿首开开局!到年末四期,推售洋房基本售罄,紧接着在年前最后一周再度过会!
一路上项目都在稳健热销,最终交出了超150亿答卷!这一成绩位列2024年上海TOP1,也是上海多年来屈指可数超150亿单盘!
编辑

☑️☑️保利世博天悦售楼处电话:400-8377-020☑️☑️
最新消息!
保利世博天悦,离江最近一幢双面瞰江楼栋11#!少量建面191㎡-207㎡三四居室楼王,总价段集中在2800-4500万,直接认购!
编辑

编辑

☑️☑️保利世博天悦售楼处电话:400-8377-020☑️☑️
编辑

编辑

☑️☑️保利世博天悦售楼处电话:400-8377-020☑️☑️
『保利•世博天悦』
☑️☑️保利世博天悦售楼处电话:400-8377-020☑️☑️
仅预约客户可实体参观!
编辑

☑️☑️保利世博天悦售楼处电话:400-8377-020☑️☑️
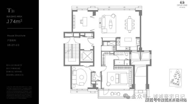
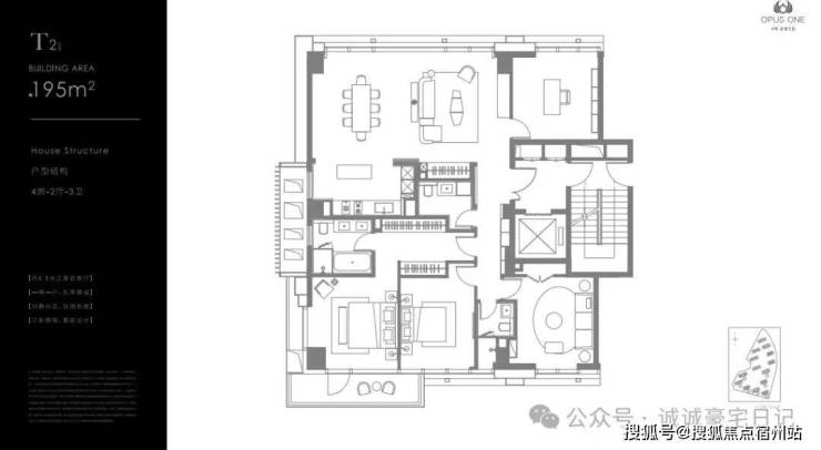
11#户型图如下 :
编辑

编辑

☑️☑️保利世博天悦售楼处电话:400-8377-020☑️☑️
11#价值极为亮眼 :
“滨江更近+大师定制+双面江景”(城市更好的景观+上海更好的产品+产品更好的楼栋) 三位一体,实景准现房!
① 滨江孤品-11#绝版双面江 :
一线滨江+双面江景的项目
在大国文化艺术带上、黄浦江畔再难复制!
② 360°全维度景观视野楼座:北向瞰江/三件套、南向白莲泾公园、西面瞰江/梅奔、东面园区超万平园林景观!
③ 实景呈现、准现房:
11#楼不晚于2025年9月30日交付 !
④ 南向无遮挡,全天采光全区更优
⑤ 15F小高层、一梯一户,约82%的高得房率
⑥ LEED & WELL 双金预认证楼栋
⑦ 全线大师定制:建筑设计大师曾仕乾、园林大师诗加达、室内CCD等!
编辑

☑️☑️保利世博天悦售楼处电话:400-8377-020☑️☑️
保利世博天悦,将往期1号楼,14号楼两幢景观洋房楼王!
上海CAZ内,唯一真正贴江(约80米)8层洋房,建面约174-195㎡3-4房准现房!
高区可看江
中区看陆家嘴三件套-低区赏园!
得房率高达约82-83%!自然也是年末,上海2500万到3500万级高端改善首选,目前还有少量房源直接认购!
编辑

☑️☑️保利世博天悦售楼处电话:400-8377-020☑️☑️
编辑

☑️☑️保利世博天悦售楼处电话:400-8377-020☑️☑️
编辑

☑️☑️保利世博天悦售楼处电话:400-8377-020☑️☑️
2500w可享受190-205平体验奢阔园林生活
3000万以内有机会选到190-205平看江房源
4000万有机会享受240-252平奢阔看江震撼
近日,保利·世博天悦启动VIP预约接待,近8000平方米超大实景体验区,断层领先超级产品力,赢得业内外超级好评!
入住滨江纯粹豪宅点最佳机会,就在 保利·世博天悦!纯改善产品,豪宅属性明确,目标客户也是比较明确针对改善而来!
编辑

编辑

☑️☑️保利世博天悦售楼处电话:400-8377-020☑️☑️
编辑

『保利•世博天悦』
☑️☑️保利世博天悦售楼处电话:400-8377-020☑️☑️
仅预约客户可实体参观!
编辑

☑️☑️保利世博天悦售楼处电话:400-8377-020☑️☑️
往期全套户型图如下:
编辑

☑️☑️保利世博天悦售楼处电话:400-8377-020☑️☑️
编辑

☑️☑️保利世博天悦售楼处电话:400-8377-020☑️☑️
编辑

☑️☑️保利世博天悦售楼处电话:400-8377-020☑️☑️
编辑

☑️☑️保利世博天悦售楼处电话:400-8377-020☑️☑️
编辑

☑️☑️保利世博天悦售楼处电话:400-8377-020☑️☑️
编辑

编辑

☑️☑️保利世博天悦售楼处电话:400-8377-020☑️☑️
『保利•世博天悦』
☑️☑️保利世博天悦售楼处电话:400-8377-020☑️☑️
仅预约客户可实体参观!
编辑

☑️☑️保利世博天悦售楼处电话:400-8377-020☑️☑️
样板间展示如下:
编辑

编辑

☑️☑️保利世博天悦售楼处电话:400-8377-020☑️☑️
编辑

☑️☑️保利世博天悦售楼处电话:400-8377-020☑️☑️
编辑

编辑

☑️☑️保利世博天悦售楼处电话:400-8377-020☑️☑️
编辑

编辑

编辑

☑️☑️保利世博天悦售楼处电话:400-8377-020☑️☑️
具体装标如下:
编辑

☑️☑️保利世博天悦售楼处电话:400-8377-020☑️☑️
☑️☑️保利世博天悦售楼处电话:400-8377-020☑️☑️
仅预约客户可实体参观!
编辑

☑️☑️保利世博天悦售楼处电话:400-8377-020☑️☑️
一房一价表如下 :
编辑

☑️☑️保利世博天悦售楼处电话:400-8377-020☑️☑️
一线滨江实景豪宅
品质看得见!
全上海独一无二, “类幕墙设计”立面!搭配上海首例“开放式铝板设计”,打造黄浦江畔地标新名片!
编辑

☑️☑️保利世博天悦售楼处电话:400-8377-020☑️☑️
实景图
凭借约80米一线江景优势!
将黄浦江,天然水资源引入社区,打造约3000㎡水景!并规划约6万㎡社区景观,力求每一寸土地,都能发挥出最大生态效益和观赏价值!
编辑

☑️☑️保利世博天悦售楼处电话:400-8377-020☑️☑️
而谈及江景
直线距离黄浦江约80米!
保利世博天悦,堪称“江景之王”!从地图来看,项目与汤臣一品和中粮海景壹号等!
顶豪住区享有相同视野与距离,同频一线黄浦江景!
编辑

实景图
项目配备约2600㎡
双首层地下会所-只对小区业主开放!
内部配置25*11m半标恒温泳池,泳池配设 4 条泳道!还有约180㎡私宴厅,酒窖、会客厅及健身房等功能!
编辑

编辑

☑️☑️保利世博天悦售楼处电话:400-8377-020☑️☑️
编辑

实景图
无论你在泳池游泳,还是跑步机上奔跑!抬眼就能欣赏到下沉式庭院四季美景,生活在这里,一切美得像一曲爵士乐!
并在会所中-定制打造了,以“文明之海、时间之轮、永恒之光”为主题艺术品!仿佛置身于一个艺术博览馆,为这座黄浦江畔,超级豪宅注入有趣且独特灵魂!
编辑

☑️☑️保利世博天悦售楼处电话:400-8377-020☑️☑️
编辑

☑️☑️保利世博天悦售楼处电话:400-8377-020☑️☑️
☑️☑️保利世博天悦售楼处电话:400-8377-020☑️☑️
仅预约客户可实体参观!
编辑

☑️☑️保利世博天悦售楼处电话:400-8377-020☑️☑️
现场实景照片:
编辑

编辑

☑️☑️保利世博天悦售楼处电话:400-8377-020☑️☑️
编辑

编辑

☑️☑️保利世博天悦售楼处电话:400-8377-020☑️☑️
作为保利28年-全球最高端作品!
品牌重金邀请 SCDA、诗加达(CICADA)雅布(Yabu Pushelberg)Kelly Hoppen等国际一线大师!联手打造黄浦江核心段,一线滨江国际地标豪宅!
项目近享-世界级滨江艺术带!
上海最大开放式绿地——2平方公里世博文化公园(内含上海大歌剧院、马术中心)五国金砖银行、央企总部等国际级配套!
编辑

☑️☑️保利世博天悦售楼处电话:400-8377-020☑️☑️
满级规划+全维度塔尖资源荟萃世博!
保利世博天悦,位于浦东世博滨江板块,这里拥有两大满级“BUFF”叠加:世博滨江CAZ+世博-前滩城市主中心,未来期待值拉满!
编辑

中央活动区:
世博-前滩-徐汇滨江地区!
中央活动区
作为上海未来发展-重要代表!
将承担起全球城市,核心功能重要角色!成为城市形象集中展示区域,为城市发展注入新的活力和动力, 堪称“市中心的中心”!
保利世博天悦,不仅位于规划的黄浦江核心段!而且地处与外滩、陆家嘴同能级“世博-前滩-徐汇滨江地区”!
编辑

☑️☑️保利世博天悦售楼处电话:400-8377-020☑️☑️
城市主中心:“世博-前滩城市主中心”同时,保利世博天悦所在的世博滨江已经全面升级为城市主中心!
3月26日,浦东新区土地市场座谈会公布:至2035年,浦东还将新增“世博-前滩城市主中心”,新增张江、金桥、川沙3个城市副中心!
城市主中心-从字面意义上来看!
规划能级与南京西路,人民广场、新天地、外滩、陆家嘴等!传统核心区并驾齐驱,使世博滨江能级进一步升级,将成为具备全球影响力世界级滨水区!
编辑

☑️☑️保利世博天悦售楼处电话:400-8377-020☑️☑️
如果说地段能级决定
保利世博天悦的下限!
板块内,难以复制满级资源,才是项目真正价值护城河!无一不是汇聚上海文化生活精髓!
曾经万国博览盛会,为区域注入了世界文化汇聚底色!如今世博板块,不仅包含文化、艺术、博览、国际体育等多元化中心!
还受益于,CAZ集聚总部经济的功能定位!发展成为央企总部、国际企业聚集区和浦东第二政务办公中心,目前已有26家央企近80家公司集聚世博片区!
编辑

☑️☑️保利世博天悦售楼处电话:400-8377-020☑️☑️
实景图
作为上海唯一具备,沿江演艺带集聚地区!保利世博天悦,项目周边坐拥13座世界顶级大型文化场馆,展演空间体量超过6万坐席!
包括:梅德塞斯奔驰文化展示中心!
BMW汽车文化体验中心、中华艺术宫、上海世博展览馆、上海大歌剧院、世博大舞台、万国体育中心!
世界花卉园
温室花园以及中国首座!
国际顶级赛事标准,永久性马术赛场馆——国际马术中心等生态功能场馆等,高能级文化场馆串珠成链!
据统计:世博地区,每年承办大型文体活动场次超过700场!
占据浦东总活动数量40%,占据全上海总活动数量18%,每年吸引客流超千万人次!
☑️☑️保利世博天悦售楼处电话:400-8377-020☑️☑️ 值得一提的是,世博对岸徐汇滨江!将集中建设20多座艺术美术馆!
与世博滨江隔江相望!更重要是,上海市-正积极筹划建设首条跨江缆车!
该缆车将横跨黄浦江,连接徐汇西岸与世博滨江板块!从而打造一条世界级顶奢艺术带,展现黄浦江畔独特魅力与艺术风采!
目前,世博片区已集聚了新开发银行(NDB)世界核电运营者协会(英国)上海代表处(WANO)、法国国际商会上海代表处(ICC)等16家国际经济组织!
主要集中在经贸规则、资源配置、国际仲裁三大领域!占浦东国际经济组织总数50%以上,为浦东提升国际形象和影响力、增强城市软实力等方面发挥了积极作用!
保利世博天悦,南侧占据上海中心城区,唯一一个“有山有水”的宝地:世博文化公园!世博文化公园占地200公顷,已经是上海中心城区最大城市公园!
从距离来看 项目直线距离
世博文化公园-仅约1.5公里!
可直接俯瞰整个公园!从规模来看:世博文化公园占地面积,是伦敦海德皇家花园1.25倍,是世纪公园1.42倍,是大宁公园2.94倍!
编辑

实景图
更重要的是-世博文化公园
还拥有上海中心城区唯一“山景”!
公园内最大标志性景观“双子山”,由两座高度不等山体组成!最高峰约48米,也是国内第一座高度,超过40米空腔人工仿自然山林!
☑️☑️保利世博天悦售楼处电话:400-8377-020☑️☑️ 实景图
交通方面:周边路网成熟,两桥两隧四地铁(南浦大桥、卢浦大桥、西藏南路及打浦路隧道、6、7、8、19号线)
北侧比邻-世博洲际酒店
南侧比邻-上海地产集团!
西侧比邻世博大道、东侧比邻雪野路!项目距离19号线华丰路站,仅约300多米!可链接陆家嘴、北外滩等上海其他地标方向,便捷通勤处处快人一步!
编辑

商业方面:
近享世界级滨江艺术带、上海最大开放式绿地——2平方公里世博文化公园(内含上海大歌剧院、马术中心)五国金砖银行、央企总部等国际级配套!
周边学校:
浦东南路小学、上海市上南中学、上南中学东校邹平校区、上海市南洋中学、上海市第八中学、上海纽洋大学等!
☑️☑️保利世博天悦售楼处电话:400-8377-020☑️☑️ 医疗方面:
上海市浦东新区浦南医院、上海儿童医学中学、第九人民医院浦东分院、上海交通大学医院附属瑞金医院等!
☑️☑️保利世博天悦售楼处电话:400-8377-020☑️☑️ 编辑

☑️☑️保利世博天悦售楼处电话:400-8377-020☑️☑️
『保利•世博天悦』
「保利世博天悦」3号楼,小区前排的C位,是所有滨江顶豪中的VIP头等舱!270°江景视野,将S湾尽收眼底!建面约500m²的巨幕平墅即将登场!
此外前期还有部分房源可供选择,建面约174-252㎡,即将交付的实景准现房!
·建面约240㎡边套,采用L型转角落地窗,打造了 270°环幕瞰江视野,无论身处客厅、餐厅,都能以不同角度眺望黄浦江的波光粼粼。

☑️☑️保利世博天悦售楼处电话:400-8377-020☑️☑️

240m²边套样板房实拍
·建面约251㎡中间套, 整体瞰江面高达约14米,独有双层挑高露台,未来业主可以将其打造成为私家空中花园,在繁华都市中独享静谧自然。

☑️☑️保利世博天悦售楼处电话:400-8377-020☑️☑️

☑️☑️保利世博天悦售楼处电话:400-8377-020☑️☑️

建筑面积约500m²一线滨江巨幕平墅
上海塔尖圈层俯瞰世界的专属坐席
目前OPUS ONE 500 还处于保密阶段,小胖君给大家带来一手爆料:
·约35米L形巨幕观景台,双面瞰江带来前所未有的景观视野

☑️☑️保利世博天悦售楼处电话:400-8377-020☑️☑️

☑️☑️保利世博天悦售楼处电话:400-8377-020☑️☑️
示意效果图,过程稿仅供参考
相当于将 纽约432 Park的顶层视野平移到了黄浦江, 这样的大国景观台,未来不会再有!
业主在家里一抬头便是以江景和都市为主题的巨幅油画!
从清晨到日暮,无论是晨雾中的江轮剪影,还是夜幕下的两岸华灯, 每一扇窗都是一幅名画,每一平方米都是城市的注脚

☑️☑️保利世博天悦售楼处电话:400-8377-020☑️☑️
夜晚江景实拍
·4+1房&双豪华套房规制
OPUS ONE 500的双豪华套房尺度惊人,粗略预计面积均接近了 55㎡
独立内玄关、阳台、起居厅、步入式衣帽间、双台盆浴缸卫生间一应俱全,既考虑了空间感又保持了独立性,创造出了一个高度聚合又能彼此独立的家庭化空间, 尊贵私密空间在这里具象化!
·5个阳台,重新定义高端生活场景
客厅西侧的景观阳台、双豪华套房南侧的生活阳台(2个)、北侧瞰江的空中花园露台和书房阳台,在OPUS ONE 500, 保利将江景、花园、星空和社交,统统装进生活半径
这些都只是OPUS ONE 500冰山一角,还有诸如2梯1户超大专属电梯厅、超大尺度的宴会厅等等,这里的每一处空间设计都让人眼前一亮!

示意效果图,过程稿仅供参考
毫不夸张地说,这座由LSD葛亚曦操刀打造的“空中行宫”带来的震撼,非真正亲临现场不能领略其绝代风采!

☑️☑️保利世博天悦售楼处电话:400-8377-020☑️☑️
【项目鉴赏】

样板间鉴赏:
全户型图如下:

☑️☑️保利世博天悦售楼处电话:400-8377-020☑️☑️



☑️☑️保利世博天悦售楼处电话:400-8377-020☑️☑️


☑️☑️保利世博天悦售楼处电话:400-8377-020☑️☑️
样板间实景图:

☑️☑️保利世博天悦售楼处电话:400-8377-020☑️☑️

☑️☑️保利世博天悦售楼处电话:400-8377-020☑️☑️


☑️☑️保利世博天悦售楼处电话:400-8377-020☑️☑️


☑️☑️保利世博天悦售楼处电话:400-8377-020☑️☑️

☑️☑️保利世博天悦售楼处电话:400-8377-020☑️☑️

☑️☑️保利世博天悦售楼处电话:400-8377-020☑️☑️


☑️☑️保利世博天悦售楼处电话:400-8377-020☑️☑️
☑️☑️保利世博天悦售楼处电话:400-8377-020☑️☑️

☑️☑️保利世博天悦售楼处电话:400-8377-020☑️☑️