2025上海尚湾林语(售楼处) 首页 - 尚湾林语销售中心 - 环境 -尚湾林语户型 - 价格 - 地址 - 楼盘详情 - 配套 - 电话 - 交房时间 - 配套 - 电话 - 交房时间
扫描到手机,新闻随时看
扫一扫,用手机看文章
更加方便分享给朋友
尚湾林语售楼处电话:400-833-6309(官方售楼处电话)
上海尚湾林语售楼处电话☎:400-833-6309(预约看房热线)
目前上海总价500万级的新盘,普遍都存在“偏科”现象。
要么地铁在建需要等待,要么城市界面和居住环境略差,要么周边商业、教育、生态等城市资源不齐全,要么与地铁站步行距离过远,要么地段能级不够…
基于上述种种原因,500万级预算在上海很难挑到尽善尽美的新盘。但凡有个相对完美的楼盘出现,必将受全市同预算购房者追捧,比如:理想之地。但是,红盘售罄已成过往,我们只能寻找下一个具备红盘基因的项目。
下一个500万级单盘主义:尚湾林语
尚湾林语,将公园及天然水系引入社区,打造了上海前所未见的约180万方生态滨水TOD!
湾林语售楼处电话☎:400-833-6309(预约看房热线)
这座综合体有三大亮点:
湾林语售楼处电话☎:400-833-6309(预约看房热线)
第一,这座约180万方的综合体中,住宅仅占比约10%,90%的均是配套,下楼即享受百万方的配套,在上海可能也只有市区千万级以上的豪宅才能做到了。
湾林语售楼处电话☎:400-833-6309(预约看房热线)
第二,上海目前只有两座体量达到约180万方的综合体,一座是尚湾林语,另外一座则是内中环卖约17万/㎡+的徐汇滨江金融西岸。
湾林语售楼处电话☎:400-833-6309(预约看房热线)
第三,这座综合体拥有约86万方自然生态景观,其中四季花海已做出约100亩示范段,这样的生态资源在上海主城区十分稀缺且昂贵。
闵行主城 5号线正地铁盘
大零湾C位 约180万方大城巨制
「尚湾林语」
推约81-130㎡的2-4房
均价6.05万/㎡
低密社区+高得房率+轻奢精装
总价约400万起上车大零湾
感兴趣的小伙伴下方可预约咨询
湾林语售楼处电话☎:400-833-6309(预约看房热线)
项目价格劲爆!简直卷出天际!
单价5.3万/㎡起(还有优惠哦!)买得房率约80-83%3房,约100㎡户型享约110㎡居住体验!尚湾林语售楼处电话☎:400-833-6309
所推楼栋中间楼层(百平米)优惠下来单价仅约5.7万/㎡,比周边竞品同楼层便宜3000-13000元/㎡。尚湾林语售楼处电话☎:400-833-6309
按中间楼层,以及实际约110㎡体验计算,项目100㎡户型实际单价就在5万/㎡左右!性价比爆棚,买入之后安全垫也很高!
尚湾林语全新实景示范区&城市生活馆已开放!项目正在火热销售中!
根据一房一价,这批房源整体约5.3万/㎡起,叠加优惠,实际约5.1万/㎡起,这个价格在单价日益高企的闵行几乎绝迹了,堪称捡漏价。
最新一房一价表:
尚湾林语售楼处电话☎:400-833-6309
上期一房一价表:
一房一价
尚湾林语售楼处电话☎:400-833-6309
对项目有兴趣的朋友,
进入全网唯一官方预约通道预约看房请保持手机畅通
等待官方销售团队与您联系
感谢配合!
尚湾林语售楼处电话☎:400-833-6309
01.
推售信息
尚湾林语售楼处电话☎:400-833-6309
尚湾林语加推建面约100-149㎡3-4房,均价6.1万/㎡!
单价5.3万/㎡起(还有优惠哦!)买得房率约80-83%3房,约100㎡户型享约110㎡居住体验!尚湾林语售楼处电话☎:400-833-6309
所推楼栋中间楼层(百平米)优惠下来单价仅约5.7万/㎡,比周边竞品同楼层便宜3000-13000元/㎡。
按中间楼层,以及实际约110㎡体验计算,项目100㎡户型实际单价就在5万/㎡左右!性价比爆棚,买入之后安全垫也很高!
全套户型图如下:
「约81㎡ 2房2厅1卫」
尚湾林语售楼处电话☎:400-833-6309
「约93㎡ 3房2厅1卫」
尚湾林语售楼处电话☎:400-833-6309
首先,上海目前市面上约89-93㎡的3房产品都被称为紧凑型3房,也就是一间主卧+2间小房间。小房间的功能性稍差,尤其对于正常得房率在75%及以下的户型来说,可能放张床都有些吃力。
尚湾林语售楼处电话☎:400-833-6309
但超高的得房率为尚湾林语的约93㎡户型带来了正3房的格局,主卧+次卧的尺度感都非常不错。即使是书房也有不错的空间,未来打造一个儿童房也绰绰有余。

尚湾林语售楼处电话☎:400-833-6309
这是真正能保证接下来数十年生活所需的500万级3房产品。
其次,LDBK一体化的客餐厅+U型厨房+能容纳4人餐桌的餐厅。
尚湾林语售楼处电话☎:400-833-6309
近期看了很多只能放下一张两人餐桌或是吧台的餐厅,以此来达到让客餐厅空间尺度感变大的产品。
再来看尚湾林语约93㎡的样板间,对比感很强烈。
项目整个公区视野开阔、尺度阔绰,足以彰显业主的非凡气度!同时也能容纳一家人更多的生活想象。
在这个面积段,尚湾林语高得房率带来的实用性、尺度感、性价比,没有对手。
建面约101㎡3房2厅2卫
该户型拥有主卧套房+双卫生间,客卫合理的干湿分区,可避免早晚洗漱高峰排队的尴尬。尚湾林语售楼处电话☎:400-833-6309
尚湾林语售楼处电话☎:400-833-6309
建面约100㎡3房2厅2卫
尚湾林语售楼处电话☎:400-833-6309
该户型三开间朝南,自带超广角镜头感。三起居室满足家庭生活各种功能需求的同时还不显得局促,舒适度超高。
尚湾林语售楼处电话☎:400-833-6309
尚湾林语售楼处电话☎:400-833-6309
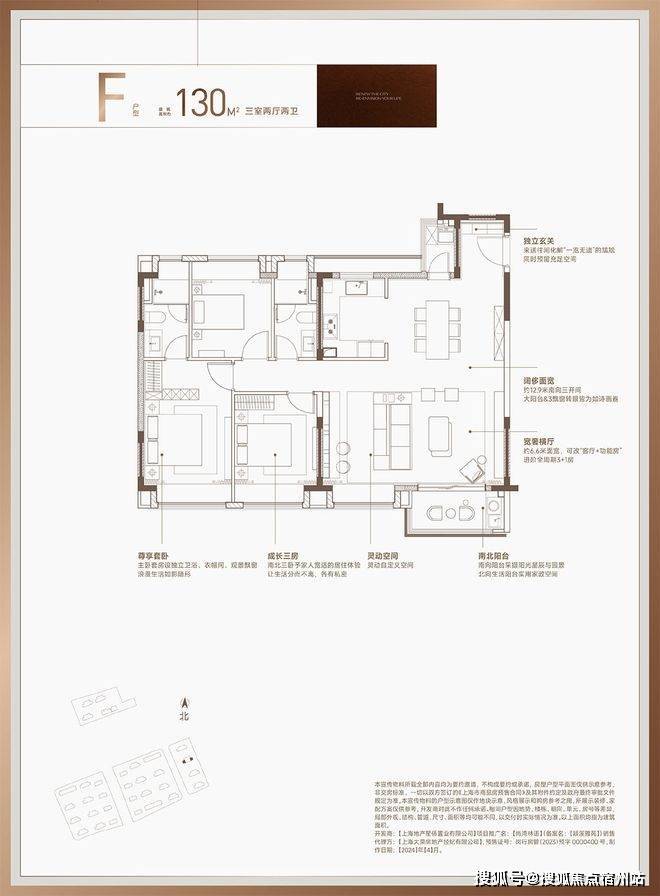
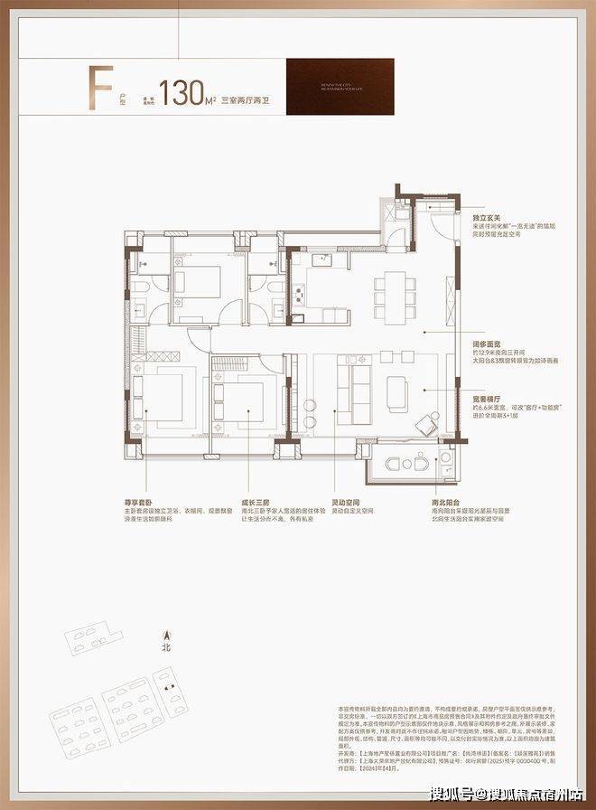
建面约130㎡3房2厅2卫
尚湾林语售楼处电话☎:400-833-6309
四开间朝南的设计,可以让阳光充分洒入室内,营造出明亮舒适的居住环境。
尚湾林语售楼处电话☎:400-833-6309
3卧室+2卫生间+横厅,均预留大面积飘窗,让室内奢阔尺度进一步延伸。
尚湾林语售楼处电话☎:400-833-6309
值得一提的是,这个户型设计充分考虑了现代家庭的居住需求,既满足了家庭成员之间的亲密互动,又保证了每个人的私人空间,而且还可以根据不同家庭的居住需求,将其宽敞舒适且灵活多变的横厅,设计不同的空间功能布局。
建面约149㎡4房2厅3卫
四房南向双套卧舒适性不言而喻,9-10层的滨水平层,占位社区水景资源,且是颛桥板块供应稀缺的150㎡段改善户型,可谓稀缺中的稀缺!
装修档次媲美市区10万+项目!
尚湾林语售楼处电话☎:400-833-6309
尚湾林语500万级三房,均使用国内外一线品牌。
在使用频次很高的卫生间、厨房,皆为高配,保证了业主后期的使用体验感。
卫浴使用了唯宝、高仪品牌;
尚湾林语售楼处电话☎:400-833-6309
厨房配备西门子燃气灶/油烟机/洗碗机三件套,橱柜是威乃达的。
中央空调是日立的,还配备威能地暖及热水器;
特别是唯宝、高仪,市中心高端住宅才有的配置如今400万级就能拥有。

尚湾林语售楼处电话☎:400-833-6309
02.
基本信息
尚湾林语售楼处电话☎:400-833-6309
尚湾林语由本地国企上海地产集团旗下全资子公司上海房地(集团)有限公司承建并参与开发。除了国企背书之外,尚湾林语还是一个总规模约180万方的超级综合体,但仅有不到10%为可售住宅项目!其余几乎都是商业、教育、生态景观配套。便利度远远甩开传统做单地块开发的新盘。
尚湾林语售楼处电话☎:400-833-6309
尚湾林语售楼处电话☎:400-833-6309
80万方大城内生态用地(约86万方)与自然水系(约15万方)占到总体量的一半以上!此外还规划了约21.5万方的商办。涵盖开放商街、邻里中心、商业综合等多重业态,进一步将便利商业延伸到家门口。更有3万方的活力文体中心配置,满足运动、亲子、娱乐、休闲等日常需求。
尚湾林语售楼处电话☎:400-833-6309
首期4幅住宅地块将打造成依水而居的住宅场景,形成现代简约的人文社区。
尚湾林语体量约180万方自然城市融合体,俨然一座“微缩城市”,约21.5万方开放摩登商办,涵盖开放商街、邻里中心、生态办公、人才公寓等。
这座超级综合体,内部规划自然秘境+水系,总体量高达约101万方,相当于世纪公园的七分之五(总体量约140万方)!更是远超闵行目前体量最大的闵行体育公园(总体量约84万方)!
这样的低密生态,全市少有;与之相反,尚湾林语可售住宅只占约10%!住在这里,真正宛如置身公园,人均绿化占有率非同一般尚湾林语售楼处电话☎:400-833-6309
尚湾林语售楼处电话☎:400-833-6309
那光是项目本身所带来的生活,就已流光溢彩。想要逛吃休闲,楼下就能shopping;怕上班通勤时间长,可以把office直接搬到隔壁楼。特别是精致商业氛围,对周边人口及消费的吸附能力非常强。
尚湾林语售楼处电话☎:400-833-6309
尚湾林语,花园生态办公和菁英人才公寓相生共融,将共同构成南上海原生态花园型商务区。这就是城市融合体和单一住宅质的区别,莘庄TODTOWN天荟价值立外环之巅,背后就是复合业态的支撑。
尚湾林语售楼处电话☎:400-833-6309
还有城市都心难寻的约86万方自然秘境,集游憩休闲、自然研习、趣味采摘、有机食养、科普教育等于一体。尚湾林语售楼处电话☎:400-833-6309
尚湾林语售楼处电话☎:400-833-6309
换句话说整个尚湾林语将近一半都是自然秘境,那住宅简直就是无界镶嵌在自然环境中。与单一堆砌豪华的城市综合体不同,尚湾林语大隐隐于市,于城市之心,享一隅宁静,自然城市融合体更稀缺,意境也更高。
尚湾林语售楼处电话☎:400-833-6309
项目超脱了物质层面,给业主带来了更多自然、隐逸的精神享受,不管带孩子去果园采摘,还是释放996的压力,这片秘境都能让居者寻得真正属于内心的平静感。尚湾林语售楼处电话☎:400-833-6309
尚湾林语售楼处电话☎:400-833-6309
自然、隐逸内心的平静,这是同质化激烈竞争下上海绝大多数新盘所不具备的,也是项目的价值护城河!
尚湾林语售楼处电话☎:400-833-6309
约15万方天然水域重构滨水生活想象沿天然水系河道规划滨河绿廊、活力水岸、休闲水岸、风景河岸等。尚湾林语售楼处电话☎:400-833-6309
约3万方活力文体中心,你可以随时和家人、老友、工作伙伴开启一场酣畅淋漓的运动之旅。尚湾林语售楼处电话☎:400-833-6309
项目住宅占比很低,仅不到整盘体量的10%,而剩下的全是配套!以10%住宅享90%的配套,该有多幸福!未来下楼既有商办、教育、文体等配套,时髦又便利;尚湾林语售楼处电话☎:400-833-6309
同时又有绿色生态景观农业、滨河绿廊等,可一键切换到宁静、平和、私谧!繁华与静谧共融!
尚湾林语售楼处电话☎:400-833-6309
不仅是大环境的精彩纷呈,在品质层面,尚湾林语也给购房者带来了一个“物超所值”的高诚意作品,重新定义板块人居体验!
尚湾林语售楼处电话☎:400-833-6309
更低的居住密度:纵观近两年颛桥新盘,要么2.5容积率清一色高层;要么2.0容积率做高低配,高层占地被别墅挤压。它们共同点在于高层居住密度高,没有改善置业应有的舒适度!
尚湾林语售楼处电话☎:400-833-6309
而尚湾林语容积率只有1.6-1.8,即便放眼整个闵行新房,这也是更低的存在。意味着更低的人口密度、更少的建筑排布、更多的绿化景观。
①.更低的楼层+更宽的楼间距,据悉首开楼栋栋距达约38米,采光优异;
②.垂直空间住户更少,隐私性更好,等电梯的困扰也少;
③.“亲地性”强,特别是紧邻河畔的滨水平层只有9-10层,可近享花草树木探入窗台的惬意,眼前就是四季变幻,与住叠加的感觉十分相近。
尚湾林语售楼处电话☎:400-833-6309
更均好的楼栋:
项目所有楼栋几乎实现三面甚至四面景观环绕,坐拥揽园望林观水视野,每一栋景观价值都颇高。
尚湾林语售楼处电话☎:400-833-6309
景观充满“社交、亲子、温情”元素,直击年轻人内心:
尚湾林语售楼处电话☎:400-833-6309
据悉,景观布局有风森会尚湾林语售楼处电话☎:400-833-6309客厅、阳光草坪、林荫步道、能量花园、萌宠乐园,环形慢跑道等多重节点。
尚湾林语售楼处电话☎:400-833-6309
这既为高知人群提供了互相认识、交流的平台,也调节了上海快节奏的生活状态,N多与景观相处的方式,绿植葱茏遮盖,移步异景,有一种回家即微度假的感觉。
尚湾林语售楼处电话☎:400-833-6309
项目一期到五期目前是同步开工,据了解未来也将会同步交付,届时180万方大城配套也将基本实现全部交付运营,相当于为产品兑现上了三层保险。
尚林湾语首批次将推出19-01地块,整体容积率仅约1.6-1.8,基本都是9-14层的小高层。
尚湾林语售楼处电话☎:400-833-6309
尚湾林语舍弃了追求利润的高低配,打造了这样一个低容积率的全小高层社区。这样的设计确保了足够的楼间距,首开的这批房源,楼间距最大达到了38米,即满足了采光,也开阔了视野。
尚湾林语售楼处电话☎:400-833-6309
尚湾林语售楼处电话☎:400-833-6309
有了足够的社区空间,才能打造出极致的园林。社区由景观轴和生活轴构成了一个“十字轴线”,布局多元组团。
尚湾林语售楼处电话☎:400-833-6309
尚湾林语售楼处电话☎:400-833-6309
一条天然河道从小区穿过,构成约15万方的天然水域,打造未来理想水岸。多数住宅都实现三面至四面景观环绕,坐拥揽园望林观水视野。
尚湾林语售楼处电话☎:400-833-6309
尚湾林语售楼处电话☎:400-833-6309
尚湾林语 性价比在闵行是炸裂存在!
项目目前在售房源总价400万起!
尚湾林语 是打算置业在闵行,预算在400-600万客群的必看新盘!
03.
规划信息
尚湾林语售楼处电话☎:400-833-6309
作为闵行发展的核心产业带,大零号湾的规划,对区域的发展,具有长效的推动作用,而位于大零号湾C位的【尚湾林语】,不仅拥有产业加持,更拥有2035规划/一江一河战略规划/ 浦江第一湾的利好BUFF叠加,更是在主城片区同频国家战略的区域,在发展的能级和战略地位上,就不只领先其他区域一个身位。
尚湾林语售楼处电话☎:400-833-6309
根据2023年的上海城市规划,尚湾林语所处的“大零号湾”定位为世界级科创湾区,整体规模达17平方公里!重点聚焦ai+生物医药、新型储能、超导技术、卫星通讯、工业机器人等细分领域,规划到2035年形成万亿市值的高新技术企业集群!且截止2023年底入驻高新技术企业已超600家,估值亿元以上企业超70家!(数据来源:上海发布)
实景图
根据最新方案显示,大零号湾作为上海3大首批未来产业先导区之一,将在2035年形成万亿市值的高新技术企业集群,辐射至周边约120平方公里的区域,常住人口规模将达约80.3万!(信息来源科创闵行)未来将与漕河泾、张江科学城共建上海迈向全球影响力科创中心!
除了产业规模优势,大零号湾的另一大优势在于强大的科创力量!上海交大、华东师大两所“双一流”高校同时入驻!更有航天、航空、船舶、核电等领域的10多所科研院所!以及近200家国家级、市级研发机构!示意图
万亿级的规划、双985高校科研力量、数十万科技人才和高校师生!如此规模和水平的产业及人口导入,必将从产业到住宅乃至整个城市格局上为闵行、为浦西、为上海主城区带来脱胎换骨的全方位改变!
▷▶自然资源唯一!主城区百万方生态资源!为了吸引高新技术人才的入驻,大零号湾对区域环境的重塑,也几乎是涅槃重生级的改造,仅超百万级的生态资源一项,在整个上海主城区,也是独一份的存在!效果图 规划全面升级中 仅供参考尚湾林语售楼处电话☎:400-833-6309
百万级生态资源什么概念?闵行区最大的城市公园也不过几十万平米,而在整体规划的180万方生态城中,仅自然生态景观的体量就高达86万平方米!将打造集游憩休闲、自然研习、趣味采摘、有机食养、科普教育于一体的都心自然秘境!效果图 规划全面升级中 仅供参考尚湾林语售楼处电话☎:400-833-6309
同时,更有约15万平方米的天然水系!沿天然水系河道规划滨河绿廊、活力水岸、休闲水岸、风景河岸等,能够享受上海主城区已无法复现的绿水环抱诗意生活尚湾林语售楼处电话☎:400-833-6309
项目自然生态景观实景图
目前,百万方生态及水景的规划中,已有超百亩的四季花海示范段开始对外展示,已然成为沪上新晋网红打卡地中的佼佼者!有兴趣的购房者,可以提前感受未来尚湾林语出门即享自然的独特体验!
交通配套:项目地块临近沪金高速申嘉湖高速,距离5号线剑川路站约1公里。
尚湾林语售楼处电话☎:400-833-6309
商业配套:项目周边有龙湖上海闵行天街、颛桥万达广场等。
尚湾林语售楼处电话☎:400-833-6309
教育方面:周边有闵行区马桥实验学校、闵行区北桥中学、银星小学等。
尚湾林语售楼处电话☎:400-833-6309
医疗方面:上海市第五人民医院、沪闵医院、闵行区中西医结合医院等。
闵行主城 5号线正地铁盘
大零湾C位 约180万方大城巨制
「尚湾林语」
推约81-130㎡的2-4房
均价6.05万/㎡
低密社区+高得房率+轻奢精装
总价约400万起上车大零湾
感兴趣的小伙伴下方可预约咨询
尚湾林语售楼处电话☎:400-833-6309
尚湾林语售楼处电话:400-833-6309(官方售楼处电话)
上海尚湾林语售楼处电话☎:400-833-6309(预约看房热线)
目前上海总价500万级的新盘,普遍都存在“偏科”现象。
要么地铁在建需要等待,要么城市界面和居住环境略差,要么周边商业、教育、生态等城市资源不齐全,要么与地铁站步行距离过远,要么地段能级不够…
基于上述种种原因,500万级预算在上海很难挑到尽善尽美的新盘。但凡有个相对完美的楼盘出现,必将受全市同预算购房者追捧,比如:理想之地。但是,红盘售罄已成过往,我们只能寻找下一个具备红盘基因的项目。
下一个500万级单盘主义:尚湾林语
尚湾林语,将公园及天然水系引入社区,打造了上海前所未见的约180万方生态滨水TOD!
尚湾林语售楼处电话☎:400-833-6309(预约看房热线)
这座综合体有三大亮点:
尚湾林语售楼处电话☎:400-833-6309(预约看房热线)
第一,这座约180万方的综合体中,住宅仅占比约10%,90%的均是配套,下楼即享受百万方的配套,在上海可能也只有市区千万级以上的豪宅才能做到了。
尚湾林语售楼处电话☎:400-833-6309(预约看房热线)
第二,上海目前只有两座体量达到约180万方的综合体,一座是尚湾林语,另外一座则是内中环卖约17万/㎡+的徐汇滨江金融西岸。尚湾林语售楼处电话☎:400-833-6309(预约看房热线)
第三,这座综合体拥有约86万方自然生态景观,其中四季花海已做出约100亩示范段,这样的生态资源在上海主城区十分稀缺且昂贵。
闵行主城 5号线正地铁盘
大零湾C位 约180万方大城巨制
「尚湾林语」
推约81-130㎡的2-4房
均价6.05万/㎡
低密社区+高得房率+轻奢精装
总价约400万起上车大零湾
感兴趣的小伙伴下方可预约咨询
尚湾林语售楼处电话☎:400-833-6309(预约看房热线)
项目价格劲爆!简直卷出天际!
单价5.3万/㎡起(还有优惠哦!)买得房率约80-83%3房,约100㎡户型享约110㎡居住体验!尚湾林语售楼处电话☎:400-833-6309
所推楼栋中间楼层(百平米)优惠下来单价仅约5.7万/㎡,比周边竞品同楼层便宜3000-13000元/㎡。尚湾林语售楼处电话☎:400-833-6309
按中间楼层,以及实际约110㎡体验计算,项目100㎡户型实际单价就在5万/㎡左右!性价比爆棚,买入之后安全垫也很高!
尚湾林语全新实景示范区&城市生活馆已开放!项目正在火热销售中!
根据一房一价,这批房源整体约5.3万/㎡起,叠加优惠,实际约5.1万/㎡起,这个价格在单价日益高企的闵行几乎绝迹了,堪称捡漏价。
最新一房一价表:
尚湾林语售楼处电话☎:400-833-6309
上期一房一价表:
一房一价
尚湾林语售楼处电话☎:400-833-6309
对项目有兴趣的朋友,
进入全网唯一官方预约通道预约看房请保持手机畅通
等待官方销售团队与您联系
感谢配合!
尚湾林语售楼处电话☎:400-833-6309
01.
推售信息
尚湾林语售楼处电话☎:400-833-6309
尚湾林语加推建面约100-149㎡3-4房,均价6.1万/㎡!
单价5.3万/㎡起(还有优惠哦!)买得房率约80-83%3房,约100㎡户型享约110㎡居住体验!尚湾林语售楼处电话☎:400-833-6309
所推楼栋中间楼层(百平米)优惠下来单价仅约5.7万/㎡,比周边竞品同楼层便宜3000-13000元/㎡。
按中间楼层,以及实际约110㎡体验计算,项目100㎡户型实际单价就在5万/㎡左右!性价比爆棚,买入之后安全垫也很高!
声明:本文由入驻焦点开放平台的作者撰写,除焦点官方账号外,观点仅代表作者本人,不代表焦点立场。
