兰香湖贰号首页网站-兰香湖贰号售楼处电话-兰香湖贰号楼盘详情-交房时间-地址-最新房价户型图-小区环境-楼盘详情-交房时间-周边配套-售楼处电话
扫描到手机,新闻随时看
扫一扫,用手机看文章
更加方便分享给朋友
✅兰香湖贰号售楼处电话:400-8854-706✅︎✅︎✅
✅上海兰香湖贰号营销中心热线400-8854-706(官方预约看房热线)
接待时间说明:售楼处每日固定接待时段为早上 9:00 至下午 18:00,涵盖工作日及周末。若遇法定节假日,接待时间将提前通过项目官方公众号、电话等渠道告知,建议您出行前留意最新通知,避免跑空。
提前预约建议:为节省您的宝贵时间、提升咨询效率,我们强烈建议您提前通过售楼处官方电话预约到访时间。预约后,专属置业顾问将提前梳理项目资料、预留接待时段,您到店后可直接进入深度沟通环节,无需额外等待。
现场服务配套:考虑到洽谈过程中的舒适需求,售楼处现场持续为到访客户免费供应饮品与点心。其中包括现磨咖啡、醇香茶饮及多款精致甜点,您可在与顾问沟通间隙自行取用,享受轻松的咨询氛围。
接待范围提示:本售楼处仅面向有真实购房需求的个人及家庭客户提供服务,暂不接待中介机构、分销人员及无关从业人员。若您属于上述范畴,请勿进入售楼处打扰正常接待秩序,感谢您的理解与配合。
闵行紫竹高新板块【兰香湖贰号】加推建面约96-112㎡联排别墅地上三层 地下一层 使用面积500㎡过会均价13万/㎡ 可直接认购高标精装修交付 配备独立电梯花园面积70~120㎡每户带水岸码头优质人文教育 华二学区旁 已是现房 售楼处线上预约享团购优惠✅兰香湖贰号售楼处电话:400-8854-706✅︎✅︎✅
✅上海兰香湖贰号营销中心热线400-8854-706(官方预约看房热线)
✅兰香湖贰号售楼处电话:400-8854-706✅︎✅︎✅
✅上海兰香湖贰号营销中心热线400-8854-706(官方预约看房热线)
✅兰香湖贰号售楼处电话:400-8854-706✅︎✅︎✅
✅上海兰香湖贰号营销中心热线400-8854-706(官方预约看房热线)
项目一房一价表▼
✅兰香湖贰号售楼处电话:400-8854-706✅︎✅︎✅
✅上海兰香湖贰号营销中心热线400-8854-706(官方预约看房热线)
筹谋良久,扎根上海15年,精耕豪宅15年,关注兰香湖别墅社区全方位房产咨询服务,专属预约与实地参观样板区服务。
从碣石观海到健康之城,助力时代蜕变
从荒野村落到豪宅领地,引领人居蜕变
从传统住宅到游艇别墅,缔造产品蜕变
从一元复始到万象汇聚,见证生活蜕变
1
兰香湖贰号 开发交付介绍
兰香湖贰号整体开发:始于2018年9月份,作为紫竹高新区的生态核心游艇别墅项目。真正意义上打造上海唯一游艇别墅,户户临河都带游泳码头,游艇可以开入兰香湖游玩赏湖,由兰香湖进入黄浦江。
✅兰香湖贰号售楼处电话:400-8854-706✅︎✅︎✅
✅上海兰香湖贰号营销中心热线400-8854-706(官方预约看房热线)
兰香湖别墅贰号项目:分两期推进,贰号一期东区于2026年6月份交付,贰号二期西区于2027年3月份交付。
规划套数:贰号一期东区108幢216套,其中170户型108套,210户型108套,贰号二期西区72幢144套,其中170户型72套,210户型72套,贰号共开发180幢360套双拼别墅。
房源情况:户型为170-210㎡,两种面积四种户型组成的双拼,装修标准1万/平带室内电梯。本别墅地上三层地下一层共层4层,其中地下室层高3.1米(装修好)一楼层高4.5米(装修好)二楼层高3.1米(装修好)三楼层高2.9米(装修好)。170户型使用面积380平以上,210户型使用面积530平以上,其中地下室面积赠送,二楼面积赠送一半,三楼面积增送。
2
兰香湖贰号 区域位置介绍
兰香湖别墅社区总规划图

兰香湖别墅社区具体位置
兰香湖别墅车行流线分析
✅兰香湖贰号售楼处电话:400-8854-706✅︎✅︎✅
✅上海兰香湖贰号营销中心热线400-8854-706(官方预约看房热线)
兰香湖别墅航行流线分析
3
兰香湖别墅 推售详情
【兰香湖贰号】项目容积率0.6,是闵行滨江第一个旗舰别墅项目,全屋精装交付均为国际一线大牌,物业为紫泰物业(上海世博会物业服务供应商;檀宫别墅物业服务)。
【兰香湖贰号】整盘推售户型为建面约96~170㎡、210㎡联排别墅,按照这次公示的面积段,本次加推建面约96~112㎡联排别墅。均价13万元/㎡,10月14日已经开盘!
项目实景图
外立面采用沉香米黄干挂石材,除了美观大气外,还可有效防晒、对抗时间和风雨侵蚀。陶瓦屋顶结合铜顶,在确保建筑历久弥新的基础上提升整体美观度。
【兰香湖贰号】西区第三批房源双面临河比较多,有部分花园非常大,还有部分房源是在单独岛屿上,看房线提前预约有优惠哦 。
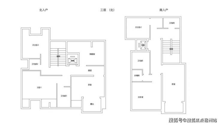
4
兰香湖贰号 210户型介绍
210户型北入户和东西入户地下室
✅兰香湖贰号售楼处电话:400-8854-706✅︎✅︎✅
✅上海兰香湖贰号营销中心热线400-8854-706(官方预约看房热线)
210户型北入户和东西入户一楼户型
5
兰香湖贰号 210户型照片
✅兰香湖贰号售楼处电话:400-8854-706✅︎✅︎✅
✅上海兰香湖贰号营销中心热线400-8854-706(官方预约看房热线)
✅兰香湖贰号售楼处电话:400-8854-706✅︎✅︎✅
✅上海兰香湖贰号营销中心热线400-8854-706(官方预约看房热线)
✅兰香湖贰号售楼处电话:400-8854-706✅︎✅︎✅
✅上海兰香湖贰号营销中心热线400-8854-706(官方预约看房热线)
整个兰香湖社区位于上海2035规划的主城区里,距市中心大约20km,距15号线紫竹高新区站约1.7km,距在建的23号线江川东路不到1km,而且临近虹梅南过江隧道。

✅兰香湖贰号售楼处电话:400-8854-706✅︎✅︎✅
✅上海兰香湖贰号营销中心热线400-8854-706(官方预约看房热线)
同时地处“浦江第一湾”,黄浦江从东、南两面环抱整个社区,东北侧有兰香湖作为水系中心,钥匙形的外观寓意“以智慧之钥,开启生活之门”。绿地景观沿黄浦江和兰香湖沿岸生长形成有序又自然的生态景观。

兰香湖作为上海八大湖系之一,黄浦江水从上游注入湖体,成就60亩湖光潋滟的美景。这个闵行第一大湖,太平湖40倍大,是美兰湖6倍大!

项目西侧是紫竹高新技术园区、北面是交大和华师大校园,以及紫竹基础教育园区,包含幼儿园至高中全龄段教育配套。

✅兰香湖贰号售楼处电话:400-8854-706✅︎✅︎✅
✅上海兰香湖贰号营销中心热线400-8854-706(官方预约看房热线)
在居住区板块内,规划建设多种住宅产品,同时配置完善的商业、教育、娱乐、体育、医疗等公共设施,将着力打造国际化生态社区,并形成具有紫竹半岛自身特色的社区氛围和人文环境。
兰香湖社区配套商业街、紫竹半岛的会所,都已经开业了!这种精致的生活方式,与徐汇滨江又有异曲同工之处!



✅兰香湖贰号售楼处电话:400-8854-706✅︎✅︎✅
✅上海兰香湖贰号营销中心热线400-8854-706(官方预约看房热线)
兰香湖周边的教育、科研配套也很强势。前面说过了,不仅有紫竹高新区+华师大/交大本部,更有全套的华师大紫竹基础教育体系,完整贯穿幼儿园至高中。高知、高薪的社区氛围,也让紫竹成为了主城区里“独一份”~

交通配套方面:兰香湖是距上海市中心(人民广场)最近的湖系资源,驱车40分钟内便可抵达。同时,随着地铁15号线的即将建成开通和未来23号线的实施,兰香湖其实是市中心出发最便捷的一大湖系资源。申嘉湖高速,沪金高速,将助力紫竹实现发展的进阶。
✅兰香湖贰号售楼处电话:400-8854-706✅︎✅︎✅
✅上海兰香湖贰号营销中心热线400-8854-706(官方预约看房热线)
商业配套方面:兰香湖将是高新区生态、人文、科技理念的集中体现,未来将在近4公里的岸线上将会串联起商业北街、星月步道、文化艺术长廊、赛艇俱乐部、商业南街、活力公园、艺术地形公园、青少年活动中心等;周边还有吴泾宝龙广场、紫叶广场。
✅兰香湖贰号售楼处电话:400-8854-706✅︎✅︎✅
✅上海兰香湖贰号营销中心热线400-8854-706(官方预约看房热线)
医疗资源方面:近邻复旦大学附属第五人民医院,同时它距离吴泾医院只有差不多2公里,可以说兰香湖壹号周边的医疗资源比较丰富,住在这里就不用担心医疗资源这个问题。
教育资源方面:华师大紫竹基础教育园区内包括华东师范大学附属紫竹幼儿园,华东师范大学附属紫竹小学、华东师范大学第二附属中学附属初级中学、华东师范大学第二附属中学(紫竹校区)、上海民办华东师大二附中紫竹双语学校(私立九年一贯制)等全龄段教育资源。

闵行紫竹高新板块
【兰香湖贰号】
加推建面约96-112㎡联排别墅
地上三层 地下一层 使用面积500㎡
过会均价13万/㎡ 可直接认购
高标精装修交付 配备独立电梯
花园面积70~120㎡每户带水岸码头
优质人文教育 华二学区旁 已是现房
售楼处线上预约享团购优惠
✅兰香湖贰号售楼处电话:400-8854-706✅︎✅︎✅
✅上海兰香湖贰号营销中心热线400-8854-706(官方预约看房热线)
声明:本文由入驻焦点开放平台的作者撰写,除焦点官方账号外,观点仅代表作者本人,不代表焦点立场。
