☑️☑️中粮北外滩壹号售楼处电话:400-8377-020☑️☑️ 北外滩豪宅大平层
中粮“壹号”系全新力作
「中粮北外滩壹号」
推出建面约185-228㎡高层住宅
均价 约14.38万/㎡
目前“样板间”已开放
☑️☑️中粮北外滩壹号售楼处电话:400-8377-020☑️☑️

☑️☑️中粮北外滩壹号售楼处电话:400-8377-020☑️☑️
2023年9月5日,大悦城控股上海大区公司通过上海联交所成功竞得上海市虹口区北外滩116街坊地块。地块位于北外滩红线内,靠近大连路地铁站。

☑️☑️中粮北外滩壹号售楼处电话:400-8377-020☑️☑️

☑️☑️中粮北外滩壹号售楼处电话:400-8377-020☑️☑️
116街坊地块地上计容面积46505.94㎡,用地性质为Rr1Rr3混合用地,其中混合地比例为Rr1≥60%、Rr3≤40%。(Rr1通常为低密住宅,Rr3通常为高层)

过程稿效果示意图,仅供参考,最终以实际为准
该项目计容建面4.65万㎡,容积率1.95,是上海市中心罕见的无商办、无15%自持住宅、无5%保障房的纯住宅。

☑️☑️中粮北外滩壹号售楼处电话:400-8377-020☑️☑️
顶豪对开发商的资金实力与开发水平有着极高的要求。中粮大悦城,无疑是「中粮·北外滩壹号」兑现能力的最强保证。
中粮集团是与新中国同龄的大型央企,全球农粮食品行业资产No.1,福临门、蒙牛、中茶这些国民品牌都出自于它。
示意图,仅供参考

中粮大悦城作为中粮集团旗下的地产投资平台,则是上海最具豪宅开发经验的开发商之一,底蕴深厚。
此次,中粮大悦城邀请了具备丰富豪宅设计经验和国际化视野的国内外设计团队,如CCD的郑中、LSD的梁志天、朗道的叶翀岭 ……这个大师天团在上海豪宅圈,个个都是顶尖的大咖。

☑️☑️中粮北外滩壹号售楼处电话:400-8377-020☑️☑️
示意图,仅供参考
从目前对外公开的少量信息,可以看出项目高奢的审美和产品力表达。
建筑立面 ,高层主体以仿红砖陶板+古铜色铝板+白色石材+玻璃幕墙的高标准结合,来完成建筑的美学表达。

效果图,仅供参考
风貌别墅则复刻海派石库门的韵味,但不同于大多数风貌别墅的格栅小花窗设计,「中粮·北外滩壹号」大幅增加窗墙比,赋予相对沉闷里的里弄建筑,更通透、更明亮的特质!

☑️☑️中粮北外滩壹号售楼处电话:400-8377-020☑️☑️
效果图,仅供参考
公区方面,从归家社区大堂、大堂序厅、以及入户单元大堂一路看过来,体现出一套脉络完整,层层递进的海派顶奢设计语言。


☑️☑️中粮北外滩壹号售楼处电话:400-8377-020☑️☑️

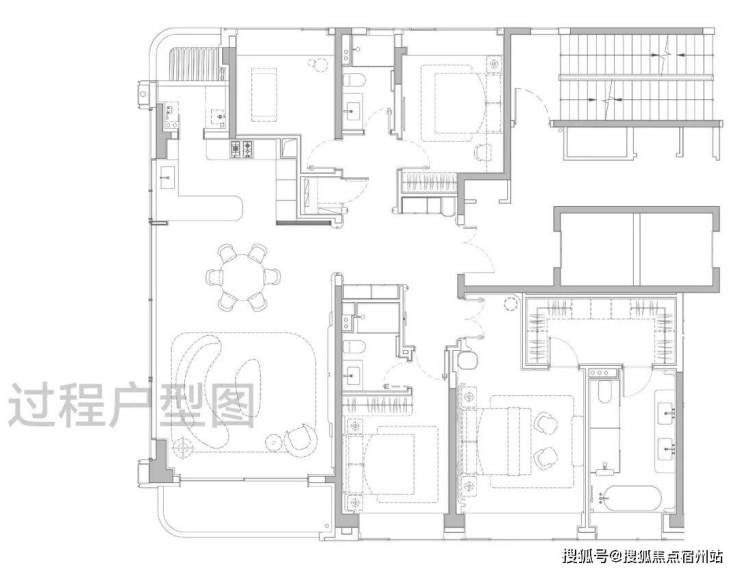
户型图赏鉴
185㎡四房奢阔大宅

☑️☑️中粮北外滩壹号售楼处电话:400-8377-020☑️☑️
准1梯1户设计 ,私享电梯厅独立入户,经典 飞机户型,三开间朝南,南北通透, 动静分区,通风采光俱佳。
独立玄关 做足私密性和仪式感; LDKB一体化设计 的客餐厅面积达到约55㎡,方正大气。
主卧套房尺度豪奢,可供业主配置步入式衣帽间,卫生间做到 双台盆+大浴缸+独立淋浴 的顶配,尊崇感十足!
228㎡四房天际大宅

准1梯1户设计, 私享电梯厅独立入户,户型尺度进一步升级,当今顶豪新盘中极为稀缺的四开间朝南。
边厅面积超过50 ㎡,给一家人提供了阔绰的交流空间; 约270°环幕景观设计 ,带来极好的采光,并且高区可以直面陆家嘴城市天际线+黄浦江景观,视野相当震撼!
主卧大套房设计带超大主卫和衣帽间 ,面积约50㎡ ,尺度感与市面上近300㎡的顶豪拉平。
室内设计由中国现代室内设计领域的领军人物—— 梁志天亲自打造。
在材质选用上,延续了壹号系的高端标准,大量运用奢石、高难度弧形工艺以及国内外顶尖品牌。
如 宝格丽 大理石打造的西厨岛台、 铂浪高 的净水三合一水龙头和一体式大水槽、 霍尼韦尔 的前置过滤器、全屋软水以及末端净水器系统、来自意大利 法罗力 燃气热水器、德国 唯宝 卫浴、当代龙头及花洒......还有 全屋华为智能家居系统 配置。这一套组合,是真正意义上的顶豪序列配置!

☑️☑️中粮北外滩壹号售楼处电话:400-8377-020☑️☑️


☑️☑️中粮北外滩壹号售楼处电话:400-8377-020☑️☑️
交通方面,项目位于上海内环内,距离轨交4号线大连路直线距离约250米, 周边4、12以及在建19号线三轨交汇, 交通便捷。

商业方面,项目周边配套完善,商业密集,有北外滩来福士、太阳宫、白玉兰广场等大型商办综合体。
教育方面,地块附近有华师大一附初中(市重点)、华师大一附中实验小学(区重点),项目东侧紧邻正在建设的同济附属澄衷中学。
医疗方面,项目距最近的三甲医院上海市第一人民医院直线距离约1.9千米。

☑️☑️中粮北外滩壹号售楼处电话:400-8377-020☑️☑️
☑️☑️中粮北外滩壹号售楼处电话:400-8377-020☑️☑️
中粮北外滩壹号
北外滩低密花园风貌住区
中粮大悦城上海第五座壹号系
壹号之上 再造壹号
【中粮·北外滩壹号】
建面约 185㎡/228㎡天际大平层
建面约 190㎡/210㎡/280㎡海派风貌墅
均价 143868元/㎡
208户(90套高层、118套别墅)
首开总价 2500万级起
即将入市,敬请期待
城市展厅【壹号会客厅】现已开放
诚邀参观
抢占全球城市会客厅的标杆之选
——恭迎品鉴——
☑️☑️中粮北外滩壹号售楼处电话:400-8377-020☑️☑️
☑️☑️中粮北外滩壹号售楼处电话:400-8377-020☑️☑️
☑️☑️中粮北外滩壹号售楼处电话:400-8377-020☑️☑️

不可复制的黄金三角区位
央企保障下的高端居住体验
项目嵌于北外滩历史风貌保护区腹地,距黄浦江岸线仅300米, 高区户型推窗即揽IMAX级江景与陆家嘴天际线,这份中环内近乎绝迹的滨水视野,堪称城市资源的“硬通货”。作为上海中心城区最后一片大规模滨水开发板块,这里规划总开发体量达840万㎡,未来将崛起480米超塔地标及19栋摩天集群,执掌全球城市会客厅的核心发展红利。与外滩的百年风华、陆家嘴的金融活力形成的 “黄金三角”格局,既沉淀着老上海的历史底蕴,又聚合着城市顶级资源,地段价值堪称无可替代。

☑️☑️中粮北外滩壹号售楼处电话:400-8377-020☑️☑️
大悦城控股在上海坚持城市共生,立足“一江一河”城市战略,从陆家嘴的海派复兴到苏河湾畔的人文共生, 从国际前滩探寻城市新生到和平公园的东方意境,中粮大悦城以全球高端人居理念,开启上海“壹号系”的“一江一河”生长之路。
· 2009-中粮·海景壹号
矗立陆家嘴云端,以摩天之姿定义东方天际
· 2015-中粮·天悦壹号
临水苏州河畔,以静谧美学重构都会张力
· 2018-中粮·前滩海景壹号
革新生态人居,以国际视野雕琢未来城脉
· 2021-中粮瑞虹·海景壹号
以新亚洲极简主义,让东方意境栖居时光

☑️☑️中粮北外滩壹号售楼处电话:400-8377-020☑️☑️
上海城市根脉凝于黄浦江湾,世界都会原点在此觉醒。溯源千年的壹号之地,大国文明的精神原乡。
· 上海下海 水乡底色
——源于上海浦,方得上海名!
北宋年间设立“上海务”开始,上海遂得名。当古河成为街道,下海浦仍旧为这片土地留下了“提篮桥”的称谓与一座下海庙。
· 先锋本色 风从海上来
——中国从此出发,世界走进中国!
1848年北外滩美租界开辟,英、美、日相继在此抢滩设立码头,北外滩成为上海水上门户。
· 海派亮色 里弄同频世界
——中西文明交汇,国际社区底色!
上世纪三四十年代,以欧洲侨民为核心的“国际社区”风貌,在提篮桥历史文化风貌区得以保留。
· 潮头砺色 城市日新月异
——城市烟火记忆,人文生活温度!
千禧年之前,代表上海发展高度和速度的沪东商业中心:提篮桥第一高——大名饭店、第一家旋转餐厅——远洋宾馆旋转餐厅、中国第一家证券交易所——上海证券交易所。

☑️☑️中粮北外滩壹号售楼处电话:400-8377-020☑️☑️

☑️☑️中粮北外滩壹号售楼处电话:400-8377-020☑️☑️
· 世界湾区,全球CAZ
北外滩+陆家嘴+外滩的黄金三角,上海“一江一河”城市战略规划核心段。

· 840万方城市生长力
4平方公里统一规划的雄心,北外滩以世界会客厅的尺度,重写全球资源配置。

☑️☑️中粮北外滩壹号售楼处电话:400-8377-020☑️☑️
· 超高建筑群重塑浦西城市天际线
——25年4月,约480米的浦西第一个高楼北外滩中心9根巨型结构柱已跃出地面,进入地上施工阶段,预计2030年完工。
——180米的上市中心正在建设中;2025年2月,上海华贸中心项目主楼规划调整从180米加高至249米,调整规划获批。
——320米的白玉兰广场,263米的来福士双塔、180米友邦金融中心、158米国华金融中心、100米FC金茂广场已投入运行。
此外,北外滩区域还规划了1栋380米建筑,2栋300-320米建筑,9栋200-265米的超高建筑。
从2020年北外滩新元年开始,《北外滩地区控制性详细规划》获批后,虹口区制定了“三年出形象、五年塑功能、十年基本建成”的发展目标,将北外滩定位为“新时代都市发展新标杆”和上海“中心辐射”新引擎。

☑️☑️中粮北外滩壹号售楼处电话:400-8377-020☑️☑️
· 全球菁英的北外滩国际生活区,未来生活的“超维样本”
——22公顷无车漫步区
——3.5万平方米航海公园与中央绿地相融
——3.4公里滨江休闲岸线

低密纯居与精工品质双重赋能
都彰显大宅气度
当黄浦江的百年潮声叩响城市记忆,中粮大悦城上海第五座壹号系,以更厚重的迭代之势,深植海派文化根系,以谦恭之姿对话历史文脉,以全球格局焕新城市界面。
这一次,不仅是「壹号」基因的传承,更是众多领域大师的匠心共著—— 从空间美学到细节工艺,从功能规划到精神共鸣,以跨界的智慧碰撞,雕琢大悦城控股上海又一封面力作。
☑️☑️中粮北外滩壹号售楼处电话:400-8377-020☑️☑️


☑️☑️中粮北外滩壹号售楼处电话:400-8377-020☑️☑️
· 90席天际大平层
俯揽黄浦江视野,执掌世界S湾的时代潮向。

· 118席海派风貌墅
重绎石库门风骨,唤醒海派生活的优雅基因。

☑️☑️中粮北外滩壹号售楼处电话:400-8377-020☑️☑️
☑️☑️中粮北外滩壹号售楼处电话:400-8377-020☑️☑️


☑️☑️中粮北外滩壹号售楼处电话:400-8377-020☑️☑️

☑️☑️中粮北外滩壹号售楼处电话:400-8377-020☑️☑️



☑️☑️中粮北外滩壹号售楼处电话:400-8377-020☑️☑️

☑️☑️中粮北外滩壹号售楼处电话:400-8377-020☑️☑️
建面约185㎡4房
双套房设计的飞机户型,居住舒适度较高
2梯2户设计,私享电梯厅独立入户;
入户玄关设计隐私性更强,独立玄关收纳空间;
LDKB一体化设计,大面宽阳台+客厅,尺度感十足!
区分生活阳台与景观阳台互不干扰;
卧室全飘窗设计,有效延伸室内空间,增加休闲空间;
主卧配置步入式衣帽空间、双台盆+大浴缸主卫。

建面约228㎡4房
☑️☑️中粮北外滩壹号售楼处电话:400-8377-020☑️☑️
户型动静分离、居住舒适度拉满!
独立电梯厅面积约7.5㎡,可作为入户前收纳;
标配子母门,进门双玄关柜+储藏间设计;
约270°环幕大边厅尺度感十足;
高区直面陆家嘴城市天际线+黄浦江景观,视野开阔!
中厨+西厨岛台、客餐厅+阳台面积近约53㎡,尺度阔绰!
主卧大套房设计带超大主卫和独立衣帽空间,面积约50㎡,妥妥顶豪水平!
次卧套房也有充足收纳空间和独立卫浴空间;
北向双次卧可作为儿童房和书房使用,功能性满分。

精装标准全面看齐国际顶豪,全系标配中央空调、全屋地暖、新风系统“三大件”,甄选劳芬、高仪、博世等国际一线品牌,更融入全屋智能控制系统、中央净水系统等高端配置,细节处尽显生活质感。外立面采用玻璃幕墙搭配进口葡萄牙米黄石材,既延续北外滩的典雅调性,又塑造出极具辨识度的现代轮廓,彰显央企精工的硬核底气。
15分钟生活圈的顶级资源聚合
让江风与绿意浸润生活日常
中粮北外滩壹号坚守“壹号”标准,配置 1800㎡海派高奢立体会所,涵盖恒温泳池、专业健身区、私宴厅等功能空间,由CCD香港郑中设计事务所操刀,复刻石库门经典元素,营造新旧交融的高端社交场景。

☑️☑️中粮北外滩壹号售楼处电话:400-8377-020☑️☑️


☑️☑️中粮北外滩壹号售楼处电话:400-8377-020☑️☑️
中粮·北外滩壹号,以城市封面之姿,执掌虹口北外滩核心区稀缺地段。坐拥“四轨三隧两快速”立体交通网络,无缝衔接城市脉搏;历史文脉与摩登繁华的双重馈赠,于繁华之上缔造理想生活图景。

☑️☑️中粮北外滩壹号售楼处电话:400-8377-020☑️☑️
纵横全城 从容畅达
—三轨三隧通达双快速—
4号线大连路站、12号线提篮桥站、19号线提篮桥站(在建中);大连路隧道、新建路隧道、北横通道(快速辐射内环),叠加南北通道(规划中);内环高架、北横通道瞬息接驳。
摩登与历史交辉
—商业地标环伺—
北外滩来福士(约600米)、瑞虹天地太阳宫(约350米)、白玉兰广场(约1公里),汇聚全球奢享;
外滩万国建筑群(约2.4公里)、陆家嘴三件套(约2.2公里),于窗前定格经典天际线。
自然与健康共生
☑️☑️中粮北外滩壹号售楼处电话:400-8377-020☑️☑️
—生态秘境—
北外滩中央公园(约6公顷)、北外滩滨江绿地(约1.8公里慢跑道)、霍山公园(社区绿肺),推窗见绿,转角遇美;
—医疗配套—
上海市第一人民医院(约1.9公里)、上海交大医学院附属新华医院(约2公里),三甲守护,健康无忧。

☑️☑️中粮北外滩壹号售楼处电话:400-8377-020☑️☑️
从不可复制的黄金三角区位
到低密纯粹的产品规划
再到全维顶配的资源配套与央企护航的品质服务
中粮北外滩壹号
为高净值人群
提供了入主上海城市核心的稀缺机遇
以全方位的价值优势
成为定义北外滩高端居住标准的
时代标杆
☑️☑️中粮北外滩壹号售楼处电话:400-8377-020☑️☑️
北外滩低密花园风貌住区
中粮大悦城上海第五座壹号系
壹号之上 再造壹号
【中粮·北外滩壹号】
建面约 185㎡/228㎡天际大平层
建面约 190㎡/210㎡/280㎡海派风貌墅
均价 143868元/㎡
208户(90套高层、118套别墅)
首开总价 2500万级起
即将入市,敬请期待
城市展厅【壹号会客厅】现已开放
诚邀参观
抢占全球城市会客厅的标杆之选
北外滩核心区
中粮大悦城上海第五座壹号系
顶层地段+顶层社区+稀缺天际大平层价值
「中粮北外滩壹号」
首开90套建面约185-228㎡天际大宅
均价143868元/㎡

☑️☑️中粮北外滩壹号售楼处电话:400-8377-020☑️☑️


☑️☑️中粮北外滩壹号售楼处电话:400-8377-020☑️☑️
☑️☑️中粮北外滩壹号售楼处电话:400-8377-020☑️☑️
「中粮北外滩壹号」作为中粮大悦城上海第五座“壹号系”标杆作品,堪称集万千优势于一身、上海高端住宅的典范。是有史以来第一个低密风貌壹号系,也是上海市中心12个历史风貌保护区中唯一一个成片风貌开发地块中的壹号系。
时间往前倒推15年,中粮大悦城围绕上海“一江一河”战略,布局5座壹号系豪宅作品,每一个都是板块标杆豪宅,拥有板块独立定价权!

全新壹号系低密风貌社区
「中粮北外滩壹号」容积率仅1.95,整个社区仅208户,包含90户云端大宅和118户风貌别墅,这样纯粹低密的居住社区在寸土寸金的市中心极为罕见,未来居住舒适度可想而知~

其中高层外立面昭示性十足!采用 仿红砖陶板 、优美柔和的设计元素、 白色石材窗板以及古铜色金属线条 设计,实现海派复古与现代建筑美学碰撞的艺术,颜值满分!

☑️☑️中粮北外滩壹号售楼处电话:400-8377-020☑️☑️
风貌别墅则复刻海派石库门的韵味,分成了三大组团,以当代设计笔法重构门头、放大窗墙比与院落尺度,提升居住舒适度;设计师更以石库门传统格局为骨架注入西洋新古典主义的精致魂魄,辅以Art Deco的现代锋芒,尽显传世级臻藏孤品的贵族基因。

顶豪御用设计天团打造调性十足!
「中粮北外滩壹号」承袭中粮大悦城壹号系顶豪基因,特邀全球豪宅设计天团打造,呈现出中粮壹号系顶豪力作!堪称当下顶豪品质社区匠心之选~

☑️☑️中粮北外滩壹号售楼处电话:400-8377-020☑️☑️
约1800㎡海派高奢立体景观会所
更难得的是,项目并未因地块规模而降低「壹号系」的顶豪标准,反而以突破性的“掘地三层”之魄力 ,专为业主打造约1800㎡的私享顶奢会所。
会所由全球顶奢酒店设计领域的标杆——CCD香港郑中设计事务所亲笔执笔。其精髓在于,将“酒店式的归家礼序”与“俱乐部式的圈层生活”融为一体,让每日“回家的路”,进阶为一场贯穿始终的、极具仪式感的生活体验。

☑️☑️中粮北外滩壹号售楼处电话:400-8377-020☑️☑️
为让公区真正成为业主家庭的延伸与生活聚场,设计团队针对高净值人群的真实生活轨迹,精准定制了全维功能场景:
活力健康区:配备 恒温泳池、专业健身空间与静谧瑜伽室 ,满足全方位的身心滋养。

社交宴会区:打造了私宴厅、茶室与专属酒吧,从商务酬酢到亲友欢聚,皆能从容应对。

☑️☑️中粮北外滩壹号售楼处电话:400-8377-020☑️☑️
雅集共聚区:奢华的舞蹈录音室与学习阅读等多功能空间,为圈层交流与家庭娱乐提供了理想场域。

从目前已释出的效果图可见,其设计品位远超市场同类豪宅。CCD将其于顶级酒店中积淀的美学功力注入于此,在材质、光影与艺术的交织中,营造出一种不流于表象的、经得起时间品鉴的奢华气韵。

☑️☑️中粮北外滩壹号售楼处电话:400-8377-020☑️☑️
这方藏于地下的心奢之境,不仅是项目硬核实力的彰显,更是为中粮·北外滩壹号的业主,构建了一个真正属于他们的、静谧而尊贵的“第二客厅”。

都市隐奢宅邸的叙事园林
景观设计以「拾光映象」理念,用镜面水景、古木纹石材与艺术雕塑,重构源福里往昔的街巷记忆。
整体规划一横两纵三大轴线, 串联高层住区、文化保护别墅区、新海派风貌别墅区,通过不同设计语言形成“新旧交融”的空间节奏——高层区以现代简约线条演绎都市格调,别墅区则复刻历史肌理并注入现代美学。

☑️☑️中粮北外滩壹号售楼处电话:400-8377-020☑️☑️

特别设计了八大映象典藏场景景观节点,有百年梧桐下的静谧巷道串联各景观节点,还有充满文化积淀的海派艺术庭院等,营造出精致、典雅的高阶生活氛围。

☑️☑️中粮北外滩壹号售楼处电话:400-8377-020☑️☑️
归家仪式感打造上也可圈可点!
通过棋盘式巷弄布局串联公共与静谧区域,利用庭院,露台、下沉式花园等打造多层次空间,营造“建筑可阅读、城市可漫步 ”的高定体验,享受“进退有度”的海派私属生活。

项目售楼处意向效果图如下👇



☑️☑️中粮北外滩壹号售楼处电话:400-8377-020☑️☑️

最新实探和航拍视频如下: (拍摄于2025年1月2日,大悦城北外滩项目附近)

☑️☑️中粮北外滩壹号售楼处电话:400-8377-020☑️☑️

☑️☑️中粮北外滩壹号售楼处电话:400-8377-020☑️☑️


☑️☑️中粮北外滩壹号售楼处电话:400-8377-020☑️☑️


☑️☑️中粮北外滩壹号售楼处电话:400-8377-020☑️☑️

交通方面,项目位于上海内环内,距离轨交4号线大连路直线距离约250米, 周边4、12以及在建19号线三轨交汇, 交通便捷。

☑️☑️中粮北外滩壹号售楼处电话:400-8377-020☑️☑️
商业方面,项目周边配套完善,商业密集,有北外滩来福士、太阳宫、白玉兰广场等大型商办综合体。
教育方面,地块附近有华师大一附初中(市重点)、华师大一附中实验小学(区重点),项目东侧紧邻正在建设的同济附属澄衷中学。
医疗方面,项目距最近的三甲医院上海市第一人民医院直线距离约1.9千米。

☑️☑️中粮北外滩壹号售楼处电话:400-8377-020☑️☑️
— 品鉴热线 —