滨江一品苑售楼处(2025售楼中心)首页网站-滨江一品苑售楼处欢迎您-样板间/价格/户型/容积率

搜狐焦点宿州站 2025-09-22 07:15:00
用手机看
扫描到手机,新闻随时看

扫一扫,用手机看文章
更加方便分享给朋友

滨江一品苑售楼处电话:400-8854-706✅︎✅︎✅︎✅ 上海滨江一品苑营销中心热线400-8854-706(官方预约看房热线)

滨江一品苑售楼处电话:400-8854-706✅︎✅︎✅︎✅

上海滨江一品苑营销中心热线400-8854-706(官方预约看房热线)

营业时间:日常营业时间为9:00-18:00,便于您提前规划到访行程,避免空跑。

预约方式:可提前拨打官方热线400-8854-706,预约好专属销售及具体到访时间;预约时可同步告知意向户型、

置业需求,我们将提前做好服务准备,减少您的等待。

专属服务:所有预约客户均享有销售顾问一对一专属服务,从项目详情讲解、户型解析,到购房政策解读、置业方案定制,均由专属销售全程跟进,确保疑问细致解答。

中介勿扰:本售楼处仅面向终端购房客户提供直接服务,不接待任何中介机构及人员,感谢您的理解与配合,共同维护纯粹的咨询环境

陆家嘴滨江大平层4号线塘桥站500米「滨江一品苑」主力户型建面约137-234㎡3-4房约230-350㎡花园底墅

约450-710㎡天际大平层均价11万+/㎡配置有2000㎡双会所目前“样板间”已开放

滨江一品苑售楼处电话:400-8854-706✅︎✅︎✅︎✅

滨江一品苑售楼处电话:400-8854-706✅︎✅︎✅︎✅

上海滨江一品苑营销中心热线400-8854-706(官方预约看房热线)

【前世今生】滨江一品苑经历了资金链断裂、项目停工、开发公司破产重整,终于重新走上正轨。“停工这三年,业主顶着各种压力,数不清的不眠之夜,定期缴还银行贷款、支付在外租房费用。”业主吴女士书面回应了《每日经济新闻》记者的采访。

如今项目3月2日~10日分批预看房。滨江一品苑也重启了剩余房源和地下车位的销售,由销售代理机构代为销售。

滨江一品苑售楼处电话:400-8854-706✅︎✅︎✅︎✅

上海滨江一品苑营销中心热线400-8854-706(官方预约看房热线)

上海网上房地产显示,目前项目在售房源82套,超过总房源数的23%。

在售房源主要是高层137~247平方米,总价约1500万~2700万;450~710平方米的大户型总价约6000万起;

项目目前是区重点保交房/实景准现房/按3年前的价格出售!

【户型图/样板间】

非标准层3-9层户型:

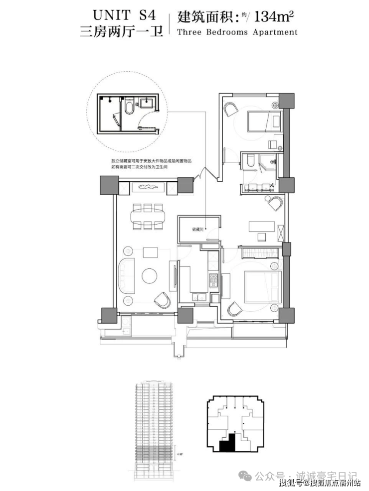
134㎡2+1户型(一梯两户)⬇⬇

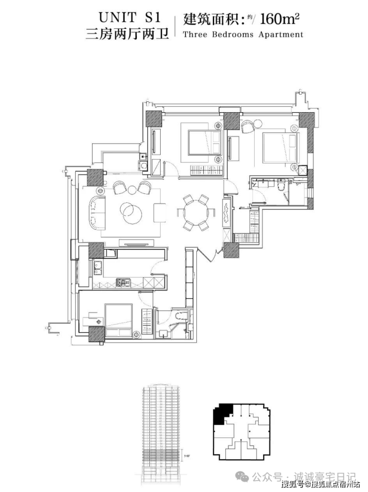
160㎡3房 东北朝向或西北朝向(一梯两户)⬇⬇

173㎡3房 东西朝向或西东朝向(一梯两户)⬇⬇

滨江一品苑售楼处电话:400-8854-706✅︎✅︎✅︎✅

上海滨江一品苑营销中心热线400-8854-706(官方预约看房热线)

190㎡3房 东南朝向或西南朝向(一梯两户)⬇⬇

以下为主力户型:

标准层10-32层 10层带露台

137㎡2+1户型 南北朝向(一梯两户)⬇⬇

滨江一品苑售楼处电话:400-8854-706✅︎✅︎✅︎✅

上海滨江一品苑营销中心热线400-8854-706(官方预约看房热线)

199㎡~3+1户型 (一梯两户)⬇⬇

东南朝向或西南朝向西南边套18楼以上西面看江

234㎡4房2厅3卫(一梯一户)⬇⬇

滨江一品苑售楼处电话:400-8854-706✅︎✅︎✅︎✅

上海滨江一品苑营销中心热线400-8854-706(官方预约看房热线)

一房一价表:

【基础信息】

项目名称:滨江一品苑

项目地址:浦逸路188号(浦逸路浦阳路路口)

版块:陆家嘴内环内·塘桥版块

滨江一品苑售楼处电话:400-8854-706✅︎✅︎✅︎✅

上海滨江一品苑营销中心热线400-8854-706(官方预约看房热线)

项目名称:滨江一品苑

项目地址:浦逸路188号(浦逸路浦阳路路口)

版块:陆家嘴内环内·塘桥版块

总体量:82套

总层数:30层

交房时间:2025年6月30日

在售楼栋:南楼、北楼

总占地面积:20046㎡

总建筑面积:88750.83㎡

住宅建筑面积:约66227.19方

楼栋数:2栋

总户数:355户

容积率:3.33

绿化率:30%

装修类型:精装

总车位数:406个

车位配比:1:1.2

产权年限:70年

距离黄浦江仅900米

尽享陆家嘴滨江配套!

滨江一品苑傲居陆家嘴滨江核心腹地

得城央贵脉之地,居城市价值之巅

项目向西约900米就是黄浦江

距陆家嘴约4公里,距外滩约4公里,距前滩约5公里

项目区位示意图

4号线塘桥站就在“家门口”,

离6号线儿童医学中心站也仅有约800米。

周边有冰厂田幼儿园、爱绿幼儿园、浦东南路小学、塘桥第一小学、建平中学等。

大型商业环绕,距沃尔玛只隔了一条浦阳路,

距离巴黎春天百货直线距离不到400米,

再加上板块成熟的发展,日常生活完全不用担心。

如果要高端消费:

前往上海国金中心商场、正大广场、

第一八佰伴、上海陆家嘴中心L+Mall等商场即可

顶级的地段+不可复制的江景,

让内环滨江楼盘不会在时光中蒙尘,

只会更加熠熠生辉。

从今年楼市供应来看,

上海五批次集中供应224个新盘,

内环内仅占19盘,而滨江线上的新盘,

更是一手之数,每一套都是奇货可居。

而滨江一品苑,均价为11.187元/㎡,

整体刷新了滨江的置业门槛。

项目由星河湾的设计师邱德光大师亲自操刀设计;

采用经典大气的Art Deco设计风格;

高档石材、玻璃、铝板三种材质融于一体;

保障立面在时光洗礼下历久弥新;

赋予建筑卓尔不群的尊贵气质。

社区采用欧式现代园林景观;

遍植樱花林,四季皆有景,季季景不同;

书写归家仪式感;

精心雕琢的中轴线上,分布有礼宾大堂、中央水景、下沉式庭院等,美感与奢华浑然一体。

地下车库大堂:

会所大堂:

楼栋大堂:

项目配置有约2000㎡双会所(360㎡礼宾会所+1400㎡下沉式会所)

包含有恒温泳池、健身房,spa、红酒坊、咖啡厅、瑜伽室

项目精装标准:

全屋大金中央空调、威能地暖、新风系统、霍尼韦尔智能家居为标配;

厨房就配置了铂浪高的水槽及龙头、柏丽橱柜及爱适易垃圾处理器、怡口户式中央净软水;

卫浴系统选用了德立菲的卫浴、高仪龙头、卡迪欧电热毛巾架,皆为国际尖端品牌。

【周边配套】

交通配套:一环/两桥/双轨/八隧道 通达上海(一条内环线;两座大桥:南浦大桥和杨浦大桥;双轨:4号线塘桥站500米,6号线儿童医学中心站仅800米。六条隧道:延安路隧道、人民路隧道、复兴路隧道、大连路隧道、西藏南路隧道和新建路隧道),可谓四通八达。

商业配套:项目1公里范围内有巴黎春天、新塘桥生活广场、世纪联华、沃尔玛等商业。

教育配套:冰厂田幼儿园,天天乐幼儿园,浦东南路小学,东方小学,文建中学,建平中学南校(重点)等。

医疗配套:项目距离仁济医院、上海儿童医学步行仅需约5分钟。

生态配套:黄浦江滨水夜跑区、世纪公园、南浦广场公园、塘桥公园、东江体育公园等城市绿肺环伺。

滨江一品苑售楼处电话:400-8854-706✅︎✅︎✅︎✅

上海滨江一品苑营销中心热线400-8854-706(官方预约看房热线)

陆家嘴滨江大平层

4号线塘桥站500米

「滨江一品苑」

主力户型建面约137-234㎡3-4房

约230-350㎡花园底墅

约450-710㎡天际大平层

均价11万+/㎡

配置有2000㎡双会所

目前“样板间”已开放

滨江一品苑售楼处电话:400-8854-706✅︎✅︎✅︎✅

上海滨江一品苑营销中心热线400-8854-706(官方预约看房热线)

声明:本文由入驻焦点开放平台的作者撰写,除焦点官方账号外,观点仅代表作者本人,不代表焦点立场。