上海-外滩瑞府售楼处电话:400-833-6309【官网】
外滩瑞府营销中心热线400-833-6309(售楼处预约看房热线)
继首批次火速售罄后,外滩瑞府再传重磅消息:
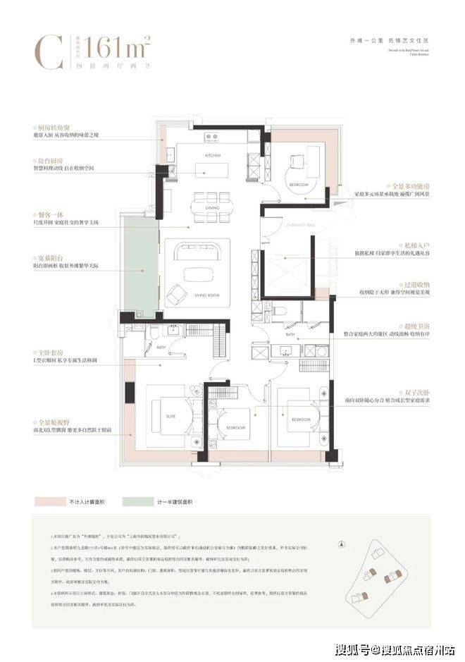
二批次1、3#房源已过会,均价148300元/㎡!此次新品阵容诚意十足,建面约195/240㎡4房新品首次亮相,同时还有一批次备受追捧的建面约123/164㎡3-4房明星户型。
回溯一批次热销盛况,其背后核心逻辑,正是对“买房就是买地段”的精准印证。
当下上海市中心豪宅供应密集,但真正能穿越市场周期、实现资产“躺赢” 的,始终是 公认的顶豪圈子。而外滩早已突破地域限制,成为全国富豪共识的TOP级豪宅阵地,这份来自全国的认可度,将是其价值永葆活力、持续领跑市场的底气。
难得的是,在外滩板块豪宅门槛普遍达6000万+的当下,外滩瑞府以 3000万级起(建面约195㎡户型)的总价外滩瑞府营销中心热线400-833-6309(售楼处预约看房热线),为买家打开了进驻顶豪圈的“稀缺窗口”。无需承担过高门槛,即可与外滩共享城市核心资源、共赴长期价值增长,这样的机会,错过难再寻,195/240㎡只有这批次。

外滩1公里外滩瑞府营销中心热线400-833-6309(售楼处预约看房热线)
外滩瑞府二批次已过会
主力户型建面约240-195-164-123㎡3-4房
外滩板块稀缺入场券,即将认购
对项目有兴趣的朋友
欢迎点击预约看房
外滩瑞府营销中心热线400-833-6309(售楼处预约看房热线)

3000-3500万级入席外滩!
外滩瑞府告诉你:买外滩买的是这些硬实力
买外滩买的是什么?
1、买外滩,买的是全国富豪,共识下的顶级价值锚点
当下上海内环,看似豪宅琳琅满目,但纵观市场起伏,真正能穿越周期的,唯有“公认豪宅圈”的核心资产。
上海三大豪宅圈——外滩、新天地、陆家嘴已成型。而 外滩是其中更具全国号召力的“价值标杆”。此前,金陵华庭以套均约8200万实现“日光”,这份热度的背后是来自全国高净值人群的集体认可:
外滩不仅是上海地理意义上的城市核心,更是全国财富圈层心中默认的“资产安全区”与“身份符号”。

在这个圈子里,豪宅的价值不依赖短期市场波动,而是靠 全国共识级的认可度、不可再生的稀缺资源聚合度双重托底。
无论房价保值性、资产流动性,还是圈层纯粹性,都远超普通豪宅板块——因为选择这里的,不止上海本地买家,更是遍布全国的顶尖购买力,他们对“外滩”二字的价值认同,让这片土地的资产始终拥有稳固的支撑。
而外滩瑞府核心竞争力,在于其对“外滩核心圈”的精准占位(直线外滩约1公里)。外滩瑞府营销中心热线400-833-6309(售楼处预约看房热线)
意味,项目从根源上享受外滩独有“全国级价值基因”,这是非核心板块楼盘难以企及的“硬底气”。
2、选择外滩,不止是居所,更是全球级价值与身份的象征
选择外滩,另一原因是其全球级商业文化底蕴与“上海名片”价值。这份吸引力,有数据为证:据上海发布统计,截至10月4日,今年十一假期超220万人次游客涌向外滩,这里始终是上海必游地标。

图片来源上海黄浦
而客流背后,是外滩“城市核心引擎”的硬实力——百年文化底蕴、52幢万国建筑群承载的金融高度,再加沪上半数奢牌酒店,构成独一无二的价值场。
但对 外滩瑞府业主,外滩瑞府营销中心热线400-833-6309(售楼处预约看房热线)这不是需要规划的旅程,而是日常:
外滩的风景是下楼散步的背景,这里的繁华是骑行途中的寻常。选择这里,就是把全球级资源,私享成生活配套。

外滩板块实景图外滩瑞府营销中心热线400-833-6309(售楼处预约看房热线)
更关键的是,外滩瑞府对望上海“世界级黄金三角”——外滩(世界级滨水区、全球会客厅)、陆家嘴(国际金融中心)、北外滩(世界级会客厅),三者均为世界级定位,是上海作为全球城市的核心动力源。在3000-3500万级市场,论地段价值,外滩瑞府独领风骚,无出其右。

3、买外滩,买的是上海顶阶的城市更新红利
如今入手市中心,“城市更新”是绕不开的核心考量—— 即便贵如金陵华庭,也在期待金陵路焕新带来的价值升级。而外滩,无疑是上海城市更新能量更强的板块,于外滩瑞府,板块内大规模更新,更是外滩板块未来5年的“价值爆破点”。

过程方案示意图,以实际交付为准
这份红利,体现在两大维度:外滩瑞府营销中心热线400-833-6309(售楼处预约看房热线)
①、九龙路滨水空间焕新
据最新阶段性方案(非终版,过程示意图,以实际交付为准),这里将打造红砖艺术长廊、迎宾树阵、文化景墙、全龄及宠物友好花园,融合漫步、社交、休闲功能。未来业主下楼即享慢时光,这里更有望成为媲美徐汇滨江、受全城Citywalk爱好者追捧的滨水地标。

过程方案示意图,以实际交付为准
②、约7000㎡邻里风貌底盘赋能
不仅让历史建筑重获生机,更能强力拉升板块价值——这种由文化底蕴驱动的价值提升,远比新建商业、景观更具穿透力与持久性。
据悉,风貌底盘将引入社区咖啡馆、瑞府邻里客厅、便民综合体(含超市)及社区公共服务中心等,既满足日常便捷需求,更联动周边风貌,推动整片区域的城市界面革新,带来全新生活方式。

过程方案示意图,以实际交付为准
在城市更新过程中,一条亿级TOP圈层也在成型。不同于其他新房仅能成为板块内的价格高点,外滩瑞府从起点就站在了这条亿级圈层脉络上,这份先天优势,是同价位项目难以企及的。外滩瑞府营销中心热线400-833-6309(售楼处预约看房热线)

4、买外滩,买的是“收藏”的稀缺资产
外滩的珍贵,更藏在其不可复制的稀缺性里——自2010年至今,外滩1公里核心圈内仅供应1889套新房,占全市新房总量比例低至 约0.15%。
如此稀少的供应,让外滩资产早已超越“居住”属性,更添“收藏”价值;选择这里,本质是拥有一份可传承的外滩臻稀资产。

稀缺性之下,外滩的价值也直接体现在价格上。
外滩瑞府营销中心热线400-833-6309(售楼处预约看房热线)外滩板块正全面迈向20万/㎡,新房套均普遍达5000万+,甚至8000万+;关键,外滩后续可供土地少,未来产品大概率是风貌或超级大平层,想进驻外滩的机会只会越来越少。

因此, 外滩瑞府当下的机会更显难得:
195/240㎡约3000-3500万级总价是当前能跻身外滩核心圈的稀缺窗口。这样的门槛,在全面高净值化的外滩板块中,或难再出现——错过此刻,大概率就错过了进驻外滩的最后机遇。

240㎡新品+3500万级总价
解锁塔尖圈层入场券
外滩瑞府营销中心热线400-833-6309(售楼处预约看房热线)
为何说外滩瑞府是外滩核心资产?
不仅依靠稀贵地段,更在于本次加推的240㎡新品,总价3500万级,让“进驻外滩”从“地段占有”升级为“圈层融入”。
①、约240㎡尺度,精准匹配外滩塔尖居住需求,区隔普通内环项目
在外滩,“面积”是对高阶生活方式的深度匹配。当前内环非黄浦区域180㎡以下刚改户型占比约73%(2025年数据),240㎡及以上户型仅占约10%。
外滩瑞府此次不仅有240㎡,更还有约280、330㎡产品,全方位覆盖塔尖人群对“居住质感”的严苛要求。不仅凸显户型的稀缺性,更从产品根源上区隔了内环普通刚改项目,奠定了项目的高阶调性。

②、3500-6000万级总价,锚定外滩塔尖圈层,填补市场空白
总价,是圈层的天然筛选器,更是跻身外滩核心资产的关键。
据小胖君统计,内环非黄浦区域超九成项目主力总价集中在3000万以下,难以匹配塔尖人群的资产配置与圈层需求;而外滩板块内,多数新房面积超350㎡,总价太贵,难寻入场机会。
外滩瑞府3500-6000万级的总价定位,恰好填补这一市场空白:一方面,这个总价段远超内环普通新房总价,筛选出财富实力、生活品味、资源需求同频的塔尖人群;外滩瑞府营销中心热线400-833-6309(售楼处预约看房热线)
另一方面,它避免了外滩板块内“超高总价”的门槛压力,让渴望融入外滩核心圈层的塔尖人士,不必为“非必要面积”承担额外成本,以更合理的总价锁定外滩核心资产。

但要注意,本次加推的240㎡户型仅这一批次供应,席位稀缺且再无补仓可能,一旦错过,便意味彻底错失以这一尺度与总价入住外滩核心、融入塔尖圈层的机会。

约270°IMAX 厅堂+超级主卧+国际大牌奢装!
外滩瑞府 240㎡户型太惊艳
外滩瑞府营销中心热线400-833-6309(售楼处预约看房热线)
我们再看240户型,从专属入户仪式到全景生活场景,从国际奢材甄选到功能细节打磨,这款户型都尽显高奢。
1、专属入户礼序:塔尖仪式感从进门开始
一梯一户,推门即享专属电梯厅,搭配气派双开门入户设计,归家仪式感拉满;进入室内,超阔绰玄关厅不仅能容纳海量收纳需求,更以科学左右分区设计实现动线分流,让每一次出入都尽显从容与尊贵。
2、约270°IMAX超级厅堂:把城市天际线装进家里
客厅以超大尺度惊艳亮相,若打通北向X空间,可拓展为约90㎡超级厅堂,家族宴请or高端社交,皆能轻松承载;约270°环幕视野将采光与观景效果推向极致,中高楼层可眺望陆家嘴三件套。
厅内空间充裕,既容得下大家庭聚餐的超大圆桌,也有独立西厨岛台,满足高净值家庭多元烹饪需求。
3、灵活X空间:为成长型家庭定制更多可能
户型预留的灵活 空间,可根据家庭成员需求随时变换功能——书房、琴房,专属化妆室...每一种场景都能精准适配,让空间随生活成长而进化。
4、主卧小家化:私享级奢居体验
南向双套房设计,其中主卧以“小家化”理念打造超大私人空间:就寝区面宽开阔,搭配独立梳妆台,满足日常精致需求;L型大衣帽间收纳容量充足,轻松容纳四季衣物;主卫亮点十足,不仅做到南向采光,还配置双台盆、独立马桶、淋浴区与浴缸四件套,堪比五星级酒店的配置。
5、配独立家政间:让家庭井然有序
家政间彻底释放了阳台,让阳台成为观景配套或者志趣空间;且位置在进门处,离两个卫生间很近,“洗烘一体”的动线高效。

6、细节配置与奢材:国际大牌+高定选材,同级品质天花板
✔装修品牌:外滩瑞府营销中心热线400-833-6309(售楼处预约看房热线)全系采用国际一线大牌,中西厨配置嘉格纳9件套;博洛尼橱柜搭配定制拉篮与调味架,让厨具收纳井然有序,尽显细节质感。
✔高定选材:玄关地面选用“白雪公主”玉石,质感温润高级;地面延展祥云灰水墨岩,与外滩华尔道夫酒店同源材质,瞬间提升空间格调;主卧背景墙更以威尼斯安缦酒店同款树瘤木,搭配巴黎宝格丽酒店同源羊皮纸,将全球顶奢酒店的居住质感搬进家中,每一处选材都彰显塔尖人居的高奢基因。
细节太多,可参考建面约240㎡样板间视频:
而这些贯穿户型的高端元素,更是外滩瑞府整个项目的品质缩影。
作为华润置地上海的顶级标杆作品,它从根源上为居者赋予顶豪级的公区质感、审美格调与仪式感。要知道,公区不同于室内装修,后期难再耗费成本升级,华润置地直接以“顶配标准”打造,牢牢奠定了高端生活的基石。
这份打造顶豪的底气,从其集结的顶级设计天团可见一斑:GOA大象设计、渡边智昭、泰国TROP事务所、无间设计吴滨、李益中等行业顶尖力量,共同为外滩瑞府的高端基因保驾护航。

其中,汤臣一品御用设计师渡边智昭操刀的泛会所尤为亮眼。他突破传统局限,不仅打造了独立“室内外双幕水剧场”,更创新地将高阶社交功能分散于四栋塔楼之下,规划出温莎廊吧、公啡花房、子恺乐园与Gym CLUB四大主题泛会所,满足不同人群的社交与生活需求外滩瑞府营销中心热线400-833-6309(售楼处预约看房热线)。



过程方案示意图,以实际交付为准
社区景观同样是艺术杰作,外滩瑞府特邀国际景观大师Pok Kobkongsanti打造,大师将对印象派光影的理解,化作可步入、可触摸的“印象派自然秘境”。六大主题花园错落分布,全域风雨连廊串联四季景致,让居者在繁华都市中,也能享受惬意。外滩瑞府营销中心热线400-833-6309(售楼处预约看房热线)

过程方案示意图,以实际交付为准外滩瑞府营销中心热线400-833-6309(售楼处预约看房热线)
最后,项目还有建面约195-164-123㎡3-4房:



外滩瑞府二批次建面约120-240㎡3-4房
已过会,即将认购
对项目有兴趣的朋友
欢迎点击预约看房~外滩瑞府营销中心热线400-833-6309(售楼处预约看房热线)上海-外滩瑞府售楼处电话:400-833-6309【官网】
外滩瑞府营销中心热线400-833-6309(售楼处预约看房热线)
继首批次火速售罄后,外滩瑞府再传重磅消息:
二批次1、3#房源已过会,均价148300元/㎡!此次新品阵容诚意十足,建面约195/240㎡4房新品首次亮相,同时还有一批次备受追捧的建面约123/164㎡3-4房明星户型。
回溯一批次热销盛况,其背后核心逻辑,正是对“买房就是买地段”的精准印证。
当下上海市中心豪宅供应密集,但真正能穿越市场周期、实现资产“躺赢” 的,始终是公认的顶豪圈子。而外滩早已突破地域限制,成为全国富豪共识的TOP级豪宅阵地,这份来自全国的认可度,将是其价值永葆活力、持续领跑市场的底气。
难得的是,在外滩板块豪宅门槛普遍达6000万+的当下,外滩瑞府以3000万级起(建面约195㎡户型)的总价外滩瑞府营销中心热线400-833-6309(售楼处预约看房热线),为买家打开了进驻顶豪圈的“稀缺窗口”。无需承担过高门槛,即可与外滩共享城市核心资源、共赴长期价值增长,这样的机会,错过难再寻,195/240㎡只有这批次。

外滩1公里外滩瑞府营销中心热线400-833-6309(售楼处预约看房热线)
外滩瑞府二批次已过会
主力户型建面约240-195-164-123㎡3-4房
外滩板块稀缺入场券,即将认购
对项目有兴趣的朋友
欢迎点击预约看房
外滩瑞府营销中心热线400-833-6309(售楼处预约看房热线)

3000-3500万级入席外滩!
外滩瑞府告诉你:买外滩买的是这些硬实力
买外滩买的是什么?
1、买外滩,买的是全国富豪,共识下的顶级价值锚点
当下上海内环,看似豪宅琳琅满目,但纵观市场起伏,真正能穿越周期的,唯有“公认豪宅圈”的核心资产。
上海三大豪宅圈——外滩、新天地、陆家嘴已成型。而外滩是其中更具全国号召力的“价值标杆”。此前,金陵华庭以套均约8200万实现“日光”,这份热度的背后是来自全国高净值人群的集体认可:
外滩不仅是上海地理意义上的城市核心,更是全国财富圈层心中默认的“资产安全区”与“身份符号”。

在这个圈子里,豪宅的价值不依赖短期市场波动,而是靠全国共识级的认可度、不可再生的稀缺资源聚合度双重托底。
无论房价保值性、资产流动性,还是圈层纯粹性,都远超普通豪宅板块——因为选择这里的,不止上海本地买家,更是遍布全国的顶尖购买力,他们对“外滩”二字的价值认同,让这片土地的资产始终拥有稳固的支撑。
而外滩瑞府核心竞争力,在于其对“外滩核心圈”的精准占位(直线外滩约1公里)。外滩瑞府营销中心热线400-833-6309(售楼处预约看房热线)
意味,项目从根源上享受外滩独有“全国级价值基因”,这是非核心板块楼盘难以企及的“硬底气”。