中海恒昌玖里2025官方网站(中海恒昌玖里)上海房天下-2024年中海恒昌玖里首页网站-楼盘详情 /价格/户型

搜狐焦点宿州站 2025-09-14 12:39:27
用手机看
扫描到手机,新闻随时看

扫一扫,用手机看文章
更加方便分享给朋友

【中海·顺昌玖里】售楼处电话:400-8377-020

上海风貌豪宅重头戏

黄浦区新天地城央烫金地段

【中海·顺昌玖里】售楼处电话:400-8377-020

推出4套风貌商业别墅

约392-622㎡ 风貌商业别墅

总价6000万-1.5亿

可以直接定!

海派顶豪的收藏窗口期转瞬即逝

新天地·中海顺昌商墅391-613㎡沿街直接定

中海顺昌恒里|类似于纽约曼哈顿的沿街城市别墅

新天地|海派文化溯源地|传统石库门里弄风格

项目信息

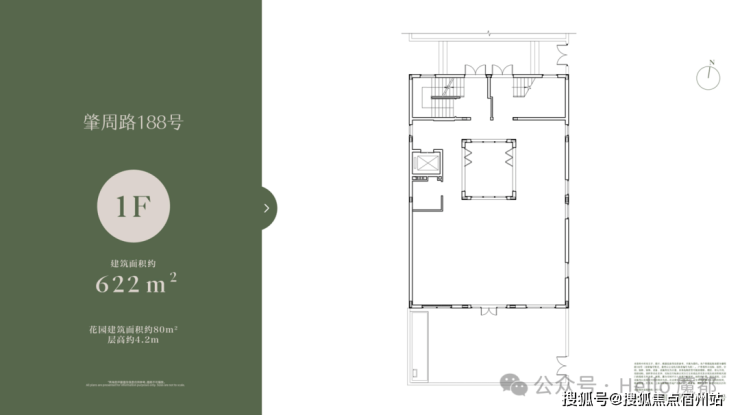
🏠项目:【中海恒昌玖里】商墅

🌆层高:1F 4.2米;2F 3.5米;3F 3.08-4.5米;地下约5米(挑高)

🛣️花园:约80-140㎡

🎊面积:地上面积391-613㎡,地下252-309㎡

亮点:不限购沿街商墅JueJia地段,大面宽、窄进深。采光、私密性、开间尺度感做到了新天地Zui优。完美的品质人居,传承收藏之作。

【中海·顺昌玖里】售楼处电话:400-8377-020

【中海·顺昌玖里】售楼处电话:400-8377-020

【中海·顺昌玖里】售楼处电话:400-8377-020

声明:本文由入驻焦点开放平台的作者撰写,除焦点官方账号外,观点仅代表作者本人,不代表焦点立场。