保利虹桥和著-【2025保利虹桥和著售楼处】首页网站-最新价格-户型解析-容积率-商业配套-楼盘最新测评保利虹桥和著-【2025保利虹桥和著售楼处】首页网站-最

搜狐焦点宿州站 2025-09-18 10:10:33
用手机看
扫描到手机,新闻随时看

扫一扫,用手机看文章
更加方便分享给朋友

【保利虹桥和著】售楼处预约咨询热线:400-8824-198

尊敬的客户:

您好!

每一次寻觅,都是对理想生活的向往;每一次驻足,都藏着对家的期待。我们深知,您心中的 “家” 不仅是一处居所,更是承载生活温度、满足品质追求的港湾。而【保利虹桥和著】,正以匠心打磨细节,以实力诠释宜居,只为匹配您对美好生活的所有想象。

在这里,您能拥有的不只是一套房子,更是触手可及的优质生活:

优质教育:项目自带双语幼儿园,仅一路之隔,从启蒙到成长,优质教育资源环伺,让孩子在家门口就能享受到省心、放心的教育配套,家长无需为择校焦虑。

品质户型:精心设计多元户型,从温馨两居到阔绰四居,满足单身自住、新婚刚需、三口之家乃至多代同堂的不同需求。所有户型均采用南北通透设计,保证充足采光与良好通风;客厅连接观景阳台,延伸生活空间的同时,将窗外美景尽收眼底;厨房 U 型布局、卧室飘窗设计,每一处细节都兼顾实用性与舒适度,让家更懂您的生活习惯。

为了让您更深入地感受【保利虹桥和著】的品质与魅力,我们诚挚邀请您预约专属看房服务。现在预约,还能享受三大专属福利:

专属置业顾问 1 对 1 服务:根据您的需求(预算、户型偏好、生活规划等),为您详细解读楼盘信息、推荐合适房源,解答您的所有疑问,让您看房更高效、更省心。

优先体验社区配套:预约客户可优先参观社区园林、样板间(包括精装 / 毛坯不同风格),部分已开放的配套设施(如会所、健身区)也可优先体验,提前感受未来生活场景。

专属看房礼:到访后即可领取定制礼品一份(如品牌家电小样、家居实用礼包等),成功预约并到访,还可参与现场抽奖活动,有机会赢取家电、物业费抵扣券等惊喜福利。

预约方式超简单:

电话预约:拨打专属预约热线【400-8824-198】,告知置业顾问您的姓名、联系方式及方便看房的时间(如 “本周六下午 2 点”),即可锁定看房名额。

为保证服务质量,每日预约名额有限,建议您提前 1-3 小时预约,以便我们为您预留充足的服务时间。

看房当天若有户型、楼层等特殊需求,可提前告知置业顾问,我们将提前为您准备相关资料,让看房更有针对性。

售楼处开放时间:周一至周五【9:00-18:00】,周末及节假日【9:00-18:00】,您可根据自身时间灵活安排。

家,是藏在细节里的安心,是看得见的未来。【保利虹桥和著】期待与您相遇,一同探寻理想生活的模样。无论您是首次置业、改善居住,还是投资规划,我们都将以专业、真诚的服务,帮您找到最适合的那套 “家”。

如有任何疑问,欢迎随时联系我们,祝您生活愉快!

【保利虹桥和著】售楼处预约咨询热线:400-8824-198

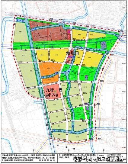
最新消息,保利·虹桥和著 九年一贯制学校官宣落地!14号线地铁盘!「保利·虹桥和著」将推约94-128㎡3-4房!精奢国际住区 !

【保利虹桥和著】售楼处预约咨询热线:400-8824-198

近日,上虹桥板块迎来重磅利好,教育资源直接大升级。

【保利虹桥和著】售楼处预约咨询热线:400-8824-198,12月19日,嘉定区与上海师范大学举行深化教育合作签约。上海师范大学拟在江桥镇倾力打造一所公办九年一贯制学校和一所公办幼儿园,为江桥北虹桥地区教育版图再添重彩。上师大附属九年一贯制落地选址北虹之星14-01地块,上师大附属幼儿园落地选址北虹之星08-06地块,还将纳入上海师范大学嘉定基础教育集团。

【保利虹桥和著】售楼处预约咨询热线:400-8824-198此外,双方还将探索创新优秀干部的区校共育机制,上海师范大学将委派优秀年轻干部到嘉定区教育局或基层单位任职、挂职,为嘉定教育高质量发展注入新的活力。

此举将大幅提升江桥地区的教育资源能级,完善北虹桥教育版图,为区域发展带来全新活力和发展机遇。

【保利虹桥和著】售楼处预约咨询热线:400-8824-198消息一出,江桥家长群直接嗨翻!要知道,上师大基础教育集团综合实力更是强劲的很,“含金量”非常之高!

近年来,上师大基础教育集团还先后在嘉定、松江、宝山、金山、青浦成立了教育子集团,助力各区域教育水平升级。

有如此实力名校加持,不用多说,江桥的教学水平和高素质人口导入也将迈上新台阶,江桥区域将迎来新的未来!上师大资源的引入,是对上虹桥这片成片规划打造的城市更新区的价值高度的证言。

【保利虹桥和著】售楼处预约咨询热线:400-8824-198对于购房者来说,优质教育为孩子的未来增添了一份确定性,作为片区内首发项目——保利·虹桥和著来说,更可谓是如虎添翼。

地铁+学校,掌握当下现有的超强确定性;一手国际社区+进阶宅,掌握未来的超强发展上限。据悉,保利虹桥和著正在认购中,热势抢购,火热数据实力出圈!

嘉定·江桥 14号线地铁约200米

「保利虹桥和著」

将推建面约104㎡海派精奢国际住区

备案均价55992元/㎡

将于3月12日-3月16日开启认筹

限时认筹预约专享97折活动

保利虹桥和著】售楼处预约咨询热线:400-8824-198

一房一价

【保利虹桥和著】售楼处预约咨询热线:400-8824-198

01.基本信息

上海首个“和著系”作品,不惜成本打造引领未来人居的社区

【保利虹桥和著】售楼处预约咨询热线:400-8824-198为了让“和著系”能在上海一炮而红,保利虹桥和著方方面面不惜成本拿出高标准配置,打造兼顾实用价值与情绪价值的作品。

记忆点十足得建筑审美

【保利虹桥和著】售楼处预约咨询热线:400-8824-198保利虹桥和著的建筑设计记忆点十足

还未进入小区,远远就能看见约100米超长沿街酒店式落客礼仪大门,臻选贝金米黄石材打造,历久弥新,豪宅级的归家仪式感由此拉开。

【保利虹桥和著】售楼处预约咨询热线:400-8824-198项目得建筑主体则采用高级灰+香槟金铝板线条,浅色石基座,融合以海派建筑元素,以经典三段式建筑,演绎东方式的低调奢华,L型折板+横向线条,将建筑的立面雕刻得更具层次与质感。

大手笔打造园林景观

【保利虹桥和著】售楼处预约咨询热线:400-8824-198整个社区打造了“两轴、三带、六园”的景观结构,环环相扣、交相辉映,约160m的中央花园轴,以翠影草坪为核心,串联尊享迎厅、水榭林涧、星际乐园、悠活天地等功能空间,将公园生活引入自家社区,还有五重归家礼序,以悦享门廊为核心,森活绿地无界相融,营造城市与家之间的松弛缓冲带,值得一提的是,整个园林设计中大量应用爱马仕灰大理石铺装,不惜成本提升质感。

媲美星级酒店得品质公区

【保利虹桥和著】售楼处预约咨询热线:400-8824-198地下地上双精装入户大堂,为业主营造星级酒店式的礼遇,不仅地上入户大堂品质感十足,地下大堂也光影璀璨铺陈,电梯直达业主私享入户门厅,特别是双开门电梯+阳光梯厅的独创设计,给足了媲美千万级豪宅的尊崇感。

02.推售信息

保利·虹桥和著将推约94-128㎡3-4房,共计598套房源,目前售楼处&样板房已开放,预计将于本月入市。

【保利虹桥和著】售楼处预约咨询热线:400-8824-198保利虹桥和著的户型设计格外出众,在精控面积的同时,通过优秀的格局设计,让空间效率大大提升,非常具有代表性的就是,充分利用了双开门电梯+阳光梯厅的优势,打造独立外玄关空间,营造归家仪式感的同时,也具有相当的实用价值

具体到个个户型来说

1)建面约94㎡3房

“麻雀虽小五脏俱全”虽然相比一般百平米左右三房,该户型在建筑面积上缩减了约10㎡,但功能与尺度却不逊色,南北通透的飞机户型,没有过道浪费,因而保证了适宜的尺度感,LDKG一体化设计让几个功能区独立又互通,没有视觉遮挡也使得将空间感进一步拓展,阳台270°采光+多飘窗设计,打开更多的采光面与视野面,也大大提升了室内的通透感与舒适度,细节方面,次卫干湿分离的设计,提高了使用效率这对于小户型非常重要。

2)建面约104㎡3房可能是最好的百平米三房之一

【保利虹桥和著】售楼处预约咨询热线:400-8824-198建面约104㎡3房,在建面94㎡小3房优点上,又进一步升级了尺度感,约10.3m的南向面宽,为室内带来了出众的采光面和尺度感,这个户型无论从实用性、尺度感,亦或是视野、采光、私密性来说,都做得相当优秀。

建面约128㎡4房稀缺改善户型,灵活性强

【保利虹桥和著】售楼处预约咨询热线:400-8824-198过去很长一段时间,由于土地端7090政策限制,新房产品绝大部分以百平米左右刚需产品为主,而保利虹桥和著此次将推出建面约128㎡稀缺舒适四房,本身就是一次难得的改善机遇,更何况该户型设计非常亮眼,四开间朝南设计,尽可能将更多阳光引入室内,主卧270度飘窗+南北通透大套房设计,同级别户型中十分罕见,充分满足舒适度和身份感。

甄选高标准精装

【保利虹桥和著】售楼处预约咨询热线:400-8824-198而在精装方面,保利虹桥和著不仅甄选国际知名品牌,而且配置内容相当丰富,举几个例子:

比如厨房除了常规配置的厨电套件,还有洗碗机、末端净水装置、线性凉霸,以及定制橱柜等;又比如主卫,除了知名品牌龙头与台盆,还配置了智能马桶,可以说从业主真正生活的角度出发,精心营造品质生活。

03.板块规划

【保利虹桥和著】售楼处预约咨询热线:400-8824-198江桥北虹桥作为嘉定区“十四五”乃至更长时期发展的重要增长极和强力引擎,规划中已经明确将全力打造成为承载虹桥国际中央商务区主导功能,链接辐射长三角的创新经济集聚区、中央商务配套区和高品质国际化社区。

【保利虹桥和著】售楼处预约咨询热线:400-8824-198在功能布局上,整个江桥将呈现“一核聚能、一带润城、三轴联动、四区共荣”的北虹桥全新城市空间格局,积极承载虹桥国际中央商务区“大科创”功能,以创新经济、总部经济为特色,打造数字新经济、生命新科技、低碳新能源、汽车新势力产业链融合生态集群。

北虹桥城市空间格局示意(图:江桥北虹桥)

【保利虹桥和著】售楼处预约咨询热线:400-8824-198在规划设计上,全新北虹桥开发地区遵循“以人为本、产城融合、多元包容、活力共享”的理念,对土地进行规划调整、整体提升、功能再造,着力打造“产城融合示范区、三生融合体验区、政企合作样板区”。

江桥北虹桥地区的快速发展和繁荣,变得更加确定!

其实在去年,江桥为配合规划而打造的三大标杆性项目建设“一城、一湾、一区”均已提速。

【保利虹桥和著】售楼处预约咨询热线:400-8824-198

“一城”:上海临港嘉定科技城

总面积约2.75平方公里,规划可建商办超20万m²;围绕科技创新、商贸流通和咨询服务三大重点行业,大力发展创新经济、总部经济和数字经济。

【保利虹桥和著】售楼处预约咨询热线:400-8824-198

“一湾”:虹桥新慧总部湾

总建筑面积37万㎡,嘉定“五型经济” 的重要承载区,绿色开放、生态和谐、名企林立的总部集聚标杆地。

【保利虹桥和著】售楼处预约咨询热线:400-8824-198然而,这两个项目规模其实都不算大,根本原因还是受制于土地的捉襟见肘。

然而,这两个项目规模都受制于土地的捉襟见肘,规模不算大。真正能形成质变的,就是“一区”——“上虹桥·城市更新区”,其中就包括了西区北虹之星社区和东区幸福产业片区!

2023年10月,《嘉定“上虹桥·城市更新区”规划》正式发布,北虹桥商务区“一城、一湾、一区”规划中,“一区”的规划更清晰了——未来将成为大虹桥乃至上海甚至整个长三角的创新经济集聚区、中央商务配套区和高品质国际化社区,引领赋能大虹桥和长三角。

【保利虹桥和著】售楼处预约咨询热线:400-8824-198“上虹桥·城市更新区”由嘉定区与上海地产集团共同推进,采用整体开发模式,品质和界面将得到更大的保障。项目一期占地面积约2500亩,分为东西两个片区。

西区规划约1100亩土地,整体规划为“一轴两心,五区连网”,着力打造功能复合、绿色低碳、全龄友好的国际社区。这个片区包含了幼儿园、国际学校、九年一贯制学校的规划用地,大量的公共绿地及水系资源,增加了生态宜居的标签。

“上虹桥·城市更新区”西区效果图

【保利虹桥和著】售楼处预约咨询热线:400-8824-198东区规划约1400亩土地,整体架构为“一核、一带、两轴、多组团”,聚焦商务研发功能。

“上虹桥·城市更新区”东区效果图

目前,嘉定区已构建“1+4+N”产业政策体系,尤其在契合北虹桥发展的创新经济、总部经济等方面给予支持。

同时,“上虹桥·城市更新区”还享有虹桥、张江、临港、嘉定四重政策区的叠加优势,在产业、科创、财税、人才等方面均享有最优方案。

“上虹桥·城市更新区”效果图

● 双轨交汇:

【地铁14号线——超级换乘枢纽 】

步行约200米至地铁14号线封浜站,可与1、2、3、4、6、7、8、10、11、13、15、18号线等多条地铁线路实现换乘。

【地铁嘉闵线(在建中)——南北走向“黄金走廊”】

【保利虹桥和著】售楼处预约咨询热线:400-8824-198近地铁嘉闵线乐秀路站(在建中),约3站直达虹桥(以政府规划为准),加速链接虹桥商务区、七宝、莘庄等重要区域。

● 近13号线金运路站——纵横城芯5大区

纵横普陀区、静安区、黄浦区,通达南京西路、淮海中路、新天地等地

● 嘉闵高架——南北动脉

“三横三纵”的交通布局是上海核心区域的重要网络,三横包括曹安公路、京沪高速和沪嘉高速;三纵则由嘉闵高架、中环高架和外环高速构成。其中嘉闵高架作为上海“三横三纵”重要南北动脉,接轨虹桥商务区,高效连接上海各区。丰富商业配套畅享生活:

① 项目南向约6公里是江桥万达广场(约25万方,集购物、餐饮、娱乐、休闲等多功能于一体的大型商业综合体,西上海重要的商业地标之一),北向开车约6.5公里即达南翔印象城(约34万方,当下上海最大单一商业体)、南翔山姆会员店;项目东向1.5公里龙湖欢肆商业(在建)、维乐城,满足您一切消费需求。

您可以通过14号线6站到达中环百联;12站到环球港;13站就可以到达静安寺商圈,一步享受上海中心城区商业配套。

② 本项目西侧规划商业约1.4万方、南侧社区中心约1.4万方(含菜场约2100㎡、运动中心约2600㎡),且包含“人民坊”示范项目。将会打造成为江桥的核心商业之一。教育资源丰富、未来将引进国际化特色民办学校(规划中),同时规划了九年一贯制公办学校,家门口即可享受全龄段优质教育资源。

【保利虹桥和著】售楼处预约咨询热线:400-8824-198约1.2km绿野谷(规划中)、迎虹湖(规划中)连接U型廊与一字川,构建起滨水城市界面。繁华与滨水同赏,重著国际湖居森活新样板。嘉定·江桥 14号线地铁约200米

【保利虹桥和著】售楼处预约咨询热线:400-8824-198

「保利虹桥和著」

将推建面约104㎡海派精奢国际住区

备案均价55992元/㎡

将于3月12日-3月16日开启认筹

限时认筹预约专享97折活动

保利虹桥和著】售楼处预约咨询热线:400-8824-198

825新政能否唤醒上海楼市的“金九银十”?

上海8.25楼市新政出台后,多项数据反映出积极信号。

根据上海佑威房地产研究中心统计,8月份上海二手房成交达到19,912套(含商业、车位),环比微涨2.97%,同比去年增长11.34%。尤其值得注意的是,8月30日单日成交1103套,创下近两个月来的新高。

新房市场也出现局部火热现象。

外环外的两个项目——闵行梅陇的保利・海上印三批次和宝山杨行的金茂棠,均实现了“开盘即清盘”。不少其他楼盘的访客量和成交量也比新政前有明显提升。

市场一线的反馈同样积极。七宝某中介门店负责人表示:“新政出台后,咨询量确实上涨明显,几乎每天都有新客户主动询问。同时,着急挂牌置换的房东也增多不少。”

那么,新政究竟为何在此时推出?它又将对外环内市场乃至环沪区域产生怎样的影响?上海楼市后续走势如何?

为什么现在出这个政策?

8月25日,上海推出新一轮楼市调控政策,涉及限购放宽、公积金政策优化和房产税调整三方面核心内容。

新规明确,符合购房条件的居民在外环外购房不再限制套数,单身人士也可参照家庭标准执行。公积金贷款额度普遍上调15%,多子女家庭购买首套房可额外叠加优惠;同时允许提取公积金支付首付,且不影响贷款额度核定,首套与二套房的利率差异也被取消。房产税方面,首套暂免征收,二套及以上住房可享受人均60平方米的免税面积扣除,新政策将于2025年起正式实施。

简言之,825新政核心是外环外全面放开限购——此前可买1-2套,如今可购无限套,同时叠加利率下调、公积金使用门槛降低、房产税小幅减免三重利好。

此时上海推出“825新政”,核心目的是应对市场持续下行、稳定房价预期,并精准化解外环外高库存风险,是一次在关键时点推出的结构性宽松政策。

而推出的直接原因在于市场已陷入“量价齐跌”的困境。

安居客数据显示,上海二手房价格从今年2月后已连续7个月下跌,9月环比再降0.79%,同比跌幅高达9.17%;平均成交周期延长至128天,房东陷入“降价亏资产,不降价卖不掉”的两难局面。整体市场信心偏弱,亟需政策注入稳定性。

更深层次看,政策出台有三重考量:

其一,紧扣“金九银十”窗口期,传统销售旺季是提振交易的最佳时机。政策效应一般有2-3个月的释放期,此时松绑能最大程度促进成交反弹。

其二,响应中央“止跌回稳”导向,在国务院明确要求“更大力度巩固市场复苏”的背景下,上海有必要推出实质性措施以防范楼市进一步下滑。

其三,缓解区域结构失衡。与今年5月全市普惠的“527新政”不同,本次政策精准聚焦外环外市场——该区域库存压力大、去化速度慢,全面放开限购、降低购房成本,可有效释放本地改善与刚需潜力,避免“一刀切”刺激导致核心区域过热。

北京“8·8新政”的阶段性成效,为上海825新政提供了有价值的参照。

根据中指研究院数据,北京新政实施后(8月9日-9月7日)新建商品住宅日均成交达1.26万平方米,较7月日均增长7%;克而瑞统计进一步显示,8月北京新建商品住宅成交2733套,环比上涨6.2%,显示出政策对市场活跃度的提振作用。

在此背景下,市场关注焦点自然转向上海:825新政能否同样借助“金九银十”传统销售契机,有效激活外环外市场,并带动全市楼市逐步走出低谷呢?

对上海房价影响是多面的

上海楼市“825新政”出台后,对房价的影响呈现多面性和结构性分化的特征,市场整体呈现“外环外热度与压力并存,外环内抗跌性凸显”的复杂格局。

一、外环外:热度与压力并存

新政后,外环外多个楼盘打出“通宵卖房”口号,中介带看量和成交量有所提升,但市场情绪仍以理性为主。

多位中介反馈,“虽然少数房东试探性涨价,但绝大多数业主都愿意降价出货,只想趁新政窗口期尽快成交。”中介自身也积极促交易,“只要客户不太过分,基本会把握新政窗口期尽力成交”。

这种“表面热闹”背后,数据印证了市场的真实压力:上海二手房挂牌价已连续七个月下跌,9月全市均价降至46738元/平方米(安居客统计至9月13日),环比再降0.79%,同比跌幅达9.17%。区域分化明显,嘉定、松江、崇明仅微涨0.10%-5.97%,而金山则以1.94%的跌幅领跌。

新房市场同样未现整体回暖。

尽管多个楼盘宣称“24小时不打烊”或“回收优惠”,但实际去化仍依赖大幅让利。据凤凰网房产调查,外环外如松江国贸鹭原、嘉定大华梧桐樾、奉贤大名城映雨江南等项目,除明面95折外,还通过开发商返现(最高30–40万)和中介返佣等暗扣方式促销,部分房源实际成交价相当于7–8折。

但是促销效果依然有限。佑威数据显示,8月上海新房仅成交3033套,环比下跌9.50%。甚至有项目被指制造“水筹”假象,如虹口金茂璞元宣称“日光”,但截至9月4日仍有24套房源未售。

值得一提的是,外环外很多新房市场冷热分化明显,如保利海上印、招商林屿畔等“日光盘”得益于成熟配套与优质产品设计,而东苑古北悦公馆等项目网签挂零。

产生分化的原因主要是这些区域配套不足、产品设计与需求错配。不少板块缺乏商业、教育、医疗支持,轨道交通覆盖有限,通勤成本高,难以吸引自住买家;部分楼盘户型落后、规划陈旧,也无法满足改善型需求。

为加速去化,一些远郊楼盘已通过“政府采购”模式,将房源转为保障性租赁住房。尽管利润压缩,但企业可借此回笼资金、减轻负债。

值得注意的是,新政对于外环外部分房源实为“利空”——尤其那些无地铁、无配套的“老破小”动迁房或品质较差的商品房,由于公积金“可提可贷”新政降低了新房上车门槛,部分购房需求转向总价可控的新房,反而加剧了存量二手房的竞争。

二、外环内:稀缺性支撑抗跌性

与外环外相比,外环内市场表现出更强的稳定性。

上海外环内面积仅占全市约13%,此次新政放开外环外限购(近90%区域),却仍严格保留外环内限购,反而凸显了核心区资产的稀缺性。

核心区(内环内)政策保持不变:沪籍家庭限购2套,非沪籍需3年社保购1套。严格的准入限制抑制了投机需求,市场以自住和长期资产配置为主导,房价抗跌性较强。地段价值、成熟配套和有限供应,共同支撑其保值属性,价格预计保持平稳或随经济基本面缓慢波动。

相对而言,市区“老公房”可能面临需求分流压力。预算有限的购房者如今更倾向于外环外新房,因其享有政策红利和更高产品品质,而老公房在贷款优惠、税费减免等方面并无优势,需求可能进一步收缩。

怎么样看待上海楼市?

最惨的莫过于环沪楼市。

回想2021年前后,环沪区域曾吸引大量投资客涌入,被称为“上海后花园”,掀起一阵“稳赚不赔”的购房热潮。然而短短几年,市场已发生根本转变——上海每一次政策松绑,对环沪而言都意味着一轮冲击。

环沪楼市的兴起,本质是承接上海外溢的购房需求。早期上海限购严格,部分不具备购房资格的刚需客不得不选择环沪。但随着上海外环外限购大幅放开,环沪失去了“不限购”和“低总价”两大核心优势。无论是刚需还是投资客,都出现向上海回流的趋势,环沪市场正面临近十年来最严峻的挑战。

上海发布新政次日,苏州连夜取消市区新房2年限售政策,意味着楼市全面解除限售。然而政策“松绑”后,苏州二手房单日新增挂牌量即达2000多套,背后折射的是市场低迷的现实。

克而瑞数据显示,苏州7月商品住宅成交仅12万㎡,环比下降70%;8月新房成交虽环比上升13.92%,同比仍下跌21.18%。二手房无论环比同比,均全线下跌。

类似情况普遍存在于启东、杭州湾、嘉善、平湖、吴江汾湖、太仓等环沪区域。

环沪楼市暴跌可归因于三大因素:产业空心化,多数区域定位“睡城”,缺乏产业支撑;配套承诺未兑现,规划中的学校、商业、交通等多未落地;上海政策松绑形成虹吸,外环外购房门槛降低直接抽走环沪需求。

更值得注意的是,环沪楼市还出现“新房比二手房便宜”的倒挂现象。例如花桥象屿都城怡园推出五折促销,83平小三房总价98万,比同小区二手房低20%以上,而周边二手房挂牌价普遍在1.2-1.3万/㎡,成交周期长达120-240天。

这一反常现象源于开发商迫于资金压力降价回款,而个体业主难以承受大幅亏损,导致价格体系扭曲。

那么以上现状,对于当前的市场参与者意味着什么?我们应如何看待并作出决策?首席认为这暗含着截然不同的机遇与挑战——它既不是普遍上涨的信号灯,也不是全面衰退的警报器,而是一把需要精准把握的“双刃剑”。

对于卖房者,需明确的一点是,新政旨在救流动性,而非推高价格。

外环外房东应根据家庭资金状况,选择降低负债或趁热度出货。房源素质较好的可略低于市场价成交,远郊区域(如奉贤海湾、青浦白鹤、浦东泥城惠南)业主更应加速出售。尤其位于外环外新房密集区的二手房,需警惕后续抛压,抓住当前窗口期果断决策。

对购房者,刚需群体迎来史上最宽松窗口,买房门槛大幅降低,外环外热点板块如唐镇、莘庄、徐泾、浦锦、梅陇、七宝综合实力突出可以入手;若预算500万以内可关注南翔、杨行、曹路、周康、江桥、泗泾等高性价比板块。

新房近年产品力显著提升,居住体验更好,预算充足者建议优先考虑。但无论新房二手,都应多看多比,选择具稀缺性和竞争力的产品。

对投资者而言,当前楼市如同“刀尖舔血”,政策风险高,接盘群体日益减少,建议投资回避。

至于环沪房产,如果是刚需,当然可以考虑,但如果是投资目的,普遍不建议购入。

总的来说,825新政为外环外新房提供定向支持,有助于缓解库存压力和稳定土地市场,但难以根本扭转市场下行预期。

当前上海楼市仍处于探底阶段,政策仅起到阻跌作用,未触发全面反弹。未来市场能否企稳,仍需观察配套落实、价格调整和购房者信心恢复情况。

声明:本文由入驻焦点开放平台的作者撰写,除焦点官方账号外,观点仅代表作者本人,不代表焦点立场。