华润•士林润园官方网站-华润•士林润园售楼处电话-华润士林润园楼盘详情-交房时间-地址-最新房价户型图-小区环境-楼盘详情-交房时间-周边配套-售楼处电话

搜狐焦点宿州站 2025-09-14 10:27:43
用手机看
扫描到手机,新闻随时看

扫一扫,用手机看文章
更加方便分享给朋友

华润士林润园 vip热线:400-118-5086√√√【已认证】 华润士林润园营销中心电话:400-118-5086√√√【已认证】 上海华润士林润园 官方售楼处电话:400-118-5086√√√【已认证】

华润士林润园 vip热线:400-118-5086√√√【已认证】

华润士林润园营销中心电话:400-118-5086√√√【已认证】

上海华润士林润园 官方售楼处电话:400-118-5086√√√【已认证】

如果您对华润士林润园 有任何疑问,都可以拨打售楼处电话进行咨询。目前案场仅接待预约客户,参观本项目时需提前至少1小时拨打售楼处电话进行线上预约,可享受专属优惠折扣。

预约内容:时间、人数、是否开车【开车需告知车牌预留车位】

现场还需动态验资,包括但不限于基金、股票、房产等。

纵观上海近代史,地块街巷历久弥新,建筑的生命延续也更为恒久,老西门一带作为上海近代史源起的黄浦老城厢,市中心的繁华与豫园的历史底蕴在这里交汇

项目位于上海城市文明之源,海派文化的发源地“老城厢”的主轴核心之上,紧邻士林华苑一期,由南房集团与华润置地联合匠筑,共建约103席位低密合院墅作。

点击输入图片描述(最多30字)

项目左拥新天地、淮海中路,右抱陆家嘴,北倚人广、外滩,南侧是一路连缀的豪宅区。顶尖商圈、潮流文艺街区,甚至上海地标们、未来城市封面都将是项目的生活场域。加上豫园这百年来传承的文化底蕴,仅看现有的地段价值,已足够吸引人。

别忘了黄浦区正如火如荼进行着的城市更新。项目周边城市更新的地块基本已确认,未来城市界面、配套能级的兑现速度可期!

点击输入图片描述(最多30字)

士林润园 vip热线:400-118-5086√√√【已认证】

士林润园营销中心电话:400-118-5086√√√【已认证】

上海士林润园 官方售楼处电话:400-118-5086√√√【已认证】

如果您对士林润园 有任何疑问,都可以拨打售楼处电话进行咨询。目前案场仅接待预约客户,看房需提前拨打电话进行线上预约,可享受专属优惠折扣。

项目简介

【士林润园】由103席建面约210-500㎡合院式风貌别墅组成,这是市场唯一纯合院别墅小区,103栋户型都不一样,做到一户一定制,没有重复性,项目位于黄浦区老城厢正核心,1.5公里达到新天地、外滩,配套齐全。

约200平面积段:(目前300㎡以下售罄)

210平-5套、240平 -1套、280平-2套、290平-1套

约300平面积段:

310平-55套、330平-1套、390平-34套

约400-500平面积段:

430平-2套、480平-1套、500平-1套

【以上为建筑面积不含地下室】

价格区间:

210-310平总价约6000-6900万左右

310-390平总价约6900-1.2亿左右

390-500平总价约1.2-1.65亿左右

【士林·润园】

上海缘起处,重塑老城厢

纯合院别墅区 荣耀再启

#黄浦城芯纯合院润园揭幕

全球海派非遗传世源址

物业类型:70年

建筑面积:地上210、310、390、400-500平米,送地下面积200-500平

毛坯交付,也可以帮您装修!

梯户比 :“独立电梯厅”设计

产品:三种风格石库门风格、红砖、青砖

✨层高 :面宽12米,层数:地上3层,地下2层,层高:1F3.6米;2F-3F3.3米;地下约5米(挑高)花园面积:约50-100㎡(赠送)

商业:自带1500平会所

【卖点】

1、2025年热门顶豪别墅真正对标中海顺昌恒昌

2、华润豪宅系、超级产品力+难以复制地段

3、户型好,大面宽、窄进深采光、私密性佳

4、总户数:103户,物业费:23元/平/月

5、圈层主力建面210-600㎡,邻里高端、纯粹

点击输入图片描述(最多30字)

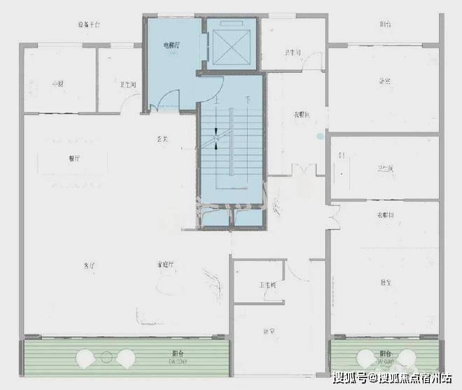
项目官宣户型图

点击输入图片描述(最多30字)

点击输入图片描述(最多30字)

点击输入图片描述(最多30字)

点击输入图片描述(最多30字)

点击输入图片描述(最多30字)

点击输入图片描述(最多30字)

点击输入图片描述(最多30字)

点击输入图片描述(最多30字)

360m²合院户型图

点击输入图片描述(最多30字)

360㎡下叠边套示意图

点击输入图片描述(最多30字)

236㎡叠拼3-5F大平层示意图

点击输入图片描述(最多30字)

项目样板实景图▼

点击输入图片描述(最多30字)

点击输入图片描述(最多30字)

点击输入图片描述(最多30字)

最新效果图

点击输入图片描述(最多30字)

点击输入图片描述(最多30字)

点击输入图片描述(最多30字)

点击输入图片描述(最多30字)

点击输入图片描述(最多30字)

点击输入图片描述(最多30字)

点击输入图片描述(最多30字)

点击输入图片描述(最多30字)

点击输入图片描述(最多30字)

【士林·润园】的室内样板房由傅厚民设计,这也是他全球作品中的第一个风貌别墅项目。

点击输入图片描述(最多30字)

点击输入图片描述(最多30字)

点击输入图片描述(最多30字)

点击输入图片描述(最多30字)

室内拥有高挑的天花板和宽阔的客厅,能够让空间显得更加开阔。此外,合理的空间布局和细节设计也使得每个功能区都显独立性又相互连接,保证了空间尺度又兼顾了实用性。

点击输入图片描述(最多30字)

餐厅的设计巧妙融合了老上海的经典元素,圆形餐桌和橘色皮质餐椅在色彩上既现代又充满活力,顶部的水晶吊灯造型灵感来自上海市花“玉兰花”,既增添了空间的华丽感,又巧妙地融入了上海的地域特色。

点击输入图片描述(最多30字)

点击输入图片描述(最多30字)

点击输入图片描述(最多30字)

复古简约的家具和细节装饰,在空间中自然融入,同时避免过度繁复。这样的设计既保留了历史的厚重感,又契合现代人的生活需求。

点击输入图片描述(最多30字)

点击输入图片描述(最多30字)

点击输入图片描述(最多30字)

点击输入图片描述(最多30字)

点击输入图片描述(最多30字)

从庭园看向别墅,保留的老山墙、砖楣和门头,再加上悬挑阳台和层层露台,这种传统风貌带给人一种重见历史的感慨,又有温馨、宁静的现代舒适感。

点击输入图片描述(最多30字)

风貌配套会所

士林润园的会所位于项目的核心区域,与整体园区的景观、居住区有良好的联系。

点击输入图片描述(最多30字)

会所也由傅厚民设计,室内通过诸多细节,展示连接过去与现在的对话。例如,特别设计了一条结合石库门拱门元素的通道,让人们在这里就能感受到一段传承的历史记忆。

点击输入图片描述(最多30字)

整个会所的布局开放、流畅,动静分明,让人一进门就能感受到宽敞与舒适。

点击输入图片描述(最多30字)

休息区是一个充满私密感的空间,这里摆放着各种款式的复古式组合沙发,仿佛将人带回到了上海的旧时光。

点击输入图片描述(最多30字)

点击输入图片描述(最多30字)

会所内的泳池上方做流畅且立体的吊顶线条,造型现代且富有层次感。这样的设计不仅提升了空间的视觉效果,更营造出一种轻松、悠闲的度假氛围。

点击输入图片描述(最多30字)

健身房的设计也同样充满了细节。黑框玻璃门的复古韵味,和现代健身空间的功能性做到了完美结合。

点击输入图片描述(最多30字)

车库也极具品质,色彩和风格都延续了海派的经典气质。

点击输入图片描述(最多30字)

士林润园借鉴大族院落的设计,打造了一个完美融合历史与现代的院墅社区。103席合院沿袭“一宅一园”的旧时格局,并完整保留 53 处原址构件,建成一座“城市 DNA 库”。

老宅中的历史细节也巧妙融入现代设计,例如张家族宅的界石变成了墙角雕塑,胡氏墨厂的雕纹化作山石屏风。

点击输入图片描述(最多30字)

除了宅院,士林润园还通过“润园八景”的设计,把上海深厚的历史和文化融入每一寸空间。拄颊映、文开园、亭桥街、棹湾处、云间诗、申之华、海上花、小桥头,这些景观设计基于上海历史文化中的典故和逸事。

点击输入图片描述(最多30字)

点击输入图片描述(最多30字)

点击输入图片描述(最多30字)

点击输入图片描述(最多30字)

点击输入图片描述(最多30字)

点击输入图片描述(最多30字)

点击输入图片描述(最多30字)

点击输入图片描述(最多30字)

点击输入图片描述(最多30字)

点击输入图片描述(最多30字)

点击输入图片描述(最多30字)

点击输入图片描述(最多30字)

士林华苑二期位于内环内黄浦区老西门街道,地块东至望云路、西至河南南路、南至蓬莱路、北至士林华苑一期。

点击输入图片描述(最多30字)

士林华苑二期属于黄浦区老西门街道旧城改造项目,项目一期于2007年竣工,项目北面复兴东路一路之隔就是复地雅园和璞玉one。

点击输入图片描述(最多30字)

二期在2021年7月发布了房屋征收补偿协议生效公告。 2021年12月华润入股,项目由南房和华润共同联合开发!

点击输入图片描述(最多30字)

点击输入图片描述(最多30字)

根据规划,士林华苑二期需要“落实风貌保护要求,深化地块布局和建筑方案设计,同步实施建设相关公共服务配套”。

点击输入图片描述(最多30字)

整体地块的强制性管控要求: 建筑以多低层为主,檐口高度不得超过12米。

点击输入图片描述(最多30字)

点击输入图片描述(最多30字)

沿蓬莱路设置地块内部绿化,总面积不小于1000平方米,其边界为可变控制,宽度约为10米。

点击输入图片描述(最多30字)

关于地下空间强制性管控要求如下:

1/地下可建设范围面积和功能功能布局均为弹性控制,具体以建设项目规划管理阶段审定方案为准。地下空间建议开发两层,预留地下三层的可能性。

2/地下一层可建设范围面积约为2.75万平方米,包含商业设施,牙防所附属设施,住宅套内地下室空间等功能。

3/地下空间应建设地下连通道与北侧已建成地下空间相连接。

点击输入图片描述(最多30字)

总体而言,项目左拥新天地、淮海中路,右抱陆家嘴,北倚人广、外滩,南侧是一路连缀的豪宅区。

顶尖商圈、潮流文艺街区,甚至上海未来城市封面都将是士林华苑的生活场域,加上豫园这百年来传承的文化底蕴。

这样的地段人文底蕴和繁华配套兼备,无疑是上海城心核心资产,塔尖人士可提前关注起来!

点击输入图片描述(最多30字)

「周边配套」

交通方面:周边交通网络成熟,总结起来就是“一桥三环四线五隧道”,其中四线就包括了8号线老西门站、10号线的豫园站、9号线的小南门站及14号线的豫园站,,交通畅达出行便利。

点击输入图片描述(最多30字)

商业方面:香港名都城、豫园商圈、复兴艺术中芯,人民广场、新天地、外滩、南京路步行街等商业环绕。注:紫华路河南南路口地块也将建成大型商业综合体。

点击输入图片描述(最多30字)

教育方面:周边的公立学校有复兴东路三小、上海实验小学、蓬莱路二小等,初中有光明初级中学及市十、市八,康德及永昌两所九年一贯制的民办学校等。

点击输入图片描述(最多30字)

医疗方面:上海九院、瑞金医院、仁济医院西院、黄浦区中西医结合医院、曙光医院西院、复旦大学附属妇产科医院等众多享誉全国的医疗资源。

点击输入图片描述(最多30字)

黄浦老西门

士林华苑二期

【士林润园】

接待中心已开放

主力建面约270-400㎡叠拼+合院

将首开103套合院产品

预计总价约

建筑面积约270㎡(地下室不计入)起

买房是一项重大的投资决策,需要综合考虑多个方面。以下是一些需要注意的事项和问题:

1.购房资格与政策

确认自己是否符合当地购房政策(如限购、贷款政策等)。

了解购房资格的条件,避免因政策限制导致交易失败。

2.预算与资金规划

明确自己的购房预算,包括首付、贷款额度和月供能力。

避免过度负债,确保月供不超过家庭收入的合理比例(一般建议不超过30%)。

3.房屋选择

地段与配套:优先选择交通便利、周边配套成熟(如学校、医院、商场)的区域。

户型与朝向:关注户型方正性、采光通风、南北通透等因素。

楼层与楼栋位置:避免选择低楼层(如1-3楼)或靠近马路、噪音源的楼栋。

4.产权与法律风险

查验房屋产权是否清晰,确保无抵押、查封或产权纠纷。

对于二手房,需查看原房主的房产证,并核实是否存在租赁、户口未迁出等问题。

5.合同与交易流程

签订购房合同时,仔细阅读条款,明确房屋价格、交房时间、违约责任等关键信息。

确保资金通过正规渠道(如资金监管账户)支付,避免私下交易。

6.物业服务与社区环境

了解小区的物业服务水平,包括安保、卫生、设施维护等。

关注小区的居住氛围和邻里关系,避免选择回迁房或管理混乱的小区。

7.验房与质量问题

交房时进行专业验房,检查房屋质量(如墙面、地面、水电等)。

对于发现的质量问题,及时要求开发商整改。

温馨提示:买房前建议咨询专业人士(如律师、房产顾问),确保自身权益得到充分保障。理性购房,避免盲目跟风

2025年8月25日,上海发布楼市新政,明确自8月26日起外环外区域取消限购,单身购房与家庭政策统一,并同步优化公积金、信贷及房产税政策。

1.限购调整

外环外不限套数:符合条件的居民家庭(含沪籍及非沪籍社保/个税满1年)在外环外购房不再限制套数。

单身视同家庭:成年单身人士购房标准与家庭一致,沪籍单身外环内限购2套,非沪籍社保满3年可购外环内1套。

2.公积金优化

贷款额度提升:购买绿色建筑住房,公积金贷款额度最高上浮15%(首套最高184万,多子女家庭216万)。

支持“提付首付”:可提取公积金支付首付款,且不影响后续贷款额度。

3.信贷政策调整

商贷利率统一:不再区分首套与二套利率,由银行根据客户风险灵活定价,降低改善型需求成本。

4.房产税减免

非沪籍家庭首套房暂免房产税,二套及以上按“人均60㎡”扣除免税面积,降低持有成本。

点击输入图片描述(最多30字)

华润士林润园 vip热线:400-118-5086√√√【已认证】

华润士林润园营销中心电话:400-118-5086√√√【已认证】

上海华润士林润园 官方售楼处电话:400-118-5086√√√【已认证】

如果您对华润士林润园 有任何疑问,都可以拨打售楼处电话进行咨询。目前案场仅接待预约客户,参观本项目时需提前至少1小时拨打售楼处电话进行线上预约,可享受专属优惠折扣。

预约内容:时间、人数、是否开车【开车需告知车牌预留车位】

现场还需动态验资,包括但不限于基金、股票、房产等。

声明:本文由入驻焦点开放平台的作者撰写,除焦点官方账号外,观点仅代表作者本人,不代表焦点立场。