信达·信安里
矜贵老静安 传城亦传承
静安寺一英里 步行可至
稀藏恒贵资产 仅27席
静安第一代梧桐浓荫区
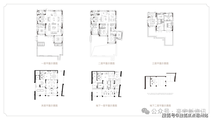
风貌别墅建面275-541㎡
均价19.98万/㎡ 总价5686万-1.1亿
MODEL ROOM RESERVATION
信达·信安里售楼处电话:400-8377-020

源起静安寺,信达地产上海首个城市更新作品——信达信安里
起笔南京西路一英里浓荫恒产
典藏建面约270-525㎡风貌艺墅珍品
里献全球名宅隐贵之所。
从藏身到藏心 藏物到藏己的生活进阶

地下1F志趣空间,约7.2m层高,私人菁英社交圈层。首层花园入户,大横厅会晤场域,与时代精神际会。二三层静谧于心,起居室多套房设计,梧桐下的栖心之所。屋顶露台、花园庭院,超大附赠面积,藏身心于天地恢弘。
类独栋别墅·翠竹雅苑 印象公馆、琉璃光廊、雅集花园、人文巷道、私家庭院
百乐门印象·休闲社交 架空层泛会所,酒店式大堂、阅读区、健身区、多功能区
别墅巷道·艺文烟火 公共巷道、主题纵巷、端头水景、宅间花园,四级里弄巷道

【围合墅藏】私家花园庭院,独门独院、围合天地、连院宽厅,世界尽藏一隅。
【志趣墅藏】最高约7.2m地下一层层高,可改造地下挑高夹层,延伸无尽生活志趣。
【奢享墅藏】高附赠率别墅空间,无柱、无廊、大落地窗设计,人生得意须尽宽。
【静谧墅藏】独创双层分户墙隔音技术,外墙&楼板约200mm厚度,首层北侧和山墙面开窗外置百叶。


信达·信安里售楼处电话:400-8377-020













信达·信安里售楼处电话:400-8377-020
信达·信安里
矜贵老静安 传城亦传承
静安寺一英里 步行可至
稀藏恒贵资产 仅27席
静安第一代梧桐浓荫区
风貌别墅建面275-541㎡
均价19.98万/㎡ 总价5686万-1.1亿
MODEL ROOM RESERVATION
信达·信安里售楼处电话:400-8377-020





静安第一代梧桐浓荫区
全球隐贵名宅区 世代相承时代璀璨的东方峯尚目的地
自1862年静安肇始,从张园、百乐门到美琪大戏院、梅龙镇酒家,缩影上海百年精粹。百年后,静安寺商圈荟萃“梅恒泰”、嘉里中心、芮欧百货、兴业太古汇等,执掌上海奢贵据点。





老静安——上海第一代梧桐区肇始地,这里走出了“民国第一外交官”顾维钧、“中华民国教育总长”蔡元培、“晚清第一首富”盛宣怀、“香港第一首富”何东、“世界建筑大师”贝聿铭等,名流风范世代相承,东西文明由此赓续,静安由此迈向全球名宅区。
散落浓荫的高贵门庭
动辄亿元的风貌老洋房 于此溯源
一座静安寺,三片风貌区。南京西路历史风貌区——凤阳路、陕西北路,衡复历史风貌区——华山路、湖南路,愚园路历史风貌区——愚园路、常德路,动辄亿元的浓荫区老洋房,历史从这里溯源。

信达信安里,植入曹家渡历史场景记忆,融入“渡口溯源、百乐门印象、沪西电影院”国际静安的文化元素,永葆当代海派门第涵养,以全球在地化语境的当代转译,激活百年风貌的艺术人文新里。
市政绿化公园·归家花园 车行次入口,植入渡口溯源文脉记忆,由喧嚣都会转入游园幽径
上海百乐门印象·海派门仪 海派文化综合体验馆,尊奢门廊、仪式水景、雕塑水景、仪式景墙
沪西电影院·花园客厅 休闲吧台、社交娱乐、红砖景墙、影院记忆、观景平台、游园幽径

风貌灵魂保留 从巴黎孟莎顶的法式⻛情
到上海人文屋脊的海派风华
双折式屋顶—孟莎式屋顶,源自法国古典主义建筑师弗朗西斯科·孟莎。17世纪晚期,成为法国古典主义建筑的流行形式。今天,人们依旧能在巴黎、法国北部看到成片的孟莎式屋顶,其中包括著名巴黎老佛爷百货公司。
信达信安里,遵循“修旧如旧、以存其真”修缮更新理念,还原清水红砖山墙、孟莎式折坡屋顶、石材石库门门头,保留红色机平瓦屋面、老虎窗、转角石构件,改善石库门格栅内院采光,将石库门建筑的风貌灵魂保留。

信达·信安里售楼处电话:400-8377-020






大师杰作 里藏百年风华
信达信安里,邀请日清设计创始人宋照青、朗道设计创始人叶翀岭、梁志天设计团队,从历史建筑风貌保护出发,融入当代新式里弄创新手法,建筑面积约270-525㎡风貌艺墅,里献世界的名宅隐贵之所。
永和邨\得发里 采取保留改造策略 结合现代生活需求进行优化提升
积善里\高家宅\太平坊 采取更新改建策略 保留原有材质样式、建筑格局、局部改建
永和邨沿街特色立面 采取保留外立面的策略 并沿用康定路沿街配套市房的立面上

风貌灵魂保留 从巴黎孟莎顶的法式⻛情
到上海人文屋脊的海派风华
双折式屋顶—孟莎式屋顶,源自法国古典主义建筑师弗朗西斯科·孟莎。17世纪晚期,成为法国古典主义建筑的流行形式。今天,人们依旧能在巴黎、法国北部看到成片的孟莎式屋顶,其中包括著名巴黎老佛爷百货公司。
信达信安里,遵循“修旧如旧、以存其真”修缮更新理念,还原清水红砖山墙、孟莎式折坡屋顶、石材石库门门头,保留红色机平瓦屋面、老虎窗、转角石构件,改善石库门格栅内院采光,将石库门建筑的风貌灵魂保留。

信达·信安里售楼处电话:400-8377-020




深度酒店化 营造归家艺术之旅
公区设计,巧妙融入百乐门印象、沪西电影院等文化元素,将过去记忆植入场景。嘉佩乐酒店式门庭、琉璃光廊式车库、海派人文哲思花园,以“深度酒店化”营造归家艺术之旅。


交通资源:项目位于静安历史风貌区,2/7/11/13/14号地铁交汇,分布武宁路、昌平路、隆德路、静安寺等市中心地铁站。
商业资源:嘉里中心、恒隆广场、兴业太古汇、静安ONE、芮欧百货、张园、环球世界大厦、889广场等奢华地标林立。
教育资源:华东政法大学(原圣约翰大学)、市西中学、七一中学、上海戏剧学院、南西幼儿园(市示范园)、诗意久幼儿园、一师附小、万航渡路小学、包玉刚实验小学。
(学校对口情况须在本小区交付后以政府教育主管部门及校方的最新政策为准)
医疗资源:华山医院(三甲)、上海市儿童医院(三甲)、第一妇幼保健院(三甲)、华东医院(三甲)。
休闲资源:曹家渡城市口袋花园、静安公园、美琪大戏院、上海展览中心等。

MODEL ROOM RESERVATION
信达·信安里售楼处电话:400-8377-020
















信达·信安里售楼处电话:400-8377-020
























信达·信安里售楼处电话:400-8377-020

信达·信安里售楼处电话:400-8377-020
信达·信安里 新房直接认购
矜贵老静安 传城亦传承
静安寺一英里 步行可至
稀藏恒贵资产 仅27席
静安第一代梧桐浓荫区
风貌别墅建面275-541㎡
均价19.98万/㎡ 总价5686万-1.1亿