信达信安里(营销中心)-信达信安里销售中心(售楼处)-信达信安里楼盘欢迎您-地址-小区环境-楼盘详情-交房时间-周边配套-售楼处电话-价格-户型

搜狐焦点宿州站 2025-10-11 14:13:55
用手机看
扫描到手机,新闻随时看

扫一扫,用手机看文章
更加方便分享给朋友

☑️☑️信达信安里售楼处电话:400-8377-020☑️☑️

☑️☑️信达信安里售楼处电话:400-8377-020☑️☑️ 老静安内环内曹家渡板块

「信达信安里」

建面约280-525㎡别墅

网传户型图全面曝光

正在认购

☑️☑️信达信安里售楼处电话:400-8377-020☑️☑️

☑️☑️信达信安里售楼处电话:400-8377-020☑️☑️

2022年6月,静安区人民政府官宣了曹家渡社区C050301单元4-3b地块的出让公告。

☑️☑️信达信安里售楼处电话:400-8377-020☑️☑️

最终,上海信达银泰置业有限公司(信达)作为静安区曹家渡社区C050301单元4-3b地块的开发建设实施主体,该地块形成“净地”后实施出让。信达拿地的价格在21.08亿元,折合楼板价约为81484元/㎡,叠加税费、保障房之后,综合楼板成本还要更高。

信达曹家渡项目(曹家渡社区C050301单元4-3b地块)设计方案公示!同时曝光了户型图,拟建16幢住宅!包括15栋2层住宅,1栋7-18层住宅(包含保障房)及配套用房。建面约30-66㎡一房,约442-520㎡别墅待入市!

☑️☑️信达信安里售楼处电话:400-8377-020☑️☑️

同时,还涉及历史风貌保护建筑。根据规划建设要求,地块内肌理保护范围占比不小于51.5%,肌理保护范围的用地面积不少于5332平方米,其具体边界和占地规模以建设项目规划管理阶段审定的方案为准。

☑️☑️信达信安里售楼处电话:400-8377-020☑️☑️

项目由一栋18层高层建筑,十五栋低层石库门风貌的建筑以及一栋配套用房组成,地下为地下三层。

☑️☑️信达信安里售楼处电话:400-8377-020☑️☑️

☑️☑️信达信安里售楼处电话:400-8377-020☑️☑️

☑️☑️信达信安里售楼处电话:400-8377-020☑️☑️

户型图:(仅供参考,以开发商正式公示为准)

建面约90m²1房2厅1卫

☑️☑️信达信安里售楼处电话:400-8377-020☑️☑️

建面约100m²2房2厅1卫

☑️☑️信达信安里售楼处电话:400-8377-020☑️☑️

这个项目的户型图不管是高层还是低层大面积别墅都是特别的多,好了,然后让我们来看看部分阔绰空间别墅产品的网传户型图,先上2号楼:

2号楼别墅东边套

☑️☑️信达信安里售楼处电话:400-8377-020☑️☑️

☑️☑️信达信安里售楼处电话:400-8377-020☑️☑️

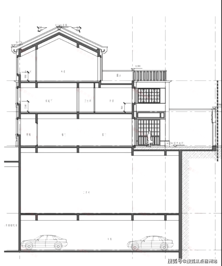
小区的2号楼别墅为双拼,东边套为地上1-2层外加阁楼。建造风格应该也是新里弄的石库门样式了,看看下面的剖面图就知道了:

2号楼别墅剖面图

☑️☑️信达信安里售楼处电话:400-8377-020☑️☑️

然后来看看6号楼别墅产品:

6号楼别墅

☑️☑️信达信安里售楼处电话:400-8377-020☑️☑️

☑️☑️信达信安里售楼处电话:400-8377-020☑️☑️

☑️☑️信达信安里售楼处电话:400-8377-020☑️☑️

6号楼比较特别,是相对比较独立的类独栋了,标准地上3层,看看它的立剖面图:

☑️☑️信达信安里售楼处电话:400-8377-020☑️☑️

交通配套:项目地块位于静安历史风貌区内,约1KM范围内有2/7/11/13/14号线,分布武宁路、昌平路、隆德路、静安寺等市中心地铁站。

商业配套:项目周边有静安嘉里中心、恒隆广场、兴业太古汇、芮欧百货、张园、环球世界大厦、889广场等奢华地标林立。

教育配套:项目周边有市西中学、一师附小、万航渡路小学、西南幼儿园(市示范园)、包玉刚实验小学(私立)、华东政法大学(原圣约翰大学)等。

医疗配套:项目周边有:华山医院、上海市儿童医院、第一妇幼保健院、华东医院。

源起静安寺 起笔南京西路

建面约 270-525㎡风貌艺墅

惟此 27席

均价 19.98万/㎡

总价约 5686万-1.1亿

私家花园庭院

独门独院、围合天地、连院宽厅

世界尽藏一隅

高附赠率别墅空间

无柱、无廊、大落地窗设计

老静安内环内的稀缺臻品

里献全球名宅隐贵之所

☑️☑️信达信安里售楼处电话:400-8377-020☑️☑️

☑️☑️信达信安里售楼处电话:400-8377-020☑️☑️

一座静安寺,三片风貌区

南京西路历史风貌区——凤阳路、陕西北路

衡复历史风貌区——华山路、湖南路

愚园路历史风貌区——愚园路、常德路

动辄亿元的浓荫区老洋房

历史从这里溯源

源起静安寺

时代璀璨的东方峯尚目的地

自1862年静安肇始,从张园、百乐门到美琪大戏院、梅龙镇酒家,缩影上海百年精粹。百年后,静安寺商圈荟萃“梅恒泰”、嘉里中心、芮欧百货、兴业太古汇等,执掌上海奢贵据点

☑️☑️信达信安里售楼处电话:400-8377-020☑️☑️

☑️☑️信达信安里售楼处电话:400-8377-020☑️☑️

老静安——上海第一代梧桐区肇始地,这里走出了“民国第一外交官”顾维钧、“中华民国教育总长”蔡元培、“晚清第一首富”盛宣怀、“香港第一首富”何东、“世界建筑大师”贝聿铭等,名流风范世代相承,东西文明由此赓续,静安由此迈向全球名宅区。

信达地产,中国信达旗下上市央企。精耕全国30多个城市,累计开发、代建近200个高品质项目,2024房地产开发企业综合实力TOP500位列第38名,2024年中国房地产上市公司综合实力榜位列第24名。

☑️☑️信达信安里售楼处电话:400-8377-020☑️☑️

信达地产,定位“专业特色的不动产资源整合商”,布局长三角、大湾区、京津冀、长江中游、成渝五大城市群,打造北京东外39号、上海院子、杭州滨江壹品等,与中国最具价值的城市群共生长。

老静安,作为上海内环内资源高度密集的区域,其能级之高无可超越。全域纳入 CAZ(中央活动区),意味着这里将持续获得大量资源投入,进行城市更新与基础设施建设,不断提升商业、金融、文化及旅游功能,稳固其在全球城市中的关键地位。

☑️☑️信达信安里售楼处电话:400-8377-020☑️☑️

在这仅 7.62 平方公里的土地上,顶级资源星罗棋布。以静安寺为核心的商圈,嘉里中心、久光百货、芮欧百货等高端商业体汇聚一堂;南京西路商圈不断迭代升级,恒隆广场、中信泰富等顶奢商业,兴业太古汇等潮奢商业,以及备受重奢青睐的张园等共同构建起繁华商业矩阵。同时,张爱玲故居、胡适故居等名人故居与众多老建筑,为静安增添了浓厚的历史文化底蕴。而对于信达・信安里而言,这些顶级资源都被囊括在 “15 分钟生活圈” 内,资源密集程度令其他项目难以望其项背。☑️☑️信达信安里售楼处电话:400-8377-020☑️☑️

☑️☑️信达信安里售楼处电话:400-8377-020☑️☑️

信达・信安里凭借稀缺的地段、独特的产品、卓越的品质,成为上海房地产市场中不可多得的优质项目。无论是追求高品质生活的改善型购房者,还是具有前瞻性眼光的投资者,信达・信安里都不失为一个理想之选,抓住这一机遇,便能拥享老静安内环内的稀缺生活样本。

大师杰作 里藏百年风华

信达信安里,邀请日清设计创始人宋照青、朗道设计创始人叶翀岭、梁志天设计团队,从历史建筑风貌保护出发,融入当代新式里弄创新手法,建筑面积约270-525㎡风貌艺墅,里献世界的名宅隐贵之所。

☑️☑️信达信安里售楼处电话:400-8377-020☑️☑️

信达信安里,植入曹家渡历史场景记忆,融入“渡口溯源、百乐门印象、沪西电影院”国际静安的文化元素,永葆当代海派门第涵养,以全球在地化语境的当代转译,激活百年风貌的艺术人文新里。

☑️☑️信达信安里售楼处电话:400-8377-020☑️☑️

☑️☑️信达信安里售楼处电话:400-8377-020☑️☑️

双折式屋顶—孟莎式屋顶,源自法国古典主义建筑师弗朗西斯科·孟莎。17世纪晚期,成为法国古典主义建筑的流行形式。今天,人们依旧能在巴黎、法国北部看到成片的孟莎式屋顶,其中包括著名巴黎老佛爷百货公司。

☑️☑️信达信安里售楼处电话:400-8377-020☑️☑️

☑️☑️信达信安里售楼处电话:400-8377-020☑️☑️

信达信安里,遵循“修旧如旧、以存其真”修缮更新理念,还原清水红砖山墙、孟莎式折坡屋顶、石材石库门门头,保留红色机平瓦屋面、老虎窗、转角石构件,改善石库门格栅内院采光,将石库门建筑的风貌灵魂保留。

☑️☑️信达信安里售楼处电话:400-8377-020☑️☑️

☑️☑️信达信安里售楼处电话:400-8377-020☑️☑️

公区设计,巧妙融入百乐门印象、沪西电影院等文化元素,将过去记忆植入场景。嘉佩乐酒店式门庭、琉璃光廊式车库、海派人文哲思花园,以“深度酒店化”营造归家艺术之旅。

☑️☑️信达信安里售楼处电话:400-8377-020☑️☑️

地下1F志趣空间,约7.2m层高,私人菁英社交圈层。首层花园入户,大横厅会晤场域,与时代精神际会。二三层静谧于心,起居室多套房设计,梧桐下的栖心之所。屋顶露台、花园庭院,超大附赠面积,藏身心于天地恢弘。

☑️☑️信达信安里售楼处电话:400-8377-020☑️☑️

户型图参考

☑️☑️信达信安里售楼处电话:400-8377-020☑️☑️

☑️☑️信达信安里售楼处电话:400-8377-020☑️☑️

☑️☑️信达信安里售楼处电话:400-8377-020☑️☑️

效果图鉴赏

☑️☑️信达信安里售楼处电话:400-8377-020☑️☑️

☑️☑️信达信安里售楼处电话:400-8377-020☑️☑️

☑️☑️信达信安里售楼处电话:400-8377-020☑️☑️

☑️☑️信达信安里售楼处电话:400-8377-020☑️☑️

爱俪里 | 建面约366m²摩登复古的艺术之家

☑️☑️信达信安里售楼处电话:400-8377-020☑️☑️

☑️☑️信达信安里售楼处电话:400-8377-020☑️☑️

☑️☑️信达信安里售楼处电话:400-8377-020☑️☑️

☑️☑️信达信安里售楼处电话:400-8377-020☑️☑️

得发里 | 建面约463m²独揽世界的海派墅邸

☑️☑️信达信安里售楼处电话:400-8377-020☑️☑️

☑️☑️信达信安里售楼处电话:400-8377-020☑️☑️

☑️☑️信达信安里售楼处电话:400-8377-020☑️☑️

☑️☑️信达信安里售楼处电话:400-8377-020☑️☑️

☑️☑️信达信安里售楼处电话:400-8377-020☑️☑️

☑️☑️信达信安里售楼处电话:400-8377-020☑️☑️

☑️☑️信达信安里售楼处电话:400-8377-020☑️☑️

☑️☑️信达信安里售楼处电话:400-8377-020☑️☑️

☑️☑️信达信安里售楼处电话:400-8377-020☑️☑️

☑️☑️信达信安里售楼处电话:400-8377-020☑️☑️

☑️☑️信达信安里售楼处电话:400-8377-020☑️☑️

☑️☑️信达信安里售楼处电话:400-8377-020☑️☑️

☑️☑️信达信安里售楼处电话:400-8377-020☑️☑️

☑️☑️信达信安里售楼处电话:400-8377-020☑️☑️

周边配套资源堪称卓越

全方位满足居民生活所需

信达・信安里周边配套资源呈现出一种极致的丰富与便利,全方位、深层次地服务于居民生活,展现出内环核心区域的独特魅力与优势周边配套资源紧密交织,打造出便捷、高效、高品质的生活圈,让业主在享受都市繁华的同时,也能拥有舒适、安心的居住体验,尽显老静安内环核心区域的独特价值 。

交通资源

项目位于静安历史风貌区,2/7/11/13/14号地铁交汇,分布武宁路、昌平路、隆德路、静安寺等市中心地铁站。

商业资源

嘉里中心、恒隆广场、兴业太古汇、静安ONE、芮欧百货、张园、环球世界大厦、889广场等奢华地标林立。

教育资源

华东政法大学(原圣约翰大学)、市西中学、七一中学、上海戏剧学院、南西幼儿园(市示范园)、诗意久幼儿园、一师附小、万航渡路小学、包玉刚实验小学。

☑️☑️信达信安里售楼处电话:400-8377-020☑️☑️

医疗资源

华山医院(三甲)、上海市儿童医院(三甲)、第一妇幼保健院(三甲)、华东医院(三甲)。

休闲资源

曹家渡城市口袋花园、静安公园、美琪大戏院、上海展览中心等。

☑️☑️信达信安里售楼处电话:400-8377-020☑️☑️

声明:本文由入驻焦点开放平台的作者撰写,除焦点官方账号外,观点仅代表作者本人,不代表焦点立场。